提示点击↑上方"土木工程资源共享"关注加入
点我资料免费下
【重磅福利】
薄层砌筑的施工全流程管理要点,

2.砌块的尺寸偏差和外观

3.专用粘接剂
以高分子聚合物和水硬性硅酸盐材料为主要原材料,配以多种高分子助剂, 在专业工厂经高精计量、均匀混合而制成的干混砂浆。

4.专用L型铁件(出厂合格证 +检测报告)
以镀锌薄钢板为材料,经模具折边、钻孔而形成的直角铁件;
规格:300×80×1.2(厚) 对应墙厚:150、200、250;
规格:240×60×1.0(厚) 对应墙厚:100 。

5.施工机具

6.砌体排版
尽量采用整砖进行排版,控制非标砖数量 ;
排版过程中要避免通缝出现 ;
排版顶砖缝隙控制通过导墙或座浆高度进行调整;
通过导墙或座浆高度调整顶砖缝隙(20~30mm);
通过样板间确定主要砌筑房间净尺寸、抹灰完成 后墙面净尺寸、厨房烟道及管井抹灰完成面尺寸、 客卫烟道及管井抹灰完成面尺寸、主卫管井抹灰 完成面尺寸、衣帽间烟道管井抹灰完成面尺寸。


7.深化控制
砌体根据砼企口深度,定制非标准砌块;
例:200mm宽剪力墙,企口深度每边 8mm,砌体尺寸为180mm。

8.砌体未进行优化

9.材料堆放
砌块应集中堆放、集中加工,砌块从厂家 运到工地后,采用随材料一起运到现场的 薄膜遮盖或配备“上盖下垫”集中堆放场 地,即:在上方采用搭棚的方式,棚的外 檐超出砌块外边至少1m,有效防雨;下方采用方木+模板铺平台,平台高出周边至 少10cm,并能有效排水。

10.集中加工
根据砌体排版图,统一进行集中加工;
禁止楼层临时切割;√ 做好砌筑四化要求:“砌筑图纸标准化”、 “物料下单工厂化”、“过程管理可视 化”、“现场施工整洁化”。

11.二次预制构件
提前现场浇筑二次构件集中加工区:包括 集中加工预制过梁、空调孔预制块、门窗 洞口边预制块等(推荐使用定型钢模, 提升预制块品质)。

12.材料运输
施工二次转运时,严禁采用斗车,应采用叉车或 平板车运输,应由专人专车运输至楼层,防止砌 块断裂。

1.工艺流程图

2.基层清理
清理楼面基层泥土、附浆等杂物,用水冲洗干净、除尘。

3.测量放线
后砌墙控制线:在每道后砌填充墙部位弹出控制线、门窗洞口位置线、“正手墙”成活面控制线,并 投影在顶板和侧墙相应位置(又称为天地线);
房间方正控制线:在有后砌墙的房间,弹出300控制线,以保证房间方正,并在墙上引出控制线, 防止抹灰砂浆遮盖控制线;
标高控制线:将室内标高1m控制线引致完成抹灰的后砌墙。反坎水平定位标高的要求即弹测在结构 墙体上;(未有结构墙体可以抄测在构造钢筋上,以控制高度)
电盒标高位置控制线:在后砌墙预留电盒位置,安装电盒前根据其他室内电盒标高,在抹灰完成面弹 出电盒控制线。

4.导墙与反坎控制
在砌体底部采用实心砖砌筑,其高度可不小于200mm卫生间隔墙部位设置反坎,随主体浇筑, 高度不小于地面200mm。(随反坎调整顶塞缝隙问题)

5.墙体砌筑方法
(1)专用粘合剂砌筑,低速搅拌,搅拌大致1分钟后静止2-3分钟,待材料充分熟化后再搅拌1分钟即 可。Ø 砌体的竖向灰缝应在砌块的一个端面 100%敷浆;使用齿型刮刀进行水平敷浆,满刮一层厚度约 5mm砂浆,严禁将敷浆面的中间刮成凹状(容易导致水平灰缝空心)。

(2)灰缝应横平竖直,缝宽3--5mm,深度3-5mm, 饱满度≥90%,上下错缝,不得有通缝;
第一皮砌块底部要通过座浆高度来保证墙体预留 顶缝厚度控制在20~30mm之间;
砌块需锯裁时,锯裁砌块的长度不应小于砌块总 长度的1/3;
砌筑应从转角处或交叉墙开始顺序推进,纵横墙 应交叉搭砌,搭接长度不可小于砌块长度的1/3;
砌体转角和内外墙交接(如有)部位应同时砌筑, 对不能同时砌筑而又必须留槎的临时间断处,应砌成斜槎。斜槎水平投影长度不小于高度的2/3;
砌筑完成后采用2m靠尺复合墙体垂直度、平整度,激光水平仪及卷 尺复核方正性;激光测距 仪复核开间进深;卷尺复核门洞尺寸。

(3)小于2.1m洞口时,可以采用混凝土预制块;
设置混凝土预制块,底部开始第一皮砖为预制块,上部每隔一皮或400mm(根据砖的模数决定) 设置一块。

(4)

(5)构造柱:非一次浇筑时,马牙槎应先退后进,进退尺寸大于60mm,构造柱支模时不得在加气混凝土上钻 孔,设置螺杆可应放置在柱内。构造柱内墙体、钢筋、地面处杂物清理干净、并用扫把扫除墙体面的灰尘污垢,与砌块接触面贴胶带纸,防止漏浆圈梁。浇筑时采用簸箕口方式,利用20系列振捣泵进行外侧振 捣密实。

6.管线开槽
砌体管线开槽:应在砌筑砂浆达到一定强度(大于设计强度的70%)之后使用专用开槽机开槽,开槽前 要求弹线,严禁开凿交叉和水平槽。不应在墙体同一水平标高处同时进行长距离切割(不超过1米);
开槽宽度及深度:管槽宽度比管外径大10mm,槽深为D+15mm管放入槽后,每隔0.5m进行固定;
槽内配管2根以下时:先用水浇湿管槽,再用高一标号的水泥砂浆修补(砂浆强度等级不低于M10);
槽内配管3根以上时:先用细石混凝土填满管槽,然后挂好钢丝网(钢丝网宽度要超过管槽两边不小 10cm)。在砌筑时线盒不允许固定,在抹灰阶段固定;
并排管的间距应大于15mm。

7.门洞过梁
根据免抹要求,结构应用全现浇外墙, 原则上无窗过梁,门过梁可深化为下挂 梁,随主体施工;
若局部存在门、窗过梁且洞口两侧为混 凝土墙、柱时,靠近混凝土墙或柱一端 的过梁纵向受力钢筋采用植筋的方式锚 入结构砼墙或柱内,锚固长度不小于 10d且不少于10cm ;门洞两侧为加气 块墙体时,过梁与结构间的缝隙采用专 用塞缝砂浆进行填塞。


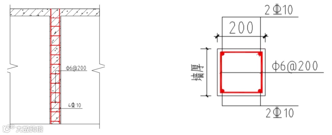
构造柱节点(1):
构造柱截面尺寸为200×墙厚,主筋采用4C10,箍筋采用 Φ6@200;钢筋均采用植筋处理,植筋长度不小于10d;
构造柱采用矩形截面,可与主体结构一次成型,柱根进行拉缝处理 。
构造柱植筋节点(2):

构造柱植筋节点(3):
砌体先砌,构造柱后浇,需要预埋构造钢筋的砌块上,可用拉槽器在上面预先拉槽,或者机械拉 槽镂槽深度8-11mm。

8.L型铁件节点
构造柱随主体结构一次完成,砌体可采用L型铁件进行拉结,拉结锚钉用射钉枪全部钉满,防止漏钉。

9.圈梁节点
当墙高≥4米时,须设水平圈梁一道,圈梁一般位于墙的半高处;圈梁截面尺寸为 150×墙厚,主筋采用4C12,箍筋采用A6@200;钢筋均采用预埋处理。如下图所示。

10.顶缝处理节点
通过砌体排版调整导墙高度,砌筑皮数统一,高度不进行切割;√ 砌筑时根据顶皮砖的尺寸配砖;将尺寸加工好的砌块砌筑于下层砌块之上,并挤紧、压实;
梁底预留20-30mm顶缝;待砌块沉降稳定后(砌筑完成后约14天),用填缝枪和膨胀水泥砂 浆进行顶缝填塞,必须保证顶缝饱满。

11.质量控制

12.薄层砌筑通病防治—顶砖缝隙
问题:顶砖部位预留缝隙不一致,导致顶砖堵塞存在困难,后期开裂风险较大。

通过砌体排版图,实现第一皮砖精准找平,通过导墙高度实现砌块皮数调整,按照皮数杆进行砌筑,灰缝均匀控制,确保顶砖缝隙控制在20mm-30mm。


12、检验批的划分、容量及抽样总结!附76个常用检验批验收表!
猜你喜欢:
3、助力2018安全生产月,这100份安全资料合集值得入手(可下载)
来源:土木论坛。版权归原作者及原出处所有

加入我们
投稿展示或者分享资料
一起交流一起成长
扫一扫下方二维码,灵感即刻进
官方微信或qq:483972950
官方qq群:343778875 或648915172



