提示点击↑上方"土木工程资源共享"关注加入
点我资料免费下
【重磅福利】
在塔吊的施工平面布置实践中,经常会遇到一些特殊的部位,这些部位一般对于满足塔吊的覆盖范围的施工条件都比较理想,但往往是塔吊的基础(或者是塔身与墙面附拉)却不能满足塔吊说明书要求的布置条件,成为了塔吊布置方案中的难点。
针对这些难点,本人在多年从事项目技术管理的实践中,依据塔吊基础基本的承载原理,摸索出了一种采取将塔吊的基础与塔身同轴心旋转改变原来的方向的方法,可因地制宜地解决上述塔吊布置中难题,通俗的简称为“塔吊的同轴心旋转布置法”。
1.“塔吊同轴心旋转布置法”的概念及形式
1.1 常规条件下的塔吊基础布置形式
我们在编制塔吊布置的方案时,都是根据掌握的资源条件,按照所选择的塔吊的说明书要求,首先在施工总平面图中选择理想的塔吊基础布置位置。在塔吊说明书中,关于塔吊的基础和塔身标准节,都是平行于建筑物的外墙轴线方向,并规定了相应的与建筑物外墙之间的允许距离范围。如图1
如果是布置在地下室的范围以内的,就在地下室基础图上寻找合适的结构柱与承台之间的空间进行布置。如图2

图1 塔吊基础常规布置形式
图2 天拖项目1#塔吊基础位置塔(常规布置)
1.2 “塔吊同轴心旋转布置法”的概念
在一些特殊的部位,按照常规的布置方法,往往不能满足塔吊布置的条件,一般存在两类状况,第一类状况是地下室平面结构构柱布置比较复杂,横平竖直的塔吊基础就不能满足常规的布置条件,第二类状况是上部的塔身受到升降条件的限制。采用“塔吊同轴心旋转布置法”,能科学合理的解决这些特殊部位塔吊布置的难题。
“塔吊同轴心旋转布置法”就是在保证基础与塔身体标准节的轴心点(重心点)不变的前提下,将基础(或塔身)平面旋转适当的角度,使之既满足基础布置,又能满足塔吊升降、塔身附拉的最佳方向和位置。
1.3 塔身不变,塔吊基础旋转的布置形式
工况一,在地下室范围内布置塔吊基础上时,当平面位置受到条件限制时,在保持塔身不变的前提下,将塔吊基础平面旋转适当的角度,使塔吊基础能在柱承台之间找到了合适的布置位置。见图3
图3 塔身不变,塔吊基础旋转的示意图
1.4 塔吊基础不变,塔身旋转的布置形式
工况二,在上部的塔身位置,当塔吊升降时,对可能存在大臂降落与相邻的建筑物碰撞的状况时,在保持塔吊基础方向不变的前提下,将塔吊塔身平面旋转适当的角度后,使塔身能在大臂降落时能自由降落。见图4
图4 基础不变,塔身旋转的示意图
1.5 塔吊基础和塔身都旋转的布置形式
工况三,是在塔吊布置中既受到地下室基础位置的平面制约,又受到上部塔身的方向限制,也就是以上的工况一和工况二的两类制约因素都存在,因此就采取“塔吊同轴心旋转布置法”综合方法,既调整塔吊的基础方向,又调整塔身的方向。如图5
图5基础和塔身都旋转的示意图
图6 将塔吊基础旋转45°方向后的深化布置图
2.“塔吊同轴心旋转布置法”应用案例
2.1工况一:塔身不变,塔吊基础旋转
案例一:在2018年由我事业部承建的天津市南开区万科天拖项目中,其中的2#塔吊的基础,按照常规的布置形式,在地下室基础图在没有合适的位置,就采取“塔吊同轴心旋转布置法”,将塔吊基础旋转45°,在有限的承台之间布置了塔吊的基础。如图6
案例二:在2019年由我事业部承建的天津市武清区驿动同联项目,在邻近5#楼的10#塔吊的基础布置时也遇到了相如的问题。同样采取了“塔吊同轴心旋转布置法”,将塔吊基础逆时针方向旋转36°,在特殊形式的承台之间布置了塔吊的基础。如图7
图7 深化布置图(将塔吊基础旋转36°)
2.2工况二:塔吊基础不变,塔吊塔身旋转
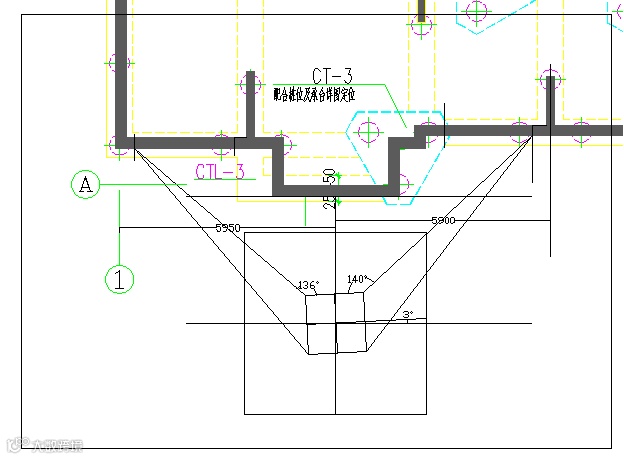
此类工况,是指在设想的塔吊布置位置,建筑物呈“缺口形”的建筑形状,而在地下室基础图上,这个部位的承台基础比较方正,平面位置很好,适合横平竖直的塔吊基础布置,问题是在缺口范围布置了方正的塔身不利于塔吊的拆除。因此采取“塔吊同轴心旋转布置法”中基础方向不变,塔身旋转的方法。
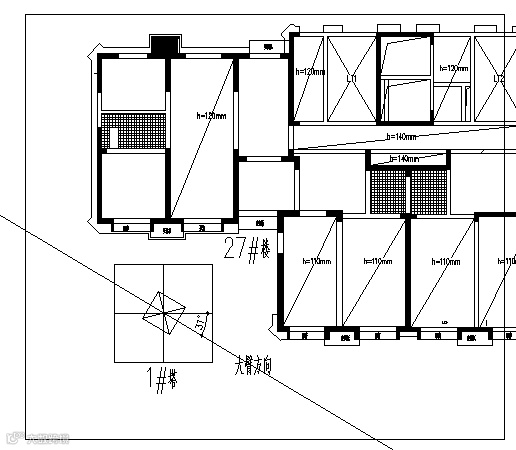
案例三:在2016年由我事业部承建的天津市西青区万科东第高层住宅楼项目中邻近27#楼的1#塔吊的布置中,就遇到了这样的状况。就将塔身顺时针方向31°,解决了塔吊升降与建筑物碰撞的问题。如图8
图8 基础不变,塔身顺时针旋转31°布置
案例四:在2018年由我事业部承建的天津市西青区荷悦家园B2地块住宅楼项目塔吊布置中,其中邻近19#楼的3#塔吊,处于建筑物的群体的“元宝形”位置,在此处范围布置的塔吊在塔吊的拆除时与相邻的20#楼脚手架有碰撞,因此采取了“塔吊同轴心旋转布置法”中旋转塔身的做法。如图9
图9 图中3#塔吊按照常规布置,大臂拆除与17#楼碰撞
在保持塔吊基础方向不变的前提下,将塔身平面逆时针方向旋转3°,使塔身能满足塔吊拆除降落条件。如图10
图10 3#塔吊基础不变,塔身逆时针旋转3°布置
2.3.工况三:塔吊基础旋转,塔吊塔身也旋转
案例五:在2019年由我事业部承建的天津市西青区碧桂园天境住宅楼项目中,其中的5#塔吊的基础布置中,地下室基础和上部的塔身均受到了限制和制约,因此采取“塔吊同轴心旋转布置法”将塔吊基础旋转45°布置,将上部的塔身顺时针方向旋转6°布置。满足了安全布置的要求。如图11
图11 5#塔吊的基础位置深化图
3.“塔吊同轴心旋转布置法”的实施步骤
“塔吊同轴心旋转布置法”的实施步骤参以下应用流程图:
4.塔身旋转布置后对附墙支撑杆的调整
在上述案例三中,在“缺口形”的建筑物形式位置布置塔吊时,在塔身旋转后,其附墙的支撑杆也应相应的调整,具体做法是:
4.1前提一:在塔身旋转后,说明塔身的方向与建筑物外墙的方向不是平行关系了,其附墙的支撑杆也应随塔身的方向进行相应的调整,调整后的支撑杆与塔身之间的夹角的角度应满足塔吊说明书的要求。
4.2两个支撑杆与塔身的角度方向应尽可能的保持互相镜像对称,这样你两个方向的拉杆受力保证对称均匀的。
4.3调整后两根支撑杆长度不一致,但受力分析是基本相同的。
4.4根据调整后的塔身方向,选择合理的附拉点。在上述案例4,东第项目的1#塔吊的附拉点位置选择如图12
图11 东第项目1#塔吊的附拉位置深化图
5.结束语
“塔吊同轴心旋转布置法”是一种通俗易懂的布置技巧,掌握了“塔吊同轴心旋转布置法”,能灵活地解决塔吊布置中的很多难题,特别是在针对塔吊布置的多个方案进行选择时,应用“塔吊同轴心旋转布置法”,能够更加灵活地进行布置,能够更加科学、经济、合理地利用各类塔吊的设备资源,降低机械设备成本,同时能可靠的满足安全生产方面的要求,降低施工安全风险,最终达到降本增效的目的。

12、检验批的划分、容量及抽样总结!附76个常用检验批验收表!
猜你喜欢:
3、助力2018安全生产月,这100份安全资料合集值得入手(可下载)
源自 | 南通二建集团技术服务平台
版权归原作者所有,侵删

加入我们
投稿展示或者分享资料
一起交流一起成长
扫一扫下方二维码,灵感即刻进
官方微信或qq:483972950
官方qq群:343778875 或648915172



