提示点击↑上方"土木工程资源共享"关注加入
点我资料免费下
【重磅福利】
本文《浅析底板后浇带止水钢板的正确安装方向》作者:章旭江、章洁,针对当前建筑工程中普遍存在的“止水钢板开口朝向迎水面”做法,依据规范规定及理论分析,给出了合理的质疑和纠正。小编非常认可本文说法,也供工程同仁们交流讨论。

主体结构施工时,采用止水钢板作为后浇带止水措施,是目前工程中最常用的形式。但在工程实施过程中,由于参建各方对规范了解不透彻,人云亦云、以讹传讹,致使止水钢板安装方向普遍存在问题。
工程实施中的普遍做法
底板后浇带止水钢板的正确朝向应该是怎样的,开口方向是向下还是向上?95%以上的从业者会说开口方向向下。设计院、建设单位、监理单位、施工单位、第三方工程咨询公司、主管部门的认知也是如此。
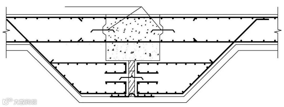
某省建筑设计研究院,结构设计说明中后浇带做法的节点详图(图1)明确标明底板后浇带的止水钢板的朝向是向下的。

图1 某设计院关于后浇带做法的详图
国内某房产集团天津某工程的底板后浇带现场施工示意(图2)中底板止水钢板也是朝向下面的。

图2 天津某工程后浇带止水钢板安装示意
“止水钢板应该朝向迎水面”变成了行业的规范。而也有个别一线工作的技术人员对止水钢板朝向向下而造成浇筑混凝土时气泡不易排出,易发生孔洞的情况有所疑虑。
规范规定的做法
国内外的规范并没有“止水钢板应该朝向迎水面”这一说法。但止水钢板之所以做成盆式,规范有明确出处及说明。GB50108《地下工程防水技术规范》5.1.10条,中埋式止水带施工应符合下列规定:止水带应固定,顶、底板内止水带应成盆状安设。
相应的条文解释为:中埋式止水带施工时常存在以下问题:顶、底板止水带下部的混凝土不易振捣密实,气泡也不易排出,且混凝土凝固时产生的收缩易使止水带与下面的混凝土产生缝隙,从而导致变形缝漏水。根据这种情况,条文中规定顶、底板中的止水带安装成盆形,有助于消除上述弊端。
顶、底板止水带之所以安装成盆形,是为了消除止水带下部混凝土不易振捣密实这个质量隐患。而要达到消除气泡、混凝土振捣密实的目的,这个盆式应该是向上而不是向下的。但目前大部分设计院将底板后浇带中的止水钢板设置成开口向下,完全是反其道而行之的错误做法。

目前工程实践中底板后浇带止水钢板开口方向朝向引水面(下面)的做法,与规范的初衷完全是背道而驰的。这样不但消除不了气泡,反而让气泡更加难以排出,进而导致止水钢板下部混凝土振捣不密实、形成孔洞,实质上成了一个漏水隐患点。此问题应引起业内同行特别是行业主管部门的高度重视,应出台相关说明细则,从源头上落实解决

12、检验批的划分、容量及抽样总结!附76个常用检验批验收表!
15、资料员、施工员、技术员请注意!三分钟搞懂施工技术资料编制重难;
猜你喜欢:
3、助力2018安全生产月,这100份安全资料合集值得入手(可下载)
加入我们
投稿展示或者分享资料
一起交流一起成长
扫一扫下方二维码,灵感即刻进
官方微信或qq:483972950
官方qq群:343778875 或648915172



