提示点击↑上方"土木工程资源共享"关注加入
点我资料免费下
【重磅福利】
近年来,随着我国城市化建设规模的不断扩大,城市用地日益紧张,出现了大量带有地下室的建筑物。与此同时,随着此类建筑物埋置深度的增大,地下室上浮问题也变得日益突出。
由于目前对于地下水抗浮问题还缺乏系统研究,现行标准中对地下室抗浮设计也仅作了概念性规定,地下室抗浮失效导致结构开裂破坏的事故时有发生,且往往兼具有多种上浮形态,给相关人员判断事故原因和采取措施增加了难度。
本文结合工程案例,对地下室抗浮失效的破损机理进行分析并提出相应的处理措施,可为今后类似的工程情况提供参考。
工程概况
某在建工程由高层住宅、多层商业、酒店组成,均设一层地下室,中庭纯地下室与周围建筑的地下室连为一体,之间设置施工缝。该工程地下室采用全现浇钢筋混凝土框架结构。高层建筑地下室采用筏板基础,以稍密卵石或中密卵石层作基础持力层。
地下室建筑总面积为43888.89m
;抗水板板厚为400mm,采用
14@200双层双向配筋;柱网尺寸为7.8m×7.8m;框架柱截面尺寸为500mm×500mm;抗水板混凝土抗压强度等级为C30。
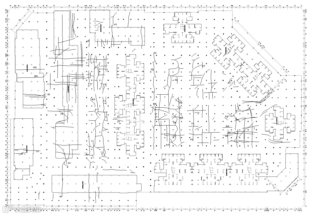
该工程部分主体结构施工完成后,由于2014年7月降雨量较大,导致地下水位急剧升高,使得地下室抗水板出现大量裂缝,且部分部位渗水严重。地下室平面及裂缝分布示意图见图1。

图1 地下室平面及裂缝分布示意图
现场调查和检测
2.1 原工程抗浮设计
本工程中庭地下室基础为独立基础加抗水板,原设计采用结构自重和上部覆土抵抗地下水浮力。经查阅地质勘探报告和设计图纸表明,该工程所在场地地层结构较简单,自上而下场地图层依次为:填土(层厚0.50~1.10m)、粉质黏土(揭露厚度0.50~1.50m)、细砂(层厚0.60~2.60m)、卵石。
场地地下水主要为赋存于第四系砂卵石层中的孔隙型潜水,受地下径流、大气降水及地表流水补给,补给条件良好,水量较为丰富,且砂卵石层富水性和透水性均良好,属强透水层。本工程抗浮设计水位标高为-2.500m。
2.2 施工情况调查
该工程地下室在施工初始阶段有基坑支护、止水等措施,并采用管井降水法结合明排进行基坑降水,基坑内基本无水。待地下室主体结构完成后,地下室四周的降水措施已基本停止。
事故发生时,由于降水量较大,加之地面排水系统不畅,地下水位急剧上升,典型照片见图2。

图2 事故发生时地下水位情况
2.3 现场检测情况
(1)现场采用钻芯法对该工程地下室抗水板的混凝土抗压强度进行抽样检测。结果表明,该工程地下室抗水板的混凝土抗压强度批量推定值满足设计要求。
(2)现场采用钢筋位置检测仪等仪器并结合局部破损法对该工程地下室抗水板的板面钢筋间距、直径和板面钢筋的混凝土保护层厚度进行抽样检测,结果表明,该工程地下室抗水板的板面钢筋间距、直径均满足设计图纸要求,但抗水板的板面钢筋的混凝土保护层厚度实测值在75~85mm之间,远大于设计要求。
(3)现场通过测量所钻取的抗水板芯样方法对该工程地下室抗水板的厚度进行检测,结果表明,该工程地下室抗水板板厚实测值均满足设计要求。
(4)现场对该工程地下室抗水板裂缝的走向及形态进行检查,并对裂缝宽度进行检测。结果表明:该工程地下室抗水板裂缝分布范围较广,主要发生于纯地下室和多层商业房屋区域,且部分部位渗水严重。按裂缝分布、走向和形态,大致可将抗水板裂缝分为以下三类:
第一类——钢筋混凝土柱间、抗水板中部水平直线裂缝。此类裂缝分布于地下室钢筋混凝土柱间、靠近抗水板跨中位置,呈水平直线分布,范围较广,裂缝宽度较大,。现场骑裂缝钻芯样表明,此类裂缝竖向贯通并呈现出明显的由上至下裂缝宽度逐渐减小的开展趋势。典型照片见图3、图4;

图3 抗水板中部水平直线裂缝

图4 骑裂缝钻取的芯样
第二类——沿钢筋混凝土柱脚辐射的斜裂缝或围绕柱脚的环形裂缝,此类裂缝主要分布于纯地下室区域,典型照片见图5;
第三类——不规则裂缝,此类裂缝的分布无明显规律,杂乱无章,长度较短,典型照片见图6。

图5 柱脚环形裂缝

图6 不规则裂缝
(5)现场对该工程地下室钢筋混凝土柱、梁裂缝进行检查,并对裂缝宽度进行检测。结果表明,该工程在抗水板出现第二类裂缝的区域的钢筋混凝土柱顶部存在不同程度的环向水平裂缝;部分钢筋混凝土梁在梁端出现少量斜向裂缝。典型照片见图7、图8。

图7 柱顶环向水平裂缝

图8 梁端斜向裂缝
抗浮设计验算
依据该工程岩土工程地质勘查报告,该工程抗浮设计水位标高为-2.500m。事故发生时地下水位急剧上升,实测地下水位标高为-0.500m。此时中庭地下室板顶尚未覆土。
(1)整体抗浮计算
根据现场检测结果并结合设计图纸,基地抗浮水头按实测地下水位标高计算,对高层建筑、多层建筑以及纯地下室基础的抗浮稳定性进行验算可知,在实测地下水位水压力作用下,中庭纯地下室抗浮稳定性不能满足要求。
(2)局部抗浮计算
根据现场检测结果并结合设计图纸,选取中间7.8m×7.8m的板区格作为计算单元,板底抗浮水头按实测地下水位标高计算,抗水板厚度、配筋按设计取值,板面钢筋保护层厚度取实测平均值80mm,验算结果表明,该工程地下室抗水板区格在地下水浮力作用下的跨中受弯承载力不能满足要求。
上浮原因及破损机理分析
4.1 上浮原因
该工程地下室在主体结构完成后,已基本停止地下室四周的降水措施,当暴雨突发时,未能采取有效的排水降水措施,使得地下水位急剧上升,地下水浮力增大。
4.2 破损机理分析
(1)事故发生时,该工程地上结构已基本施工完成,故高层建筑、多层建筑能够抵抗增大的地下水浮力;而中庭纯地下室尚未覆土,无法靠自重抵抗地下水的上浮力,故导致其出现上浮。
同时,在地下水排泄和补给循环作用下, 地下室独立柱基础下部部分砂卵石层已被冲刷并随之流走,使得部分钢筋混凝土柱产生下沉应力,继而导致钢筋混凝土柱、梁在竖向拉应力的作用下产生环形水平裂缝和斜裂缝;同时这也是该工程地下室部分抗水板产生沿钢筋混凝土柱脚的斜向裂缝或围绕柱脚的环形裂缝的主要原因。
(2)该工程地下室抗水板板面钢筋的保护层厚度过大,在增大的地下水上浮力作用下,大大削弱了抗水板的柱上板带和跨中板带的抗弯承载力,致使该工程地下室抗水板局部抗浮失效,从而出现大量的钢筋混凝土柱间、抗水板跨中水平直线裂缝。
(3)该工程地下室部分抗水板板面出现的不规则裂缝。此类裂缝的产生主要系在浇筑混凝土的过程中,由于混凝土施工原因(如干缩和收缩等)综合作用所致。此类裂缝为非受力裂缝。
处理措施
根据上述检测分析结果可知,该工程地下室结构构件受损的主要原因是抗浮失效引起。目前处理上浮事故的常用方法可归纳为“放”与“抗”两种方法。“放”是通过降低所处的水压环境,从而消除地下浮力对地下室底板的影响;“抗”是通过相应措施以提高结构的抗浮能力。
本工程采用“放”与“抗”相结合的方法并分三步进行处理:首先,采取开孔疏导方法进行“泄压”,并在地下室四周布置降水井降水。整个排水降水的过程直到地下室顶板覆土完成后方可停止;
其次,待纯地下室归为稳定后,依据相关加固标准,对受损的抗水板、框架柱梁构件进行加固或修复处理,避免后续加载对构件造成二次损伤;最后,在抗水板上均匀布置抗浮锚杆,以增强地下室抗水板的局部抗浮能力。
经上述处理后该工程至今使用良好,再未出现因地下水浮力引起的结构构件损伤问题,达到预期效果。

12、检验批的划分、容量及抽样总结!附76个常用检验批验收表!
15、资料员、施工员、技术员请注意!三分钟搞懂施工技术资料编制重难;
猜你喜欢:
3、助力2018安全生产月,这100份安全资料合集值得入手(可下载)
加入我们
投稿展示或者分享资料
一起交流一起成长
扫一扫下方二维码,灵感即刻进
官方微信或qq:483972950
官方qq群:343778875 或648915172




