提示点击↑上方"土木工程资源共享"关注加入
点我资料免费下
【重磅福利】
1.土方基础阶段安全
1.1 土方作业
1、基坑通道采取人车分流。
2、车型通道侧面应根据现场实际情况进行放坡,防止车道发生坍塌,并在车道边设置彩旗.防护等警示标志物。
3、人行通道可分为全钢标准节定制式和钢管搭设两种形式。

1.2 基础施工
1、基坑周边1.2m范围内不得堆载,3m以内限制堆载。
2、坑边严禁重型车辆通行,当支护设计中已考虑堆载和车辆运行时,必须按设计要求进行,严禁超载。
3、在基坑边1倍基坑深度范围内建造临时住房或仓库时,应经基坑支护设计单位允许,并经企业负责人.工程项目总监批准。

1、基坑排水沟设置在防护栏杆外侧采取有组织排水。
2、防护栏杆靠基坑侧满挂密目安全网,在醒目处悬挂“当心坠落” 安全警示标志,并设置夜间警示灯。
3、基坑开挖深度超过2米时,必须搭设基坑临边防护栏杆。
4、防护栏杆下部设置180mm高挡脚板,防护栏杆的水平杆.立杆以及挡脚板刷警示色。


2.脚手架
2.1 落地式脚手架
1、脚手架搭设应符合标准规范要求 ,每隔3层或10m设置一道200mm宽警示带,固定于立杆外侧,剪刀撑应连续设置,横杆露出架体外立面长度为100mm。
2、颜色:脚手架钢管表面涂刷油漆,剪刀撑和警示带表面涂刷警示漆,脚手架内侧满挂绿色密目安全网,安全网封闭严密,张紧.无破损,颜色新亮。

警示带示意图

立面防护示意图
1、落地式外脚手架基础应垫平夯实,在基础上沿外脚手架长度方向设置垫板,垫板材质可采用木脚手板或槽钢垫板等。
2、在立杆下部200mm处设置纵横向扫地杆,纵向扫地杆在上,横向扫地杆在下,均与立杆相连。
3、脚手架四周设置排水沟,采取有组织排水。
4、脚手架立杆基础不在同一高度时,必须将高处的纵向扫地杆向低处延长两跨与立杆固定,高低差不大于1m,靠边坡上方的立杆轴线到边坡的距离不应小于500mm。

底部做法

正立面图

纵横向扫地杆构造示意图

剖面图
1、每道剪刀撑宽度不应小于4跨,且不应小于6m ,斜杆与地面夹角为45°~60°。杆件接长采用搭接,搭接长度不应小于1m,应采用不少于三个扣件固定,端部扣件的边缘至杆端距离不应小于100mm 。剪刀撑的两根斜杆均与立杆或相近的小横杆相连。
2、剪刀撑斜杆应用旋转扣件固定在与之相交的横向水平杆的伸出端或立杆上,旋转扣件中心线至主节点的距离不应大于150mm。
3、高度在24m及以上的双排脚手架应在外侧全立面连续设置剪刀撑;高度在24m以下的单.双排脚手架,均必须在外侧两端.转角及中间间隔不超过15m的立面上,各设置一道剪刀撑,并应由底至顶连续设置。
4、一字型.开口型双排架两断口必须设置横向斜撑,24米以上架体在架体拐角处及中间每六跨设置一道横向斜撑。
5、横向斜撑应在同一节间,由底到顶呈“之”字型布置,斜撑交叉和内外大横杆相连到顶。

24米以下外架立面布置图

脚手架断开处“之”字型设置

24米以上外架立面布置图

架体层间防护
脚手架必须按楼层与结构拉接牢固。连墙件的布置应符合下列规定:
1、宜靠近主节点设置,偏离主节点的距离不应大于300mm。
2、应从底层第一步纵向水平杆处开始设置,当该处设置有困难时,应采用其它可靠措施固定。
3、间距水平距离不大于6m,垂直距离不大于4m。
4、当采用钢管抱柱形式时,不能满足拉接安全距离,采用预留孔洞钢管固定形式与脚手架进行拉接(如图所示)。
5、外脚手架拉结点部位悬挂“拉结点禁止拆除”明显标牌(如图所示)。


2.2 悬挑式脚手架
1、悬挑脚手架搭设前,必须编制专项施工方案,方案必须包含悬挑梁平面定位布置图。分段搭设高度超过20m的组织专家对方案进行论证。
2、钢梁截面尺寸应经设计计算确定,不小于16号工字钢。
3、脚手架钢管表面涂刷油漆,剪刀撑和警示带表面涂刷警示漆,脚手架内侧满挂绿色密目安全网,安全网封闭严密,张紧.无破损,颜色新亮。
4、脚手架架体及悬挑梁固定符合规范要求,架体底层应采用硬质防护封闭,每隔3层或10m设置一道 200mm高警示带,固定于立杆外侧, 横杆露出架体外立面长度为100- 500mm。

悬挑脚手架构造效果图

内部底面实景图

悬挑脚手架实景图

架体层间防护
1、悬挑钢梁与U型螺栓进行固定,间隙应用钢楔或硬木楔楔紧;U 型钢筋拉环或锚固螺栓应预埋至混凝土梁.板底层钢筋位置,并应与混凝土梁.板底层钢筋焊接或绑扎牢固。
2、脚手架底部应按规范要求沿纵横方向设置扫地杆,悬挑梁上表面应加焊钢筋以固定立杆,在横杆上方沿脚手架长度方向铺设木枋,并满铺模板进行防护。
3、脚手架底部立杆内侧应设置高度不小于180mm挡脚板;挑架底部满铺脚手板,脚手板下方挂设大眼安全网,第一道挑架底部须采用竹胶合板对底部进行全封闭包边,必须保证挑架内排立杆与外墙面间实现全封闭防护。
4、杆件搭设及防护同前述落地式外架。

悬挑架防护及固定示意图

悬挑钢梁U 型螺栓固定构造

悬挑脚手架构造示意图
2.3 操作架
1、绑扎超过2m以上的钢筋,必须由专业架子队伍搭设标准操作架。
2、绑扎钢筋柱体操作架要求整体稳固,下方设扫地杆,四面设置斜撑,斜撑落地。绑扎墙体钢筋操作架要求立杆间距小于2米,架体应与结构进行拉接,外立面设置抛撑进行加固措施。
3、操作架作业面必须满铺脚手板,并进行固定,严禁有探头板.飞跳板。周围设置护身栏杆,并悬挂密目网。钢管表面涂刷油漆,剪刀撑和警示带表面涂刷警示漆。

钢筋绑扎操作架样板

模板作业面安全防护示意图

钢筋绑扎操作面实景图
1、直梯高度不大于3m;人字梯高度不大于2m。
2、成品梯子必须由正规厂家生产,具备产品生产合格证。
3、加工制作木梯的材料要使用结实无疖的木料,做梯子木方的截面要有足够承载的负荷力。(梯梁截面不得小于40mm×30mm)
4、梯阶的距离不应大于30cm,截面不得小于30mm×20mm,梯子的踏板须嵌在梯梁上,使用钉子固定踏板的必须使用双钉以上固定,同时根据梯子高度,在适当位置的踏板下放设置斜撑,具体如图所示。
5、人字梯使用时上部夹角以35°~40°为宜,木梯连接铰链必须牢固,由穿长螺杆固定,外侧设置固定铁板,如图所示。梯子下方设足够强度麻绳作为限位措施。
6、梯脚应包橡胶或采取其它的防滑措施。梯脚底部应垫实,不得垫高使用。


精装修木梯铰链设置实景图

精装修梯子图
1、门式架及其配件的规格.性能及质量应符合现行行业标准《门式钢管脚手架》(JGJ76)的规定,并应有出厂合格证明书及产品标志。进场前必须经总包.监理单位进行验收。
2、门式架的内外两侧均应设置交叉支撑并应与门架立杆上的锁销锁牢。上.下榀门架的组装必须设置连接棒及锁臂,连接棒直径应小于立杆内径的1~2mm。
3、操作层上应连续满铺与门架配套的挂扣式脚手板,并扣紧挡板,防止脚手板脱落和松动。
4、操作层周围必须设置1.5m高的护身栏杆。
5、当门式操作架高度大于等于两个门式架时,必须采取加固措施,两侧用钢管设置斜撑。
6、当高度大于5m时,禁止使用门式操作架。
7、门式架使用严禁超过3层。

门式操作架实景图

移动操作平台安全防护示意图

制动器
2.4 附着式整体提升脚手架
1、附着升降脚手架使用单位应与具有专业资质的单位签订专业分包合同。附着式升降脚手架应采用集成式,升降脚手架底层满铺硬质防护翻板,架体外排里侧采用金属板全封闭。脚手架搭设应符合规范要求,外立面形象要求同悬挑式脚手架。
2、专项施工方案应由专业承包单位编制审批,报使用单位审核,严格控制直线段跨度不得超过7m,折线段外侧跨度不得超过5.4m。
3、整体提升脚手架安装后,安装单位应进行自检。工程项目的监理单位代表.施工单位和安装单位的技术负责人组成验收组,共同进行验收.签字,出具验收意见。
4、每次升降前后,施工.安装单位必须对安全装置.保险设施.提升系统进行全面检查,符合要求并履行签字手续后,方可作业使用。

附着升降式脚手架实景图

附着升降式脚手架底部翻版实景图
1、竖向主框架所覆盖的每一个楼层处应设置一道附墙支座,升降状态时应保证三道附墙支座。
2、架体的水平悬桃长度不得大于2m,且不得大于跨度的1/2;架体悬臂高度不大于6m且不得大于2/5架体高度。
3、附墙支座应采用锚固螺栓与建筑物连接,受拉螺栓的螺母不得少于两个或采用弹簧垫圈加单螺母,螺杆露出螺母端部的长度不应小于3扣,并不得小于10mm,垫板尺寸应由设计确定,且不得小于100×100×10mm。
4、附墙支座支撑在建筑物上连接处砼强度应按设计要求确定,且不得小于C10。

与墙体连接


1、卸料平台不得与附着升降式脚手架各部位或各结构构件相连,其荷载应直接传递给工程结构。
2、安全装置必须有防倾覆.防坠落和同步升降控制安全装置。防坠落装置应设置在竖向主框架处并附着在建筑结构上,每一升降点不得少于1个防坠装置,在使用和升降情况下都必须起作用,防坠落装置采用机械式的全自动装置,严禁使用每次升降都需要重组的手动装置。防坠落装置技术应能除满足承载能力要求外,还应符合整体式升降架制动距离≤80mm,单片式升降架制动距离≤150mm。
3、附着升降式脚手架应设置监控升降的控制系统,通过监控各升降设备间的升降差或荷载来控制架体升降,该系统应具有升降差.超限或超载,欠载报警停机功能。

防坠装置示意图

同步控制装置示意图

底部封闭防护示意图
2.5 工具式脚手架
1、悬挑式卸料平台必须使用定型化。
2、卸料平台须经设计计算方可制作,须编制方案方可安装使用。
3、卸料平台应采用型钢焊接成主框架,主挑梁必须为工字钢,两侧应分别设置前后两道斜拉钢丝绳。
4、卸料平台防护高度为1.5m。


1、卸料平台底部应用钢板焊接固定,与外架之间的间隙也应封闭良好。
2、卸料平台两侧面设置固定的防护栏杆,其立杆与主挑梁焊接固定。
3、防护栏杆内侧采用钢板封闭,并挂设限载标识牌。
4、外架平台处的横杆应采用搭接方式,以便拆改后,卸料平台能顺利安装和使用。卸料平台不应对脚手架杆件造成挤压。
5、卸料平台在使用过程中,应将两侧及上方用模板竖向封闭,防止杂物坠落。
6、卸料平台每次安装后均应进行验收,并作好记录。
7、卸料平台钢丝绳的固定采用如图所示方式,绳卡间距不得小于钢丝绳直径的6倍,工作绳卡数量不得少于3个,应在钢丝绳尾加一个安全绳卡,绳卡滑鞍放在钢丝绳工作时受力的一侧。

限载标识牌

实景图

悬挑式钢平台墙体吊环节点做法
2.6 模板支架
1、钢管规格.间距.扣件应符合设计要求。每根立柱底部应设置底座及垫板,垫板厚度不得小于50mm。在立柱底距地面200mm高处,沿纵横水平方向应按纵下横上的程序设扫地杆。
2、当立柱底部不在同一高度时,高处的纵向扫地杆应向低处延长不少于两跨,高低差不得大于1m,立柱距边坡上方边缘不得小于0.5m。
3、基土应坚实,并应有排水措施。对湿陷性黄土应有防水措施;对特别重要的结构工程可采用混凝土.打桩等措施防止支架柱下沉。对冻胀性土应有防冻融措施。
4、当满堂或共享空间模板支架立柱高度超过8m时,若地基土达不到承载要求,无法防止立柱下沉,则应先施工地面下的工程,再分层回填夯实基土,浇筑地面混凝土垫层,达到强度后方可支模。


1、立柱接长严禁搭接,必须采用对接扣件连接,相邻两立柱的对接接头不 得在同步内,且对接接头沿竖向错开的距离不宜小于500mm,各接头中心距主 节点不宜大于步距的1/3。
2、钢管立柱顶部应设可调支托,U型支托与楞梁两侧间如有间隙,必须楔紧,其螺杆伸出钢管顶部不得大于200mm,螺杆外径与立柱钢管内径的间隙不得大于3mm,安装时应保证上下同心。
3、钢管立柱的扫地杆.水平拉杆.剪刀撑应采用Φ48.3mm×3.6mm钢管,用扣件与钢管立柱扣牢。
4、碗扣式立杆应根据所承受的荷载选择立杆的间距和步距,底层纵.横向 横杆作为扫地杆距地面高度应小于等于350mm,严禁施工中拆除扫地杆,立柱 应配置可调底座或固定支座。
5、碗扣式立柱上端包括可调螺杆伸出顶层水平杆的长度不得大于700mm。
6、禁止模板支撑与脚手架相连。


1、满堂模板和共享空间模板支架立柱,在外 侧周圈应设由下至上的竖向连续式剪刀撑;中间 在纵横向应每隔10m左右设由下至上的竖向连续 式的剪刀撑,其宽度宜为4~6m,并在剪刀撑部位的顶部.扫地杆处设置水平剪刀撑。剪刀撑杆 件的底端应与地面顶紧,夹角宜为45°~60°。
2、当建筑层高在8~20m时,除应满足上述规 定外,还应在纵横向相邻的两竖向连续式剪刀撑之间增加之字斜撑,在有水平剪刀撑的部位,应在每个剪刀撑中间处增加一道水平剪刀撑。在最顶步距两水平拉杆中间应加设一道水平拉杆。


3.安全防护
3.1 洞口防护
1、楼板.屋面和平台等面上短边尺寸小于500mm的洞口,采用盖板方式防护,短边尺寸在500-1500mm之间的洞口,采取预留钢筋网片加盖板方式防护。
2、采用盖板防护,盖板应坚实,盖板与洞口外沿搭接长度不小于100mm,盖板应保持四周搁置均衡,并用铁钉将盖板与卡固在洞口上的木方钉牢,防止盖板移位。
3、盖板上表面刷警示漆和 “严禁挪移”字样。


1、形式一:洞口四周用钢管搭设防护栏杆,第一道栏杆距楼面1200mm,第二道栏杆距楼面700mm,立杆高度1300mm,栏杆表面刷警示油漆;防护栏杆外侧满挂密目安全网,防护栏和密目网外侧悬挂安全警示标。
2、形式二:洞口四周使用工具式防护栏杆,孔洞中间设置水平安全网,若洞口尺寸过大,无法设置水平安全网的,应采取硬质防护措施,并刷警示漆,水平洞口工具式防护栏杆形式详见标准化定型式临边防护。


1、后浇带板面上采用钢板(或模板)全封闭并固定牢固,板面刷警示漆;两侧设砂浆挡水坎,挡水坎应平直美观。
2、后浇带的设置应避开施工车辆运输通道,如无法避让,则必须制定专项支撑方案。


3.2 临边防护
1、对于窗台等竖向洞口高度高于0.5m且低于0.8m的临边,可以采用一道横杆(栏杆离地1.2m)进行防护;其他情况采用两道横杆进行防护;端部采用专用连接件(单边扣件或铸铁式防护配件)进行固定。
2、钢管表面涂刷油漆警示,并张挂“当心坠落”等安全警示标志牌。



1、电梯井口防护材质同楼层临边防护,应采用网片式或格栅式两种类型。
2、防护栏高为1.5m,宽度根据现场实际情况确定。
3、防护门采用四角固定方式,并采用内嵌式固定方式,不得采用翻转式防护门。在防护门底部安装不低于180mm高踢脚板,防护门外侧张挂“当心坠落”安全警示牌。


1、电梯井道首层应设置双层水平安全网,首层以上和有地下室的电梯井道内,每隔两层且不大于10m 增设一道水平安全网。
2、电梯井道水平安全网安装应使用钩头螺栓,钩头螺栓用HPB300-φ16 以上圆钢冷弯加工,电梯井内每根钢管两端对称分别设置不少于 2 个钩头螺栓固定。
3、钩头螺栓禁止施工现场自行加工。

1、电梯井道层间需要做水平封闭处理时,可以采取预埋钢筋的方式,钢筋间距及型号不得低于楼板配筋要求,并满足与四周墙体的锚固要求。
2、电梯井道层间需要做水平封闭处理时,也可以采用预埋PVC套管,使用钢管做支撑并满铺模板。
3、水平封闭层禁止堆放任何材料或做其他额外荷载。

1、 防护栏杆采用钢管搭设时,防护采用三道栏杆形式,第一道栏杆高度1200mm,第二道高度600mm,立杆间距不大于2000mm,内侧满挂密目安全网,下设180mm 高挡脚板。
2、防护栏杆及挡脚板刷警示漆。
3、防护栏杆和密目安全网内侧悬挂安全警示标识。


1、基坑边、楼层临边、阳台临边、中庭及采光井临边采用标准化定型防护栏杆。
2、标准化定型式防护栏杆有网片式和格栅式两种。格栅立杆间距≤125mm,网片网 眼尺寸≤30×30mm,挡脚板高度≥180mm。
3、立柱采用40×40×2.5mm方钢,在上下两端250mm处各焊接50×50×6mm的耳板,立杆统一使用坚向长孔耳板,横向围栏统一使用横向长孔耳板,两道连接板采用10mm螺栓固定连接。
4、防护栏外框采用30×30×2.5mm方钢,每片高1200mm.宽1900mm,下部内外两侧加200mm高钢板作为挡脚板,中间采用钢板网,钢板网张挂“当心坠落”安全警示标牌。

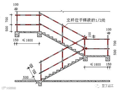
1、分层施工的楼梯口和梯段,应安装临时防护栏杆和档脚板,独立楼梯,若两边均无有效遮挡,两边均应设置防护栏。
2、如楼梯外侧需要挂设安全网则防护栏杆应搭设三道,第一道离地1200mm,第二道离地700mm,第三道离地200mm,立杆高1300mm,间距不大于2000mm。
3、防护栏杆和挡脚板均涂刷安全警示漆。


1、分层施工的楼梯口和梯段边,必须安装临时防护栏杆。
2、防护栏杆应为两道横杆,上杆距地面高度应为1.2m,下杆设置在中间位置,立杆间距不大于2m。
3、若楼梯两边均无有效遮挡,则两边均应设置防护栏杆,防护栏杆和挡脚板均涂刷安全警示漆。


3.3 其他防护
1、马道应满铺脚手板,脚手板设置防滑木条。
2、马道宽度不小于1m,立杆间距不大于1200mm,坡度值采用1:3,休息平台宽度不应小于斜道宽度,运料斜道宽度不宜小于1500mm,坡度值采用1:6,马道两侧应设置挡脚板和双道防护栏杆(上道栏杆高度1200mm,中间栏杆居中设置)挡脚板高度200mm,栏杆和挡脚板表面刷警示漆。
3、马道两侧挂密目安全网封闭,内侧悬挂安全提示牌,马道的侧立面应设置剪刀撑。
4、宜采用工具化钢爬梯。



1、在塔吊回转半径和建筑物周边的安全通道必须设置双层硬质防护,必须设置在便于通行的位置。
2、安全通道长度应依照坠落半径进行设置。
3、安全通道顶部张挂安全警示标识和安全宣传用语的横幅,内侧悬挂“安全展板”。
4、安全通道应因地制宜,充分考虑当地风荷载.雪荷载等情况。

钢管扣件式防护

定型化式防护

1、高处作业人员应按规定系安全带,其质量和安全性能应符合现行国家标准《安全带》(GB6095)的规定。安全带 应有制造厂名称.生产日期.伸展长度.许可证号.检验部门批量验证和检验合格证。
2、不同形式的安全带的使用应符合相关规定要求,悬挂点应牢固,并遵循“高挂低用”的使用要求。
3、安全带需要定期检查保养,严禁使用不满足安全使用要求的防护用品。



4.临时用电
4.1 临时用电基本要求
1、施工现场临时用电设备在5台及以上或设备总容量在50KW及以上,应编制临时用电组织设计,并进行审核.审批,监理审查。
2、施工现场临时用电必须采用TN-S系统,符合“三级配电.两级保护”,达到“一机一闸一漏一箱”的要求;三级配电是指总配电箱.分配电箱.开关箱三级控制,实行分级配电。
3、施工现场临时用电必须建立安全技术档案,临时用电应定期检查,应履行复查验收手续,并保存相关记录。
4、电工必须持证上岗,安装.巡查.维修或拆除临时用电设备和线路必须由电工完成。

4.2 外电防护
1、在建工程不得在外电架空线路正下方施工.搭设作业棚.建造生活设施或对方构件.架具.材料及其他杂物等。
2、在建工程(含脚手架)的周边与外电架空线路的边线之间的最小安全操作距离应符合规范要求。当安全距离达不到规范要求时,必须采取绝缘隔离防护措施。
3、在施工现场一般采取搭设防护架,其材料应使用木质等绝缘性材料。防护架距外电线路一般不小于1m,必须停电搭设. 拆除。防护架距作业面较近时,应用硬质绝缘材料封严,防止脚手架.钢筋等穿越触电。
4、当架空线路在塔吊等起重机械的作业半径范围内时,其线路上方也应有防护措施,应计算考虑风荷载.雪荷载。为警示起重机作业,可在防护架上端间断设置小彩旗等,夜间施工应有警示灯,其电源电压应为36V。


4.3 配电线路
1、电缆线路应采用埋地或架空敷设,严禁沿地面明设;埋地电缆路径应设方位标志;电缆直接埋地敷设的深度应大于 0.7m,并应在电缆周围均匀敷设不小于50mm厚的细沙,然后覆盖砖或砼板凳保护。
2、埋地电缆穿越建筑物.道路.易受到机械损伤,必须加设防护套管,防护套管内径不应小于电缆外径的1.5倍。
3、电缆架设高度不得低于2.5米高度。
4、电缆需要沿地面敷设时,需要做好防护盖板,并刷警示漆。



4.4 重复接地
1、每一接地装置的接地线应采用2根及以上导体,在不同点与接地体做电气连接。垂直接地体宜采用2.5m长角钢.钢管或光面圆钢,不得采用螺纹钢;垂直接地体的间距一般不小于5m,接地体顶面埋深不应小于0.5m。
2、接地体上的接线端子处宜采用螺栓焊接。
3、接地线与接地端子的连接处宜采用铜鼻压接,不能直接缠绕。
4、保护零线必须采用绿/黄双色线,不得采用其他线色取代。塔吊等大型设备的接地体引出扁钢应采用螺栓将其与标准节相连接,不得将引出扁钢焊接在标准节上破坏塔吊主体结构。
5、工作接地电阻≤4Ω;重复接地电阻≤10Ω;防雷接地电阻≤30Ω。

4.5 照明
1、一般场所宜选用额定电压为220V的照明,照明灯具宜采用冷光源,安全节能。
2、室外220V灯具距离地面不得低于3m,室内220V灯具距离地面不得低于2.5m,推荐使用LED灯带照明。
3、在高温.有导电灰尘.比较潮湿或者灯具距离地面高度低于2.5m等场所的照明,电源电压不应高于36V。
4、特别潮湿场所.导电良好的地面照明,电源电压不得高于12V。
5、照明灯具的金属外壳必须与PE线相连接,照明开关箱内必须设置隔离开关.短路与过载保护器和漏电保护器。
6、普通灯具与易燃物距离不宜小于300mm;严禁使用碘钨灯照明。
7、地下室.户外灯恶劣条件作业时,宜使用移动LED照明灯。



4.6 总配电箱及分配箱
1、配电室应靠近电源,并设置在灰尘少.潮气少.无腐蚀介质及道路通畅的地方。
2、配电室应能自然通风,并应采取防止雨雪侵入和动物进入的措施,如在塔吊作业覆盖范围内时,应搭设防护棚,做法同现场配电箱防护棚。
3、配电室的建(构)筑构的耐火等级不低于3级,室内配置砂箱和可用于扑灭电气火灾的灭火器。
4、总配电室门应朝外开,室内应配置挡鼠板.消防器材.绝缘橡胶垫.应急照明.“禁止合闸”牌.操作规程及责任公示牌等。
5、总配电箱.分配电箱应设置配电箱防护棚,防护棚正面悬挂操作规程牌.警示牌,防护棚内放置干粉灭火器。

4.7 用电设备
1、设备开关箱箱体中心距地面垂直高度不低于1.4m。
2、设备距开关箱水平距离不得大于3m。
4、电焊机一侧电源线长度不应大于5m,二侧焊把线长度不应大于30m,并保持两侧防护齐全。
5、电焊机外壳应做保护接零并设置防雨措施。
6、电焊机应设置电焊机专用开关箱,交流电焊机专用箱内应包含隔离开关.漏电开关以及二次侧触电保护器。


5.机械设备
5.1 塔吊
1、建议选用出厂时间不超过5年的设备。
2、设备关键工序作业前必须根据国家和地方规定办理安拆告知手续,安装完毕后须经第三方检测合格.四方验收, 使用前必须取得准用证书。
3、门尺寸为1900×1200mm,内外上锁。
4、为防止非操作人员攀爬塔吊,在塔吊基础周围采用型钢制作工具式防护栏围挡。
5、塔吊设置在地下室的,要求周边砌筑500mm高围挡,围挡与塔节间用钢管做龙骨架,外加模板予以覆盖,避免塔基积水。


1、塔 吊 附 墙 位 置 需 要 搭 设 操 作 平 台 , 设置 1200mm高防护栏杆,刷警示油漆,四周挂密目网。
2、尺寸为:4000×4000mm,高度1200mm。



1、塔吊加节和附着必须编制专项方案,经审批通过后方可实施;
2、锚固点应设置在承重柱梁与剪力墙上,不能设置在砖墙.空心板墙.阳台或建筑物的其他附属 物上;
3、塔吊附着过程中禁止擅自使用非原制造厂制造的附着装置;附着杆件与建筑物连接处必须确保强度满足要求;
4、附着构件应有厂家出具的设计计算书.制作图.合格;
5、塔吊附着.顶升后应由使用单位组织出租(产权).安装.监理单位进行联合验收,形成书面验收单;



1、绳卡间距不得小于钢丝绳直径的6倍。
2、工作绳卡数量不得少于3个。
3、应在钢丝绳尾端加一个安全绳卡。
4、绳卡滑鞍放在钢丝绳工作时受力的一侧, U型螺栓扣在钢丝绳的尾端。
5、当钢丝绳的端部采用编结固接时,编结部分的长度不得小于钢丝绳直径的20倍,并不应 小于300mm。


5.2 施工升降机
1、施工升降机停层平台支承架体应单独设置,不得与外脚手架连接;平台应搭设稳固平整.楼层门与平台的间隙不得大于 100mm.平台两侧应设置不小于1.2m的工具式围栏或钢管栏杆.200mm的档脚板;平台处应设置夜间照明.安全警示语。
2、施工电梯平台脚手架两侧应设置之字形斜撑,立杆 内侧满挂密目安全网,所有水平杆伸出立杆长度一 致。



1、施工电梯平台出口安装对开式定型化防护门,防护门采用钢丝网.钢板.方钢制作,严禁使用钢管搭设.或用钢筋自制。
2、门的下沿距平台不应超过100mm,防护门上设置楼层数。
3、必须由电梯司机负责关闭防护门,之后方可启动吊笼离开。
4、当施工升降机梯笼门外边沿与楼层平台外边沿间隙过大时,应在梯笼内设置可翻转的过渡踏板;过渡踏板两侧应 设防护栏杆并采取封闭措施.强度满足人员通行要求,且与平台的搭接长度不得小于100mm。 踏板宽度不小于1300mm, 栏杆高度1200mm,底部设厚度不小于5mm的钢板,两侧设高度200mm的挡脚板。
5、严禁机动车或电动车进出施工升降机、物料提升机的吊笼进行工作。



1、施工升降机地面人行通道应设置工具式双层硬质防护棚,宜采用定型化防护棚。
2、搭设方式.各种型材.构配件规格参照安全防护通道要求。


1、施工升降机附着装置应采用配套标准产品,当附墙架不能满足施工现场要求时,应对附墙架另行设计,附墙架的设 计应满足构件刚度.强度.稳定性等要求,制作应满足设计要求,并提供合格证明。安装应符合厂家说明书或方案规定。
2、附着架支承处建筑主体结构的强度应满足附着荷载要求。
3、齿轮齿条传动式施工升降机导轨架最上一节标准节的齿条应拆除,避免梯笼冒顶。
4、应在建筑结构最顶层处设置一道附着装置,梯笼上升不得高过最上端附着装置。
5、升降机各处限位定期维护保养,保持有效。


5.3 吊篮
1、吊篮应使用厂家生产的定型产品,应有制造许可证.产品合格证和产品使用说明书。安装完毕后经验收合格后使用。
2、吊篮的架设应符合厂家说明书的规定,悬挂机构设置楼层的承载力应满足要求。
3、每班作业前,应重点对配重及安全装置等进行测试检查。
4、吊篮的提升机各安全装置应可靠灵敏.安全锁应在有效的检定期内;应在建(构)筑物上方设置独立牢靠的安全绳, 安全绳应配备自锁器;安全绳与建筑物应弹性接触,防止磨损。
5、吊篮不得用作运送材料,每台吊篮载员人数严禁超过2人。
6、相邻2台吊篮不得在竖向存在不等高施工,避免交叉作业。严禁将吊篮用作垂直运输设备。严禁作业人员从窗户.洞口 上下吊篮(首层除外)。


1、吊篮安装作业前,必须编制专项安装及使用方案,并报总包.监理单位审核通过。
2、电动吊篮应严格遵照产品使用说明书要求进行安装。
3、 保护钢丝绳底部应安装重锤 ,并保证重锤离地150~200mm 。
4、设置独立安全绳,且应固定在主体结构上。
5、安全钢丝绳.工作钢丝绳必须设置于独立的连接销基础上。


1、吊篮操作平台四周应设置挡脚板。
2、吊篮经验收后,需在篮体上张挂吊篮验收牌. 操作规程.吊篮标牌,各类标识牌必须统一设计制 作,具备较好的防雨、防晒特性。
3、每台吊篮必须设置一组合格灭火器,并做好固定措施。


5.4 物料提升机
1、井架物料提升机的安装.使用.拆除应执行《龙门架及井架物料提升机安全技术规范》(JGJ88)的规定。
2、用于物料提升机的材料.钢丝绳及配套零部件产品应有出厂合格证。起重量限制器.安全防坠器应经试验合格。
3、各停层平台处,应设置显示楼层的标志。
4、物料提升机的制造商应具有特种设备制造许可证资格。安装.拆除单位应具有起重机械安拆资质及安全生产许可证;安装.拆除作业人员必须经专门培训,取得特种作业资格证。
5、物料提升机必须由取得特种作业操作证的人员操作,物料提升机严禁载人。
6、停层平台独立搭设,平台门高不小于1.8m,平台门应向停层平台内侧开启,并处于常闭状态的操作空间。



6.消防安全
6.1 临时消防水系统
1、临时用房建筑面积之和大于1000㎡或在建工程单体体积大于10000m³时,应设临时室外消防给水系统。
2、建筑高度大于24米或单体体积超过30000m³的在建工程,应设置临时室内消防给水系统。
3、消防泵房应采用专用消防配电线路。 专用消防配电线路应自施工现场总配电箱的总断路器上端接入,且应保证不间断供电。
4、高度超过100m的在建工程,应在适当楼层增设临时中转水池及加压水泵。 中转水池的有效容积不应小于10m³,上下两个中转水池的高差不宜超过100m。
5、临时消防给水系统的给水压力应满足消防水枪充实水柱长度不小于10m的要求;给水压力不能满足时,应设置消火栓泵,消火栓泵不应少于两台,且应互为备用;消火栓泵宜设置自动启动装置,保证消防应急需求。

1、给水干管的管径不应小于DN100,支管管径不应小于DN65,材质为热镀锌钢管。
2、建筑高度大于 24m 或单体体积超过 30000㎡的在建工程,在结构施工完毕的每层楼应设置消防水枪.水带及软管,且每个设置点不应少于2套,施工电梯梯笼应配备消防水带.水枪和灭火器。
3、室外应设置消火栓,间距不应大于120m,消火栓的最大保护半径不应大于150m。



6.2 灭火器
1、每层安全通道口配备不少于2具灭火器。
2、灭火器成组配置,保持有效。
3、灭火器应高挂或者装箱存放。


6.3 动火作业
1、施工现场应建立动火审批制度,凡明火作业必须进行审批。
2、一级动火:禁火区域内;油罐.油槽车以及储存过可燃气体.易燃可燃液体的各种容器。二级动火:在具有一定火险因素的非禁火区域内进行临时性焊割作业;小型的油箱.油桶等。三级动火:凡属非固定的.没有明显火险因素的场所,进行焊割作业。
3、所有动火作业均要履行动火审批手续,包括《施工现场动火证申请书》和《施工现场动火证》。动火作业由需要动火的单位提出申请,现场总承包单位进行审批。《施工现场动火证申请书》由审批单位留底备查,动火人持《施工现场动火证》作业。
4、《施工现场动火证申请书》和《施工现场动火证》编号应一致。
5、作业时应按规定设看火监护人员,作业后必须确认无火灾危险后方可离开。

6.4 易燃易爆品
1、氧气.乙炔瓶应分开单独存放,存放场所必须符合防火要求且需设置“严禁烟火”标识。
2、提升气瓶时,应使用专用吊笼或装物架,不得使用钢丝绳或链条吊索绑扎调运;当用起重机吊装气瓶时,严禁使用电磁起重机和链绳。
3、气瓶需设置两个防震圈.防震帽.乙炔瓶回火阀应配置齐全。
4、气瓶推车适用于单个氧气.乙炔气瓶的临时存放与搬运。
5、应设置防暴晒措施,氧气瓶乙炔瓶间距大于5m,距明火大于10m。

12、检验批的划分、容量及抽样总结!附76个常用检验批验收表!
15、资料员、施工员、技术员请注意!三分钟搞懂施工技术资料编制重难;
猜你喜欢:
3、助力2018安全生产月,这100份安全资料合集值得入手(可下载)
加入我们
投稿展示或者分享资料
一起交流一起成长
扫一扫下方二维码,灵感即刻进
官方微信或qq:483972950
官方qq群:343778875 或648915172

源自 | 网络资料整理


