提示点击↑上方"土木工程资源共享"关注加入
点我资料免费下
【重磅福利】
1
结构与室内装修部分
地下室底板或顶板翻边
01 施工控制节点

节点施工说明:
由于商品混凝土坍落度大,在进行地下室底板或顶板翻边部位施工时,振动棒振捣使混凝土流座到底板,施工人员往往少振或不振捣,导致混凝土不密实,因此形成渗漏薄弱点。
节点施工要求:
针对该部位翻边混凝土,要求其坍落度达到3-5cm时,再进行二次振捣,确保该处混凝土密实。同时,重点关注该部位的防水施工控制。
02 施工控制节点
质量缺陷:
针对大面积车库底板、顶板、平屋面因商品混凝土坍落度大而产生的毛孔及收缩裂缝,导致结构渗漏水现象。
控制缺陷的工艺要求:
浇捣时采用二次振捣,机械磨平工艺施工,能控制结构板裂缝及渗漏水缺陷通病。
结构柱脚漏浆处理方案:





结构柱钢筋偏位处理:

注:若地下室柱钢筋在柱外偏位时,可以不弯柱筋,将柱尺寸适当加大将柱筋包入混凝土内。
非常规填充墙封顶:

注:
1.本节点适用于中间一层精装修样板施工,其余尚未开始墙体砌筑;
2.样板房墙体砌筑时应将上层墙体砌筑但不允许封顶,以防止上部梁结构受力变形影响样板房的墙体;
3.如果中间结构分两次验收时,填充墙砌筑分界层也应按此节点施工。
03 独立基础高低差施工处理节点:

说明:基础距基底持力层边坡距离应不小于500,坡角不大于45度。

04 地下车库地坪伸缩缝节点

说明:
1)本节点适用于地下车库找平层厚度达到或超过80mm的情况。
2)地下车库找平层地面伸缩缝用泡沫板分隔,板上部预留30-50mm浇筑混凝土;
3)地下车库地坪混凝土应控制坍落度,且需采用二次振捣(坍落度在3-5cm时第二次振捣)、机械磨平。
05 阳台翻边与栏杆高度节点

说明:
1)在扶手栏杆内侧做企口,高差不小于20。
2)设置阳台栏杆高度时,要预留出精装修饰面高度,在精装修完成地面计算栏杆高度。
06 轻质加气混凝土砌块与梁柱交接节点

说明:
1)为控制轻制质砌块墙体体水泥砂浆粉刷层产生空鼓、裂缝,不用水泥砂浆粉刷,直接采用专用腻子或粉刷石膏腻子批面;
2)砌筑墙体垂直度控制在3mm以内。

2
屋面部分
01 油毡瓦做法
油毡瓦施工工艺说明:
1)屋面基层面找平应严格按照规程操作,不得出现空鼓、起壳等现象,找平面宜用铁板压平,脊与脊表面平整度应控制在10mm以内,油毡瓦铺钉前找平层应符合干燥及强度要求。
2)屋面阴、阳角线应保持顺直,所有屋面阴、阳屋脊线处均应做成圆弧状,并保持平滑。
3)屋面卷材防水层铺贴应平整牢固,无起鼓脱开现象,搭接符合规范要求。
4)屋面防水施工完成后,应选用植筋方案将Ф6@1500-2000网点式钢筋植入钢筋混凝土内,要求植入钢筋与防水层交接处密封处理。

5)油毡瓦屋面与突出屋面部分交接处均应做泛水处理,可沿屋面坡度做通长挡水线,并在挡水线下做老鹰嘴(见图2),油毡瓦屋面与突出屋面管道交接处做法(见图3)。


6)油毡瓦铺设前,应在屋面板面弹线放样,如发现檐口与相应脊线不完全平行,则应弹线放样时均匀调整。
7)油毡瓦铺钉应与基层紧贴,瓦面应平整,自檐口向上铺设,第一层应与檐口平行,油毡瓦应用油毡钉固定。
8)铺设油毡瓦脊瓦时,脊瓦与脊瓦之间的搭盖应保证压盖后外露面为油毡瓦有效外露面(见图4、5) 。


9)当采用成品塑料檐沟时,油毡瓦宜挑出20-30mm,人字屋面出檐(如老虎窗部位)部位油毡瓦宜挑出10mm(见图6、7)。
10)油毡瓦与油毡瓦水平错缝搭盖时,错缝搭接水平长度不小于200mm(见图7)。
11)铺钉油毡瓦第二层应与第一层叠合,切槽应向下并指向檐沟。第三层油毡瓦部分压在第二层油毡瓦上,并保证第二层油毡瓦露出切槽140㎜(见图7),第三层油毡瓦及以上部分油毡瓦做法依此类推。


12)油毡瓦所有固定用专用油毡钉必须钉平、钉牢。大面严禁钉帽外露油毡瓦表面。每片油毡瓦不应少于4个油毡钉,当屋面坡度大于45度时应适当增加钉数量。
13)坡屋面伸缩缝铺油毡瓦时,基层找平时向缝两边高出屋面30mm斜面翻边,用防水油膏或保温板封堵伸缩缝后,粘贴SBS防水卷材,伸缩缝处铺油毡瓦脊瓦(见图8) 。

02 平板瓦做法节点
①平板瓦施工工艺说明:
1)施工工序依次为:混凝土结构层-找平层-防水层-保温层-钢网混凝土保护层-顺水条-挂瓦条-水泥平板瓦。
2)屋面基层找平层平整度不超过20mm,施工时确保阴脊与阳脊、檐口与屋脊拉通线。
3)基层找平面用铁板压光。
4)防水层卷材铺贴从下而上竖向施工,卷材搭接符合设计和规范要求,粘结牢固,无起鼓或脱开现象。
5)钢网细石混凝土保护层与结构混凝土板用钻孔φ6植筋工艺连接,植筋钢筋与防水层结合处表面做密封处理,φ6植筋横、竖向间距为1.5~2m。
6)保温板与基层面结合可以用胶水掺水泥点粘。
7)钢丝网细石混凝土用C20塌落度<6cm,随捣随抹光,平整度不超过10mm。
8)顺水条规格40mm×10mm杉木条,间距不大于400mm,挂瓦条规格30mm×30mm杉木条,用水沥青涂刷防腐处理,用镀锌钢钉固定在钢丝混凝土上。
9)当屋面坡度>35度时,挂瓦条宜采用局部膨胀螺栓固定。

②平板瓦施工工艺说明:
1)施工工序依次为:混凝土结构层-找平层-防水层-顺水条(嵌套保温板)-挂瓦条-水泥平板瓦。
2)屋面基层找平层平整度不超过1cm,施工时确保阴脊与阳脊、檐口与屋脊拉通线。
3)基层找平面用铁板压光。
4)防水层卷材铺贴从下而上竖向施工,卷材搭接符合设计和规范要求,粘结牢固,无起鼓或脱开现象。
5)顺水条宽30mm,厚根据保温板厚度确定,间距≤400mm,用水沥青涂刷防腐处理。
6)保温板与基层面结合可以用胶水掺水点粘。
7)挂瓦条规格30mm×30mm木条,用水沥青涂刷防腐处理,用镀锌钢钉固定在钢丝混凝土上。
8)当屋面坡度>35度时,顺水条宜采用局部膨胀螺栓固定。






03 筒瓦做法节点
①筒瓦施工工艺说明:
1)施工工序依次为:混凝土结构层-找平层-防水层-保温层-钢网混凝土保护层-顺水条-挂瓦条-顺瓦条-筒瓦。
2)屋面基层找平层平整度不超过1cm,施工时确保阴脊与阳脊、檐口与屋脊拉通线。
3)基层找平面用铁板压光。
4)防水层卷材铺贴从下而上竖向施工,卷材搭接符合设计和规范要求,粘结牢固,无起鼓和脱开现象。
5)钢筋网细石混凝土保护层与结构混凝土板在防水层完成后用植筋(φ6)工艺连接,植筋钢筋与防水层结合点表面做密封处理,φ6植筋横、竖向间距为1.5-2m。
6)保温板与基层面结合可以用胶水掺水泥点粘。
7)钢丝网细石混凝土用C20塌落度<6cm,随捣随抹光,平整度不超过10mm。
8)顺水条规格40×10杉木条,间距不大于400,挂瓦条规格30×30杉木条,顺瓦条宽度30,厚度根据瓦弄净空而定,杉木条用水沥青涂刷防腐处理,用镀锌钢钉固定在钢砼上。
9)当屋面坡度>35度时,挂瓦条宜采取局部膨胀螺栓固定。

②筒瓦施工工艺说明:
1)施工工序依次为:混凝土结构层-找平层-防水层-顺水条(嵌套保温板)-挂瓦条-顺瓦条-筒瓦。
2)屋面基层找平层平整度不超过20mm,施工时确保阴脊与阳脊、檐口与屋脊拉通线。
3)基层找平面用铁板压光。
4)防水层卷材铺贴从下而上竖向施工,卷材搭接符合设计和规范要求,粘结牢固,无起鼓或脱开现象。
5)顺水条宽30,厚根据保温板厚度确定,间距≤400mm,用水沥青涂刷防腐处理。
6)保温板与基层面结合可以用胶水掺水点粘。
7)挂瓦条规格30mm×30mm杉木条,用水沥青涂刷防腐处理,用镀锌钢钉固定在钢丝混凝土上。
8)当屋面坡度>35度时,顺水条宜采用局部膨胀螺栓固定。

③筒瓦施工工艺说明:
1)施工工序依次为:混凝土结构层-找平层-防水层-保温层-钢网混凝土保护层-座浆-顺瓦条-筒瓦。
2)屋面基层找平层平整度不超过20mm,施工时确保阴脊与阳脊、檐口与屋脊拉通线。
3)基层找平面用铁板压光。
4)防水层卷材铺贴从下而上竖向施工,卷材搭接符合设计和规范要求,粘结牢固,无起鼓或脱开现象。
5)钢筋网细石混凝土保护层与结构混凝土板用结构胶钻孔植筋(φ6)工艺连接,植筋钢筋与防水层结合点表面做密封处理,φ6植筋横、竖向间距为1.5-2米。
6)保温板与基层面结合可以用胶水掺水点粘。
7)钢丝网细石混凝土用C20塌落度<6cm,随捣随抹光,平整度不超过10mm。
8)用1:1:6混合砂浆座浆铺瓦,注意避免砂浆污染瓦片。
9)面坡度>35度时,不适合本工艺。

④筒瓦施工工艺说明——工艺改进:
1)施工工序依次为:混凝土结构层-找平层-40X8顺水条-防水层-顺水条(嵌套保温板)-挂瓦条-顺瓦条-筒瓦。
2)屋面基层找平层平整度不超过20mm,施工时确保阴脊与阳脊、檐口与屋脊拉通线。
3)基层找平面用铁板压光。
4)40X8mm顺水条间距不大于400mm。
5)防水层卷材铺贴从下而上竖向施工,卷材搭接符合设计和规范要求,粘结牢固,无起鼓或脱开现象。
6)顺水条宽度30mm,厚度根据保温板厚度确定,间距≤400mm,顺水条之间嵌铺保温板,顺水条必须用水沥青涂刷防腐处理。
7)挂瓦条规格30×30mm杉木条,顺瓦条宽度30,厚度根据瓦弄净空而定,杉木条用水沥青涂刷防腐处理。
8)屋面坡度>35度时,顺水条宜采用局部膨胀螺丝固定。



04 平屋面做法节点
平屋面防水及保温标准施工节点:
本节点适用于上人屋面、非上人屋面、地下车库顶板、有保温屋面、无保温屋面。
1)基层结构混凝土面要求随捣随抹光。
2)防水施工前先将基层清理干净,涂膜防水厚度一致,无起泡起皮,翻边高度达到规范要求。
3)卷材施工前基层阴阳角做成R50圆角,达到防水层施工要求。
4)找坡层坡度达到设计要求,表面要求加水泥砂浆随捣随压光。
5)卷材施工与基层粘结牢固、无起鼓。卷材搭接和翻边高度符合规范要求,翻边处上口卷材插入混凝土保护层或粉刷层内。
6)出屋面管道及烟气道与屋面交接处作加固处理,防水按程序同步施工。
7)刚性防水施工时,细石混凝土压实必须随捣随抹光,分仓缝间距不大于4X5m分设,缝宽20mm,钢筋断开。如有地砖时,设置分仓缝可根据地砖模数设置, 要求分仓缝同地砖缝对齐留设,分仓缝处地砖缝宽度同大面一致,缝内填油膏或打胶收头。
8)每道防水层施工必须做好成品保护工作,保证每道防水的完好性。







05 天窗节点做法
地下室采光天窗

别墅地下室天窗防水施工节点:


06 游泳池防水节点做法


3
外墙装饰部分
01 面砖做法
外墙仿清水墙面砖(无外保温)节点施工工艺说明:
1)外墙面用1:3水泥砂浆底,然后用1:2.5水泥砂浆粉刷面层,粉刷层厚度≥15mm,以提高墙身自防水能力。
2)外墙面砖根据设计要求按照规格、品种、颜色及比例等进行搭配,用1:1水泥砂浆或专用粘贴砂浆粘贴,砖缝一般为8~10mm(宜为9mm)。
3)贴外墙面砖前应提早一天将墙体粉刷及面砖浇水湿润,勾缝的深度宜凹进2~3mm。禁止在雨天或墙面过湿时进行勾缝,以免今后泛碱流白浆现象。勾缝完毕后外墙面应立即用塑料薄膜覆盖进行保护,预防污染和雨淋。
4)外墙面砖阴角切割最小尺寸不得小于60mm,否则必须重新排砖。
5)勾缝宜采用半干粉或挤浆工艺施工。
6)根据设计要求,待墙面干燥后用外墙涂料进行颜色描缝。
7)根据具体情况,经有关方面协商同意后,待外墙面充分干燥后可在外墙面砖再涂刷憎水剂。

仿清水面砖排版示意图
说明:
1)在排版时,阳角砖必须大于100mm,窗间墙阳角面砖大于80mm;
2)外墙线脚下窗顶上竖砖长度控制在130-170mm之间调整;
3)外墙阳台顶下的门窗顶竖砖长度控制在120或180mm,阳台板下部预留30-60mm。


面砖阳角收头处理说明:
1)两个面的面砖在阳角交接时,交界角切割角度大于50度,拼接时必须用砂浆挤压,使交界处不留空隙;
2)两个面的面砖在阴角交接收头时留一条竖缝或不留竖缝采用砂浆挤压,必须做到交界处不留空隙。

说明:
面砖在粘贴时,在面砖与上腰线之间留出10-15mm(宜15mm),线条上涂料跟下5mm,面砖与下腰线之间留出10-20mm(宜15mm)。

面砖门窗套边节点说明:
面砖与门窗套交接处必须头缝挤浆,不留空隙。





02 干挂石材做法
干挂石材节点施工工艺说明:
1)所有骨架钢材需热镀锌处理。
2)挂扣件扁钢及螺栓需热镀锌处理或为不锈钢挂件。
3)焊缝必须饱满牢固。
4)钢架焊接处必须除锈后涂刷两道防锈漆然后涂银粉漆处理。
5)膨胀螺栓抗拔要求必须符合规范和设计要求。
6)石材短槽必须机械开槽,保证槽缝宽度符合设计要求,严禁现场手提切割机开槽。
7)不离缝石材板缝需夹胶和座胶时横竖缝内的胶浆必须饱满完整。
8)石材板面需打胶时,胶缝宽窄必须一致,胶缝边缘平滑挺直无毛边。
9)干挂石材厚度为25mm时,单块板平方面积不宜大于1平方米。
10)干挂石材厚度大于25mm时,单块板平方面积不宜大于1.5平方米。

注:
1.室外花岗岩最低处必须低于室外地坪50,预防室外地面沉降时花岗岩露边;
2.槽钢离开硬性地面20-30mm。


注:膨胀螺栓横向间距根据板材调整,但最大间距不得大于1000mm。


注:室外花岗岩窗台及线脚基层水泥砂浆粉刷坡度大于10%。
03 湿贴石材做法
湿贴灌浆花岗岩石材施工说明:
1)石材挂板用双股18#铜丝或钢丝钩与墙面固定,墙面用手提切割机从上而下或45度方向切槽缝,用钢钉插入缝内,单块石材板纵向长度大于300mm时不得少于两处挂点。
2)门窗洞及梁底朝天板应作铝片或扁铁侧面加固方案施工。

3)石材墙面设计要求打明胶时,板缝开三角槽缝或开小凹槽施工。
4)石材板内灌水泥砂浆前墙体浇水湿润,要求水泥砂浆配比不得低于 1:3,拌制完的砂浆以有较好的流动性为宜。
5)灌水泥砂浆时要求成45度方向灌实,所有腰线顶面板及压顶板严禁半干粉砂浆铺板,必须使用流动的水泥砂浆铺贴面板。





6)石材墙面打胶宽度由设计确定,胶缝宽窄一致,无毛边。
7)石材板墙面需做外保温时,不宜用湿灌浆方案施工。

注:线脚压顶板与墙体之间预留10-15mm,施工时,压顶板从外向墙根方向挤压施工,使水砂浆从该预留缝中挤出,未饱满处用原浆灌实,压顶板定位后,将挤出砂浆清理。
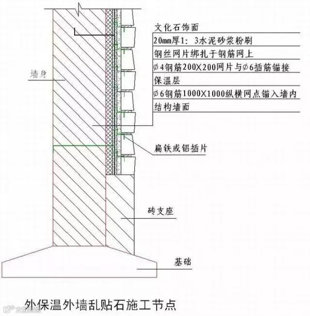
04 湿贴文化石、乱贴石做法

说明:
1)墙体为多孔砖砌体时,砌墙时预留钢筋,如未作预留,应将钢筋惯穿至室内墙面锚接。
2)墙体为混凝土面时,可选用植筋方案施工。
3)文化石饰面高度超过一层时,在二层圈梁部位增设一道钢筋混凝土支座线,如有饰面要求,可选用暗设方案施工。





05 防水改进方案
GRC装饰线改进方案说明:
1)所有GRC装饰线必须保证上平面有坡度,下有滴水功能;
2)GRC拼接处保证不渗水;
3)所有GRC预埋固定铁件必须为热镀锌。







4
硬质景观部分






说明:当不采用企口缝时,石材板缝间需挤浆处理。



12、检验批的划分、容量及抽样总结!附76个常用检验批验收表!
15、资料员、施工员、技术员请注意!三分钟搞懂施工技术资料编制重难;
猜你喜欢:
3、助力2018安全生产月,这100份安全资料合集值得入手(可下载)
加入我们
投稿展示或者分享资料
一起交流一起成长
扫一扫下方二维码,灵感即刻进
官方微信或qq:483972950
官方qq群:343778875 或648915172

来源:土木检测
如有侵权请联系删除



