提示点击↑上方"土木工程资源共享"关注加入
点我资料免费下
【重磅福利】
许多人对三个工人砌墙的故事都不陌生。三个工人在建筑工地上安装ALC墙板,有人问他们在做什么。第一个工人说:“我在安装ALC墙板。” 第二个人说:“我在建大楼”。第三个人说:“我在建一座美丽的城市。”故事本身很简单,但是不同的解读版本却很有趣。版本一:人生要像第二个和第三个人一样,要有大格局才有大成就;版本二:很多人常常自以为有成就,其实也就是搬砖砌墙罢了(这个解读会刺痛很多同行);版本三:只有第一个工人最让人放心,另外两个一天天想啥呢。其实有时候停下来想一想也挺好,比如就想到了“ALC墙体中构造柱如何设置”。
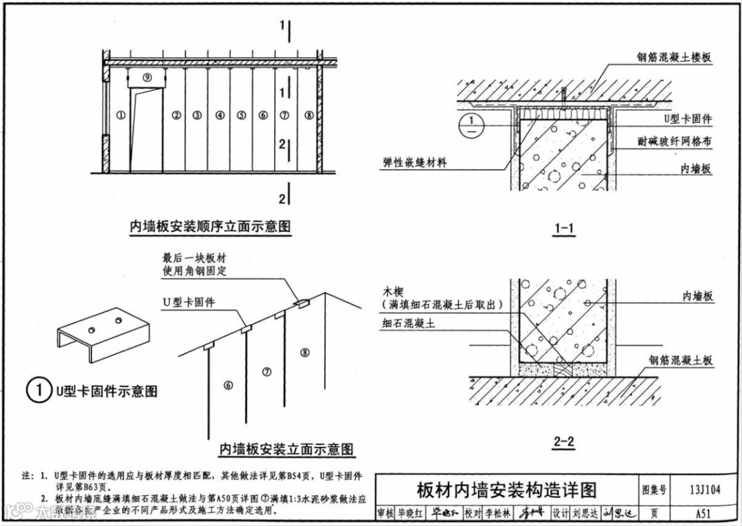
▲国标图集13J104中ALC墙板安装示意
▲实际项目中ALC墙板无构造柱
▲超长(8m)墙体出现收缩裂缝(未设构造柱)
▲某超长ALC板墙中间设置构造柱
②ALC墙板拼板尺寸较小,例如ALC墙板尺寸≤200mm,其尺寸接近砌块尺度时,板墙的整体性与稳定性偏弱,建议优化排版尺寸不宜出现尺寸较小的板型,如无法优化排版该位置可设置构造柱。
③门窗洞边墙垛尺寸较小或门洞边墙垛平面外缺乏可靠支点处。

④入户门位置建议设置构造柱。入户门重量较大,在极限开闭门情况下产生较大动荷载,容易导致门框周边墙板拼接缝位置开裂。
▲某项目入户门后轻质隔墙板出现裂缝
⑤其他一些特殊位置,如ALC墙板与砌块交接处、ALC墙板在“十字形”以及“八字形”等异形节点处。
▲某项目门头ALC搭接裂缝
▲某项目窗洞ALC搭接裂缝
实际项目中门头板通常有以下三种处理方式:倒八字ALC墙板(做法1)、混凝土下挂板(做法2)、混凝土抱框(做法3)。国标图集和部分地方图集中直接采用单个条板为门(窗)洞口过梁板的做法较多(做法1),但实际项目中采用ALC条板作为门头板时在门头或窗洞的倒八字搭接位置存在开裂现象,建议门头板优先设计为混凝土下挂板与主体结构一起现浇(做法2)。如门框一侧洞边墙垛尺寸较小(≤200mm)或门洞边墙垛平面外缺乏可靠支点,建议混凝土下挂板可与构造柱结合设计为混凝土抱框(做法3)。

12、检验批的划分、容量及抽样总结!附76个常用检验批验收表!
15、资料员、施工员、技术员请注意!三分钟搞懂施工技术资料编制重难;
猜你喜欢:
3、助力2018安全生产月,这100份安全资料合集值得入手(可下载)
加入我们
投稿展示或者分享资料
一起交流一起成长
扫一扫下方二维码,灵感即刻进
官方微信或qq:483972950
官方qq群:343778875 或648915172

源自丨上海思睿建筑科技有限公司


