提示点击↑上方"土木工程资源共享"关注加入
点我资料免费下
【重磅福利】
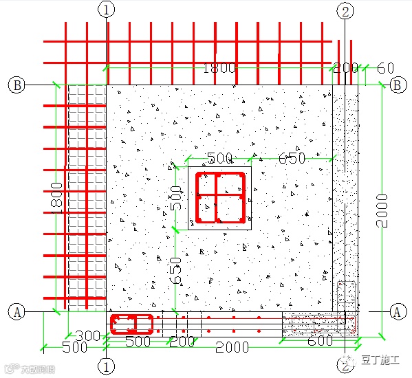
1、基础样板
尺寸要求:长2500×宽2500×高2000。
基本要求
(1)筏板砼:1800×1800、剪力墙:2000×200、防水压槽:2000×60、独立柱(居中设置):500×500、后浇带:1800×300,如图所示。


(2)①-②立面:高2000、右侧剪力墙宽600、底部砼高500,如图所示。
(3)止水钢板规格为宽300×3(宽*厚),埋入砼中1/2高,转角部位须一次弯折成型。柱箍筋穿过止水钢板时,箍筋断开弯折成“L”形与钢板焊接相连,严禁焊穿钢板(如图);砼施工缝浇筑前必须进行凿毛处理(如图)。


(4)剪力墙钢筋及套管设置:钢筋绑扎质量、间距符合规范要求,满绑满扎;拉钩设置@400,暗柱箍筋末端弯钩135°,水泥支撑全部绑扎到位,顶排穿墙套管距离墙顶500,穿墙套管带止水翼环,套管做加筋固定处理。

(5)A-B立面:高2000、右侧留设车库连通口止水钢板、正面体现外墙砼成型500、外墙防水冷底子油500、防水卷材铺贴1000,底部设置砼垫层250宽。
①防水各项工艺展示齐全,冷底子油、附加层、底层卷材翻包,保护墙砌筑等展示齐全,防水收头部位预留凹槽。
②对拉螺杆割除,螺栓孔封堵,表面防水处理。
③砼须进行凿毛处理、止水钢板埋入剪力墙内1/2、钢筋接茬留设500。
④止水钢板双面焊接,搭接不小于10cm。

(6)B-A立面:筏板厚度为300、独立柱砼浇筑500高,如图所示。
后浇带施工缝安装快易收口网处理;独立柱钢筋连接接头面积不小于50%,预留连接区段长度符合要求,钢筋做套丝或焊接处理。
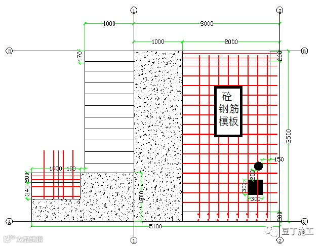
2、钢筋、模板、砼样板
尺寸要求:长5100×宽3500×高2500。
基本要求
(1)顶板砼样板(俯视图):1000×3500、顶板钢筋样板:2000×3500。梁截面尺寸:200×400、楼梯踏步宽度1000×170、楼梯平台:1000×1000,如图所示。

(2)顶板钢筋:板厚为100,钢筋面设置负弯矩钢筋、直径8,长度1000。马凳规格尺寸符合板厚、板保护层要求,体现降板部位钢筋搭接节点、管线排布合理。

(3)楼梯施工缝必须留置楼梯平台1/3的部位,同时控制好梯板钢筋的保护层厚度。

(4)剪力墙钢筋(A-B立面):
①钢筋满扎、刷防锈漆;直径≤ф14的钢筋必须采用绑扎连接,禁止采用电渣压力焊;
②模板定位筋要求砼浇筑前预留插筋,严禁直接焊接在主筋上;
③竖向梯子筋尺寸加工准确(采用直径大一号竖向梯子筋取代该部位剪力墙竖向钢筋); 水平梯子筋至少两道(1500和现浇面300位置)加工尺寸准确; 双F卡必须与墙筋绑扎牢固。
④预留洞口:大于300的预留洞口四周增设加强筋;钢筋样板体现电箱加筋处理。



⑤水电安装:电视机强弱电线盒间距300mm,位置:距A轴1750、居中设置(即位于墙柱钢筋中心位置)、建筑标高1000,固定可靠、位置准确,严禁直接焊接在主筋上;
⑥墙、柱等层间砼施工缝处必须进行凿毛处理。
(5)模板体系(①-②立面):
①正面及室内体现模板加固及支撑方式,剪力墙根部封堵要严密。梁高400、暗柱长400、梁浇筑1000(剩余长度展示钢筋)。
②木方尺寸规格标准不小于40×90,顶板方木间距≯200,U托顶端设置双钢管、立杆间距均匀≯1000、垫块全数设置。
③扫地杆设置到位,距楼面≤200,剪力墙不得少于5道拉杆,模板厚度不低于14mm,还应表现出拉杆间距、模板垂直度吊线、梁模加固方式(U型卡)等内容。
④体现“包裹法”进行配模施工,包裹原则:梁侧模包梁底模,墙柱长边包短边,梁侧采用U型卡箍加固。



(6)剪力墙成型、楼梯踏步(B-A立面):
①要求标注一米控制线、数据上墙标识。
②螺栓孔封堵:外墙、分户墙、电梯井道墙体螺栓孔必须提前封堵,螺栓孔外侧采用防水砂浆封堵并切方处理,内侧填充发泡剂。
③外墙或楼梯间砼接茬下返150部位采用预埋专用螺栓加固,同时配合海绵条的使用,减少施工缝漏浆、错台现象。

(7)现场如为CL或FS保温体系,则钢筋、模板、砼样板除上述要求外,还包括以下内容:
基本要求
①CL或FS保温板安装固定牢固,垂直度符合要求,保护层控制到位;窗洞口四角应设置斜向防裂网(CL保温体系),窗洞口模板支撑控制措施切实可行。
②CL保温体系所用自密实混凝土的塌落度为260mm-280mm,扩展度为750mm-850mm,粗骨料最大粒径为10mm,建议使用直径为5mm以下的粗骨料。自密实混凝土的相关规定满足《自密实混凝土应用技术规程》JGJ/T283的要求。
③FS保温体系的连接件采用专用工程塑料螺栓,塑料圆盘直径不小于30mm,端头螺母采用羊角金属螺母,每平方米墙面设置不少于5个连接件且间距不大于500mm,连接件安装孔距FS 外模板外缘不少于50mm,连接件锚入混凝土墙深度不少于50mm。
④螺栓孔封堵规范



(8)铝模样板(不涉及此工艺的项目不需设置):
尺寸要求:拟定尺寸为长3000×宽3000,具体尺寸由厂家提供为准。
基本要求
①铝模样板需体现楼梯支设方式、墙、板、梁加固体系(明确砼垂直度、平整度控制标准为0-4mm)。
②各类加固、支撑、拼板构件一并标注展示。
③企口、销钉加固、下挂梁、楼梯施工缝、降板等深化节点展示。

3、二次结构及装饰展示区
(1)砌体样板
尺寸要求:如图所示

基本要求
①要求表现以下内容:砌筑排版(与实际一致)、二次结构、斜砌、底砖、窗洞口(窗过梁、窗台板、预留混凝土砌块)、构造柱钢筋、构造柱模板、开关、插座、强弱电箱(含过梁及开槽、线管敷设、收口做法,电气预留按图纸高度设置)、门洞口(过梁、预留混凝土砌块),如有两种砌体,均需要体现;
②砌体与砼墙交接处毛化处理到位,顶头灰塞满;
③构造柱上口必须设置引流槽,采用KT板或海棉条封堵马牙槎;
④斜砌预留尺寸控制在140-180,斜砌角度为45~60°;其他顶塞做法按当地具体要求执行。
⑤砌体相关实测数据上墙,并满足公司要求;
⑥展示与门窗单位的三线交接。

(2)抹灰样板
尺寸要求:如图所示
基本要求
①要求表现以下内容:灰饼、混凝土及砌体喷浆、混凝土与砖墙交接处得挂钢丝网、抹灰第一遍打底、抹灰第二遍面层、第一遍第二遍交接处玻纤网甩出不小于200、插座与开关洞口抹灰预留、一米线、数据上墙;
②梁墙交接处钢丝网宽度为300、居中放置;
③灰饼必须设置三道,底部灰饼距地面500、顶部灰饼距顶板500、中间灰饼居中设置,水平间距不超过1.5m;
④线盒切割方正,电气使用功能标识清楚。

腻子、石膏样板
尺寸要求:如图所示
基本要求
石膏冲筋必须通长布置、距离转角不大于150。


(3)地坪样板
尺寸要求:如图所示
基本要求
①室内地坪与地暖同一区域施工,集中分层展示(地暖管安装、钢筋网片、反射膜、保温层);
②分层区域采用玻璃罩封闭防护,地面纹路顺直,无开裂起砂,墙地面交界处收活细致、苯板分隔条无明显外露,实测数据合格。

(4)门窗样板
尺寸要求:如图所示

基本要求
①门窗框安装采用镀锌连接片固定,固定点距转角处180mm,中间间距平均分割,每段不得大于500mm,将连接片采用射钉直接固定在混凝土块上;
②南方区窗框底口必须填塞防水砂浆,且两侧上返高度不低于200mm,其余部位打发泡胶,北方区可直接采用发泡填塞密实,发泡胶连续施工、一次成型、充填饱满,用手按压平整,严禁刀切;
③密封胶打在抹灰面上,胶口宽度控制在8-12mm, 胶面要求平整、光滑,无起堆现象,宽度一致,完工后,胶与框边墙面相容并粘接牢固。
④一侧抹灰收口,与副框齐平;另一侧体现固定片、打胶、上返砂浆塞口效果;底部1/2体现企口及塞口效果、1/2体现窗台收口。

4、厨卫生间样板
尺寸要求:如图所示
墙高2500(不设置顶板),其中厨房间全部砌筑,卫生间仅砌筑两面墙体。
基本要求
(1)排烟道材料尺寸为450×500,预留洞口为500×550;
(2)厨房烟道、分集水器根部做防水坎处理,合理布置厨房使用功能点位,符合“洗切炒”流程。
(3)橱柜台面上普通插座、冰箱插座距地1200mm,抽油烟机插座距地2000mm。


卫生间(同层排水)布局
要求表现以下内容:体现管件安装及防水分层施工做法:




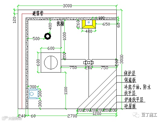
5、屋面样板
尺寸要求:如图所示
基本要求
(1)屋面整体找坡≮2%,向屋面落水口处找坡,所有泛水须做圆弧处理;须留置挑檐进行防护;
(2)屋面保护层留设分隔缝(包括女儿墙根部),分隔缝先用沥青砂灌实,后用200宽卷材进行密封处理,面层做法保证与大面施工效果一致;
(3)排气管设置在屋面找坡的最高处,要求必须使用不锈钢管,直径为75,排气管端部焊接圆弧弯头,其出屋面高度控制在500;
(4)排水、排气管高度设置为2米,排气管防水卷材上翻高度≮250。
(5)屋面烟道采用无动力风帽,高出女儿墙≮300。女儿墙压顶面须内找坡处理,坡度不小于5%。屋面女儿墙至成活面高度600。



(6)设计屋面瓦的项目,在做屋面样板时同时做出屋面瓦样板。建议采用倒置式屋面防水做法,体现屋面瓦的施工工艺、体现屋面保温及防水施工工序、鹰嘴做法等。


12、检验批的划分、容量及抽样总结!附76个常用检验批验收表!
15、资料员、施工员、技术员请注意!三分钟搞懂施工技术资料编制重难;
猜你喜欢:
3、助力2018安全生产月,这100份安全资料合集值得入手(可下载)
加入我们
投稿展示或者分享资料
一起交流一起成长
扫一扫下方二维码,灵感即刻进
官方微信或qq:483972950
官方qq群:343778875 或648915172




