
在2025 年安全生产月 “人人讲安全、个个会应急 —— 查找身边隐患” 的主题号召下,建筑施工安全成为重中之重,而脚手架作为施工现场不可或缺的设施,其安全隐患排查与防范至关重要。脚手架的稳固与否,直接关乎施工人员的生命安全。每一次搭建、使用与拆除,都如同在高空走钢丝,稍有不慎,便可能引发严重事故。从日常检查中发现的架体基础下沉,到大风天气下悬挑脚手架的晃动,这些看似不起眼的细节,都可能是隐藏的 “夺命陷阱”。我们必须时刻保持警惕,以 “人人讲安全” 的责任意识,像排查雷区一样仔细检查脚手架的每一处角落;用 “个个会应急” 的行动能力,提前制定应对突发情况的方案,将隐患扼杀在萌芽状态,守护好施工安全的 “生命线”。
|
|
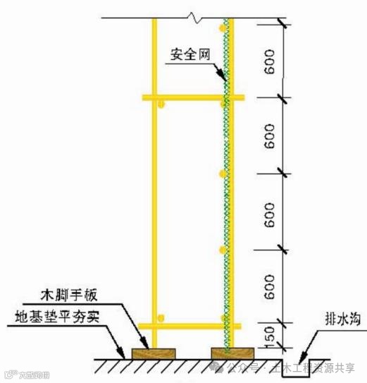
问题描述:①架体基础下沉,立杆悬空;②扫地杆离地高度大于 150mm;③剪刀撑下部未落在地面;④未设置排水沟。 伤害类型:①坍塌。 |
整改措施:①悬挂安全警示标识;②下沉基础位置灌注 C10 混凝土加固;③下调扫地杆位置至离地 150mm 处;④调整第一道剪刀撑,使剪刀撑底部落到地面上;⑤挖设排水措施。 |
原因分析:①安全技术及方案交底不到位;②脚手架基础处理方式未明确;③搭设过程中监督检查未开展;④未进行过程验收。 |
管控措施:①对立杆基础进行平整、夯实,并铺设 100mm 厚 C10 砼;②脚手架底部设置排水沟;③安全技术交底中对扫地杆高度、剪刀撑下部落地提出明确要求;④脚手架搭设过程中进行旁站监督。 |
|
|
问题描述:①高低跨处低跨位置扫地杆离地高度大于 150mm;②高低跨处扫地杆未拉通。 伤害类型:①坍塌。 |
整改措施:①在低跨位置离地 150mm 位置加设扫地杆;②将高处扫地杆向低处延长两跨并立杆固定。 |
原因分析:①安全技术方案针对性不足,未结现场脚手架基础进行针对性说明;②安全技术交底缺失;③脚手架工人未持特种作业证上岗;④过程管控缺失。 |
管控措施: ①脚手架搭设方案应结合现场实际情况编制;②架体搭设前,责任工程师应对搭设环境进行查看,并作针对性交底;③对脚手架工人持证情况进行审核,无特种作业证的严禁作业;④加强安全教育,提高作业工人专业技能;⑤做好脚手架搭设旁站监督和过程巡查,发现问题及时整改。 |
|
|
问题描述:①钢梁悬挑端与锚固段大于锚固端的 1.25 倍;②前端固 定锚环缺失;③U 型环螺丝未拧紧,未采用双螺母。 伤害类型:①坍塌。 |
整改措施: ①降低此处架体的施工载荷标准;②在架体中间部位拉设一道卸荷钢丝绳;③锚环压板螺丝未拧紧的及时紧固,无法拧紧的可用焊接等方式加强;④螺帽应采用双螺母。 |
原因分析:①安全技术及方案交底不到位;②方案对工字钢型号、长度未提具体要求;③材料进场验收未按照方案需求开展;④搭设过程中旁站监督不到位;⑤悬挑梁验收未认真开展。 |
管控措施:①安全技术方案应明确悬挑钢梁的长度、锚环安装的位置;②锚环预埋前螺纹应做好防污保护;③锚环预埋时应做好旁站监督,控制钢梁悬挑端大于锚固端的 1.25 倍;④锚固环应采用双螺帽固定,并设置加固木楔,螺母露丝≥3 丝;⑤钢梁安装后要及时检查验收。 |
|
|
问题描述:①悬挑层未及时进行硬封闭;②斜拉钢丝绳未及时拉设。 伤害类型:①坍塌;②高处坠落;③物体打击。 |
整改措施:①悬挑层脚手架第一步架体搭设完成后,立即进行硬封闭作业;②悬挑层水平及竖向均应全封闭;③悬挑层上层结构强度达到要求后,应立即进行钢丝绳拉设作业;④斜拉钢丝绳与结构摩擦位置应进行保护。 |
原因分析:①隐患识别能力不足;②安全技术交底缺失;③监督检查不到位;④物料供应不及时;⑤劳动力不足。 |
管控措施:①安全技术交底应对硬封闭进行明确要求;②提前准备硬封闭及斜拉钢丝绳所需的材料;③及时提醒分包完成硬封闭作业。 |
|
|
问题描述:①卸载钢绳固定钢筋缺失;②卸载钢绳松弛、未紧固受力。 伤害类型:①架体失稳倒塌。 |
整改措施①悬挑工字钢在距离工字钢最外端 10cm 处设置固定钢筋;②卸载钢绳须紧固受力,达到卸载效果。 |
原因分析:①外架搭设交底不明确;②卸载钢绳拉设标准不明确;③拉设过程中监督检查未开展;④架体起步验收及卸载钢绳拉设完成后验收流于形式;⑤悬挑工字钢布设前准备工作准备不充分。 |
管控措施:①加强外架搭设安全技术交底;②明确卸载钢绳拉设标准;③加强过程检查与控制;④加强起步验收与过程验收;⑤做好外架搭设前的准备工作。 |
|
![]()
|
问题描述:①悬挑工字钢斜拉钢丝绳绳卡方向错误;②钢丝绳不顺直,存在打结。 伤害类型:①坍塌。 |
整改措施:①U 型卡环开口应朝向受力的长绳段;②钢丝绳安全弯处应顺直,无打结现象;③绳卡间距控制在 6-8 倍的绳径;④卡扣安装数量不得少于四个,第三、第四个卡扣间应预留安全弯,卡扣型号应与钢丝绳直径匹配。 |
原因分析:①未交底清楚;②绳卡设置标准不明确;③拉设过程中监督检查未开展;④验收工作开展不到位。 |
管控措施:①加强安全技术交底;②明确卸载钢绳绳卡设置标准;③加强过程检查与控制。 |
|
|
问题描述:①同步内的立杆接头未错开设置;②立杆接头与主节点的距离大于 1/3 步距。 伤害类型:①坍塌。 |
整改措施:①在对接接头处另外加设一根钢管进行加强,钢管两端各使用三个扣件与立杆连接;②架体继续搭设时做好过程控制,避免出现同样错误。 |
原因分析:①对架体搭设的安全技术交底针对性不足;②架体搭设过程中旁站监督缺失;③对架子工的安全教育不足;④架体验收不到位。 |
管控措施:①安全技术交底要对立杆对接的要求进行明确;②相邻立杆长度应错开一步布置;③做好过程旁站监督,发现问题及时整改。 |
|
|
问题描述:①安全网未挂设;②抛撑设置不足;③缺少层间封闭;④剪刀撑缺失。 伤害类型:①高处坠落;②物体打击;③垮塌。 |
整改措施:①搭设斜撑,角度 45 度设置;②设置扫地杆,地面端加以锚固;③及时挂设密目式安全网;④增设剪刀撑或者“之”字撑。 |
原因分析:①方案及安全技术交底不到位;②脚手架工人操作技能不足;③其他工种拆除破坏。 |
管控措施:①强化作业交底;②做好过程巡查,发现问题及时整改;③做好安全教育,提高工人安全意识。 |
|
|
问题描述:①剪刀撑搭接不足 1 米,只有 2 个旋转扣件固定。 伤害类型:①坍塌。 |
整改措施:①剪刀撑搭接长度不应小于 1m,应采用不少于 3 个旋转扣件固定,端部扣件盖板的边缘至杆端距离不应小于 100mm;②应用旋转扣件固定在与之相交的横向水平杆的伸出端或立杆上,旋转扣件中心线至主节点的距离不宜大于 150mm。 |
原因分析:①安全技术及方案交底不到位;②过程监督验收未开展。 |
管控措施:①加强人员教育交底;②做好过程巡查,及时纠偏。 |
|
|
问题描述:①连墙件外漏长度不足 100mm。 伤害类型:①坍塌。 |
整改措施:①连墙件预留长度应不得小于 100mm;②连墙件位置应悬挂“严禁拆除”警示标志;③连墙件偏离主节点的距离不大于 300mm。 |
原因分析:①安全技术交底缺失;②工人违规操作;③安全检查不足;④架体验收不到位。 |
管控措施:①脚手架方案细化拉结点拉设布置图;②提前准备好拉结点所需定尺钢管;③楼层拉结点预埋提前放线定位;④对砼工班组进行交底,防止砼浇筑时破坏预埋的连墙件;⑤验收时对连墙件进行逐一检查。 |
|
|
问题描述:①脚手板未与横向水平杆固定;②脚手板未满铺;③脚手板伸出长度大于 150mm。 伤害类型:①高处坠落;②物体打击。 |
整改措施:①用镀锌钢丝将脚手板固定在横向水平杆上;②脚手板应铺满、铺稳、铺实;③作业层脚手板探头长度应≤150mm。 |
原因分析:①安全技术及方案交底不到位;②搭设过程中监督检查不到位;③未进行过程验收。 |
管控措施:①脚手架方案细化每层脚手板布置示意图;②脚手板铺设前对架子工做好交底工作,明确脚手板的搭设要求;③加强过程监督检查,及时整改。 |
![]()
|
![]()
|
问题描述:①外架与结构间水平防护缺失;②水平兜网使用细铁丝、水泥钉等无效的方式固定。 伤害类型:①高处坠落;②物体打击。 |
整改措施:①外架与结构间增加二道填芯钢管,并设置水平兜网防护; ②水平兜网无可靠固定点时,可在结构上安装膨胀螺栓挂钩,将水平兜网挂设在挂钩上。 |
原因分析:①外架搭设方案针对性不足;②搭设前未进行安全技术交底;③安全技术交底对层间防护设置方式未明确;④物料不足。 |
管控措施:①架体与结构间每 12 米设置一道硬质防护,中间挂设水平兜网;②安全技术方案中对层间防护的设置形式进行明确;③安全技术交底对水平兜网的挂设进行针对性说明。 |
|
|
问题描述:①外架搭设过程中未系安全带。 伤害类型:①高处坠落。 |
整改措施:在最上一步立杆之间拉设一圈钢丝绳,作为临时防护以及安全带挂设点。 |
原因分析:①搭设脚手架时,无安全带挂点,无法高挂低用;②给工人安全教育交底不到位,工人安全意识不强;③搭设过程中旁站监督不到位。 |
管控措施:①方案之中明确要求最上步拉设钢丝绳;②加强对工人的安全教育及交底;③旁站监督过程中督促工人正确系挂安全带(高挂低用)。 |
|
|
问题描述:①泵管与脚手架相连。 伤害类型:①坍塌;②物体打击。 |
整改措施:①泵管严禁与脚手架相连,立即将泵管进行挪移。 |
原因分析:①泵管位置设置不合理;②对泵管安装人员的安全技术交底不到位;③砼施工缺乏过程监督与检查。 |
管控措施:①做好泵管布置的策划(设置在楼层内),严禁与脚手架相连;②做好过程监督检查,发现泵管与脚手架接触的,立即整改;③做好安全技术交底,严禁违规布置泵管。 |
|
|
问题描述:①脚手架外侧未搭设安全网;②剪刀撑未搭设。 伤害类型:①坍塌;②物体打击;③高处坠落。 |
整改措施:①脚手架外侧满挂安全网,网体横向连接时采用搭接方式,搭接长度不少于 200mm;②剪刀撑按照外架进度随立杆、水平杆等同步搭设,搭接长度≥1m,旋转扣件≥3 个;③每道剪刀撑宽度不应小于 4 跨且不应小于 6m;斜杆与地面的倾角应在 45°~60 °之间。 |
原因分析:①交底不到位;②验收手续未严格履行;③材料不足。 |
管控措施:①脚手架搭设前,对剪刀撑的搭设要求做好交底;②做好过程检查及验收工作。 |
|
|
问题描述:外架上堆放材料。 伤害类型:坍塌、物体打击。 |
整改措施:及时清理外架上的材料并对架子工加强教育。 |
原因分析:①对架体搭设的安全技术交底针对性不足;②对架子工安全教育不足;③隐患排查不到位。 |
管控措施:①安全技术交底中明确外架上禁止堆放材料;②对架子工加强教育;③加强安全巡查。 |
|
|
问题描述:①爬架防坠装置未支顶到位;②爬架走道板砼渣等未清理干净;③翻板未恢复到位。 伤害类型:①高处坠落;②物体打击;③坍塌。 |
整改措施:①调整未支顶到位的防坠器,使其顶在轨道横梁上并受力;②每次提升前应清洁走道板并检查防坠弹簧是否灵敏可靠;③提升完毕后将翻板恢复到位。 |
原因分析:①提升前检查验收不到位;②安全技术交底不到位;③提升后验收不到位;④爬架操作人员日常培训不到位。 |
管控措施:①材料进场验收,确保构件合格;②爬架提升前检查走道板清理情况;③提升前做针对性安全技术交底;④提升完成后组织验收。 |
|
|
问题描述:①斜拉杆安装连接部位开口销未安装。 伤害类型:①坍塌;②物体打击。 |
整改措施:①安装开口销。 |
原因分析:①日常检查监督不到位;②提升后验收不到位;③作业人员安全意识不足。 |
管控措施:①加强日常监督检查力度及频次;②严格组织提升前后验收流程;③加强爬架作业人员安全教育培训。 |
|
|
问题描述:①爬架附墙螺杆露出螺母端部的长度少于 3 扣。 伤害类型:①坍塌;②物体打击。 |
整改措施:①爬架附墙穿墙螺杆螺帽设置到位,螺栓两端各加100x100x10mm 垫片 1 个,螺母 2 个,螺栓外露螺帽不得小于 3 扣。 |
原因分析:①材料进场验收流程不到位;②作业前安全技术交底针对性不足;③作业人员安全意识不足;④日常监督检查效果不佳。 |
管控措施:①加强材料进场验收流程;②加强安全技术交底及安全教育培训;③完善日常监督检查验收流程,避免盲区。 |
|
|
问题描述:①第三道附墙未及时安装。 伤害类型:①坍塌;②物体打击。 |
整改措施:①及时安装第三道附墙,避免爬架竖向悬臂高度大于 6m。 |
原因分析:①爬架作业人员不足;②拆模与安装导座工序安排不合理;③方案复核力度不足;④检查验收不到位。 |
管控措施:①提前对铝模进行优化,避免模板与附墙导座冲突;②加强方案复核;③增加爬架作业人员;④优化衔接拆模作业与爬架作业工序;⑤爬架提升后严格检查验收。 |
|
![]()
|
问题描述:①断面口防护网片未固定。②断面口走道板水平防护缺失。 伤害类型:①高处坠落;②物体打击。 |
整改措施:①使用定制销轴,封闭防护网片;②脚手板断口一端用活页式铰链连接另一端用固定式铰链连接,提升前翻板及防护网均可打开,提升完成后恢复防护。 |
原因分析:①爬架安装完成后未进行验收;②方案复核不到位;③提升前安全技术交底不到位;④提升完成后,作业人员未封闭立网;⑤定期销轴遗失;⑥提升后未进行检查验收。 |
管控措施:①完善施工方案审核及现场复核;②加强监督检查及验收;③加强爬架作业人员安全技术交底及教育培训。 |
|
|
问题描述:①爬架作业层距离结构间距较大。 伤害类型:①高处坠落。 |
整改措施:在现有铝模走道板上加宽定型化连接板。 |
原因分析:①由于铝模背楞影响,充分预留铝模加固及拆除空间。 |
管控措施:①针对现场爬架,进行充分深化及优化安全措施。 |
|
|
问题描述:①提升挂座与附墙导座未分开设置。 伤害类型:①坍塌;②物体打击。 |
整改措施:①防坠落装置与升降设备分别独立固定在建筑结构上。 |
原因分析:①专项方案编制存在问题;②技术交底、作业前安全交底不到位;③未进行方案现场复核;④安装作业未进行旁站监督;⑤日常检查验收不到位。 |
管控措施:①加强专项方案编制及审核;②完善安全技术交底、旁站监督及检查验收流程;③加强方案现场复核。 |
|
|
问题描述:①爬架附墙导座未与结构压实;②螺帽未紧固,螺杆外露不足 3 扣;③支座变形。 伤害类型:①坍塌;②物体打击。 |
整改措施:①压实附墙导座;②更换不合格螺杆螺帽;③更换不合格导座。 |
原因分析:①混凝土表面不平整;②导座预埋定位偏差超过允许值;③材料进场验收不到位;④作业前安全技术交底不到位;⑤作业人员安全意识不足;⑥日常监督检查、复核及验收不到位。 |
管控措施:①加强材料进场验收工作,避免使用不合格构件;②更换不合格螺杆螺帽;③更换不合格导座;④严格按照施工机位布置图进行孔洞预埋。 |
|
![]()
|
问题描述:①水平附墙未按要求设置斜拉杆或卸荷钢丝绳。 伤害类型:①坍塌。 |
整改措施:①按要求设置斜拉杆或卸荷钢丝绳。 |
原因分析:①对爬架班组方案交底及安全交底不到位;②斜拉杆或卸荷钢丝绳未做预埋;③过程巡查监督未展开。 |
管控措施:①安全技术交底及方案交底到位;②混凝土浇筑前对预埋处进行验收;③做好现场巡查监督,及时纠偏。 |
|
![]()
|
问题描述:①爬架非提升状态,翻板打开。 伤害类型:①高处坠落;②物体打击。 |
整改措施:①翻板恢复到位。 |
原因分析:①安全技术交底不到位;②爬架提升完成后未及时恢复翻板;③作业人员在此处违章传递材料;④提升完成后未进行验收;⑤日常安全监督检查不到位。 |
管控措施:①加强作业人员安全教育培训,提升安全意识;②作业前安全技术交底注重针对性;③严格进行过程检查及提升前后验收;④严格执行安全奖惩制度。 |
|
|
问题描述:①防护网片销轴缺失;②使用扎丝随意绑扎,稳固性不强。 伤害类型:①高处坠落;②物体打击。 |
整改措施:①使用定制销轴使架体外排立网与架体立杆稳固连接。 |
原因分析:①架体安装完成后及过程检查验收不到位;②作业人员安全意识不足,销轴遗失后固定网片随意。 |
管控措施:①严格检查及验收;②加强作业人员安全教育培训;③加强安全技术交底针对性。 |
|
|
问题描述:①内外排立杆斜撑杆断开。 伤害类型:①坍塌;②物体打击。 |
整改措施:架体内外排斜撑杆,长度固定,通过专用螺栓连接内外排立杆,组合成一个竖向主框架结构。 |
原因分析:①架体安装完成后及过程检查验收不到位,螺帽未紧固;②斜撑杆生锈腐蚀,连接位置断裂。 |
管控措施:①安装完成及使用过程严格检查验收流程;②定期对爬架各类构配件进行维护和保养。 |
|
![]()
|
问题描述:①提升滑轮破损,致使钢丝绳跳槽且葫芦主吊点钢架变形。 伤害类型:①坍塌。 |
整改措施:①更换滑轮及主吊点钢架、钢丝绳。 |
原因分析:①爬架爬升期间,滑轮损坏,钢丝绳脱轨卡在轮轴之间,爬架同步提升装置及限位装置未起到作用,导致吊点钢架拉变形。 |
管控措施:①提升前的验收不能流于形式,必须对每一个机位、附墙、提升挂座、钢丝绳等检查到位,验收合格才允许提升;②提升过程同步装置必须处于工作状态;③提升过程中加强巡查,及时纠偏。 |
|
|
问题描述:提升架防护高度不足。 伤害类型:①高处坠落;②物体打击。 |
整改措施:①提升架架体高于作业面 1.5m 以上;②现场提升架细部处理情况是否与方案保持一致。 |
原因分析:①对作业安全的重视程度不够;②作业人员不足;③材料进场滞后。 |
管控措施:①确保作业人员充足;②材料及时进场;③架提高度不足时,主楼作业面暂停施工。 |
写在最后:
猜你喜欢:
3、助力安全生产月,这100份安全资料合集值得入手(可下载)






























































