
一、概述
地下连续墙是利用挖槽机械,借助于泥浆护壁,在地下挖出一条窄而深的沟槽,并在槽内施工钢筋混凝土等合适材料,形成一道具有防渗(水)挡土和承重功能的、连续的地下墙体。在建筑、市政、公路等行业中均有涉及,主要适用于深基坑围护,既有建筑及环境保护和分期隔离等相关工程。
接下来,一个三维动画带你了解地下连续墙如何施工?
二、特点及适用范围
2.1 适用范围
受到施工机械的限制,地下连续墙的厚度具有固定的模数,地下连续墙只有在一定深度的基坑工程或其它特殊条件下才能显示出经济性和特有优势。
1.施工时振动小,噪音低,非常适于在城市施工。
2.占地少,可以充分利用建筑红线以内有限的地面和空间,充分发挥投资效益。
3.防渗性能好,由于墙体接头形式和施工方法的改进,使地下连续墙几乎不透水。
4.可用于逆作法施工。地下连续墙刚度大,易于设置埋设件,很适合于逆做法施工。
5.可以贴近施工。由于具有上述几项优点,使我们可以紧贴原有建筑物建造地下连续墙。
6.用地下连续墙作为土坝、尾矿坝和水闸等水工建筑物的垂直防渗结构,是非常安全和经济的。
7.墙体刚度大,用于基坑开挖时,可承受很大的土压力,极少发生地基沉降或塌方事故,已经成为深基坑支护工程中必不可少的挡土结构。
三、施工工艺流程
四、施工准备
4.1 技术准备
1、学习和熟悉施工图纸及地质勘探报告,掌握土层和地下水状况资料,据此确定挖槽机械种类,段划分、地基加固和泥浆配备计划。
2、调查了解地下埋设物的资料,以确定各种地下管线及障碍物的处理方案。
3 、了解施工场地及邻近结构物的调查资料,以确定施工场地布置、施工场地平整和施工防护措施。
4 、编制施工组织设计,其内容包括
(1)地下连续墙的总平面布置:
(2)总体、单元施工进度计划:
(3)挖槽机械和配套设备:
(4)单元槽段的尺寸、分段次序编号、节点的构造形式:
(5)泥浆制作应用和循环系统的现场布置,弃土、沉淀方式:
(6)成墙穿越不同地质状况对策;
(7)排除障碍措施:
(8)导墙的平面布置和截面结构设计:
(9)钢筋笼分段尺寸、接头、制作、安装方法:
(10)混凝土配制、搅拌、运输、浇筑方法:
(11)施工场地内地面排水:
(12)保证质量的技术措施:
(13)质量检测:
(14)安全技术措施等。
4.2 材料准备
1、制订材料进场计划:钢筋、钢材、水泥、砂和碎石、膨润土(优质黏土)、CMC 等附加剂。
2、对需采购的材料,提出要求,对供应商进行考察,确定合格分供方,签订供货协议;
3、商品混凝土已做配比试验,对钢筋、钢材等需进行送检的材料送检测单位进行检验,确保合格后才可用于工程。
4.3 主要机具
1、成槽设备:抓斗式成槽机、冲击钻、泥浆泵或空气吸泥机(包括空压机)等。
2、钢筋网吊装设备:带吊机。
3、混凝土浇灌机具:储料斗、吊车或桩机、金属导管和运输设备等。
4、制浆机具:泥浆搅拌机、泥浆泵、空压机、水泵、旋流器、振动、泥浆比重计、漏斗粘度计、秒表、量简或量杯、失水量仪、静切力计、含砂量测定器、pH 试纸等。
5、槽段接头设备:有金属接头管、履带或轮胎式起重机、拔管机等。
6、其他机具设备:有钢筋对焊机,弯曲机,切断机,电机,大、小平锹,各种扳手等。
4.4 劳动力组织
依据工程规模、作业环境、工期要求等综合考虑人员数量。需要工种:钢筋工、木工、混凝土工、电焊工、挖掘司机、冲桩机操作工、抓斗司机、钻机操作工以及起重工、司索、指挥、电工、普通工等配合工种。所有人员均要经过岗位培训和持证上岗,同时进场前要进行安全教育和技术交底。
4.5 作业条件
1、在工程范围内钻探,查明地质、地层、土质以及水文情况,为选择挖槽机具、泥浆循环工艺、段长度等提供可靠的技术数据。同时进行钻探,摸清地下连续墙部位的地下障碍物情况。
2 、按设计地面标高进行场地平整,拆迁施工区域内的房屋、通讯、电力设施以及上下水管道等障碍物,挖除工程部位地面以下3m内的地下障碍物。施工场地周围设置排水系统。
3、根据工程结构、地质情况及施工条件制定施工方案,选定并准备机具设备,进行施工部署、平面规划、劳动配备及划分槽段;确定泥浆配合比、配制及处理方法,编制材料、施工机具需用量计划及技术培训计划,提出保证质量、安全及节约等的技术措施。
4、按平面及工艺要求设置临时设施,修筑道路,在施工区域设置导墙;安装挖槽、泥浆制配、处理、钢筋加工机具设备:安装水电线路:进行试通水、通电、试挖槽。
5、按照国家、省市、有关规定,超过一定规模危险性较大工程应编制专项施工方案,经专家评审及上级有关部门批准后才能实施。
五、施工要点
1、导墙一般用钢筋混凝土浇筑而成,导墙断面一般为┓┏形、L形或】【形(各种形式的导墙见图),厚度一般为150mm~250mm,深度为1.5m~2.0m,底部应坐落在原土层上,其顶面高出施工地面 50mm~100mm,并应高出地下水位1.5m以上。两侧墙净距中心线与地下连续墙中心线重合。每个槽段内的导墙应设一个以上的溢浆孔。
2、现浇钢筋混凝土导墙拆模后,应回填、加支撑,支撑水平间距为2.0m~2.5m。
3、导墙的施工允许偏差为:
(1)两片导墙的中心线应与地下墙纵向轴线相重合,允许偏差应为士10mm。
(2)导墙内壁面垂直度允许偏差为0.5%。
(3)两导墙间间距应比地下墙设计厚度加宽50mm~60mm,其允许偏差为士10mm。
(4)导墙顶面应平整。
1、在导墙上标注槽段位置。
2、应根据成槽地点的工程地质和水文地质条件、施工环境、设备能力、地下墙的结构尺寸及质量要求等选用挖槽机械。通常,对于软质地基,宜选用抓斗式挖槽机械;对于硬质地基,选用冲击式挖槽机械;
3、挖槽前,应预先将地下墙划分为若干个施工槽段,其平面形状可为一字形、L形、T 形等。槽段长度应根据设计要求、土层性质、地下水情况、钢筋笼的重量、设备起吊能力、混凝土供应能力等条件确定,一般槽段长度为3m~7m。平面拐角处一个方向导墙要外延12墙厚。
4、挖槽前,应制订出切实可行的挖槽方法和施工顺序,并严格执行。挖槽时,应加强观测,确保位、槽深、垂直度符合设计要求。
5、挖槽过程中,应保持槽内始终充满泥浆,随着挖槽深度的增大,不断向槽内补充新鲜泥浆,使槽壁保持稳定,泥浆液面要高出地下水位15m若不满足时,要增加降水或增高导墙等措施:
6、槽段的终槽深度应符合下列要求:非承重墙的终槽深度必须保证设计深度。同一槽段内,槽底深度必须一致且保持平整;承重墙的槽段深度应根据设计入岩深度要求,参照地质剖面图及槽底岩屑样品等综合确定:同一槽段开挖深度宜一致:遇有特殊情况应会同设计单位研究处理。、
7、槽段开挖完毕,应检查槽位、槽深、槽宽及槽壁垂直度,合格后,应尽快清底换浆及安装钢筋笼、灌注槽段混凝土。
5.4泥浆的配置与使用1、泥浆的作用在于围护槽壁的稳定、防止槽壁坍塌、悬浮岩屑和冷却、润滑钻头。泥浆质量的优劣直接关系着成槽速度的快慢,也直接关系着墙体质量、墙底与基岩接合质量以及墙段间接缝的质量。
2、施工前,应对造浆黏土进行认真选择,一般应选用膨润土造浆,并在施工前进行造浆率和造浆性能试验。
3、配制泥浆前,应根据地质条件、成槽方法和用途等进行泥浆配合比设计,试验合格后方可使用。其性能指标应符合下表的规定。新拌制的泥浆应存放 24h或加分散剂,使膨润土充分水化后,方可使用。
(1)在鉴定黏土的造浆性能和确定泥浆配合比时,均应测定泥浆的黏度、密度、含砂量;
(2)清槽后,测定槽底以上0.5m 处泥浆的密度、含砂率和黏度。
(3)不同阶段泥浆指标要求见下表。
6、 施工期间,槽内泥浆面必须高于地下水位15m以上,并且不低于导墙顶面0.5m。
7、施工过程中,应经常测定和调节泥浆性能,使其适应不同地层的钻进要求。
8 、在清槽过程中应不断置换泥浆。清槽后,槽底以上0.2m~1.0m处的泥浆比重应小于12,含砂量不大于5%,黏度不大于 28s。
9、泥浆应进行净化回收重复使用。泥浆净化回收可采用振动、旋流器、流槽、沉淀池或强制脱水等方法。
10、废弃泥浆和残渣,应按环境保护的有关规定处理。
5.5 清底换浆
1、 在槽段开挖结束后,灌注槽段混凝土前,应进行槽段的清底换浆工作,以清除槽底沉渣,直至沉渣厚度符合设计要求为止。
2、清底换浆作业可在挖槽结束后立即进行,也可在灌注槽段混凝土之前进行,不管在什么时候进行清底换浆作业,均应在浇注槽段混凝士之前,测定槽内泥浆的指标及沉渣厚度,达到设计要求后,才允
许灌注槽段混凝土。
3 清底换浆时,应注意保持槽内始终充满泥浆,以维持槽壁的稳定。
5.6 钢筋笼的制作与安放
1、地下墙的钢筋笼规格尺寸应考虑结构要求、单元槽段、接头型式、加工场地、现场起吊能力等因素分节制作而成,每节钢筋笼主筋的连接可用电焊接头、压接接头或套简接头。钢筋笼制作场地满足施工要求。
2、钢筋笼应具有必要的刚度,以确保在吊装和插入时不致于变形或破坏,如有必要,须加设斜撑和横撑补强。钢筋笼的吊点位置、起吊方式和固定方法应符合设计和施工要求。在吊放钢筋笼时,应对准槽段中心,并注意不要碰伤槽壁壁面,不能强行插入钢筋笼,以免钢筋笼变形或导致槽壁坍塌。
3、钢筋的净距应大于3倍粗骨料粒径,并应在现场制作成型和预留插放混凝土导管的位置。分节制作的钢筋笼,应在制作台上试装配,接头处纵向钢筋的预留搭接长度应符合设计要求。
4、为了确保混凝土保护层厚度,可用钢筋或钢板定位垫块或预制混凝土垫块焊接在钢筋笼上,设置整块位置时,在每个槽段前后两个面应各设两块以上,其竖向间距约为5m。

5.7 施工接头
1、地下墙的接头施工质量直接关系到其受力性能和抗渗能力,应在结构设计和施工中子以高度重视。
2、施工接头应能承受混凝土的侧压力,倾斜度应不大于0.4%,不致于妨碍下一槽段的开挖,且能有效的防止混凝土绕过接头管外流。
3、 施工接头可用钢管、钢板、预制混凝土等材料制成,其结构形式应便于施工。
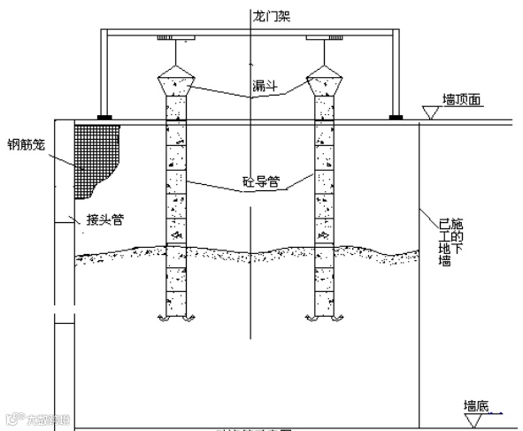
4、使用接头管接头时,要把接头管埋入到槽段底部。接头管宜用起重机吊放就位。起拔接头管时,宜用拔管器。接头管的拔出,应根据混凝士的硬化速度,依次适时地拔动,待混凝土灌注完毕经2h~3h后完全拔出。过早拔出接头管,会使混凝土坍塌或开裂;过晚拔出接头管,会使拔出困难或不能拔出。
5.8 水下混凝土灌注
1、混凝土的配合比应通过试验确定,并应符合下列规定:
(1)满足设计要求和抗压强度等级、抗渗性能等指标,水灰比不应大于0.6。
(2)水下混凝士应有良好的和易性,坍落度宜为180mm~220mm,扩散度宜为340mm~380mm。每立方米混凝土中胶体用量不宜少于370kg,粗骨料最大粒径不应大于25mm,宜选用中、粗砂,混凝土拌和物中的含砂率不小于 45%。
(3)水泥宜选用普通硅酸盐水泥,并可根据需要掺加外加剂、粉煤灰,其品种和数量应通过试验确定。
2、导管的构造和使用应符合下列要求:
(1)导管壁厚不宜小于3mm,直径宜为250mm,直径制作偏差不得超过2mm。导管必须顺直、密封、装拆方便。导管总长度应大于槽深加槽孔上升高度。导管的分节长度应按工艺要求确定。两管之间可用法兰接头、或双螺纹方扣快速接头连接,底管长度不宜小于4m。
(2)导管使用前应试拼试压,试压压力一般为0.6MPa~1.0MPa。
4、灌注混凝土的隔水栓宜用预制混凝土塞材料制成。
5、为保证水下混凝土的灌注能顺利进行,灌注前应拟定灌注方案,内容包括槽孔纵剖面图、计划灌注量、混凝土供应能力、终灌高度、导管位置、导管组合方式、灌注方法及顺序、主要材料用量等。
6、灌注水下混凝土应遵守下列规定:
(1)开始灌注时,隔水栓吊放的位置应临近水面,导管底端到孔底的距离应以能顺利排出隔水栓为宜,一般为0.3m~0.5m。
(2)开灈前储料斗内必须有足以将导管的底端一次性埋入水下混凝土中0.5m 以上深度的混凝土储存量。
(3)混凝土灌注的上升速度不得小于 2mhh。
(4)随着混凝土的上升,要适时提升和拆卸导管,导管底端埋入混凝土面以下一般保待 2m~4m,不宜大于6m,并不得小于m,严禁把导管底端提出混凝土面。
(5)在水下混凝土灌注过程中,应有专人每30min 测量一次导管埋深及管外混凝土面高度,每 2h测量一次导管内混凝土面高度。混凝土应连续灌注不得中断,不得横移导管,提升导管时应避免碰挂钢筋笼。
(6)在一个槽段内同时使用两根导管灌注时,其间距不应大于 3m,导管距槽段端头不宜大于1.5m,混凝土面应均匀上升,各导管处的混凝土表面的高差不宜大于0.3m,混凝土应在终凝前灌注完毕,终浇混凝土面高程应高于设计标高0.5m。
(7)灌注前应有严密的施工组织设计及辅助设施,一旦发生机具故障或停电以及导管堵塞、进水等事故时,应立即采取有效措施,并同时作好记录。
六、质量标准
1、施工前应对导墙的质量进行检查,
2、施工中应定期对泥浆指标、钢筋笼的制作与安装、混凝土的坍落度、预制地下连续墙墙段安放质量、预制接头、墙底注浆、地下连续墙成槽及墙体质量等进行检验。
3、兼作永久结构的地下连续墙,其与地下结构底板、梁及楼板之间连接的预埋钢筋接驳器应按原材料检验要求进行抽样复验,取每500套为一个检验批,每批应抽查3件,复验内容为外观、尺寸、抗拉强度等。
4、混凝土抗压强度和抗渗等级应符合设计要求。墙身混凝土抗压强度试块每100m³混凝土不应少于1组,且每幅槽段不应少于1组,每组为3件;身混凝土抗渗试块每5幅槽段不应少于1组,每组为6件。作为永久结构的地下连续墙,其抗渗质量标准可按现行国家标准《地下防水工程质量验收规范》GB50208的规定执行。
5、作为永久结构的地下连续墙墙体施工结束后,应采用声波透射法对墙体质量进行检验,同类型槽段的检验数量不应少于10%,且不得少于3幅。
6.2 验收标准
地下连续墙的质量检验标准应符合表7.7.6-1~表7.7.6-3的规定。
七、安全环保措施
7.1 安全措施
1、施工场地内一切电源、电路的安装和拆除,应由持证电工专管,电器必须严格接地接零和设置漏电保护器,现场电线、电缆必须按规定架空,严禁拖地和乱拉、乱搭。
2、所有机器操作人员必须持证上岗。
3、 施工场地必须做到场地平整、无积水,挖好排浆沟。
4、 水泥堆放必须有防雨、防措施,砂子要有专用堆场,不得污染。
5、 施工机械、电气设备、仪表仪器等在确认完好后方准使用,并由专人负责使用。
7.2 环保措施
1、 施工场地、道路的硬化处理。
2、易于引起粉尘的细料或松散料运输时用帆布等遮盖物覆盖;
3 、施工废水、生活废水不得直接排入耕地、灌溉渠和水库:
4、食堂保持清洁,腐烂变质的食物及时处理,食堂工作人员应有健康证;
5、对驶出施工现场的车辆进行清理,设置汽车冲洗台及污水沉淀池:
6、安排工人每天进行现场卫生清洁。
7、施工时做好机械噪音的防护同时做好排污水的沉淀处理
8、施工时做好基坑周围临边的防护。
9、在导墙的混凝土达到设计强度之前禁止任何重型机械和运输设备在旁边行驶以防导墙受压变形。



