提示:点击↑上方"土木工程资源共享"关注加入
点我资料免费下
【重磅福利】
导言
新型的施工技术,对建筑工程施工具有非常重要的影响。它可以降低施工的成本,提高施工的效率,还能保证施工的安全。现如今的高层建筑都会采用铝模板进行固定支撑,运用该材料进行建筑项目的整体施工,不仅能够显著提升工程的施工效率,而且还不耗费大量人力物力。
但是铝模板在施工中有很多问题?
例如:铝模进行安装的过程中,施工人员总是需要吊装工具将材料吊装上来才可以进行安装,影响工程进度的同时,施工人员的人身安全危险系数也大大增加。
小编推荐铝模板的黄金拍档——爬架 爬架自身所具备的可提升性能,不仅给铝模施工带来益处,同样对于安装施工人员也能够提供一份安全保障。
爬升流程
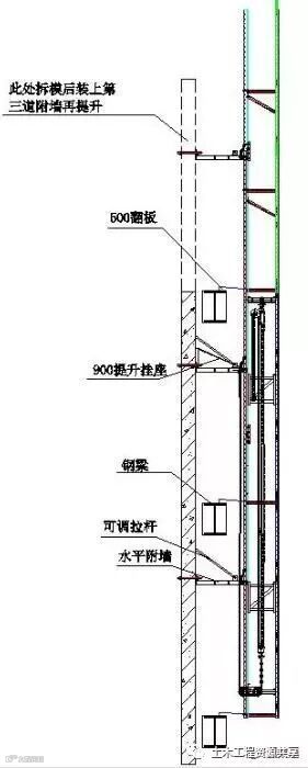
爬架在作业工况时设置两道两道附墙,爬架提升前,需等浇注结构拆模后,装上第三道附墙方可爬升。爬升完成后把底部附墙拆掉。
(示意图)
(爬架爬升示意图)
立面封闭
防护安全网采用冲孔网经龙骨焊接框架组合,具有耐腐蚀、绝燃、抗冲击特点。
采用“铝模板+爬架”体系的优越性,是传统施工技术所不能比拟的,是当今房建市场最优质的工艺和国家的节能、环保要求接轨,对建筑业来说是巨大的进步和革新。
铝模板+爬架的强强联合,才能实现节省工期的目的。
一、铝模板+爬架的优势
“铝模+爬架”是当前建造体系的标准框架配置。铝模结合建筑外围采用全剪力墙设计,砼实测数据、观感效果好,能实现“零抹灰”或者“薄层抹灰”的效果,且对防渗漏具有重要意义。爬架整体设计美观、防护效果好,与铝模体系搭配,能实现外墙底层涂料饰面及铝合金外窗、栏杆工程与主体工程的同步施工,能有效进行穿插,为有效控制工期垫定基础。
【1】施工进度方面 1、铝模的施工周期短,重复使用率高,并具有组装方便、应用范围广泛的优势,可完全由人工拼装,经过短期培训后的工人,每天可安装30平方米左右,3-4天完成一层结构层;而木模需要5-6天浇筑一层,而且它适应于各种墙体、水平楼板等,连二次结构和异型构件都能同步施工,施工进度大大加快,时间成本大大降低。 ![]()
2、“铝模+爬架”在施工期间,在遇到工地上临时停电、下雨等情况,铝模也可以正常施工,无任何触电危险。同时,附着式升降脚手架的数字化控制,让“升降”程序的进行不影响各工种施工,从某种角度上讲,施工进度不受外界影响。而木模都是在场外拼装好采用塔吊吊运到仓面,遇到下雨、大雾等恶劣天气,是禁止特种设备施工的,从而施工进度也将会受到影响。 ![]()
【2】木模板和铝模板对比施工质量 1、传统的木模偏差值在10毫米以上,易变形,均采用扣件、钢管定位校模,垂直度采用锤坨,偏差达到1CM,尤其是外围柱,木模加固点多面广,且容易“跑模”,需要有技术水平纯木模工人。 2、由于木模制作不精细,使用次数达到3次以上因接缝有水泥、砂粒等情况,经常需要校正处理,吸水后易发生变形和膨胀,精确度无法达到,至少超出15mm的偏差。 (木模板PK铝合金模板) ![]()
3、在制作方面,阴阳角铝模是一块成型的90度角模,由电脑制图加工,机械生产极为标准,组装精度高,开间尺寸都不会超出5mm,而木模制作则达不到。 4、相比较之下,铝模的构件尺寸偏差值均在毫米之间,铝模柱的根部定位采用焊接固定,垂直度采用激光仪器,精确到了5mm之内,其上下层交界处有一块混凝土固定的共用模块,不易错台;而木模在浇筑过程中,若加固不到位易“跑模”,导致错台。 ![]()
【3】施工安全方面 1.传统的木模是由零散的木方和模板组成,需一块模板、一根木方的进行传统拼装,它以钢管扣件和顶托为支撑,操作不够灵活。材料需塔吊提升,必须使用电动工具有可能出现人员违规操作伤人等情况。 2、附着式脚手架(爬架)的运用,也能为施工楼栋的安全性保驾护航。传统的外架一般从地而起,采用悬挑工字钢和钢丝绳拉索加固。而附着式升降脚手架以定型钢支架为依托,外围钢管架只有17米高,采用密目安全网和塑钢网双层封闭,底座采用模板或钢网片全封闭,每盘操作架都用防护板满铺,做到层层防护。爬行升降过程由电脑操控。 ![]()
3、文明施工方面,铝模系统全部配件均可重复使用150-300次,一套模具、三套支撑架的固定搭配,让施工过程中不需用更改模具支模体系,可循环交替使用,让施工场地找不到多余的材料。随着楼层的升高,附着式升降脚手架同步上升,与铝模结合使用,无须更换结构,标准防护。
二、完美搭档 凸显价格优势
铝模与爬架这对“黄金搭档”的使用,凸显出安全、进度、质量、成本等各项效益方面得到了“双控”,大大的缩短了工期。
1、铝模使用的总工期比传统的木模缩短2个月,同时为项目大量节约了设备租赁费用和材料周转费用。 ![]()
2、采用的附着式升降脚手架(爬架)在自行升降拆除时不用塔吊垂直运输,装饰材料均用施工电梯运输,故完成层面工程后塔吊即可拆除,可以节约4个月的设备租赁费用。 ![]()
3、根据铝模的平整度、垂直度、标高控制度、脚线水平度等数据显示,铝模构件平整光洁,可节约一定费用。采用传统的木模时,使用次数多,模板易变形,所施工的构件必须进行二次装修才能达到交房标准,废材费时。 ![]()
4、铝模施工过程中不需要钢管扣件、顶托、建筑物内的操作板等辅助性材料,还不需要垂直运输设备和小型电动工器具,,也不需要外部吊运材料的卸料平台,节约了一大笔费用。附着式升降脚手架,只有17米固定高度,可以看出,“铝模+爬架”技术结合使用,可降低成本。 5、“铝模+爬架”的使用可减少建筑垃圾,与木模和满架相比,文明措施费用相应要节约30%。
更多铝模相关文章及视频,精彩不容错过!
1、当装配式遇到铝模安全施工,工程狮帮你技术扫盲! 2、吐血整理,新型建筑铝模施工全过程; 3、来自施工一线的铝模技术,看完你就是专家! 4、铝合金模板施工全纪录,在工地就怕认真二字! 5、样板引路,铝合金模板工程施工可视化交底,值得收藏! 6、铝模施工九大常见问题,请对照防治! 7、铝模板安装19步,图文详解控制要点!看完你就是专家(附视频) 8、万科正在大面积推广这些新技术和新工艺,值得学习! 9、万科拉片式铝模板施工方案揭秘!4天一层,一学就会! 10、铝模板+叠合板结构施工体系省时又省力; 11、铝模板施工质量情况汇报,常见质量问题及控制措施! 12、铝框塑料模板:一把铁锤即可安装,成本比铝模板低40%,周转100次; 13、铝合金模板施工各阶段监理控制要点,质量通病分析! 14、铝模深化要点,做技术的必看(经典) 15、这个项目厉害了!铝模,BIM,质量标准化!全是亮点干货! 16、铝模施工九大常见问题,请对照防治!
猜你喜欢:
3、助力2018安全生产月,这100份安全资料合集值得入手(可下载)
版权申明:版权归原作者所有,如涉及作品版权问题,请与我们联系,我们将第一时间删除内容!

加入我们
投稿展示或者分享资料
一起交流一起成长
扫一扫下方二维码,灵感即刻进

官方微信或qq:483972950
官方qq群:343778875 或648915172
规范图集下载群:61754465
官方微信群需要加官方微信即可进入!
技术交流、资料分享、特权权益服务尽在公众号、微信群、qq群,详情请咨询官方微信和qq!如果群里有其他人向你兜售等不法行为,请千万不要相信上当受骗,请认准我们官方微信和qq!
点个“好看”,新年鸿运当头!









