提示:点击↑上方"土木工程资源共享"关注加入
点我资料免费下
【重磅福利】
正文
一悬挑脚手架构造常见问题
1、常见问题一:立杆垂直度偏差较大(现场立杆垂直度偏差为150mm)。

规范规定:

2、常见问题二:纵向水平杆高差偏差较大(现场纵向水平杆高差超100mm)。

规范规定:

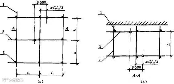
3、常见问题三:纵向水平杆接头位置居于跨中(现场水平杆、立杆接头位置极为随意)。

规范规定:
(1)两根相邻纵向水平杆的接头不应设置在同步或同跨内;不同步或不同跨两个相邻接头在水平方向错开的距离不应小于500mm;各接头中心至最近主节点的距离不应大于纵距的1/3,如下图:

(2)当立杆采用对接接长时,立杆的对接扣件应交错布置,两根相邻立杆的接头不应设置在同步内,同步内隔一根立杆的两个相隔接头在高度方向错开的距离不宜小于500mm;各接头中心至主节点的距离不宜大于步距的1/3。
综上,脚手架同步同跨内不得出现两个接头。
4、常见问题四:小横杆、部分纵向水平杆及连墙件杆件端头伸出扣件盖板边缘长度小于100mm(此类问题现场极多,亟待整改)。


规范规定:
各杆件端头伸出扣件盖板边缘长度不应小于100mm。
5、常见问题五:立杆间距偏大,部分立杆未连续设置,且未进行补强处理(现场施工过程中,立杆间距设置较为随意,同类问题存在于纵向水平杆处)。

处理措施:在有外挑阳台、飘窗板处脚手架立杆断开时,断开脚手架应参照规范中给定的门洞部位脚手架加强措施进行补强处理。
6、常见问题六:连墙件设置方式与规范不符、数量偏少,且现场缺失严重,给架体带来极大安全隐患(此问题必须及早整改)。


参照两幅图:由第十六层起挑的脚手架在北侧楼梯间处自底至顶连墙件全部缺失,并连墙件设置位置极为随意。
规范规定:
(1)连墙件应靠近主节点设置,偏离主节点的距离不应大于300mm。
(2)应从底层第一步纵向水平杆处开始设置,当该处设置有困难时,应采用其它可靠措施固定。
(3)应优先采用菱形布置,或采用方形、矩形布置,一般为“两步三跨”。
(4)连墙件的安装应随脚手架搭设同步进行,不得滞后安装。
7、常见问题七:小横杆设置位置偏离主节点,且部分主节点处漏设小横杆。

小横杆偏离主节点

小横杆未设置
规范规定:(强制条文)。
主节点处必须设置一根横向水平杆,用直角扣件扣接且严禁拆除。
8、常见问题八:脚手架上堆积较多杂物,且未及时清理,给下方施工人员造成安全隐患。


处理措施:管理人员及时跟踪检查,及时清理安全隐患。
9、常见问题九:剪刀撑斜杆错位,且剪刀撑斜杆与架体立杆或水平杆未用扣件连接。

斜杆与立杆未连接

剪刀撑斜杆错位
规范规定:
(1)剪刀撑斜杆的接长应采用搭接或对接,搭接接长时,搭接长度不应小于1m,并应采用不少于2个旋转和扣件固定。端部扣件盖板的边缘至杆端距离不应小于100mm。
(2)剪刀撑斜杆应用旋转扣件固定在与之相交的横向水平杆的伸出端或立杆上,旋转扣件中心线至主节点的距离不宜大于150mm。
(3)每道剪刀撑宽度不应小于4跨,且不应小于6m,斜杆与地面的倾角宜在45°~60°。
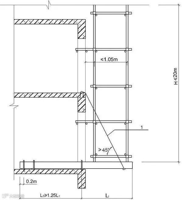
10、常见问题十:悬挑脚手架悬挑型钢的悬挑长度大于其锚固长度,且锚固型钢悬挑梁的U形钢筋拉环多数为单根,并部分锚固型钢悬挑梁的U形钢筋拉环处木塞缺失。

木塞缺失、型钢锚固长度小于其悬挑长度、U型锚固筋为单根

规范规定:
(1)一次悬挑脚手架高度不宜超过20m。
(2)型钢悬挑梁宜采用双轴对称截面的型钢。悬挑钢梁型号及锚固件应按设计确定,钢梁截面高度不应小于160mm。悬挑梁尾端应在两处及以上固定于钢筋混凝土梁板结构上。锚固型钢悬挑梁的U形钢筋拉环或锚固螺栓直径不宜小于16mm。
(3)用于锚固的U形钢筋拉环或螺栓应采用冷弯成型。U形钢筋拉环、锚固螺栓与型钢间隙应用钢楔或硬木楔楔紧。
(4)型钢悬挑梁悬挑端应设置能使脚手架立杆与钢梁可靠固定的定位点,定位点离悬挑梁端部不应小于100mm。
(5)锚固位置设置在楼板上时,楼板的厚度不宜小于120mm。如果楼板的厚度小于120mm应采取加固措施。
(6)悬挑梁间距应按悬挑架架体立杆纵距设置,每一纵距设置一根;型钢悬挑脚手架构造见下图:

二临时用电部分通病:配电箱周围堆放过多材料,通行不便,不利于操作。


危害:发生紧急情况时,通行不便,不能及时断开电源;维修人员不利于操作。
预防:配电箱周围不准堆放材料,尤其是易燃物。材料堆放要远离配电箱3米以上,并且要有畅通的通道。
通病:使用国家明文淘汰的塑料闸刀开关(HK8)。

危害:受热容易融化,绝缘性能差,容易破碎等。
预防:配电箱选购或配备时,禁止使用这种开关;在后期维修时,不要使用这种开关。
通病:高压线下搭设临时板房。

危害:搭设板房时容易触电;恶劣天气容易造成线路摇摆,打火或线路断裂;高压线会产生强磁场,对人体有害;高压线在阴雨天与房屋产生电弧,容易造成电击。
预防:临设规划时就要避开高压线,严禁在高压线下建房屋、操作棚、加工厂等。
通病:临时电缆乱托乱拽,拖地乱拉乱扯。

危害:电缆容易磨损、接地、漏电,造成跳闸、触电。
预防:室外电缆尽量埋设,无法埋设以及室内电缆要架设起来,架设高度要不低于2.5米,过路电缆要设置限高杆。
通病:开关箱不符合要求,一闸多机,有的还接在空开上端头,起不到保护作用。



危害:一闸多机会造成一台设备或线路出故障,影响多台设备运行,而且容易造成误动作;接线混乱会造成线路及设备有故障时,没有开关和漏保的保护,对上一级负荷开关产生影响,因上一级开关脱扣电流较大,容易造成线路烧毁等事故,还容易造成火灾。
预防:严格按照规定配备开关箱,严格按要求接线,专职电工管理。
通病:用四芯电缆外补一根电线代替五芯电缆。


危害:外补电线容易受机械损伤、破损等,造成漏电或影响地线作用。
预防:严格采用五芯电缆,只有不用零线的三相电设备才可以用四芯电缆。
通病:使用国家明文禁止的倒顺开关。

危害:因倒顺开关内各相线触电距离太近,又没有灭弧罩,结构紧凑导致触电距外壳(铁质)距离太小,外壳又容易变形,非常容易造成短路、外壳连电的故障,造成触电。
预防:严禁使用倒顺开关,按规定配置开关箱。
通病:电缆与设备架体、脚手架等钢制结构直接连接,无绝缘措施。


危害:电缆随风摆动,在架体上摩擦,容易损坏漏电,造成钢质构件或钢管带电,出线触电事故。
预防:当电缆沿铁质构件敷设时,要采用瓷瓶等进行架体绝缘,电缆要绑扎牢固。当电缆沿脚手架敷设时要采取防护措施。
通病:开关压线不牢固,或随时间的延长压线端子松动。
危害:电缆与压线端子之间松动,造成接触不良,线路发热,烧损导线绝缘层及开关的压线端子造成漏电及火灾事故。
预防:压线端子一定要压紧导线,每个一段时间紧固一次。
通病:线路老化。

危害:绝缘程度降低,容易烧毁绝缘层造成短路;容易造成绝缘层露出线芯,造成漏电,导致触电事故。
预防:敷设电缆时,要注意电缆的选择,老化电缆不要使用;平时注意电缆的维护,不要受到机械损伤、雨水浸泡、太阳暴晒等,避免加速电缆老化。
通病:配电箱破损、缺少维护,接线混乱,乱接乱扯。

危害:很容易造成触电事故及引发火灾。
预防:加强配电箱的日常维护,严格治理乱拉乱扯的行为,严格制止乱挂线的行为。
| 种类 | 序号 | 内容施工现场常见的安全隐患 |
| 安全管理 | ||
| 安全责任制 | 1 | 项目经理、专职安全员、施工班组长、项目部各职能部门安全生产责任制不健全,各部门管理人员的安全生产责任制流于形式 |
| 2 | 项目部各级、各部门管理人员安全生产责任制的针对性不强,无具体的考核办法,无考核记录 | |
| 3 | 项目部未组织各工种工人学习安全操作规程;安全生产责任制不健全、不落实,各工种工人不懂各自的安全操作规程 | |
| 施工现场的安全管理目标 | 1 | 项目部未按有关规定制订:伤亡事故控制目标、安全达标、文明施工管理目标和消防、交通、机械设备以及环境保护管理目标 |
| 2 | 安全管理目标管理未分解、目标执行情况无考核措施 | |
| 施工组织设计 | 1 | 对专业性较强、危险性较大的分部分项工程未编制专项施工组织设计 |
| 2 | 单位工程施工组织设计中,安全措施不全面、无针对性 | |
| 技术交底 | 1 | 未按专业对施工作业人员进行安全技术交底,或书面交底材料不全面、针对性不强,未按要求履行签字手续 |
| 2 | 安全技术交底没有对环境保护方面提出具体要求 | |
| 安全检查 | 1 | 项目部无安全检查制度,未对现场进行安全检查 |
| 2 | 安全检查无记录、隐患整改不及时 | |
| 1 | 项目部未制定安全教育制度,且无具体安全教育内容 | |
| 2 | 对进点员工未进行安全培训教育就安排上岗作业,对换岗人员和使用“四新”人员未进行安全培训上岗作业 | |
| 班前活动 | 1 | 项目部无班前活动制度,未开展班前活动或班前安全活动无记录 |
| 持证上岗 | 1 | 特种作业工作未持证上岗或持过期证件上岗 |
| 工伤事故 | 1 | 迟报、漏报、谎报和瞒报生产安全事故 |
| 2 | 未按事故处理“四不放过”原则在规定时限内处理事故 | |
| 安全标志 | 1 | 施工现场无安全警示标志,或安全警示标志的布置不符合规范要求 |
| 文明施工 | ||
| 现场围档 | 1 | 工程在市区主要路段的工地周围未设置高于2.5m的围档 |
| 2 | 一般工地围档设置高度不足1.8米,且材料不坚固、不稳定、不整洁、不符合标准要求 | |
| 1 | 进入施工现场的人员佩戴工作卡不全 | |
| 施工场地 | 1 | 大部分施工现场地面未做硬化处理 |
| 2 | 无排水措施或排水不通畅 | |
| 3 | 大部分工地施工的泥浆未做沉淀处理 | |
| 4 | 工地未设置吸烟处,随意吸烟 | |
| 材料堆放 | 1 | 施工材料、构件料具不按总平面图堆放 |
| 2 | 料堆的标准牌材料名称、品种、规格标注不全 | |
| 3 | 材料堆放不整齐 | |
| 4 | 未做到工完料清 | |
| 现场防火 | 1 | 无消防措施制度或无灭火器材 |
| 2 | 灭火器材配备不合理 | |
| 3 | 现场需用明火者无动火审批手续或无动火监护 | |
| 治安综合治理 | 1 | 治安制度责任未分解到人 |
| 2 | 治安防范措施不力,发生失盗事件 | |
| 施工现场标牌 | 1 | 标牌不规范不整齐、内容不全 |
| 2 | 安全标语不全,不醒目 | |
| 3 | 无“五牌一图”设施 | |
| 生活设施 | 1 | 食堂卫生不达标 |
| 2 | 生活垃圾无处理措施 | |
| 保健急救 | 1 | 无保健医药箱 |
| 2 | 无急救措施和急救器材 | |
| 3 | 无培训上岗的急救人员 | |
| 4 | 未开展卫生防病宣传教育 | |
| 社区服务 | 1 | 无防粉尘、防噪声措施 |
| 2 | 夜间施工无施工许可证 | |
| 3 | 现场焚烧有毒有害物质 | |
| 4 | 无施工不扰民措施等 | |
| 施工机具 | ||
| 施工机具 | 1 | 平刨、圆盘锯、钢筋机械、手持电动工具、搅拌机的共同隐患是未做保护接零和无漏电保护器,传动部位无防护罩,护手、手柄等无安全装置,安装后均无验收合格手续 |
| 2 | 平刨和圆盘锯合用一台电机 | |
| 3 | 使用I类手持电动工具不按规定穿戴绝缘用品 | |
| 4 | 电焊机无二次空载降压保护器或无漏电保护器,一次线长度超过规定或不穿管保护,电源不使用自动开关,焊把线接头超过3处或绝缘老化,无防雨罩 | |
| 5 | 搅拌机作业台不平整、不安全,无防雨棚,料斗无保险挂钩或挂钩不使用 | |
| 6 | 气瓶存放不符合要求,气瓶相互间距和气瓶与明火间距不符合规定,无防震圈和防护帽 | |
| 7 | 翻斗车自动装置不灵敏,司机无证驾车或违章驾车 | |
| 8 | 潜水泵保护装置不灵敏、使用不合理 | |
| 9 | 打桩机械无超高限位装置,其行走路线地耐力不符合说明书的规定 | |
| 电动建筑机械上的电动机及开关电器 | 1 | 电动机缺乏维修,进线盒无盖、风扇罩缺螺丝或电动机绝缘老化,绝缘电阻值太低 |
| 2 | 电动机与机械功率不配套,电动机太大或太小 | |
| 3 | 开关电器长期使用已老化、变质、螺丝锈蚀,触头烧伤,接触不良 | |
| 4 | 更换的开关电器与原型号、规格不符 | |
| 起吊设备 | ||
| 起重吊装 | 1 | 超重吊装作业无方案,有作业方案但未经审批,方案针对性不强 |
| 2 | 起重机无超高和力矩限制器 | |
| 3 | 起重机吊钩无保险装置 | |
| 4 | 起重扒杆组装不符合设计要求 | |
| 5 | 钢丝绳磨损、断丝超标 | |
| 6 | 缆风绳安全系数小于3.5倍 | |
| 7 | 吊点不符合设计规定位置 | |
| 8 | 司机或指挥无证上岗,非本机型司机操作 | |
| 9 | 起重机作业路面地耐力不符合要求 | |
| 10 | 被吊物体无防坠落措施 | |
| 11 | 结构吊装未设备防坠落措施 | |
| 12 | 作业人员不系安全带,或安全带无牢靠挂点 | |
| 13 | 人员上下无专用爬梯、斜道 | |
| 14 | 作业平台临边防护不符合要求,作业平台脚手板不满铺 | |
| 15 | 起重吊装作业人员无可靠立足点 | |
| 16 | 物件堆放超高、超载 | |
| 物料提升机(龙门架和井子架) | ||
| 起重吊装 | 1 | 吊篮无停靠装置 |
| 2 | 吊篮无超高限位装置 | |
| 3 | 未设置缆风绳 | |
| 4 | 缆风绳不使用钢丝绳,缆风绳的组装、角度、地锚不符合要求 | |
| 5 | 架体与建筑结构连墙杆的设置不符合要求 | |
| 6 | 钢丝绳磨损已超过报废标准 | |
| 7 | 钢丝绳无过路保护 | |
| 8 | 钢丝绳拖地 | |
| 9 | 楼层卸料平台和防护不符合要 | |
| 10 | 地面进料口无防护棚 | |
| 11 | 吊篮无安全门,违章乘坐吊篮上下 | |
| 12 | 架体垂直度偏差超过规定 | |
| 13 | 卷筒上无防止钢丝绳滑脱保险装置 | |
| 14 | 无联络信号 | |
| 15 | 在相邻建筑物防雷保护范围以外无避雷装置 | |
| “三宝”及“四口”防护 | ||
| “三宝”及“四口”防护 | 1 | 员工自我防护意识不强,进入施工现场不戴安全帽或安全帽佩戴不规范 |
| 2 | 安全网的规格和材质不符合要求,未按规定设置平网和立网 | |
| 3 | 悬空作业、高空作业未系安全带,安全带系挂不符合要求 | |
| 4 | 楼梯口、楼梯踏步悬挑端无防护措施 | |
| 5 | 预留洞口无防护措施,坑井无防护措施 | |
| 6 | 通道口未设防护棚或设置的防护棚不牢固 | |
| 7 | 未安装栏杆的阳台周边、无脚手架的屋面周边、井架通道的两侧边、卸料台的外侧边、框架建筑的楼层周边等五临边无防护措施,或防护措施不符合要求 | |
| 基坑支护与模板工程 | ||
| 基坑支护 | 1 | 基础施工无支护方案;有支护方案的,方案无针对性,不能指导施工;基坑深度超过5m的,无专项设计 |
| 2 | 基坑临边防护措施不符合要求 | |
| 3 | 坑槽开挖设置的安全边坡不符合安全坡度要求 | |
| 4 | 基坑施工未设置有效的排水措施;深基坑施工采用坑外排水,无防止临近建筑物危险沉降的措施 | |
| 5 | 基坑周边弃土堆料距坑边的距离小于设计和规范的规定 | |
| 6 | 基坑内作业人员上下通道的搭设不符合规定,或陡、或窄、或无扶手 | |
| 7 | 土方开挖时,挖“神仙土”,即从坑槽壁中、下部往内挖凹进去,让中、上部土体自然垮塌 | |
| 8 | 机械挖土,挖土机作业位置不牢固 | |
| 模板工程 | 1 | 无模板工程施工方案 |
| 2 | 现浇混凝土模板支撑系统无设计计算书,支撑系统不符合规范要求 | |
| 3 | 支撑模板的立杆材质及间距不符合要求 | |
| 4 | 立柱长度不一致,或采用接短柱加长,交接处不牢固,或在立柱下垫几块砖加高 | |
| 5 | 未按规范要求设计纵横向支撑 | |
| 6 | 木立柱下端未锯平,下端无垫板 | |
| 7 | 混凝土浇灌运输道不平稳、不牢固 | |
| 8 | 作业面孔洞及临边无防护措施 | |
| 9 | 垂直作业上下无隔离防护措施 | |
| 10 | 2m以上高处作业无可靠立足点 | |
| 脚手架 | ||
| 脚手架 | 1 | 脚手架无搭设方案,架子工无证上岗 |
| 2 | 脚手架与建筑物的拉结不够牢固 | |
| 3 | 杆件间距与剪刀撑的位置不符合规范的规定 | |
| 4 | 脚手板、立杆、大横杆、小横杆材质不符合要求 | |
| 5 | 施工层脚手板未铺满 | |
| 6 | 脚手架搭设前未进行交底,未组织脚手架分段及搭设完毕后的检查验收 | |
| 7 | 脚手架上材料堆放不均匀,荷载超过规定 | |
| 8 | 通道及卸料平台的防护栏杆不符合规范规定 | |
| 施工用电 | ||
| 外电防护 | 1 | 外电线路与在建工程及脚手架、起重机械、场内机动车道的安全距离不符合规范要求 |
| 2 | 当安全距离不符合规范要求时,未采取绝缘隔离防护措施,未悬挂明显的警示标志 | |
| 3 | 防护设施与外电线路的安全距离不符合规范要求,不坚固、不稳定 | |
| 4 | 在外电架空线路正下方进行施工、建造临时设施或堆放材料物品 | |
| 接地与接零保护系统 | 1 | 施工现场专用的电源中性点直接接地的低压配电系统未采用 TN-S 接零保护系统 |
| 2 | 施工现场配电保护系统不规范; | |
| 3 | 电气设备的金属外壳未与保护零线连接 | |
| 4 | 保护零线未单独敷设、线路上装设开关或熔断器 | |
| 5 | 保护零线未采用绝缘导线、规格和颜色标记不符合规范要求 | |
| 6 | 配电系统的中间处和末端处未做重复接地 | |
| 7 | 接地装置的接地线未采用 2 根及以上导体,在不同点与接地体做电气连接;接地体未采用角钢、钢管或光面圆钢 | |
| 8 | 工作接地电阻大于 4Ω,重复接地电阻大于 10Ω | |
| 9 | 施工现场起重机、物料提升机、施工升降机、脚手架未按规范要求采取防雷措施, 且防雷装置的冲击接地电阻值大于 30Ω | |
| 10 | 做防雷接地机械上的电气设备,保护零线没有同时做重复接地 | |
| 配电线路 | 1 | 线路及接头不能保证机械强度和绝缘强度 |
| 2 | 线路未设短路、过载保护,导线截面不能满足线路负荷电流 | |
| 3 | 线路的设施、材料及相序排列、档距、与邻近线路或固定物的距离不符合规范要求 | |
| 4 | 电缆未采用架空或埋地敷设,随意沿地面明设或沿脚手架、树木等敷设 | |
| 5 | 室内非埋地明敷主干线距地面高度小于 2.5m | |
| 配电箱与开关箱 | 1 | 施工现场配电系统未采用三级配电、二级漏电保护系统,用电设备未设置各自专用的开关箱 |
| 2 | 箱体结构、箱内电器设置及使用不符合规范要求 | |
| 3 | 配电箱没有分设工作零线端子板和保护零线端子板,保护零线、工作零线没有通过各自的端子板连接 | |
| 4 | 总配电箱与开关箱未安装漏电保护器,或漏电保护器参数不匹配、不灵敏 | |
| 5 | 箱体未设置系统接线图和分路标记,无门、锁及防雨措施 | |
| 6 | 箱体安装位置、高度及周边通道不符合规范要求 | |
| 7 | 分配箱与开关箱间的距离超过 30m,开关箱与用电设备间的距离超过 3m | |
| 配电室与配电装置 | 1 | 配电室的建筑耐火等级不符合规范要求,配电室未配置适用于电气火灾的灭火器材 |
| 2 | 配电室、配电装置的布设不符合规范要求 | |
| 3 | 配电装置中的仪表、电器元件设置不符合规范要求 | |
| 4 | 配电室未采取防止风雨和小动物侵入的措施 | |
| 5 | 配电室未设置警示标志、工地供电平面图和系统图 | |
| 现场照明 | 1 | 照明用电未与动力用电分设 |
| 2 | 特殊场所和手持照明灯未采用安全电压供电 | |
| 3 | 照明变压器未采用双绕组安全隔离变压器 | |
| 4 | 灯具金属外壳未设接保护零线 | |
| 5 | 灯具与地面、易燃物间的距离不符合规范要求 | |
| 6 | 照明线路和安全电压线路的架设不符合规范要求 | |
| 7 | 施工现场未按规范要求配备应急照明 | |
| 用电档案 | 1 | 总包单位与分包单位未签订临时用电管理协议,明确各方相关责任 |
| 2 | 施工现场未制定专项用电施工组织设计、外电防护专项方案 | |
| 3 | 专项用电施工组织设计、外电防护专项方案未履行审批程序,实施后也未经相关部门组织验收 | |
| 4 | 用电各项记录未按规定填写,记录不真实 | |
| 5 | 用电档案资料不齐全,未设专人管理 |
|
3、助力2018安全生产月,这100份安全资料合集值得入手(可下载)

加入我们
投稿展示或者分享资料
一起交流一起成长
扫一扫下方二维码,灵感即刻进

官方微信或qq:483972950
官方qq群:343778875 或648915172
规范图集下载群:61754465
官方微信群需要加官方微信即可进入!
技术交流、资料分享、特权权益服务尽在公众号、微信群、qq群,详情请咨询官方微信和qq!如果群里有其他人向你兜售等不法行为,请千万不要相信上当受骗,请认准我们官方微信和qq!

