提示:点击↑上方"土木工程资源共享"关注加入
点我资料免费下
【重磅福利】
正文

脚手架是在建筑安装施工中占有特别重要地位的临时设施。砼结构浇筑、砖墙砌筑、装饰和粉刷、管道安装、设备安装等,都需要搭设脚手架。它是顺利完成电力建设建筑、安装工程施工任务必不可少的重要工具之一。选择与使用的合适与否,不但影响施工作业的顺利进行和安全保障,而且也关系到工程质量、施工进度和经济效益的提高。
按用途分有砌筑脚手架、装修脚手架、安装脚手架和模板支撑架等;
按搭设位置分有内脚手架和外脚手架;
按材质分有木脚手架、竹脚手架和金属脚手架;按结构形式分有立杆式、框组式(门型架)、桥式、吊式、挂式、挑式以及其它工具式脚手架;按立杆搭设排数分单排脚手架、双排脚手架和满膛脚手架。
脚手架的组成由垫板、底座、立杆、大、小横杆、斜撑、抛撑、剪刀撑、连墙杆、扫地杆及其附件等,下面就其主要作用介绍如下:
1、立杆(也称立柱、站杆、冲天杆、竖杆等):与地面垂直,是脚手架的主要受力杆件。它的作用是将脚手板上的全部荷载通过底座、垫板传到地基上。
2、大横杆(也称顺水杆、纵向水平杆、牵杆等):与墙面平行。其作用是与立杆连成整体,将脚手板上的全部荷载传到立杆上。
3、小横杆(也称横楞、横担、横向水平杆、六尺杠、排木):与墙面垂直,作用是直接承受脚手板上的荷载,并将这部分荷载传到大横杆上。在双排脚手架中,它是连接内外两排架体,增强脚手架整体稳定性的重要杆件。
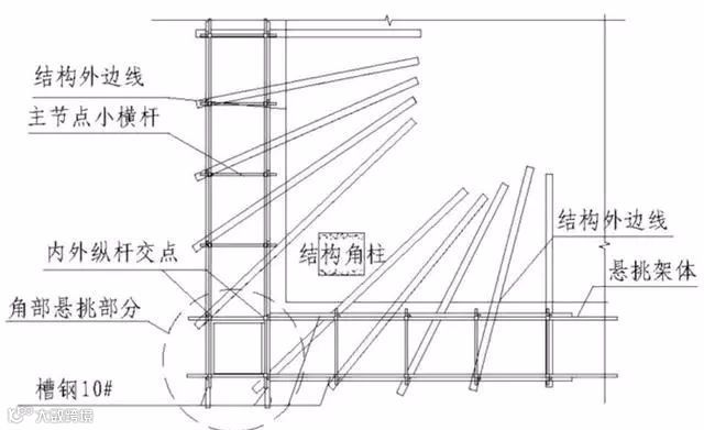
4、斜撑(也称斜戗、八字撑):与脚手架外排立杆紧贴连接,与其立杆斜交并与地面形成45°-60°角,上下连续设置,形如“之”字。主要设置在脚手架拐角处,其作用是防止架子沿纵长方向倾斜并承受脚手架的水平作用力。
5、剪刀撑(也称十字撑、十字盖):在脚手架外侧设置的双支斜杆、互相交叉,都与地面形成45°-60°夹角。作用是把脚手架连为一体并承受脚手架的水平作用力,增强脚手架的整体稳定性。
6、抛撑(也称支撑、压栏子):是设置在脚手架外排(周围)、从地面支撑脚手架的斜杆,一般与地面成60°夹角,作用是增加脚手架横向稳定,阻止脚手架向外倾斜或倾倒,在支撑脚手架初期和拆除脚手架剩最后几步时,其作用尤为重要。抛撑应用一水平支撑(也称马梁、反支撑)与脚手架立杆连接,以增强稳定性。
7、连墙杆(也称拉接):是沿立杆的竖向(垂直)不大于4米,水平方向不大于7米,设置能承受拉和压而与主体结构相联的水平杆件,作用是承受脚手架的全部风荷载和脚手架里、外排立杆不均匀下沉时所产生的荷载。
8、扫地杆:它紧贴于地面的纵向水平杆,其作用是增强脚手架立杆根部的稳定性。
9、脚手板(也称跳板、架板):它是铺于小横杆上直接承受施工荷载的构件。














2019年06月现行规范图集525本 | 建筑 | 市政 | 消防 | 电气 | 公路 | 安全 | 范本表格 | 点击下载








2019年06月现行规范图集525本 | 建筑 | 市政 | 消防 | 电气 | 公路 | 安全 | 范本表格 | 点击下载









32、卸料平台


脚手架是在建筑安装施工中占有特别重要地位的临时设施。砼结构浇筑、砖墙砌筑、装饰和粉刷、管道安装、设备安装等,都需要搭设脚手架。它是顺利完成电力建设建筑、安装工程施工任务必不可少的重要工具之一。选择与使用的合适与否,不但影响施工作业的顺利进行和安全保障,而且也关系到工程质量、施工进度和经济效益的提高。
按用途分有砌筑脚手架、装修脚手架、安装脚手架和模板支撑架等;
按搭设位置分有内脚手架和外脚手架;
按材质分有木脚手架、竹脚手架和金属脚手架;按结构形式分有立杆式、框组式(门型架)、桥式、吊式、挂式、挑式以及其它工具式脚手架;按立杆搭设排数分单排脚手架、双排脚手架和满膛脚手架。
脚手架的组成由垫板、底座、立杆、大、小横杆、斜撑、抛撑、剪刀撑、连墙杆、扫地杆及其附件等,下面就其主要作用介绍如下:
1、立杆(也称立柱、站杆、冲天杆、竖杆等):与地面垂直,是脚手架的主要受力杆件。它的作用是将脚手板上的全部荷载通过底座、垫板传到地基上。
2、大横杆(也称顺水杆、纵向水平杆、牵杆等):与墙面平行。其作用是与立杆连成整体,将脚手板上的全部荷载传到立杆上。
3、小横杆(也称横楞、横担、横向水平杆、六尺杠、排木):与墙面垂直,作用是直接承受脚手板上的荷载,并将这部分荷载传到大横杆上。在双排脚手架中,它是连接内外两排架体,增强脚手架整体稳定性的重要杆件。
4、斜撑(也称斜戗、八字撑):与脚手架外排立杆紧贴连接,与其立杆斜交并与地面形成45°-60°角,上下连续设置,形如“之”字。主要设置在脚手架拐角处,其作用是防止架子沿纵长方向倾斜并承受脚手架的水平作用力。
5、剪刀撑(也称十字撑、十字盖):在脚手架外侧设置的双支斜杆、互相交叉,都与地面形成45°-60°夹角。作用是把脚手架连为一体并承受脚手架的水平作用力,增强脚手架的整体稳定性。
6、抛撑(也称支撑、压栏子):是设置在脚手架外排(周围)、从地面支撑脚手架的斜杆,一般与地面成60°夹角,作用是增加脚手架横向稳定,阻止脚手架向外倾斜或倾倒,在支撑脚手架初期和拆除脚手架剩最后几步时,其作用尤为重要。抛撑应用一水平支撑(也称马梁、反支撑)与脚手架立杆连接,以增强稳定性。
7、连墙杆(也称拉接):是沿立杆的竖向(垂直)不大于4米,水平方向不大于7米,设置能承受拉和压而与主体结构相联的水平杆件,作用是承受脚手架的全部风荷载和脚手架里、外排立杆不均匀下沉时所产生的荷载。
8、扫地杆:它紧贴于地面的纵向水平杆,其作用是增强脚手架立杆根部的稳定性。
9、脚手板(也称跳板、架板):它是铺于小横杆上直接承受施工荷载的构件。













2019年06月现行规范图集525本 | 建筑 | 市政 | 消防 | 电气 | 公路 | 安全 | 范本表格 | 点击下载








2019年06月现行规范图集525本 | 建筑 | 市政 | 消防 | 电气 | 公路 | 安全 | 范本表格 | 点击下载









32、卸料平台

您的转发是对我们最大的支持
猜你喜欢:
3、助力2018安全生产月,这100份安全资料合集值得入手(可下载)
来源:工程技术平台
申明:素材来源网络,版权归原作者所有。

加入我们
投稿展示或者分享资料
一起交流一起成长
扫一扫下方二维码,灵感即刻进

官方微信或qq:483972950
官方qq群:343778875 或648915172
规范图集下载群:61754465
官方微信群需要加官方微信即可进入!
技术交流、资料分享、特权权益服务尽在公众号、微信群、qq群,详情请咨询官方微信和qq!如果群里有其他人向你兜售等不法行为,请千万不要相信上当受骗,请认准我们官方微信和qq!


