提示:点击↑上方"土木工程资源共享"关注加入
点我资料免费下
【重磅福利】

脚手架是在建筑安装施工中占有特别重要地位的临时设施。砼结构浇筑、砖墙砌筑、装饰和粉刷、管道安装、设备安装等,都需要搭设脚手架。它是顺利完成电力建设建筑、安装工程施工任务必不可少的重要工具之一。选择与使用的合适与否,不但影响施工作业的顺利进行和安全保障,而且也关系到工程质量、施工进度和经济效益的提高。
按用途分有砌筑脚手架、装修脚手架、安装脚手架和模板支撑架等;
按搭设位置分有内脚手架和外脚手架;
按材质分有木脚手架、竹脚手架和金属脚手架;按结构形式分有立杆式、框组式(门型架)、桥式、吊式、挂式、挑式以及其它工具式脚手架;按立杆搭设排数分单排脚手架、双排脚手架和满膛脚手架。
脚手架的组成由垫板、底座、立杆、大、小横杆、斜撑、抛撑、剪刀撑、连墙杆、扫地杆及其附件等,下面就其主要作用介绍如下:
1、立杆(也称立柱、站杆、冲天杆、竖杆等):与地面垂直,是脚手架的主要受力杆件。它的作用是将脚手板上的全部荷载通过底座、垫板传到地基上。
2、大横杆(也称顺水杆、纵向水平杆、牵杆等):与墙面平行。其作用是与立杆连成整体,将脚手板上的全部荷载传到立杆上。
3、小横杆(也称横楞、横担、横向水平杆、六尺杠、排木):与墙面垂直,作用是直接承受脚手板上的荷载,并将这部分荷载传到大横杆上。在双排脚手架中,它是连接内外两排架体,增强脚手架整体稳定性的重要杆件。
4、斜撑(也称斜戗、八字撑):与脚手架外排立杆紧贴连接,与其立杆斜交并与地面形成45°-60°角,上下连续设置,形如“之”字。主要设置在脚手架拐角处,其作用是防止架子沿纵长方向倾斜并承受脚手架的水平作用力。
5、剪刀撑(也称十字撑、十字盖):在脚手架外侧设置的双支斜杆、互相交叉,都与地面形成45°-60°夹角。作用是把脚手架连为一体并承受脚手架的水平作用力,增强脚手架的整体稳定性。
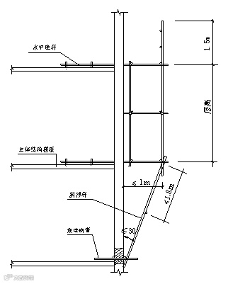
6、抛撑(也称支撑、压栏子):是设置在脚手架外排(周围)、从地面支撑脚手架的斜杆,一般与地面成60°夹角,作用是增加脚手架横向稳定,阻止脚手架向外倾斜或倾倒,在支撑脚手架初期和拆除脚手架剩最后几步时,其作用尤为重要。抛撑应用一水平支撑(也称马梁、反支撑)与脚手架立杆连接,以增强稳定性。
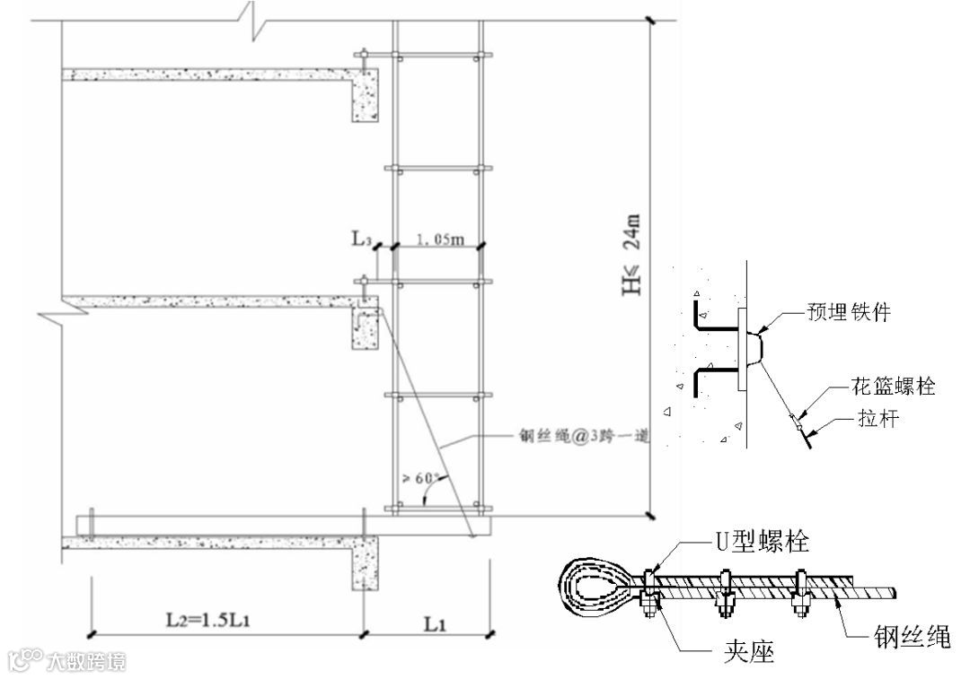
7、连墙杆(也称拉接):是沿立杆的竖向(垂直)不大于4米,水平方向不大于7米,设置能承受拉和压而与主体结构相联的水平杆件,作用是承受脚手架的全部风荷载和脚手架里、外排立杆不均匀下沉时所产生的荷载。
8、扫地杆:它紧贴于地面的纵向水平杆,其作用是增强脚手架立杆根部的稳定性。
9、脚手板(也称跳板、架板):它是铺于小横杆上直接承受施工荷载的构件。
1、立杆

2、构配件

3、立杆基础

4、立杆接头

5、水平杆

6、水平杆(concluded)

7、连墙杆

8、连墙杆(continued)

9、连墙杆(continued)

10、连墙杆(continued)

11、连墙杆(concluded)

12、抛撑

13、门洞

14、剪刀撑

15、剪刀撑

16、剪刀撑(concluded)

17、横向斜撑

18、斜道

19、型钢悬挑脚手架

20、型钢悬挑脚手架(continued)

21、型钢悬挑脚手架(continued)

22、型钢悬挑脚手架(continued)


23、型钢悬挑脚手架(continued)

24、型钢悬挑脚手架(continued)

25、型钢悬挑脚手架(concluded)

26、钢管悬挑脚手架

27、钢管悬挑脚手架(continued)

28、钢管悬挑脚手架(continued)


29、钢管悬挑脚手架(concluded)

30、卸料平台

31、卸料平台(continued)

32、卸料平台(continued)

33、卸料平台(continued)

34、卸料平台(continued)

猜你喜欢:
3、助力2018安全生产月,这100份安全资料合集值得入手(可下载)
来源:网络
如有侵权请联系删除

加入我们
投稿展示或者分享资料
一起交流一起成长
扫一扫下方二维码,灵感即刻进
官方微信或qq:483972950
官方qq群:343778875 或648915172



