提示:点击↑上方"土木工程资源共享"关注加入
点我资料免费下
【重磅福利】
正文
一
设计概况
序号
栋号
地上层数
地下层数
建筑面积(m2)
建筑屋面高度(m)
室内设计正负零相当于绝对高程(m)
1
1#住宅
11
局部1层
13521.21
33.90
236.450
2
2#住宅
12
局部1层
13007.94
36.90
234.750
3
3#住宅
11
局部1层
8292.48
33.90
233.450
4
4#住宅
4
2
2326.76
12.90
226.700
5
5#住宅
6
2
5713.45
18.80
226.700
6
6#住宅
12
局部1层
14734.01
36.90
23.750
7
7#住宅(20)
11
2或1
15208.82
33.90
226.700
8
8#住宅
4
1
1543.57
12.90
234.050
9
9#住宅
4
1
1543.57
12.90
233.550
10
10#住宅
5
2
4919.23
15.00
232.750
11
11#住宅
4
1
1543.57
12.90
231.950
12
12#住宅
4
2
2691.25
12.00
231.450
13
13#住宅
5
局部2
4763.57
18.00
230.950
14
14#住宅
7
局部1
9243.35
21.9
229.850
15
15#住宅(21)
7
2或1
9996.94
21.90
228.850
16
16#住宅
4
局部2
3992.72
21.90
230.500
17
综合楼17
2
1473.75
11.75
231.800
18
商业、影院
11538.17
20.15
19
地库
4926.57
226.700
二
混凝土概况
序号
结构部位
强度等级
抗渗等级
1
地下部分
基础垫层
C15
2
墙柱
C30
P6
3
连梁
C30
4
筏板、独立基础
C30
P6
5
基础梁、承台梁
C30
6
地上部分
1层~顶层
梁、板
C30
7
墙柱
C30
8
柱
C30
9
楼梯、构造柱、圈梁、过梁
C20
三
施工特点及要求
1、施工特点
1)梁截面尺寸较多,模板支撑架搭设高度频多
2)模板支撑架搭设高度较高:最高处支撑架高度达到4.85m。
3)梁集中线荷载大。
4)梁的跨度较大,存在1300mm~10500mm不同跨度的梁。
2、施工要求
1)确保模板在搭设及使用过程中安全、稳定、牢靠。
2)加强施工过程控制,随时检查纠偏,确保现场严格按照方案施工,使模板搭设及拆除符合工程施工进度限制及质量要求。
3)模板施工前对施工人员进行技术交底,严禁盲目施工。
4)要求墙柱垂直度及梁的定位满足质量验收要求,墙、柱、梁满足设计截面尺寸要求。
5)当梁板跨度大于4m时,模板安装应按设计要求起拱,本工程设计起拱要求为:对于跨度不小于4m及悬挑长度不小于2m的现浇钢筋混凝土梁板,非悬挑梁、板起拱2/1000,悬挑梁、板起拱3/1000。
四
施工工艺
1、模板搭设技术参数
170厚板搭设参数
项目
搭设参数
模板支架高度(m)
不大于5m
立杆纵向间距la(mm)
900
立杆横向间距lb(mm)
700
水平横杆步距h(mm)
1500
小梁(板底木方)间距(mm)
150
主梁(板底钢管)间距(mm)
900
竖向剪刀撑
架体外侧四周设置竖向剪刀撑;
‚框架梁底顺梁两侧方向设置竖向剪刀撑;
ƒ按‚设置后,剪刀撑的间距不大于6m,并连续设置;
水平剪刀撑
在满堂架体的扫地杆和竖向剪刀撑的顶部各设置一道水平剪刀撑。
适用范围
适用搭设高度小于等于5m的所有楼板搭设
备注
160厚的板底支撑均按170mm厚板考虑
130厚板搭设参数
项目
搭设参数
模板支架高度(m)
不大于5m
立杆纵向间距la(mm)
900
立杆横向间距lb(mm)
900
水平横杆步距h(mm)
1800
小梁(板底木方)间距(mm)
200
主梁(板底钢管)间距(mm)
900
竖向剪刀撑
架体外侧四周设置竖向剪刀撑;
‚框架梁底顺梁两侧方向设置竖向剪刀撑;
ƒ按‚设置后,剪刀撑的间距不大于6m,并连续设置;
水平剪刀撑
在满堂架体的扫地杆和竖向剪刀撑的顶部各设置一道水平剪刀撑。
适用范围
适用搭设高度小于等于5m的所有楼板搭设
备注
厚度<130的板底支撑均按130mm厚板考虑
600×600、500×600、500×500、400×400、300×300、200×600柱搭设参数
项目
搭设参数
混凝土柱截面尺寸(mm)
600×600
加固方式
小梁竖向贴在模板上,钢管横向贴在小梁上
长边对拉螺杆个数
0
短边对拉螺杆个数
0
柱箍间距
400mm
柱箍与离板距离
150mm
搭设简图:

600×900、600×800柱搭设参数
项目
搭设参数
混凝土柱截面尺寸(mm)
600×900
加固方式
小梁竖向贴在模板上,钢管横向贴在小梁上
长边对拉螺杆个数
3
短边对拉螺杆个数
2
柱箍间距
400mm
柱箍与板距离
150mm
搭设简图:

200×700、300×600、200×400、250×400、250×700、250×500、200×500、200×500、250×450、200×820、200×850、200×800、200×650、300×500、300×400、200×600梁搭设参数
项目
搭设参数
混凝土梁截面尺寸(mm)
300×600
支撑方式
梁两侧有板,梁板立柱共用
梁跨度方向立柱间距(mm)
800
梁两侧立杆间距(mm)
800
梁底增加立柱根数
0
步距(mm)
1800
梁底支撑木方根数
4
使用的梁截面
适用于截面面积为300×600及以下的梁
搭设简图:


300×700、300×800、300×830、200×1830、300×750梁搭设参数
项目
搭设参数
混凝土梁截面尺寸(mm)
350×1200
支撑方式
梁两侧有板,梁板立柱共用
梁跨度方向立柱间距(mm)
900
梁两侧立杆间距(mm)
900
梁底增加立柱根数
1
步距(mm)
1800
梁底支撑木方根数
3
使用的梁截面
适用于截面为350×1200及以下的梁。
搭设简图:


2、施工工艺及流程
1)模板及支撑架搭设流程:

2)基础处理
本工程模板系统支撑是以楼地面底板,故模板支撑架搭设基础不需作特殊处理,架体搭设时只需在立杆底部垫木方或模板对楼面混凝土进行保护即可。
3)测量放线
采用铅垂仪、全站仪、卷尺等测量工具在楼面上放出定位轴线,弹出墙柱、梁等构件的边线,及模板控制线(详见下图),根据满堂支撑架立杆纵横向间距弹出立杆定位线,根据定位线搭设满堂架及模板。


4)架体搭设
立杆
立杆间距应按照盘口式钢管脚手架搭设,搭设过程应根据每一块楼板的实际面积排布立杆,局部需要增加立杆或者横杆时,需要加设立杆或者水平横杆,保证立杆、横杆间距不大于搭设参数。
立杆接长应采用对接,采用可调底座或可调顶托精确调整立杆高度,可调底座或可调顶托插入钢管的最小长度应大于150mm,可调顶托伸出长度不能大于200mm。
严禁搭接,相邻两对接接头不得处于同一步距范围内,接头宜设置在h/3处,h表示步距,且两相隔接头应相互错开不小于500mm的距离,如下图:

立杆图示
严禁将上段的钢管立柱与下端钢管立柱错开固定在水平拉杆上。
不同支架立柱不得混用,避免扣件无法扣接或立杆强度不满足设计要求。
梁和板的立柱,其纵横向间距应相等或成倍数(详见下图),以确保满堂支撑架的立杆排布成列、不混乱,便宜材 料搬运。

立杆平面图
水平杆
在距地面不大于200mm处,沿纵横向设置纵下横上水平扫地杆。可调顶托托底部、立杆顶端应纵横向设置一道水平拉杆。扫地杆与顶部水平拉杆之间按照步距要求设置水平拉杆,每一步距处纵横向均需设水平拉杆。
每步纵横向水平杆必须拉通,在盘扣式钢管水平杆件不够长时,接长应采用对接扣件连接。水平对接接头宜设置在La/3处,且两相邻接头应互错开不小于500mm的距离,详见接头图示:

接头图示
梁模板立杆应与楼板模板立杆应通过水平杆相互连接,形成整体。
所有水平杆的端部均应与四周墙、柱顶紧顶牢,无处可顶时,应在水平拉杆端部和中部沿竖向设置连续式剪刀撑。
5)剪刀撑
竖向剪刀撑的设置
架体外侧四周设置竖向剪刀撑;框架梁底顺梁方向设置竖向剪刀撑;按1)、2)设置后,如剪刀撑间距大于6m,再在板底加设竖向剪刀撑,使剪刀撑的间距不大于6m;竖向剪刀撑由底至顶的连续设置;剪刀撑与楼层之间的斜角为45~60°。
水平剪刀撑的设置
在满堂架体的扫地杆和竖向剪刀撑顶部各设置一道水平剪刀撑。水平剪刀撑宜设置在与竖向剪刀撑相交的部位。剪刀撑接长应采用搭接,搭接长度不得小于1000mm,并应采用不少于3个 旋转扣件分别在离杆端不小于100mm处进行固定。
6)一般规定
架体搭设应保证结构和构件各部分形状尺寸,相互位置的正确。
多层支撑时,上下二层的支点应在同一垂直线上,并应设底座和垫板。
支架搭设按本模板设计,不得随意更改;要更改必须得到相关负责人的认可。
U型顶托采用双钢管不允许放单根钢管或木方(尤其是跨度较大时),且端部丝杆长度不能超过300。
7)墙柱模板支撑
安装墙模时应先在底板或楼面上弹出墙的中线及边线,按照线的位置安装门窗洞口模板,待钢筋绑扎完成后根据边线立侧模,侧模面板板与板之间的拼缝应密实,不漏浆。
墙模板的面板应预先跟小梁(40×80的矩形木方)钉成大块模板,墙、柱模板竖向小梁中心间距不大于200且摆放均匀,主梁与小梁垂直,主梁用“3”形卡及对拉螺栓固定。外墙模板顶端向下150左右预埋对拉螺杆间距为600,支上层模板时模板和木方必须下伸至少200,控制错台。
剪力墙模板采用M14对拉螺杆,第一道水平对拉螺杆离地间距不大于150,第一道对拉螺杆以上的螺杆间竖向间距分别不大于450,每排对拉螺杆间的横向间距不大于450。穿墙螺杆应注意两侧穿孔的模板对称放置,以使穿墙螺杆与墙模保持垂直,室内通长螺栓可以套PVC管,以便回收利用,对于地下室外墙,对拉螺栓应采用止水对拉螺杆,不用穿PVC套管。
墙柱模板必须设置可靠的斜支撑,斜支撑设置在混凝土面或柱脚上,严禁直接连接在满堂架上。
墙柱端部必须用垂直于该端面的对拉螺杆对拉,并在接口处贴双面胶防止漏浆,L型墙体也用垂直于端面的螺杆保证端面不胀模。若对拉螺杆长度不足,可采用中间焊接钢筋的方式进行接长。
预留门窗洞口的模板安装支撑牢固,且便宜拆除;墙模板上预留的小洞口,当遇到钢筋时,钢筋可在洞口处局部绕开,其它地方应保证钢筋的数量和位置正确,不得将钢筋截断。
当模板安装校正完成后,应检查扣件、对拉螺栓是否紧固,模板拼缝是否严密,门洞边的模板是否安装牢固等。
8)梁模板支撑
梁下支撑架与板下支撑架连成整体,采用扣件式钢管连接搭设,梁下间距不满足盘扣式模数时,采用扣件式架体进行搭设,其立杆的间距、横杆步距等应按照相应的模板技术参数进行搭设。
根据墨线安装两侧模板、压脚板、斜撑等。两侧模板的高度应根据梁高及楼板模板碰帮或压帮(详见下图)确定。

梁底木方与梁垂直摆放,间距不大于200且摆放均匀。
梁底钢管两侧加扣件固定,保证梁不移位(梁两端必须加,中间段大于4000mm加一个跳步加)。
墙、梁、柱模板内均匀放置內撑条,接缝处、梁口向下150位置处必须放置,且內撑条必须是带卡槽的(或者必须绑扎在钢筋上)。
高度大于700的梁必须在梁的中部增加一排对拉螺杆,间距为600mm。
9)楼板模板支撑
楼板模板安装时,应先拉通线调节支架的高度,将主梁(钢管)找平,再在主梁上布置木枋,然后铺设模板,模板铺设完成后认真检查支架是否牢固,并将模板清扫干净。
楼板模板一般是整张铺设,局部拼补的方法,模板的接缝应设置在小梁上,应严密不漏浆,当不满足接缝要求时,可用橡胶条或海绵条嵌缝,避免漏浆,或采用腻子填补,腻子可用石灰、粉煤灰、水泥、锯末等拌制。
板底木方中心间距不大于150且摆放均匀。
10)钢筋绑扎
模板上的钢筋成品及其它施工材料应均匀堆放,放平放稳。
为使钢筋绑扎正确,对于剪力墙、楼板钢筋等应先在模板上用粉笔画出钢筋间距线;对于柱箍筋在两根对角线纵向受力钢筋上画点标明;梁箍筋在架立筋上画点。
梁钢筋的绑扎与模板安装之间的配合关系:①梁的高度较小时,梁的钢筋架空在梁顶上绑扎,然后再落位;②梁截面高度≥1.0m 时,梁的钢筋宜在梁底模上绑扎,其两侧模板或一侧模板在梁钢筋绑扎就位好后安装。
11)泵管及布料机架设
泵管架在底层和施工楼层的垂直转角和水平转角处必须与楼板可靠固定,在其它楼层处为每层固定一次,以此保证泵管固定牢固。管道接头卡箍处不允许漏浆。
为了减少泵管对模板支撑体系的冲击力,砼泵管之立管不得与拟浇筑砼楼层的模板支撑体系有任何连接,泵管立管在该层必须另行搭设架体进行加固。楼面上泵管水平管在楼层架设时,可以在梁筋或板面钢筋上铺设整张模板,再在模板上放置汽车旧轮胎,泵管水平管搁置在轮胎上,这样可减少水平管对模板支撑体系的影响。



12)混凝土浇筑
混凝土采用工地搅拌站集中搅拌,经混凝土运输车运送到施工现场,泵送至楼层,坍落度以160±20mm为宜,必要时可根据现场实际条件,添加相应的外加剂,但须符合《混凝土外加剂应用技术规范》GB50119-2013及国家或行业相关标准。
混凝土浇筑期间,应保证水、电、照明不中断,为防止施工过程中突然临时停电,事先应与供电部门联系或现场备用发电机组,以防止突然停电造成质量事故或安全事故。
墙柱混凝土应分层浇筑,每层厚度根据振捣方法而定,采用振捣棒时,不大于振捣棒作用部分长度的1.25倍,平面振捣器振捣厚度不大于200mm。
浇筑混凝土时应注意防止分层离析,混凝土的倾倒高度一般不宜超过2米,竖向结构浇筑高度超过3米时,应采用导管、溜槽或串筒进行浇筑,且浇筑竖向结构前,底部应先填以50mm-100mm厚与混凝土成分相同的水泥砂浆,防止烂根或接缝处出现裂缝。
梁板混凝土应同时浇筑,梁混凝土浇筑采用由跨中向两端对称扩展的浇筑方式,板混凝土浇筑采用由中间向两侧对称扩展的浇筑方式,由标高低的地方向标高高的地方推进。
搭设满堂支撑架开始至砼施工完毕具备要求的强度前,该施工层以下至少2层支顶不允许拆除。
梁和板应同时浇筑,高度较大(1米以上)的梁应分层浇筑,必要时亦可独立浇筑,但施工缝应设在板底。
在混凝土浇筑时应监测模板、支架、钢筋、预埋件、预留洞口等的变形、移位情况,若变形、移位超过要求时,应立即停止浇筑,进行矫正、加固后才继续施工。
13)模板拆除
模板拆除前必须办理拆除模板审批手续,经项目总工、监理审批签字后方可拆除。
支拆模板时,2米以上高处作业设置可靠的立足点,并有相应的安全防护措施。拆模顺序应遵循先支后拆,后支先拆,从上往下的原则。
模板拆除前必须有混凝土强度报告,强度达到规定要求后方可拆模。
构件类型
构件跨度(m)
达到设计的混凝土立方体抗压强度
标准值的百分率(%)
板
≤2
≥50
>2,≤8
≥75
>8
≥100
梁、拱、壳
≤8
≥75
>8
≥100
悬臂构件
≥100
侧模在混凝土强度能保证构件表面及棱角不因拆除模板而受损坏后方可拆除;
柱模拆除,先拆除拉杆再卸掉柱箍,然后用撬棍轻轻撬动模板使模板与混凝土脱离,然后一块块往下传递到地面。
墙模板拆除,先拆除穿墙螺栓,再拆水平撑和斜撑,再用撬棍轻轻撬动模板,使模板离开墙体,然后一块块往下传递,不得直接往下抛。
楼板、梁模拆除,一般可先拆侧模,再拆除楼板底模。楼板模板拆除应先拆除水平拉杆,然后拆除板模板支柱,每排留1~2根支柱暂不拆,操作人员应站在已拆除的空隙处,拆去近旁余下的支柱使木档自由坠落,再用钩子将模板钩下。模板全部拆除后,集中运出集中堆放,木模的堆放高度不超过2米。有对拉螺栓的梁,应先拆除对拉螺杆,再拆除梁侧模和底模。
当立柱的水平拉杆超过2层时,应首先拆除2层以上的拉杆。当拆除最后一道水平拉杆时,应与立柱同时进行。
当拆除4~8m跨度的梁下立柱时,应先从跨中开始,对称地分别向两端拆除。拆除时,严禁采用连梁底板向旁侧拉倒的拆除方法。
五
质量控制
1)质量控制标准
砼结构观感质量符合相关验收标准,少量的缺陷修补完善。预埋件和预留孔洞的允许偏差详见下表:
项目
允许偏差(mm)
预埋钢板中心线位置
3
预埋管、预留孔中心线位置
3
插筋
中心线位置
5
外露长度
+10,0
预埋螺栓
中心线位置
2
外露长度
+10,0
预留孔
中心线位置
10
尺寸
+10,0
现浇结构模板安装的允许偏差及检查方法详见下表:
项目
允许偏差(mm)
检查方法
轴线位置
5
钢尺检查
底模上表面标高
±5
水准仪或拉线、钢尺检查
截面内部尺寸
基础
±10
钢尺检查
柱、墙、梁
+4,-5
钢尺检查
层垂直高度
不大于5m
6
经纬仪或吊线、钢尺检查
大于5m
8
经纬仪或吊线、钢尺检查
相临两板表面高低差
2
钢尺检查
表面平整度
5
2m靠尺和塞尺检查
2)成品保护
模板搬运时应轻拿轻放,不准碰撞墙、柱、梁、等混凝土,以防模板变形和损坏结构。
模板安装时不得随意在结构上开洞,不得用重物撞击已经安装好的模板及支撑架。
与混凝土接触的模板表面应认真刷脱模剂,不得漏刷。
模板搭设好后,应保持模内清洁,防止调入砖头、砂浆、木屑等杂物。
搭设脚手架时,严禁与模板及支柱连接在一起。
不得在模板平台上堆放大量的材料、重物乃至行车。
六
安全技术保证措施
1)模板安装安全保证措施
严格按照有关规定和计算方法进行模板支撑系统的设计计算,并按有关要求审批后方能施工。
施工过程中模板支架应充分利用框架柱作为支撑系统的附着体,增强支撑架整体稳定性。
模板支撑搭设过程严格按照施工方案进行施工,不得随意改变支撑间距。
施工前管理人员须及时对施工班组进行安全技术交底。
支模应按施工顺序进行,模板支撑系统须及时设置附着设施,防止支架倒塌,保证已搭设支架的稳定和搭设过程中的安全。
立杆之间必须每步设纵横双向水平横杆,确保双向足够的设计刚度。支架采用逐排搭设方法,逐排搭设时,应随搭随设置纵横双向水平横杆和剪刀撑。
确保立杆的垂直偏差和水平横杆的水平偏差符合扣件式钢管脚手架安全技术规范的要求。
扣件螺栓拧紧扭力矩应不小于45N·m,且不大于60N·m,支架搭设过程中要随时用扭力扳手检查扣件螺栓等配件的连接、拧紧情况,发现有松动、损坏等情况应及时拧紧或撤换。
操作人员必须戴安全帽、防滑鞋,高空作业应系好安全带。
安装模板时,高度在2m及其以上的临边高处作业时,应遵守高处作业安全技术规范的有关规定,作业面孔洞及临边须做好防护措施,高处作业时操作人员必须系安全带。
高度超过4米及其以上的模板安装时,外脚手架应随同搭设,并满铺脚手板、设置防护栏杆及张挂安全网。若外脚手架未与施工同步,必须及时设置临边防护措施。施工作业人员上下须从专用施工通道或斜道,禁止利用支架水平横杆攀爬,以防止高处坠落。
在支架上进行操作时,应在水平横杆上铺设脚手板,以便于支架上作业人员安全地进行扣件拧紧及杆件搭设工作,防止作业人员和物品从架上坠落。
交叉作业避免在同一垂直作业面进行,防止伤人。模板在装拆过程中,除操作人员外,下面不得站人或作业,无法避免时,应设置隔离防护措施。高处作业时,扣件、工具、小配件等必须放在箱盒或工具袋中,严禁随手乱丢或放在模板或脚手板上,扳手等各类小工具必须系在身上或放在工具袋内,防止掉落。
不得将模板支架等固定在脚手架上,脚手架或作业平台上临时堆放的模板及施工操作人员的总荷载不得超过脚手架或作业平台的规定承载值,不得超载;同时,在支撑上面不要集中堆载,以免超过支撑设计荷载而引起支撑变形,造成失稳。
为防止破坏模板成品,施工中应避免让重物冲击支好的模板、支撑;钢筋等材料不能在模板支架上方堆放过高,不准在模板上任意拖拉钢筋;在模板上方进行钢筋焊接时要在模板上加垫铁皮或其它阻燃材料。
进入施工现场的作业人员必须戴好安全帽,搭设支架的人员必须系安全带、穿防滑鞋。作业人员在施工中,必须站在安全的工作面上操作,精力要集中,不得酒后上岗。
架子工等特殊工种必须持证上岗,且不得让非本工种人员从事特种作业。
模板材料堆放分布应均匀,存放高度不要超过1.6m;模板堆放区与其他材料堆放区域隔离开,并设材料标牌、防火警示牌。
2)模板拆除安全措施
拆模时应按顺序逐块拆除,模板拆除应先支的后拆,后支的先拆,先拆除非承重部分,后拆除承重部分;拆除顶板时,应设临时支撑,确保安全施工。
拆除模板一般应采用长撬杠,严禁操作人员站在正拆除的模板上或站在已拆除的模板上进行操作。
支架的拆除顺序是从上到下,逐层拆除,自一端开始延伸向另一端,要随支架的拆除逐步拆除加固杆,拆除时不能将拆除的杆件乱丢乱砸,损坏支架。拆模时应先逆时针打松上托的螺栓,让模板与砼脱离,再拆除支架。
拆除时应逐块拆卸,不得成片松动、撬落或拉倒。在门窗洞口边拆卸,更应防止模板突然全部掉落伤人。
拆模间隙时,应将已松动的模板、拉杆、支撑等固定牢固,严防突然掉落、倒塌伤人。
在楼板上有预留洞时,应在模板拆除后及时将洞口盖严或做好防护栏杆防护。
拆除时每人应有足够的工作面,数人同时操作时应合理分工,统一信号和行动,严禁在同一垂直面上进行拆除操作。
高处、复杂结构模板的拆除,应有专人指挥和切实的安全措施,并在下面标出工作区,严禁非操作人员进入作业区。
拆除模板、支架时,地面应设围栏或警戒线及明显的警戒标志,并派专人监护,严禁非操作人员入内,避免发生安全事故。
工作前应事先检查所使用的工具是否牢固,扳手等工具必须用绳链系挂在身上,工作时精力要集中,防止钉子扎脚和从高处坠落。
已拆除的模板、钢管、扣件等应及时运走或妥善堆放。
3)文明施工管理措施
按照施工总平面布置图堆放各类材料,不得侵占场内道路及安全防护设施。实行计划进料,随用随到。
对现场材料堆场进行统一规划,不同的进场材料设备进行分类合理堆放和储存,并挂牌标示,重要设备材料利用专门的围栏和库房储存,并设专人管理。
在施工过程中,严格按照材料管理办法,进行限额领料。
模板、支架等在安装、拆除和搬运时,必须轻拿轻放,上下、左右有人传递。
支模和拆模等各项施工任务完成后,应及时清理现场,做到工完场清。对废料、旧料做到每日清理回收。
使用电锯切割时,应及时在锯片上刷油,且锯片送速不能过快。
加强环保意识的宣传,严格管理,采用有力措施控制人为的施工噪声,最大限度地减少噪音扰民。在夜间进行模板作业时,应按规定合理安排作业时间,避免扰民情况出现。
七
突发事件分析及应急预案
1)模板防止变形,坍塌措施
严格技术交底制度,严格按设计要求施工。
在整个施工阶段要从人员、设备、材料和制度做好充分的准备工作,一旦遇到险情能及时迅速投入到抢险工作中。
加强监测,随时掌握架体变形情况、模板变形情况、对拉螺杆松动况等,以便采取相应的措施。
2)架体坍塌处理
发生塌方后,不要紧张,保护好现场,并及时通知现场管理组织抢救工作。
救援人员不要盲目进入架体内抢救受伤人员,以免架体发生二次坍塌。必须通知消防部门营救。
施工人员应准备好氧气包、医用消毒药水及纱布对受伤人员进行简单处理。
及时组织车辆将受伤人员就近送往医院治疗。
若坍塌继续发生,为防止周围桩孔发生意外,及时疏散周围桩孔作业人员。
对塌方的架体待塌方稳定后及时组织人员重新搭设。
3)高空坠落
发生高处坠落事故,应马上组织抢救伤者,首先观察伤者的受伤情况、部位、伤害性质,如伤员发生休克,应先处理休克。遇呼吸、心跳停止者,应立即进行人工呼吸,胸外心脏挤压。处于休克状态的伤员要让其安静、保暖、平卧、少动、并将下肢抬高约20度左右、尽快送医院进行抢救治疗。
发现伤者手足骨折,不要盲目搬动伤者。应在骨折部位用夹板把受伤位置临时固定,使断端不再移位或剌伤肌肉,神经或血管。固定方法:以固定骨折处上下关节为原则,可就地取材,用木板等固定。
遇有创伤性出血的伤员,应迅速包扎止血,使伤员保持在头低脚高的卧位,并注意保暖。
动用最快的交通工具或其他措施,及时把伤者送往邻近医院抢救,运送途中应尽量减少颠簸。同时,密切注意伤者的呼吸、脉搏、血压及伤口的情况。
4)物体打击
当发生物体打击事故后,抢救重点放在对伤者颅脑损伤、胸部骨折和出血部位的行处理上。
发生物体打击事故,应马上组织抢救伤者,首先观察伤者的受伤情况、部位、伤害性质,如伤员发生休克,应先处理休克。遇呼吸、心跳停止者,应立即进行人工呼吸,胸外心脏挤压。处于休克状态的伤员要让其安静、保暖、平卧、少动,并将下肢抬高约20度左右,尽快送医院进行抢救治疗。
出现颅脑损伤,必须维持伤者呼吸道通畅。昏迷者应平卧,面部转向一侧,以防舌根下坠或分泌物、呕吐物吸入,发生喉阻塞。有骨折者,应初步固定后再搬运。遇有凹陷骨折、严重的颅底骨折及严重的脑损伤症状出现,创伤处用消毒的纱布或清洁布等覆盖伤口,用绷带或布条包扎后,及时送就近有条件的医院治疗。
序号 |
栋号 |
地上层数 |
地下层数 |
建筑面积(m2) |
建筑屋面高度(m) |
室内设计正负零相当于绝对高程(m) |
1 |
1#住宅 |
11 |
局部1层 |
13521.21 |
33.90 |
236.450 |
2 |
2#住宅 |
|
|
|
|
|
|
|
|
|
|
|
|
|
|
|
|
|
|
|
|
|
|
|
|
|
|
|
|
|
|
|
|
|
|
|
|
|
|
|
|
|
|
|
|
|
|
|
|
|
|
|
|
|
|
|
|
|
|
|
|
|
|
|
|
|
|
|
|
|
|
|
|
|
|
|
|
|
|
|
|
|
|
|
|
|
|
|
|
|
|
|
|
|
|
|
|
|
|
|
|
|
|
|
|
|
|
|
|
|
|
|
|
|
|
|
|
|
|
|
|
|
|
|
|
|
|
|
|
|
|
|||
|
|
|
|
|
|
|
|
|
|
||
|
|
|
|
|
||
|
|
|
|
|
||
|
|
|
|
|||
|
|
|
|
|
||
|
|
|
|
|||
|
|
|
|
|
|
|
|
|
|
|
|||
|
|
|
|
|||
|
|
|
|
|||
1、施工特点
1)梁截面尺寸较多,模板支撑架搭设高度频多
2)模板支撑架搭设高度较高:最高处支撑架高度达到4.85m。
3)梁集中线荷载大。
4)梁的跨度较大,存在1300mm~10500mm不同跨度的梁。
2、施工要求
1)确保模板在搭设及使用过程中安全、稳定、牢靠。
2)加强施工过程控制,随时检查纠偏,确保现场严格按照方案施工,使模板搭设及拆除符合工程施工进度限制及质量要求。
3)模板施工前对施工人员进行技术交底,严禁盲目施工。
4)要求墙柱垂直度及梁的定位满足质量验收要求,墙、柱、梁满足设计截面尺寸要求。
5)当梁板跨度大于4m时,模板安装应按设计要求起拱,本工程设计起拱要求为:对于跨度不小于4m及悬挑长度不小于2m的现浇钢筋混凝土梁板,非悬挑梁、板起拱2/1000,悬挑梁、板起拱3/1000。
1、模板搭设技术参数
170厚板搭设参数
|
|
|
|
|
|
|
|
|
|
|
|
|
|
|
|
|
|
|
|
|
|
|
|
|
|
|
|
|
|
|
|
|
|
|
|
|
|
|
|
|
|
|
|
|
|
|
|
|
|
|
|
|
|
|
|
|
|
|
|
|
|
|
|
|
|
|
|
|
|
|
|
|
|
|
|
|
|
|
|
|
|
|
|
|
|
|
|
|
|
|
|
|
|
|
|
|
|
|
|
|
|
|
|
|
|
|
|
|
|
|
|
|
|
200×700、300×600、200×400、250×400、250×700、250×500、200×500、200×500、250×450、200×820、200×850、200×800、200×650、300×500、300×400、200×600梁搭设参数
|
|
|
|
|
|
|
|
|
|
|
|
|
|
|
|
|
|
|
|
|
|
|
|
|
|
|
|
|
|
300×700、300×800、300×830、200×1830、300×750梁搭设参数
|
|
|
|
|
|
|
|
|
|
|
|
|
|
|
|
|
|
|
|
|
|
|
|
|
|
|
|
|
|
1)模板及支撑架搭设流程:

2)基础处理
本工程模板系统支撑是以楼地面底板,故模板支撑架搭设基础不需作特殊处理,架体搭设时只需在立杆底部垫木方或模板对楼面混凝土进行保护即可。
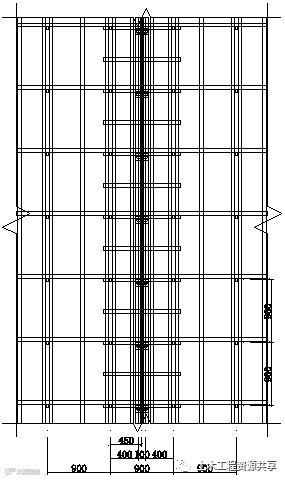
3)测量放线
采用铅垂仪、全站仪、卷尺等测量工具在楼面上放出定位轴线,弹出墙柱、梁等构件的边线,及模板控制线(详见下图),根据满堂支撑架立杆纵横向间距弹出立杆定位线,根据定位线搭设满堂架及模板。


4)架体搭设
立杆
立杆间距应按照盘口式钢管脚手架搭设,搭设过程应根据每一块楼板的实际面积排布立杆,局部需要增加立杆或者横杆时,需要加设立杆或者水平横杆,保证立杆、横杆间距不大于搭设参数。
立杆接长应采用对接,采用可调底座或可调顶托精确调整立杆高度,可调底座或可调顶托插入钢管的最小长度应大于150mm,可调顶托伸出长度不能大于200mm。
严禁搭接,相邻两对接接头不得处于同一步距范围内,接头宜设置在h/3处,h表示步距,且两相隔接头应相互错开不小于500mm的距离,如下图:

严禁将上段的钢管立柱与下端钢管立柱错开固定在水平拉杆上。
不同支架立柱不得混用,避免扣件无法扣接或立杆强度不满足设计要求。
梁和板的立柱,其纵横向间距应相等或成倍数(详见下图),以确保满堂支撑架的立杆排布成列、不混乱,便宜材 料搬运。

水平杆
在距地面不大于200mm处,沿纵横向设置纵下横上水平扫地杆。可调顶托托底部、立杆顶端应纵横向设置一道水平拉杆。扫地杆与顶部水平拉杆之间按照步距要求设置水平拉杆,每一步距处纵横向均需设水平拉杆。
每步纵横向水平杆必须拉通,在盘扣式钢管水平杆件不够长时,接长应采用对接扣件连接。水平对接接头宜设置在La/3处,且两相邻接头应互错开不小于500mm的距离,详见接头图示:

梁模板立杆应与楼板模板立杆应通过水平杆相互连接,形成整体。
所有水平杆的端部均应与四周墙、柱顶紧顶牢,无处可顶时,应在水平拉杆端部和中部沿竖向设置连续式剪刀撑。
5)剪刀撑
竖向剪刀撑的设置
架体外侧四周设置竖向剪刀撑;框架梁底顺梁方向设置竖向剪刀撑;按1)、2)设置后,如剪刀撑间距大于6m,再在板底加设竖向剪刀撑,使剪刀撑的间距不大于6m;竖向剪刀撑由底至顶的连续设置;剪刀撑与楼层之间的斜角为45~60°。
水平剪刀撑的设置
在满堂架体的扫地杆和竖向剪刀撑顶部各设置一道水平剪刀撑。水平剪刀撑宜设置在与竖向剪刀撑相交的部位。剪刀撑接长应采用搭接,搭接长度不得小于1000mm,并应采用不少于3个 旋转扣件分别在离杆端不小于100mm处进行固定。
6)一般规定
架体搭设应保证结构和构件各部分形状尺寸,相互位置的正确。
多层支撑时,上下二层的支点应在同一垂直线上,并应设底座和垫板。
支架搭设按本模板设计,不得随意更改;要更改必须得到相关负责人的认可。
U型顶托采用双钢管不允许放单根钢管或木方(尤其是跨度较大时),且端部丝杆长度不能超过300。
7)墙柱模板支撑
安装墙模时应先在底板或楼面上弹出墙的中线及边线,按照线的位置安装门窗洞口模板,待钢筋绑扎完成后根据边线立侧模,侧模面板板与板之间的拼缝应密实,不漏浆。
墙模板的面板应预先跟小梁(40×80的矩形木方)钉成大块模板,墙、柱模板竖向小梁中心间距不大于200且摆放均匀,主梁与小梁垂直,主梁用“3”形卡及对拉螺栓固定。外墙模板顶端向下150左右预埋对拉螺杆间距为600,支上层模板时模板和木方必须下伸至少200,控制错台。
剪力墙模板采用M14对拉螺杆,第一道水平对拉螺杆离地间距不大于150,第一道对拉螺杆以上的螺杆间竖向间距分别不大于450,每排对拉螺杆间的横向间距不大于450。穿墙螺杆应注意两侧穿孔的模板对称放置,以使穿墙螺杆与墙模保持垂直,室内通长螺栓可以套PVC管,以便回收利用,对于地下室外墙,对拉螺栓应采用止水对拉螺杆,不用穿PVC套管。
墙柱模板必须设置可靠的斜支撑,斜支撑设置在混凝土面或柱脚上,严禁直接连接在满堂架上。
墙柱端部必须用垂直于该端面的对拉螺杆对拉,并在接口处贴双面胶防止漏浆,L型墙体也用垂直于端面的螺杆保证端面不胀模。若对拉螺杆长度不足,可采用中间焊接钢筋的方式进行接长。
预留门窗洞口的模板安装支撑牢固,且便宜拆除;墙模板上预留的小洞口,当遇到钢筋时,钢筋可在洞口处局部绕开,其它地方应保证钢筋的数量和位置正确,不得将钢筋截断。
当模板安装校正完成后,应检查扣件、对拉螺栓是否紧固,模板拼缝是否严密,门洞边的模板是否安装牢固等。
8)梁模板支撑
梁下支撑架与板下支撑架连成整体,采用扣件式钢管连接搭设,梁下间距不满足盘扣式模数时,采用扣件式架体进行搭设,其立杆的间距、横杆步距等应按照相应的模板技术参数进行搭设。
根据墨线安装两侧模板、压脚板、斜撑等。两侧模板的高度应根据梁高及楼板模板碰帮或压帮(详见下图)确定。

梁底木方与梁垂直摆放,间距不大于200且摆放均匀。
梁底钢管两侧加扣件固定,保证梁不移位(梁两端必须加,中间段大于4000mm加一个跳步加)。
墙、梁、柱模板内均匀放置內撑条,接缝处、梁口向下150位置处必须放置,且內撑条必须是带卡槽的(或者必须绑扎在钢筋上)。
高度大于700的梁必须在梁的中部增加一排对拉螺杆,间距为600mm。
9)楼板模板支撑
楼板模板安装时,应先拉通线调节支架的高度,将主梁(钢管)找平,再在主梁上布置木枋,然后铺设模板,模板铺设完成后认真检查支架是否牢固,并将模板清扫干净。
楼板模板一般是整张铺设,局部拼补的方法,模板的接缝应设置在小梁上,应严密不漏浆,当不满足接缝要求时,可用橡胶条或海绵条嵌缝,避免漏浆,或采用腻子填补,腻子可用石灰、粉煤灰、水泥、锯末等拌制。
板底木方中心间距不大于150且摆放均匀。
10)钢筋绑扎
模板上的钢筋成品及其它施工材料应均匀堆放,放平放稳。
为使钢筋绑扎正确,对于剪力墙、楼板钢筋等应先在模板上用粉笔画出钢筋间距线;对于柱箍筋在两根对角线纵向受力钢筋上画点标明;梁箍筋在架立筋上画点。
梁钢筋的绑扎与模板安装之间的配合关系:①梁的高度较小时,梁的钢筋架空在梁顶上绑扎,然后再落位;②梁截面高度≥1.0m 时,梁的钢筋宜在梁底模上绑扎,其两侧模板或一侧模板在梁钢筋绑扎就位好后安装。
11)泵管及布料机架设
泵管架在底层和施工楼层的垂直转角和水平转角处必须与楼板可靠固定,在其它楼层处为每层固定一次,以此保证泵管固定牢固。管道接头卡箍处不允许漏浆。
为了减少泵管对模板支撑体系的冲击力,砼泵管之立管不得与拟浇筑砼楼层的模板支撑体系有任何连接,泵管立管在该层必须另行搭设架体进行加固。楼面上泵管水平管在楼层架设时,可以在梁筋或板面钢筋上铺设整张模板,再在模板上放置汽车旧轮胎,泵管水平管搁置在轮胎上,这样可减少水平管对模板支撑体系的影响。



12)混凝土浇筑
混凝土采用工地搅拌站集中搅拌,经混凝土运输车运送到施工现场,泵送至楼层,坍落度以160±20mm为宜,必要时可根据现场实际条件,添加相应的外加剂,但须符合《混凝土外加剂应用技术规范》GB50119-2013及国家或行业相关标准。
混凝土浇筑期间,应保证水、电、照明不中断,为防止施工过程中突然临时停电,事先应与供电部门联系或现场备用发电机组,以防止突然停电造成质量事故或安全事故。
墙柱混凝土应分层浇筑,每层厚度根据振捣方法而定,采用振捣棒时,不大于振捣棒作用部分长度的1.25倍,平面振捣器振捣厚度不大于200mm。
浇筑混凝土时应注意防止分层离析,混凝土的倾倒高度一般不宜超过2米,竖向结构浇筑高度超过3米时,应采用导管、溜槽或串筒进行浇筑,且浇筑竖向结构前,底部应先填以50mm-100mm厚与混凝土成分相同的水泥砂浆,防止烂根或接缝处出现裂缝。
梁板混凝土应同时浇筑,梁混凝土浇筑采用由跨中向两端对称扩展的浇筑方式,板混凝土浇筑采用由中间向两侧对称扩展的浇筑方式,由标高低的地方向标高高的地方推进。
搭设满堂支撑架开始至砼施工完毕具备要求的强度前,该施工层以下至少2层支顶不允许拆除。
梁和板应同时浇筑,高度较大(1米以上)的梁应分层浇筑,必要时亦可独立浇筑,但施工缝应设在板底。
在混凝土浇筑时应监测模板、支架、钢筋、预埋件、预留洞口等的变形、移位情况,若变形、移位超过要求时,应立即停止浇筑,进行矫正、加固后才继续施工。
13)模板拆除
模板拆除前必须办理拆除模板审批手续,经项目总工、监理审批签字后方可拆除。
支拆模板时,2米以上高处作业设置可靠的立足点,并有相应的安全防护措施。拆模顺序应遵循先支后拆,后支先拆,从上往下的原则。
模板拆除前必须有混凝土强度报告,强度达到规定要求后方可拆模。
|
|
|
|
|
|
|
|
|
|
|
|
|
|
|
|
|
|
|
|
|
|
|
|
|
|
|
侧模在混凝土强度能保证构件表面及棱角不因拆除模板而受损坏后方可拆除;
柱模拆除,先拆除拉杆再卸掉柱箍,然后用撬棍轻轻撬动模板使模板与混凝土脱离,然后一块块往下传递到地面。
墙模板拆除,先拆除穿墙螺栓,再拆水平撑和斜撑,再用撬棍轻轻撬动模板,使模板离开墙体,然后一块块往下传递,不得直接往下抛。
楼板、梁模拆除,一般可先拆侧模,再拆除楼板底模。楼板模板拆除应先拆除水平拉杆,然后拆除板模板支柱,每排留1~2根支柱暂不拆,操作人员应站在已拆除的空隙处,拆去近旁余下的支柱使木档自由坠落,再用钩子将模板钩下。模板全部拆除后,集中运出集中堆放,木模的堆放高度不超过2米。有对拉螺栓的梁,应先拆除对拉螺杆,再拆除梁侧模和底模。
当立柱的水平拉杆超过2层时,应首先拆除2层以上的拉杆。当拆除最后一道水平拉杆时,应与立柱同时进行。
当拆除4~8m跨度的梁下立柱时,应先从跨中开始,对称地分别向两端拆除。拆除时,严禁采用连梁底板向旁侧拉倒的拆除方法。
1)质量控制标准
砼结构观感质量符合相关验收标准,少量的缺陷修补完善。预埋件和预留孔洞的允许偏差详见下表:
|
|
|
|
|
|
|
|
|
|
|
|
|
|
|
|
|
|
|
|
|
|
|
|
|
|
|
|
|
|
|
|
|
|
|
|
现浇结构模板安装的允许偏差及检查方法详见下表:
|
|
|
|
|
|
|
|
|
|
|
|
|
|
|
|
|
|
|
|
|
|
|
|
|
|
|
|
|
|
|
|
|
|
|
|
|
|
|
|
|
|
|
|
|
2)成品保护
模板搬运时应轻拿轻放,不准碰撞墙、柱、梁、等混凝土,以防模板变形和损坏结构。
模板安装时不得随意在结构上开洞,不得用重物撞击已经安装好的模板及支撑架。
与混凝土接触的模板表面应认真刷脱模剂,不得漏刷。
模板搭设好后,应保持模内清洁,防止调入砖头、砂浆、木屑等杂物。
搭设脚手架时,严禁与模板及支柱连接在一起。
不得在模板平台上堆放大量的材料、重物乃至行车。
1)模板安装安全保证措施
严格按照有关规定和计算方法进行模板支撑系统的设计计算,并按有关要求审批后方能施工。
施工过程中模板支架应充分利用框架柱作为支撑系统的附着体,增强支撑架整体稳定性。
模板支撑搭设过程严格按照施工方案进行施工,不得随意改变支撑间距。
施工前管理人员须及时对施工班组进行安全技术交底。
支模应按施工顺序进行,模板支撑系统须及时设置附着设施,防止支架倒塌,保证已搭设支架的稳定和搭设过程中的安全。
立杆之间必须每步设纵横双向水平横杆,确保双向足够的设计刚度。支架采用逐排搭设方法,逐排搭设时,应随搭随设置纵横双向水平横杆和剪刀撑。
确保立杆的垂直偏差和水平横杆的水平偏差符合扣件式钢管脚手架安全技术规范的要求。
扣件螺栓拧紧扭力矩应不小于45N·m,且不大于60N·m,支架搭设过程中要随时用扭力扳手检查扣件螺栓等配件的连接、拧紧情况,发现有松动、损坏等情况应及时拧紧或撤换。
操作人员必须戴安全帽、防滑鞋,高空作业应系好安全带。
安装模板时,高度在2m及其以上的临边高处作业时,应遵守高处作业安全技术规范的有关规定,作业面孔洞及临边须做好防护措施,高处作业时操作人员必须系安全带。
高度超过4米及其以上的模板安装时,外脚手架应随同搭设,并满铺脚手板、设置防护栏杆及张挂安全网。若外脚手架未与施工同步,必须及时设置临边防护措施。施工作业人员上下须从专用施工通道或斜道,禁止利用支架水平横杆攀爬,以防止高处坠落。
在支架上进行操作时,应在水平横杆上铺设脚手板,以便于支架上作业人员安全地进行扣件拧紧及杆件搭设工作,防止作业人员和物品从架上坠落。
交叉作业避免在同一垂直作业面进行,防止伤人。模板在装拆过程中,除操作人员外,下面不得站人或作业,无法避免时,应设置隔离防护措施。高处作业时,扣件、工具、小配件等必须放在箱盒或工具袋中,严禁随手乱丢或放在模板或脚手板上,扳手等各类小工具必须系在身上或放在工具袋内,防止掉落。
不得将模板支架等固定在脚手架上,脚手架或作业平台上临时堆放的模板及施工操作人员的总荷载不得超过脚手架或作业平台的规定承载值,不得超载;同时,在支撑上面不要集中堆载,以免超过支撑设计荷载而引起支撑变形,造成失稳。
为防止破坏模板成品,施工中应避免让重物冲击支好的模板、支撑;钢筋等材料不能在模板支架上方堆放过高,不准在模板上任意拖拉钢筋;在模板上方进行钢筋焊接时要在模板上加垫铁皮或其它阻燃材料。
进入施工现场的作业人员必须戴好安全帽,搭设支架的人员必须系安全带、穿防滑鞋。作业人员在施工中,必须站在安全的工作面上操作,精力要集中,不得酒后上岗。
架子工等特殊工种必须持证上岗,且不得让非本工种人员从事特种作业。
模板材料堆放分布应均匀,存放高度不要超过1.6m;模板堆放区与其他材料堆放区域隔离开,并设材料标牌、防火警示牌。
2)模板拆除安全措施
拆模时应按顺序逐块拆除,模板拆除应先支的后拆,后支的先拆,先拆除非承重部分,后拆除承重部分;拆除顶板时,应设临时支撑,确保安全施工。
拆除模板一般应采用长撬杠,严禁操作人员站在正拆除的模板上或站在已拆除的模板上进行操作。
支架的拆除顺序是从上到下,逐层拆除,自一端开始延伸向另一端,要随支架的拆除逐步拆除加固杆,拆除时不能将拆除的杆件乱丢乱砸,损坏支架。拆模时应先逆时针打松上托的螺栓,让模板与砼脱离,再拆除支架。
拆除时应逐块拆卸,不得成片松动、撬落或拉倒。在门窗洞口边拆卸,更应防止模板突然全部掉落伤人。
拆模间隙时,应将已松动的模板、拉杆、支撑等固定牢固,严防突然掉落、倒塌伤人。
在楼板上有预留洞时,应在模板拆除后及时将洞口盖严或做好防护栏杆防护。
拆除时每人应有足够的工作面,数人同时操作时应合理分工,统一信号和行动,严禁在同一垂直面上进行拆除操作。
高处、复杂结构模板的拆除,应有专人指挥和切实的安全措施,并在下面标出工作区,严禁非操作人员进入作业区。
拆除模板、支架时,地面应设围栏或警戒线及明显的警戒标志,并派专人监护,严禁非操作人员入内,避免发生安全事故。
工作前应事先检查所使用的工具是否牢固,扳手等工具必须用绳链系挂在身上,工作时精力要集中,防止钉子扎脚和从高处坠落。
已拆除的模板、钢管、扣件等应及时运走或妥善堆放。
3)文明施工管理措施
按照施工总平面布置图堆放各类材料,不得侵占场内道路及安全防护设施。实行计划进料,随用随到。
对现场材料堆场进行统一规划,不同的进场材料设备进行分类合理堆放和储存,并挂牌标示,重要设备材料利用专门的围栏和库房储存,并设专人管理。
在施工过程中,严格按照材料管理办法,进行限额领料。
模板、支架等在安装、拆除和搬运时,必须轻拿轻放,上下、左右有人传递。
支模和拆模等各项施工任务完成后,应及时清理现场,做到工完场清。对废料、旧料做到每日清理回收。
使用电锯切割时,应及时在锯片上刷油,且锯片送速不能过快。
加强环保意识的宣传,严格管理,采用有力措施控制人为的施工噪声,最大限度地减少噪音扰民。在夜间进行模板作业时,应按规定合理安排作业时间,避免扰民情况出现。
1)模板防止变形,坍塌措施
严格技术交底制度,严格按设计要求施工。
在整个施工阶段要从人员、设备、材料和制度做好充分的准备工作,一旦遇到险情能及时迅速投入到抢险工作中。
加强监测,随时掌握架体变形情况、模板变形情况、对拉螺杆松动况等,以便采取相应的措施。
2)架体坍塌处理
发生塌方后,不要紧张,保护好现场,并及时通知现场管理组织抢救工作。
救援人员不要盲目进入架体内抢救受伤人员,以免架体发生二次坍塌。必须通知消防部门营救。
施工人员应准备好氧气包、医用消毒药水及纱布对受伤人员进行简单处理。
及时组织车辆将受伤人员就近送往医院治疗。
若坍塌继续发生,为防止周围桩孔发生意外,及时疏散周围桩孔作业人员。
对塌方的架体待塌方稳定后及时组织人员重新搭设。
3)高空坠落
发生高处坠落事故,应马上组织抢救伤者,首先观察伤者的受伤情况、部位、伤害性质,如伤员发生休克,应先处理休克。遇呼吸、心跳停止者,应立即进行人工呼吸,胸外心脏挤压。处于休克状态的伤员要让其安静、保暖、平卧、少动、并将下肢抬高约20度左右、尽快送医院进行抢救治疗。
发现伤者手足骨折,不要盲目搬动伤者。应在骨折部位用夹板把受伤位置临时固定,使断端不再移位或剌伤肌肉,神经或血管。固定方法:以固定骨折处上下关节为原则,可就地取材,用木板等固定。
遇有创伤性出血的伤员,应迅速包扎止血,使伤员保持在头低脚高的卧位,并注意保暖。
动用最快的交通工具或其他措施,及时把伤者送往邻近医院抢救,运送途中应尽量减少颠簸。同时,密切注意伤者的呼吸、脉搏、血压及伤口的情况。
4)物体打击
当发生物体打击事故后,抢救重点放在对伤者颅脑损伤、胸部骨折和出血部位的行处理上。
发生物体打击事故,应马上组织抢救伤者,首先观察伤者的受伤情况、部位、伤害性质,如伤员发生休克,应先处理休克。遇呼吸、心跳停止者,应立即进行人工呼吸,胸外心脏挤压。处于休克状态的伤员要让其安静、保暖、平卧、少动,并将下肢抬高约20度左右,尽快送医院进行抢救治疗。
出现颅脑损伤,必须维持伤者呼吸道通畅。昏迷者应平卧,面部转向一侧,以防舌根下坠或分泌物、呕吐物吸入,发生喉阻塞。有骨折者,应初步固定后再搬运。遇有凹陷骨折、严重的颅底骨折及严重的脑损伤症状出现,创伤处用消毒的纱布或清洁布等覆盖伤口,用绷带或布条包扎后,及时送就近有条件的医院治疗。
您的转发是对我们最大的支持
猜你喜欢:
3、助力2018安全生产月,这100份安全资料合集值得入手(可下载)
源自 | 网络

加入我们
投稿展示或者分享资料
一起交流一起成长
扫一扫下方二维码,灵感即刻进
官方微信或qq:483972950
官方qq群:343778875 或648915172



