提示:点击↑上方"土木工程资源共享"关注加入
点我资料免费下
【重磅福利】
正文
一
基础部分
第一条 ZNBZ-GYGF-JC001管桩垂直度、桩身断裂、桩长施工要求
1、管桩插入时的垂直度不应大于0.25%,且最大值不应大于50mm,否则应拨出重插。
2、 桩身断裂
基桩桩身断裂,可分为混凝土桩身断裂、管桩接头断裂和桩头破裂。按管控过程分为进桩质量控制、施工过程控制和质量检查控制。
锤击法施工时,桩帽(或送桩器)与桩之间应加设弹性桩垫,桩帽与桩锤之间应设置锤垫。桩垫和锤垫应随时检查、校正和更换。
静压法施工时,桩机最大垂直压力值不应超过桩身强度设计值,抱压力不允许超过管桩允许抱压力计算值。
接头处应清理干净、平整。焊接可采用二氧化碳保护焊,焊接层数不得少于三层,焊接质量检查合格后,应自然冷却,手工电弧焊接不少于10min,二氧化碳气体保护焊接不少于5min。严禁用水冷却或焊接完后立即进行沉桩施工。
3、 桩长
对进场管桩实行四方验收,不合格桩见证退场,建立管桩进出场台帐。
对于摩擦型预制管桩桩,除电梯井、集水井和工程试验桩外,同一建筑基础管桩单节长度不允许超过二种规格,严禁不同长度单节桩随意配。
桩机施工必须视频监控,静压桩施工必须同时使用“静压桩施工记录仪”监控。
桩基施工完成后,由工程管理中心负责组织对桩基质量包括桩长进行检测,检测结果作为桩基施工质量进行评价的法律依据。
第二条 ZNBZ-GYGF-JC002钻孔灌注桩缩孔、坍壁问题的防治措施
1、孔口护筒
钻机安装就位时,底座必须支垫坚实平稳,防止位移或沉陷。检查钻架顶部滑轮槽→转盘卡孔(钻杆潜水泵)→护筒中心,三者应在一竖直线中,误差小于±20MM,以保证钻孔竖向垂直度偏差≤1%。
护筒用3-5MM厚的钢板,为增加刚度防止变形,在护筒上、下和中部的外侧各焊一道加劲肋。护筒埋入深度不小于1.30M,护筒顶端高出地面0.3M,下端应埋入表土层。其内径比桩的设计直径大15-20CM。保证护筒位置平直、稳固、准确和不变位。最后将护筒周围用粘土夯实,见下图。

2、缩径、坍孔问题的防治措施
钻孔成孔质量与地质条件和钻探方法有关,易造成孔壁稳定问题的常见土类与钻探措施列如下表。

开钻前开挖好泥浆池、泥浆沉淀池。配够一根桩的泥浆需用量,泥浆比重控制在1.05-1.25,在砂砾层钻进时,必须使用膨润土泥浆,适当加大比重,并加入适量泥浆添加剂。需要时可向泥浆池中补充合格稀泥浆,严禁直接向泥浆中加入清水稀释。
第三条 ZNBZ-GYGF-JC003基坑支护要求
基坑边坡支护分类及适用条件



第四条 ZNBZ-GYGF-JC004大体积混凝土
规定大体积混凝土施工前施工方案必须经总公司总工办批准后实施。
1、控制新鲜混凝土的出机温度 :混凝土中的各种原材料,尤其是石子与水,对出机温度影响最大。在气温较高时,宜在砂石堆场设置简易遮阳棚,搅拌用水采用冰水(不能有冰块)。
2、控制浇注入模温度 :夏季施工时,在输送泵送时采取降温措施,以防入模混凝土温度升高。如在搅拌筒上搭设遮阳棚盖,在水平输送管道上铺草包喷水。冬季施工时,对结构厚度在1.0米以上的大体积混凝土一般宜在正温搅拌和正温浇注,并靠自身水化热进行蓄热保温。
3、混凝土的浇筑:采用一个坡度、斜面分层、推进浇注、一次到顶的浇筑方法。每层厚度约600mm左右,可按1:6~1:10坡度分层浇筑,且上层混凝土,应超前覆盖下层混凝土500mm以上,上下相邻两层浇注间隔时间不超过砼的初凝时间。
4、混凝土的振捣:在每个浇筑带的前后布置三道振捣器,第一道布置在砼的卸料点,解决上部砼的捣实,第二道布置在砼的中部,第三道布置在砼的坡脚处,确保中、下部砼的密实。
5、混凝土表面处理:由于泵送混凝土表面的水泥浆较厚,在混凝土浇筑到顶面后,及时把水泥浆赶走,初步按标高刮平,用木抹子反复搓平压实,搓实遍数不少于2遍。并覆盖塑料布以防表面出现裂缝,在终凝前掀开塑料布再进行搓平,要求搓压两遍,最后一遍抹压要掌握好时间,以终凝前为准,终凝时间可用手压法把握。
6、混凝土的养护、测温
(1) 混凝土的养护:养护主要是保持适宜的温度和湿度,以便控制混凝土内表温差,促进混凝土强度的正常发展及防止混凝土裂缝的产生和发展。养护必须根据混凝土内表温差和降温速率,及时调整养护措施。同时预防近期骤冷气候影响,以控制内表温差,防止混凝土早期和中期裂缝。
(2) 测温:温度测点在埋设前应对感温元件作环氧树脂封闭。在浇注前应按测温布置图要求,对测点予以固定和保护,以确保测温工作的顺利进行。放置方式如下图:

第五条 ZNBZ-GYGF-JC005地下室的防水要求
1、地下室底板(由下至上):素土夯实;100mm厚C15素砼垫层(随捣随抹光);3mm厚贴必定BAC单面自粘防水卷材;40mm厚C20细石砼保护层;自防水钢筋砼底板。1000mm及以上基础底板的防水厚度为1.5mm厚贴必定BAC单面自粘防水卷材。具体做法见下图。

2、地下室侧墙 (由内至外) :自防水钢筋砼侧墙(补平修整);1.5mm厚JS防水涂料+1.5mm厚贴必定PET防水卷材;1/4砖砌体M2.5水泥砂浆砌筑。具体做法见下图。

3、地下室顶板(种植土顶板,由下至上):自防水钢筋砼顶板(结构找坡,随捣随抹光);1.5mm厚JS防水涂料+1.5mm厚贴必定PET防水卷材;60mm厚C20细石砼保护层,4m*4m设置分格缝,内配¢4@200mm钢丝网片;滤水、排水层、土工布滤水层;覆土;种植土。种植屋面设计及施工应严格执行国标《种植屋面工程技术规程》(JGJ155-2007)规定要求。具体做法见下图。

4、后浇带:用3mm厚钢板止水带取代橡胶止水带(如采用超前止水的,按图集施工);另加1.5mm厚贴必定PET防水附加层,每边出施工缝300mm。

5、变形缝:另加1.5mm厚贴必定PET防水附加层,每边出变形缝300mm。
6、高层地下室与地下车库通道处墙体沉降缝采用橡胶止水带,橡胶止水带必须环形布置,橡胶止水带搭接必须采用机械热熔连接,拆模后将橡胶止水带外露部分采用夹胶板 保证橡胶止水带的成品保护,具体做法见下图。

二
主体部分
第一条 ZNBZ-GYGF-ZT001混凝土结构裂缝
1、模板和支撑必须有足够的刚度和稳定性,边支撑立杆和墙间距不应大于300mm,中间不宜大于800mm。根据工期要求,配备足够数量的模板,拆模时,砼强度应满足规范要求。
2、剪力墙模板的加固必须符合下列要求,楼地面以上第一道150mm,第二道不大于400mm,第三、四道不大于500mm,往上不大于600mm,剪力墙外墙根部下一楼层结构预埋螺杆,防止楼层错缝,如图所示:


3、严格控制现浇板的厚度和现浇板中钢筋保护层的厚度。阳台、雨棚、空调板等悬挑现浇板的负弯矩钢筋下面,应设置通长马蹬,马蹬钢筋采用直径为8的三级钢筋(HRB400)。在浇筑砼时,保证钢筋不位移。如下图所示:

4、现浇板中的线管必须布置在下层钢筋网片之上(双层双向配筋时,布置在两层钢筋之间),三根线管不能交叉于一点,两根线管交叉高度不超过板厚2/3,线管直径应小于1/3楼板厚度。
5、楼板、屋面板砼浇筑前,必须搭设可靠的施工平台、走道,施工中应派专人保护钢筋,确保钢筋位置符合要求。具体做法见下图。


板筋成品保护措施
第二条 ZNBZ-GYGF-ZT002砌体的裂缝
1、外墙填充墙砌筑,必须采用长江或黄河淤泥砖、水泥砖等,严禁采用粉煤灰砖,不宜采用加气砼砌块。外墙面不留企口,不同材料交接处外墙面抹灰前必须铺300宽钢丝网。刮糙后增加1厚JS防水涂料200宽。
2、混凝土填充墙顶部必须采用斜撑砖施工,斜撑砖砌筑时间必须间隔15d以后进行。

3、构造柱、过梁、腰梁、窗台梁等构件在主体结构施工时钢筋必须预留,严禁后植筋。
4、墙拉筋必须采用直径Ф6.5钢筋预埋,在混凝土内预埋锚固长度不小于200mm,外伸长度必须达到焊接长度要求(不小于100mm),高度间距根据砌块模数确定,但不得大于600mm,且不允许折弯压入砖缝,严禁后植筋。

5、每天砌筑高度宜控制在1.8m以下,并应采取严格的防风、防雨措施。
6、严禁在墙体上交叉埋设和开凿水平槽;竖向槽必须在砌体强度达到设计要求后,用机械开凿,且在粉刷前,加贴钢丝网片等抗裂材料,开槽宽度小于100mm采用1:3水泥砂浆填嵌,大于100mm必须采用细石混凝土填嵌。
7、严禁干砖上墙,砌体材料浇水湿润的时间必须提前1~2d,砌体材料的含水率必须符合规范要求,砌筑施工时,由现场工程师和监理人员应在现场对含水率进行抽查,并有记录。
8、施工洞、脚手眼等后填洞口补砌时,应将接槎处表面清理干净,浇水湿润,并填实砂浆。外墙等 防水墙面的洞口应采用防水微膨砂浆分次堵砌,迎水面表面采用1:3防水砂浆粉刷。孔洞填塞应由专人负责,并及时办理专项隐蔽验收手续。
9、对砌筑砂浆强度的检测,采用贯入式砂浆强度检测仪,每层抽查6块砌体,每块砌体测点不少于16个,每条灰缝测点不宜多于2个,间距不小于240mm。
第三条 ZNBZ-GYGF-ZT003混凝土剪力墙(柱)螺杆洞填堵工艺
1、外墙面脚手洞:应采用微膨胀细石砼嵌填密实后,再在外侧涂刷水泥基防水涂料。具体做法见下图。
2、螺丝杆洞:先采用机械对原螺杆洞进行拓孔,深度50mm,拓孔直径不小于30mm。采用防水砂浆封堵。防水砂浆达到一定强度后,从墙内侧将发泡剂填入,贯入深度距墙面50mm,再采用防水砂浆堵实。具体做法如图所示。

外墙面脚手洞、螺丝杆洞封堵措施
第四条 ZNBZ-GYGF-ZT004清水混凝土墙面不同墙体材料接缝处施工标准
混凝土墙(内墙)结构施工时,在大模板内侧沿洞口边位置(包括上口)预先设置宽75mm,厚10mm的企口(竹胶板及复合板模板内也相同做法),浇筑混凝土时凹槽一次性成型,避免抹灰时进行剔凿(另外建议加设抹灰抗裂缝进行二次封闭)。抹灰施工前,先在混凝土墙与填充墙之间钉150宽镀锌钢丝网防止开裂,顶层和一层墙面全覆盖镀锌钢丝网片。具体做法见下图。


第五条 ZNBZ-GYGF-ZT005砌筑用水泥规定
砌筑砂浆中的水泥强度等级应根据设计要求进行选择。
(1)水泥砂浆:选用的水泥强度等级不宜大于32.5级,砂浆中水泥用量不应小于200kg/m3。
(2)水泥混合砂浆:选用的水泥强度等级不宜大于32.5级,砂浆中水泥和掺加料总量宜为300~350kg/m³。
第六条 ZNBZ-GYGF-ZT006二次结构(构造柱)施工工法
1、设置钢筋混凝土构造柱的墙体,构造柱截面不应小于240mmX180mm(实际应用最小截面为240mmX240mm)。构造做法见下图。


2、沿构造柱边缘粘贴2公分海绵条,如上图。
3、支设构造柱模板,上口做成45°角浇筑口,在浇筑构造柱混凝土前,必须将砖墙和模板浇水湿润(钢模板面不浇水,刷隔离剂),并将模板内的砂浆残块、砖渣等杂物清理干净。为了便于清理,可事先在砌墙时,在各层构造柱底部(圈梁面上)留出二皮砖高的洞口,杂物清除后立即用砖砌封闭洞口。具体做法如下图。


4、混凝土坍落度必须控制在100mm内,以保证浇筑密实。浇捣构造柱混凝土时,宜用插入式振动器,分层捣实。
5、构造柱浇筑完以后,企口位置的砼三天后凿除,要求凿除后达到剁斧石面的细腻程度。
第七条 ZNBZ-GYGF-ZT007抹灰前的准备工作
抹灰前必须完成二次结构施工,完成灰饼、门框、阳角护角(必须采用1:2.5水泥砂浆施工)的施工,完成喷浆,镀锌钢丝网(丝径不小于1mm,孔径不大于10mm)张挂。
第八条 ZNBZ-GYGF-ZT008楼梯的选用
楼梯宜优先采用NPC公司生产的预制楼梯。
第九条 ZNBZ-GYGF-ZT009混凝土坍落度的要求
房地产各项目工程在浇筑砼过程中坍落度必须符合国家规范或标准执行(基础不大于160±20mm,主体不大于180±20mm),凡不符合国家规范或标准的,按1000元/次分别对监理公司、项目公司工程部进行处罚;严禁现场加水,如违反按1000元/次分别对监理公司、项目公司工程部进行处罚。城市公司工程部、工程管理中心、总经理检查组行使处罚权。
第十条 ZNBZ-GYGF-ZT010钢筋搭接的强制性要求
同一构件中相邻纵向受力钢筋的绑扎搭接接头必须相互错开,钢筋绑扎搭接接头连接区段的长度为1.3倍的搭接长度,凡搭接接头中点位于该连接区段长度内的搭接接头均属于同一连接区段。同一连接区段内,纵向受拉钢筋搭接接头面积百分率必须符合设计要求:且对墙类构件不得大于50%,板类构件不得大于25%,对梁柱类构件不得大于50%进行错开。简图规定(接头以简图形式表现),竖向直径≤12mm均采用搭接,直径≥14mm均采用电渣压力焊,直径≥18mm的均采用机械连接法。

第十一条 ZNBZ-GYGF-ZT011钢筋绑扎要求
钢筋绑扎应满扎,扎丝规格不小于22#(钢筋直径大于18mm时不小于20#),扎丝头向内。
第十二条 ZNBZ-GYGF-ZT012后浇带独立支撑施工工法
1、梁端竖向独立支撑要直接支撑在梁底砼面,即梁端竖向独立支撑在第一次支模时,把支撑顶面顶板标高设在梁底标高处。
2、后浇带处模板与其他模板断开,为独立模板支撑体系。其余部位的模板正常支设。
3、要考虑后浇带跨度大小不同时支撑体系设置不同,并要考虑梁端竖向支撑的整体性和后浇带两边沉降的不均匀性。
4、后浇带第一次竖向独立支撑支设示意图

5、后浇带第二次支模时,后浇带的模板要全部支设,用以浇筑后浇带处混凝土。要求模板要有足够的强度、刚度和稳定性。
6、后浇带第二次支模示意图

7、后浇带梁端竖向支撑示意图

8、当板的净跨度不小于8000mm时,除按计算要求在后浇带两边支设(独立定型)竖向支撑外,为了防止由于后浇带临时把大跨度板断开而使板受力挠度变形过大,造成结构破坏,在板跨内必须支设独立定型竖向支撑,对大跨度板竖向支撑进行加固。
三
装饰、装修部分
第一条 ZNBZ-GYGF-ZSZX001楼地面的施工要求
1、楼地面起砂、空鼓、裂缝防治
(1)浇筑面层砼或铺设水泥砂浆前,基层应清理干净并湿润,消除积水;基层处于面干内潮时,应均匀涂刷水泥素浆,随刷随铺设水泥浆或细石砼面层。
(2)严格控制水灰比,用于面层的水泥砂浆稠度应≤35mm,用于铺设地面的砼坍落度应≤30mm。
(3)水泥砂浆面层要涂抹均匀,随抹随用短杠刮平;砼面层浇筑时,应采用平板振捣或辊子滚压,保证面层强度和密实。
(4)掌握和控制压光时间,压光次数不少于2遍,分遍压实。
(5)地面面层施工24h后,应进行养护,并加强对成品的保护,连续养护时间不应少于7d;当环境温度低于5℃时,应采取防冻施工措施。
2、底层地面沉陷
(1)地面基土回填应分层夯实,分层厚度应符合规范要求。
(2)回填土不得含有有机物及腐质土。
(3)回填土应按规范要分层取样做密实度实验,压实系数必须符合设计要求。当设计无要求时,压实系数不应小于0.9。
第二条 ZNBZ-GYGF-ZSZX002外墙空鼓开裂、渗漏
1、外墙抹灰用砂含泥量应低于2%,细度模数不小于2.5。严禁使用石粉和混合粉。
2、砼或烧结砖基体上的刮糙层应为1:3水泥防水砂浆,轻质砌体上宜为1:1:6防水混合砂浆。砂浆厚度不超过10mm。
3、每一遍抹灰前,必须对前一遍的抹灰质量(空鼓、裂缝)检查处理(空鼓应重粉,只裂不空应用水泥素浆封闭)后才进行;两层间的间隔时间不应少于2~7d,达到冬季施工条件时,不应进行外墙抹灰施工;各抹灰层接缝位置应错开,并应设置在砼梁、柱中部。
4、外挑板、飘窗等部位必须粉出不小于2%的排水坡度,且靠墙体根部处应粉成圆角或45°角,在墙根处涂刷1mm厚JS防水涂料,水平宽度及泛水高度均为150mm(详见下图)。滴水线宽度应为30mm,且应粉成鹰嘴式。

第三条 ZNBZ-GYGF-ZSZX003外墙质量验收要求
刮糙层的验收要求:刮糙的厚度不得超过10mm,刮糙层立面垂直度±4mm,表面平整度±4mm,阴阳角方正不大于4mm。
保温层的验收要求:保温系统的抗拉强度必须符合规范要求,保温板的面层抗裂砂浆立面垂直度度±3mm,表面平整度±3mm,阴阳角方正不大于3mm。
腻子面层的验收要求:腻子的材料必须使用与外墙涂料相配套的弹性腻子,腻子表面打磨平整,腻子层立面垂直度±2mm,表面平整度±2mm,阴阳角方正不大于2mm。
外墙弹性涂料的验收要求:涂料的品牌、材质、用量、颜色必须符合设计及合同要求,一底两涂(表面拉花),保证十年内不起皮、不开裂。房屋目标均价在8000元/m²上的,宜采用真石漆,严禁使用普通涂料。
第四条 ZNBZ-GYGF-ZSZX004外墙饰面板
1、采用湿做法施工的饰面板工程,其板材应进行防碱背涂处理。
2、饰面板铺贴(干挂)时,应剔除有色纹、暗缝和隐伤等缺陷的板材。
3、后置埋件必须做现场拉拔强度试验,符合要求后才能铺贴装饰面板。
4、干挂饰面板应采用中性硅酮耐候密封胶密封,胶缝厚度不应小于3mm。
5、湿做法饰面板应采用不锈钢丝或钢丝固定,采用大理石胶或生石膏浆座缝,并及时清理缝隙外表的胶液或浆液。
6、湿做法饰面板灌浆前,应用聚合物水泥砂浆从内侧将缝隙堵实后,再灌1:3干硬性水泥砂浆,并应分层浇灌,分层振捣密实,且分层高度不宜大于板高的1/3,也不宜大于200mm。
第五条 ZNBZ-GYGF-ZSZX005顶棚裂缝、脱落
对平整度好,且无外露钢筋或钢丝的砼板底,宜采用免粉刷直接批腻子的做法(厨房、卫生间等湿度较大的房间不宜采用)。批腻子前应先清理干净板底污物,并先批一至两遍聚合物青水泥腻子,再批聚合物白水泥腻子。每遍厚度不应大于0.5mm,总厚度不宜大于2mm。
第六条 ZNBZ-GYGF-ZSZX006内墙抹灰的要求
1、内墙抹灰前砌体的砌筑完成时间不得少于30d。
2、内墙抹灰施工不少于两遍,每遍厚度宜为7~8mm,但不应超过10mm;面层宜为7~10mmm,严禁一遍成活。
第七条 ZNBZ-GYGF-ZSZX007卫生间的防水要求
1、卫生间地面:2mm聚氨酯防水涂料,泛水高度(完成面):淋浴区1800mm(1mm厚防水),浴盆区600mm,其余300mm。
2、排气道及管口周边根部管台另加附加防水层(2mm聚氨酯防水涂料成活),泛水高度300mm。所有立管根部均需设置管台(50mm*50mm)。
3、防水层施工前,应先将楼板四周清理干净,阴角处粉成小圆弧。防水层的泛水高度不得小于300mm(完成面以上)。
4、地面找平层朝地漏方向的排水坡度为1%~1.5%,地漏口要比相邻地面低5mm。
5、要求卫生间的暗敷管槽在卫生间墙面的防水施工前将其修补光滑。
6、卫生间墙面抹灰应用防水砂浆分2次刮糙,每遍厚度不超过8mm。
第八条 ZNBZ-GYGF-ZSZX008立管吊模的施工工艺
立道根部吊洞施工标准--采用“三次成活法”施工
1、浇筑细石混凝土前,先在洞口侧壁进行打毛,再刷一道素水泥浆后,用微膨胀混凝土(C30,石粒径5~10mm,坍落度28mm左右)分两次认真浇捣密实,第一次浇2/3厚,等24h后刷一道JS水泥基防水,然后进行第二次微膨胀细石混凝土浇捣,并且保证管道四周200mm范围内由管边向外适当找坡,有设计要求按设计要求找坡。管口封堵时,班组必须派专人进行跟踪施工。
2、两天以后方可拆模,并进行24h洒水养护。洞口混凝土需养护7天以上,同时做好防护工作,防止期间碰撞管道。
3、做好堵洞工作后,在管洞周边灌堵漏剂,并在管道半径200mm内做好二道加强防水层。
4、所有防水施工完成以后,应进行48小时蓄水试验,合格后方可进行隐蔽验收,在保护层施工过程中要特别注意对防水层的保护。、


第九条 ZNBZ-GYGF-ZSZX009管道井吊模的施工工艺

第十条 ZNBZ-GYGF-ZSZX010烟道根部吊模的施工工艺
烟道根部基层向上50mm高用防水砂浆做成45度圆角,具体做法见下图。

第十一条 ZNBZ-GYGF-ZSZX011安装立管施工要求
所有的安装立管施工前立管的周边范围内(出立管边200mm)必须完成贴饼,先抹灰施工,并完成第一遍腻子,注意成品保护。具体做法见下图。

第十二条 ZNBZ-GYGF-ZSZX012厨房间的防水要求
1、所有厨房间改为干区,取消地漏。
2、厨房间地面:1mm厚聚氨酯防水涂料成活,泛水高度300mm。
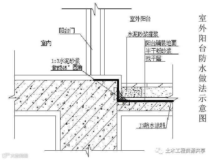
第十三条 ZNBZ-GYGF-ZSZX013室外阳台的防水要求
室外阳台必须增设1mm厚JS涂膜防水层(防水层必须设置于结构基层),每边泛水高度不小于150mm(除阳台门位置)。具体做法如下图所示:

第十四条 ZNBZ-GYGF-ZSZX014铝合金门窗后塞法施工工艺
为了更好的加强砼结构铝合金门窗框安装的成品保护,及防止门窗侧面的渗漏现象,根据多年来的实践经验总结,将砼结构外墙铝合金门窗框的施工工艺进行了更新升级实行“后塞法施工工艺”,现将砼结构后塞法施工工艺做法如下:
施工工艺如图:


1、施工工艺要求
(1)铝合金门窗框的要求:均采用后塞法施工。
2、后塞法适用范围:
(1)房地产业集团:适用于房地产开发的所有项目。
(2)建设产业集团:适用于总承包承接的内部房地产项目、地方无特殊规定及图纸设计无特殊要求的外部房地产项目。
3、施工准备:
(1)主体施工时应充分考虑到建筑做法因素。按施工图纸做法,调整洞口尺寸,根据保温层的厚度,计算增加门、窗侧面的洞口放大尺寸,按调整后的洞口尺寸、洞口位置、标高对施工人员进行技术交底。
(2)施工层厚度确定:刮糙层厚度为10mm,保温层厚度为20mm,抗裂砂浆厚度为3mm,窗台坡度为15%,约15~20 mm。窗顶鹰嘴坡度为10%。
(3)防水材料采用水泥渗透性防水涂料,门窗框与墙固定连接件采用固定在内墙单面。
4、施工流程:
门窗洞口企口预留——洞口抹灰——防水层施工——保温层施工——外墙抗裂砂浆及玻纤网格布施工——门窗框安装——门窗框与墙体之间间隙处理——门窗框与墙体处密封胶施工——外墙腻子、涂料施工
5、施工工艺:
(1)洞口主体施工时预留(施工时应具体根据设计做法的要求套用下列公式)
(2)洞口侧面刮糙:
1)门、窗洞口两侧边刮糙要求:两侧铺贴保温层位置处采用10厚1:2.5水泥砂浆刮糙,并用木蟹抹平压实。
2)门、窗上框处刮糙要求:顶部铺贴保温层位置处采用10厚1:2.5水泥砂浆刮糙,并用木蟹抹平压实。
3)门、窗下框处刮糙要求:顶部铺贴保温层位置处采用10~25厚1:2.5水泥砂浆刮糙找坡。
4)施工时注意事项:抹灰施工时应先刷混凝土界面剂,施工时应该严格控制好抹灰厚度、平整度、垂直度,防止因超厚或未达到抹灰厚度等影响下道工序的施工。
(3)防水层施工:洞口刮糙施工完成后,在刮糙面施工第一道防水层,为了防止刷油性防水层会造成抹灰层空鼓,现采用水泥渗透性防水涂料作为防水层,防水施工高度要求是:外墙面在护角处向墙体方向涂刷15cm,内墙面在护角向墙体方向涂刷5cm。
(4)门、窗侧面保温层施工:若外保温采用保温板作保温材料,所有的门窗侧面保温板采用专用粘结材料,保温板粘贴时采用满浆铺贴,拼缝时的接头缝也应是坐浆,防止点贴而产生渗漏。
(5)外墙抗裂砂浆及玻纤网格布施工,内墙门窗护角抹灰:保温层施工完成后先施工一层抗裂砂浆,粘贴网格布,粘贴网格布时窗角四周斜贴150mm宽300mm长加强层,再加一层抗裂砂浆,抗裂砂浆总厚度不小于3mm。
(6)门、窗框安装:门、窗框与墙体连接采用固定片厚度应大于或等于1.5mm,最小宽度应大于或等于15,其材质应采用Q235-A冷轧钢板,其表面应进行镀锌处理。门、窗框的固定件固定在门、窗墙体洞口位置的内侧,等待门、窗框安装完毕后再1:2.5水泥微膨胀砂浆将预留40×80凹槽补平。
(7)所有采用发泡剂聚氨酯嵌缝的严禁割裂,必须在发泡剂硬化之前实施挤压密实。
(8)门、窗框与墙体处密封胶施工:
所有门窗框外侧处全部采用密封胶,为了保证打胶质量及美观,密封胶宽度不大于10mm,在打胶前用单面胶带贴门窗侧边处控制密封胶宽度,等待打胶结束后再撕掉单面胶带。
注:所有的门窗四周侧边均采用保温砂浆成型
(9)外墙腻子、涂料施工:
1)待整个楼栋的门窗安装结束后方可外墙涂料施工,为了确保外涂料质量。
2)所有的外墙、门窗侧边均要批外墙抗裂腻子,打磨平整后刷一道封闭底漆,然后再刷外墙涂料。
第十五条 ZNBZ-GYGF-ZSZX015门框厚度要求
防盗门门框、单元门门框不锈钢厚度均不得少于2㎜。
第十六条 ZNBZ-GYGF-ZSZX016外墙GRC使用要求
1、外墙装饰用GRC线条必须采用石英砂材质,严禁使用菱苦土、泡沫、石膏等材质;金属挂件必须采用热镀锌、螺丝接件、ABB粘贴,严禁使用焊接挂件。
2、GRC构件的造型按设计要求,安装方法详见附图



第十七条 ZNBZ-GYGF-ZSZX017栏杆的要求
1、楼梯栏杆、阳台栏杆、室外栏杆及室外工程的所有钢构件必须采用铸铁管或热镀锌管或浸塑管,严禁采用普通黑铁管、电镀管。
2、栏杆垂直杆件的净距不大于0.11m,采用非垂直杆件时,必须采取防止儿童攀爬的措施。
3、金属栏杆制作和安装的焊缝,应进行外观质量检查,其焊缝应饱满可靠,严禁点焊。
4、预制埋件或后置埋件的规格型号、制作和安装方式除应有符合设计要求外,尚应符合以下要求:
(1) 主要受力杆件的预埋件钢板厚度不应小于4mm,宽度不应小于80mm,锚筋直径不小于6mm,每块预埋件不宜少于4根锚筋,埋入砼的锚筋长度不小于100mm,锚筋端部为180°弯钩。当预埋件安放在砌体上时,应制作成边长不小于100mm的砼预制块,砼强度等级不小于C20,将埋件浇筑在砼预制块土,随墙体砌块一同砌筑,不得留洞后塞。
(2) 主要受力杆件的后置埋件钢板厚度不小于4mm,宽度不宜小于60mm;立柱埋件不应少于两颗螺栓,并前后布置,其两颗螺栓的连线应垂直相临立柱间的连线,膨胀螺栓的直径不宜小于10mm;后置埋件必须直接安装在砼结构或构件上,已装饰部位应先清除装饰装修材料(含砼和水泥砂浆找平层)后才能安装后置埋件。
(3) 铸铁等栏杆必须进行防腐处理,除锈后应涂刷(喷涂)两度防锈漆和两度以上的面漆。
第十八条 ZNBZ-GYGF-ZSZX018内墙腻子施工要求
施工前,除电梯、防盗门以外的门窗洞口抹灰必须全部完成,地面施工必须待第一遍腻子完成后方可进行,30天内完成。
第十九条 ZNBZ-GYGF-ZSZX019地下室公共通道装修要求
地下室公共通道必须做简易精装,地面必须采用面砖,管网必须在吊顶内,不能外露,地下室腻子必须采用黑水泥腻子找平,满批白水泥(P32.5级)腻子,涂料必须采用防水、防霉涂料;地下室出口必须做简易精装,应铺普通毛面大理石或防滑面砖,应保证达到防滑功能。
第二十条 ZNBZ-GYGF-ZSZX020地下室墙面抹灰的要求
地下室原则上不抹灰,如若抹灰必须采用1:3水泥砂浆,厚度不超过15mm,分两次成活。
第二十一条 ZNBZ-GYGF-ZSZX021地下室地面要求
1、所有地下室、地下车库均须设H=120mm水泥砂浆踢脚线,厚度出墙面6—8mm。
2、主楼下的地下室地面均采用40厚C20细石砼原浆压光。
3、地下车库采用环氧树脂地面;车库汽车坡道取消百叶坡做法,采用金刚砂环氧树脂做法,色调根据需要设计确定。
第二十二条 ZNBZ-GYGF-ZSZX022管井盖要求
各类管井井盖必须带有中南LOGO标识,不锈钢包边。
第二十三条 ZNBZ-GYGF-ZSZX023室内外高低处防水做法

第二十四条 ZNBZ-GYGF-ZSZX024硬基础与回填土上基础接口处理


第二十五条 ZNBZ-GYGF-ZSZX025电梯、门窗、栏杆、进户门、防火门安装的时间规定

四
屋面部分
第一条 ZNBZ-GYGF-WM001屋面的防水要求
1、坡屋面
基层抹光处理后1.5mm聚氨酯防水涂料成活,泛水高度(排水坡度最高点往上250mm);40mm厚挤塑板(二线品牌);40mm厚抗渗C20,细石混凝土找平,内配φ4@200mm钢筋网片。分隔缝间距不宜大于3m,缝宽20mm,缝内油膏嵌实。
天沟另加附加防水层(2mm聚氨酯防水涂料成活),天沟泛水高度150mm,摔砂后进行水泥砂浆粉刷。

2、平屋面及露台
1.5mm厚JS防水涂料(在下)+1.5mm厚贴必定PET防水卷材(在上);40mm厚挤塑板(二线品牌);40mm厚C20细石混凝土找平,内配φ4@200mm钢筋网片。分隔缝间距不宜大于3m,缝宽20mm,缝内油膏嵌实。
女儿墙及出屋面墙体根部另加1.5mm厚贴必定PET附加防水层,泛水高度完成面向上300mm。

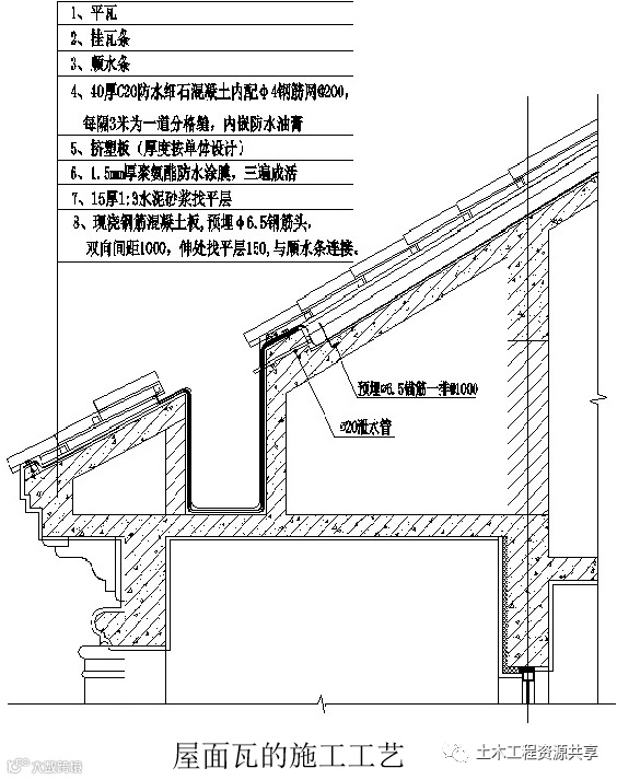
第二条 ZNBZ-GYGF-WM002屋面瓦的施工工艺
1、施工工序依次为:混凝土结构层-找平层-防水层-保温层-钢网混凝土保护层-顺水条-挂瓦条-水泥平板瓦。
2、屋面基层找平层平整度不超过15mm,施工时确保阴脊与阳脊、檐口与屋脊拉通线。
3、基层找平面用铁板压光。
4、2厚聚氨酯粘结牢固,无起鼓或脱开现象。
5、预留φ6.5钢筋,φ6.5钢筋横、竖向间距为1000mm。
6、保温板与基层面结合可以用胶水掺水泥点粘。
7、钢丝网细石砼用C20塌落度<6cm,随捣随抹光,平整度不超过8mm。
8、顺水条规格40×20杉木条,打孔与结构砼板预留φ6.5钢筋连接并固定,挂瓦条规格30×30杉木条,用水沥青涂刷防腐处理,挂瓦条用镀锌钢钉固定在顺木条上。

第三条 ZNBZ-GYGF-WM003屋面施工要求
1、在屋面施工时由上往下的施工工序,为了防止污染屋面,先施工高出屋面的分部分项工程,待高出屋面部分的脚手架拆除后再进行屋面施工。屋面檐口瓦的铺贴。
2、在保温层、防水层、保护层施工前,必须保证砌墙、抹灰、外墙腻子一遍施工完成,特殊情况必须在做好成品保护的情况下方可进行交叉作业。屋面的保温层施工完成后,在没有达到防水施工条件之前,必须进行覆盖保护,严防雨水进入。
第四条 ZNBZ-GYGF-WM004屋面面变形缝的施工要求
1、变形缝的泛水高度不应小于250mm;
2、防水层应铺贴到变形缝两侧砌体的上部;
3、变形缝顶部应加扣砼或金属盖板,砼盖板的接缝应用密封材料嵌填。
第五条 ZNBZ-GYGF-WM005出屋面管道的施工要求
伸出屋面管道周围的找平层应做成圆锥台,管道与找平层间应留凹槽,并嵌填密封材料;防水层收头处,应用金属箍箍紧,并用密封材料封严,具体构造应符合下列要求:
1、管道根部500mm范围内,砂浆找平层应抹出高30mm坡向周围的圆锥台,以防根部积水;
2、管道与基层交接处预留20mm×20mm的凹槽,槽内用密封材料嵌填密实;
3、管道根部周围做附加增强层,宽度和高度不小于300mm;
4、防水层贴在管道上的高度不应小于300mm,附加层卷材应剪出切口,上下层切缝粘贴时错开,严密压盖;
5、附加层及卷材防水层收头处用金属箍箍紧在管道上,并用密封材料封严。

第六条 ZNBZ-GYGF-WM006水落口的施工要求
1、水落口杯埋设标高应正确,应考虑水落口设防时增加的附加层和柔性密封层的厚度及排水坡度加大的尺寸。
2、水落口周围500mm范围内坡度不应小于5%,并应先用防水涂料或密封材料涂封,其厚度为2~5mm,水落口杯与基层接触处应留宽20mm、深20mm的凹槽,以便嵌填密封材料。

第七条 ZNBZ-GYGF-WM007出气口得设置规定,
不允许用PVC,用热镀锌1.5寸~1.4寸
五
安装部分
第一条 ZNBZ-GYGF-AZ001电气施工预埋工程施工要求:
1、防止开关盒预埋在砼内移位开关盒固定必须按照下图。(图一)、(图二)

2、电气管道在砼内预埋严禁三根管道在同一垂直面上交叉敷设。
3、二次配管的电线管道必须粉刷面保护层必须保证达到1.5cm以上。
4、管道在砼内敷设不得超过楼地面砼厚度的三分之一,若图纸设计无法保证必须在管道上口加敷设20cm宽钢板网加强。
5、卫生间局部等电位,卫生间四周梁内最少不得少于一根主钢筋必须环通,并与接地主筋连接。
6、所有预埋的电箱、电盒的安装连接必须采用锁母连接紧密。
7、开关距地面的高度为1.3m,距门口为同幢建筑同一轴线垂直位置的开关不得超过5mm;开关不得置于单扇门后。暗装开关的面板应端正、严密并与墙面平;开关位置应与灯位相对应,同一室内开关方向应一致;成排安装的开关高度应一致,高低差不大于2mm。
8、弱电工程厨房间煤气报警设备宜采用离线式报警设备。
9、屋面防雷引下线柱顶端到屋面必须用40*4镀锌扁铁敷设。严禁使用螺纹钢和圆钢。
10、桥架穿越伸缩缝、沉降缝必须做补偿措施,直行超过30米必须做补偿措施。
第二条 ZNBZ-GYGF-AZ002给排水系统工程施工要求:
1、给水室内管道明敷设时支架的间距不得大于管道直径的10倍。
2、给水内衬塑管道配件必须采用内衬塑配件。
3、暗敷设的给水管道浇筑楼地面找平层管道必须保压。(工程采用地暖管道敷设的同方法)
4、给水管道卫生间暗敷设的,必须先开槽做好防水再安装管道。
5、室外明装雨水管道必须采用雨水管道材质安装,严禁采用排水管道安装。
6、同层排水管道,沟槽底部必须设置集水排水装置。见(图三)
7、 建筑底层无地下室排水管道做法,必须在管道底部砌筑砖支墩,支墩间距保证不大于1.5米 。且管道四周必须回填细沙。厚度不小于20cm。
8、管道刷漆必须先刷防锈漆打底,再刷面漆,不同功能的管道必须刷管道标识漆,并要注明水流方向。
9、阀门螺栓安装螺栓头应从螺母中露出两个螺距为宜。为了防止振动造成松动,要使用垫圈。并做好防腐措施。

10、设备安装必须安装减震垫,减震垫设置20*20见方,2块橡皮3块铁片(钢板厚度0.5cm以上)自制减震垫做法。(图四)

第三条 ZNBZ-GYGF-AZ003通风工程施工要求:
1、管道的支架必须按照不超过2米设置。管道的直线长度超过30米,管道拐弯、末端必须设置固定支架。
2、通风管道的所有阀门必须设置独立支架。
3、风机设备必须设置减震垫,减震吊钩等减震措施。
4、矩形风管边长大于或等于630mm和保温风管边长大于或等于800mm,其管段长度在1200mm以上时均应采取加固措施。
第四条 ZNBZ-GYGF-AZ004消防箱安装要求
消防箱必须先安装,后砌墙。
第五条 ZNBZ-GYGF-AZ005地下室设备安装要求
地下室消防、弱电、通讯电缆等工程的预留、预埋,必须一次性规划,一次性设计,一次性在结构施工时预留、预埋,严禁采用明管敷设方法施工。
第一条 ZNBZ-GYGF-JC001管桩垂直度、桩身断裂、桩长施工要求
第二条 ZNBZ-GYGF-JC002钻孔灌注桩缩孔、坍壁问题的防治措施


第三条 ZNBZ-GYGF-JC003基坑支护要求



第四条 ZNBZ-GYGF-JC004大体积混凝土

第五条 ZNBZ-GYGF-JC005地下室的防水要求





第一条 ZNBZ-GYGF-ZT001混凝土结构裂缝





板筋成品保护措施
第二条 ZNBZ-GYGF-ZT002砌体的裂缝


第三条 ZNBZ-GYGF-ZT003混凝土剪力墙(柱)螺杆洞填堵工艺

外墙面脚手洞、螺丝杆洞封堵措施
第四条 ZNBZ-GYGF-ZT004清水混凝土墙面不同墙体材料接缝处施工标准


第五条 ZNBZ-GYGF-ZT005砌筑用水泥规定
第六条 ZNBZ-GYGF-ZT006二次结构(构造柱)施工工法




第七条 ZNBZ-GYGF-ZT007抹灰前的准备工作
第八条 ZNBZ-GYGF-ZT008楼梯的选用
第九条 ZNBZ-GYGF-ZT009混凝土坍落度的要求
第十条 ZNBZ-GYGF-ZT010钢筋搭接的强制性要求

第十一条 ZNBZ-GYGF-ZT011钢筋绑扎要求
第十二条 ZNBZ-GYGF-ZT012后浇带独立支撑施工工法
4、后浇带第一次竖向独立支撑支设示意图



第二条 ZNBZ-GYGF-ZSZX002外墙空鼓开裂、渗漏

第三条 ZNBZ-GYGF-ZSZX003外墙质量验收要求
第五条 ZNBZ-GYGF-ZSZX005顶棚裂缝、脱落
第七条 ZNBZ-GYGF-ZSZX007卫生间的防水要求
第八条 ZNBZ-GYGF-ZSZX008立管吊模的施工工艺


第九条 ZNBZ-GYGF-ZSZX009管道井吊模的施工工艺

第十条 ZNBZ-GYGF-ZSZX010烟道根部吊模的施工工艺
烟道根部基层向上50mm高用防水砂浆做成45度圆角,具体做法见下图。

第十一条 ZNBZ-GYGF-ZSZX011安装立管施工要求

第十二条 ZNBZ-GYGF-ZSZX012厨房间的防水要求
第十三条 ZNBZ-GYGF-ZSZX013室外阳台的防水要求

第十四条 ZNBZ-GYGF-ZSZX014铝合金门窗后塞法施工工艺


第十五条 ZNBZ-GYGF-ZSZX015门框厚度要求
第十六条 ZNBZ-GYGF-ZSZX016外墙GRC使用要求



第十七条 ZNBZ-GYGF-ZSZX017栏杆的要求
第十八条 ZNBZ-GYGF-ZSZX018内墙腻子施工要求
第十九条 ZNBZ-GYGF-ZSZX019地下室公共通道装修要求
第二十条 ZNBZ-GYGF-ZSZX020地下室墙面抹灰的要求
第二十一条 ZNBZ-GYGF-ZSZX021地下室地面要求
第二十二条 ZNBZ-GYGF-ZSZX022管井盖要求
第二十三条 ZNBZ-GYGF-ZSZX023室内外高低处防水做法

第二十四条 ZNBZ-GYGF-ZSZX024硬基础与回填土上基础接口处理


第二十五条 ZNBZ-GYGF-ZSZX025电梯、门窗、栏杆、进户门、防火门安装的时间规定

第一条 ZNBZ-GYGF-WM001屋面的防水要求


第二条 ZNBZ-GYGF-WM002屋面瓦的施工工艺


第六条 ZNBZ-GYGF-WM006水落口的施工要求

第七条 ZNBZ-GYGF-WM007出气口得设置规定,
不允许用PVC,用热镀锌1.5寸~1.4寸
第一条 ZNBZ-GYGF-AZ001电气施工预埋工程施工要求:

第二条 ZNBZ-GYGF-AZ002给排水系统工程施工要求:


第三条 ZNBZ-GYGF-AZ003通风工程施工要求:
第四条 ZNBZ-GYGF-AZ004消防箱安装要求
第五条 ZNBZ-GYGF-AZ005地下室设备安装要求
您的转发是对我们最大的支持
猜你喜欢:
3、助力2018安全生产月,这100份安全资料合集值得入手(可下载)
本文由微信公众号土木工程资源共享,如需转载请注明出处。

加入我们
投稿展示或者分享资料
一起交流一起成长
扫一扫下方二维码,灵感即刻进
官方微信或qq:483972950
官方qq群:343778875 或648915172



