提示点击↑上方"土木工程资源共享"关注加入
点我资料免费下
【重磅福利】
承插型盘扣式钢管脚手架是具有自锁工程的直插式新型钢管脚手架,与传统扣件式悬挑外架相比,在搭拆效率、可靠性、安全性、节约成本及节能环保方面有明显提高。尤其在超过一定规模的危大工程应用更为广泛。
|
|
|
1
文件要求
2018年3月8日住建部下发《危险性较大的分部分项工程安全管理规定》(建设部37号令)。该文件自2018年6月1日期开始实施。
1.1
模板工程超危大判别标准
1.2
举例说明危险性分析过程
计算依据:
1、《建筑施工脚手架安全技术统一标准》GB51210-2016
2、《混凝土结构设计规范》GB50010-2010
3、《建筑结构荷载规范》GB 50009-2012
4、《钢结构设计标准》GB 50017-2017
5、《危险性较大的分部分项工程安全管理规定》建办质(2018)31号文
6、《建设工程高大模板支撑系统施工安全监督管理导则》建质[2009]254号文
1.2.1
信息参数
|
|
|||
|
|
|
|
|
|
|
|
|
|
|
|
|
|
|
|
|
|
|
|
|
|
|
|
|
|
|
|
||
|
|
|||
|
|
|
||
|
|
|
|
|
|
|
|
|
|
|
|
|
||
1.2.2
(1) 模板支架搭设高度H:9m≥8m
|
|
|
|
|
|
3.1
材料要求
3.1.1
3.1.1
(1)可调底座和可调托座的丝杆宜采用梯形牙,A型立杆宜配置Ø48丝杆和调节手柄,丝杆外径不应小于46mm;B型立杆宜配置Ø38丝杆和调节手柄,丝杆外径不应小于36mm。
(2)可调底座的底板和可调托座托板宜采用Q235钢板制作,厚度不应小于5mm,允许尺寸偏差应为±0.2mm,承力面钢板长度和宽度均不应小于150mm,承力面钢板与丝杆应采用环焊,并应设置加劲片或加劲拱度;可调托座托板应设置开口挡板,挡板高度不应小于40mm。
3.1.2
3.1.3
3.1.4
3.2
构造要求
3.2.1
3.2.2
3.2.3
3.2.4
3.2.5
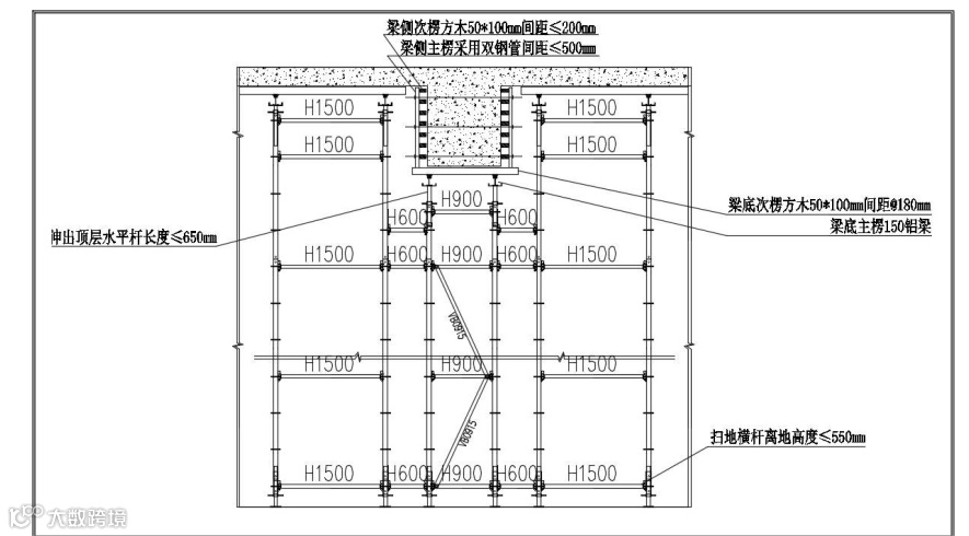
(1)当盘扣架体搭设高度不超过8m时:支架架体四周外立面向内的第一跨每层均应设置竖向斜杆,架体整体底层以及顶层均应设置竖向斜杆,并应在架体内部区域每隔5跨由底至顶纵、横向均设置竖向斜杆(图6.1.3-1)或采用扣件钢管搭设的剪刀撑(图6.1.3-2)。当满堂模板支架的架体高度不超过4个步距时,可不设置顶层水平斜杆;当架体高度超过4个步距时,应设置顶层水平斜杆或扣件钢管水平剪刀撑。
(2)当盘扣架体搭设高度超过8m时,竖向斜杆应满布设置,水平杆的步距不得大于1.5m,沿高度每隔4~6个标准步距应设置水平层斜杆或扣件钢管剪刀撑(图6.1.3-3)。周边有结构物时,宜与周边结构形成可靠拉结。
3.3
荷载要求
3.3.1
3.3.2
3.3.3
3.3.4
3.4
设计计算
3.4.1
3.4.2
|
|
|
关于专项施工方案内容
(一)工程概况:危大工程概况和特点、施工平面布置、施工要求和技术保证条件;
(二)编制依据:相关法律、法规、规范性文件、标准、规范及施工图设计文件、施工组织设计等;
(三)施工计划:包括施工进度计划、材料与设备计划;
(四)施工工艺技术:技术参数、工艺流程、施工方法、操作要求、检查要求等;
(五)施工安全保证措施:组织保障措施、技术措施、监测监控措施等;
(六)施工管理及作业人员配备和分工:施工管理人员、专职安全生产管理人员、特种作业人员、其他作业人员等;
(七)验收要求:验收标准、验收程序、验收内容、验收人员等;
(八)应急处置措施;
(九)计算书及相关施工图纸。
|
|
|
5.1
设支架设计注意事项
(1)根据施工时架体所受荷载进行支架设计,优化立杆布置间距,在受力检算合格的情况下,调整间距为1.5m×1.5m或1.5m×0.9m,步距均为1.5m,局部位置适当加密,利于工人操作,提高施工速率;
(2)在地势条件变化较大的区域,根据场地标高情况,按0.5m或1m设置台阶,减少挖填方量;
(3)在曲线位置,盘扣架在转角处可以使用钢管拉结,与立杆垂直布置原则相比较,施工成本更少;
(4)操作平台做成悬挑式,减少施工用地、支架搭设工作量,节约施工成本;
(5)门洞设计优先考虑使用单元桁架作为门洞立柱,便于施工,若受力情况不允许,也可使用型钢、粗钢管等材料做为门洞立柱;
(6)顶托的选型除了满足受力要求外,还应结合主龙骨实际尺寸进行选择,避免出现主龙骨放置不下的情况,导致方案不具有可行性;
(7)使用品茗安全计算软件进行龙骨、立杆受力分析时,应结合所在地区材料市场龙骨实际尺寸进行检算,根据材料实际情况,选择正确的计算公式,确保方案具有可行性。
(8)施工中应严格执行《建筑施工承插型盘扣式钢管支架安全技术规程》(JGJ 231-2010 )
5.2
现场常见搭设形式
5.2.1
(1)梁下设置搁置主梁
在受力检算通过的条件下,可采用双槽钢搁置在连接盘上作为支撑模板面板及龙骨的托梁,双槽钢托梁布置示意如下图所示:
(2)梁板立柱共用
一般情况,房建工程梁截面面积较小,采用此种支撑方式
(3)梁板立柱不共用
5.2.2
支架拆除遵循“先支后拆,先拆非承重支架,后拆承重支架”的原则,从上至下逐层拆除。
承插型盘扣式支架的本质是一种半刚性空间框架结构,它适用于支架搭设高度≤24m的现浇法施工(大于24m时需具有相关资质的单位进行单独设计),盘扣式支架体系主要以单元桁架做为基本计算单元,桁架结构具有较好的抗倾覆性及稳定性,其横杆有HG-30、HG-60、HG-90、HG-120、HG-150等基本型号,且可以利用盘扣节点设置双槽钢托梁,局部调整立杆排布,能满足大多数情况的支架搭设要求,施工十分方便。也可以利用架管搭设悬挑支撑结构做为操作平台,有利于在场地狭窄的区域进行支架搭设施工,减少工作量,节约施工成本。

12、检验批的划分、容量及抽样总结!附76个常用检验批验收表!
15、资料员、施工员、技术员请注意!三分钟搞懂施工技术资料编制重难;
猜你喜欢:
3、助力2018安全生产月,这100份安全资料合集值得入手(可下载)
源自 | 品茗施工技术
转载请注明来源

加入我们
投稿展示或者分享资料
一起交流一起成长
扫一扫下方二维码,灵感即刻进
官方微信或qq:483972950
官方qq群:343778875 或648915172



