提示点击↑上方"土木工程资源共享"关注加入
点我资料免费下
【重磅福利】
各位施工大佬们,平时干现场多为钢筋混凝土结构,
1 钢筋安装施工准备
模板工作面经清理完成后再整体交付钢筋班
2 钢筋锚固要求
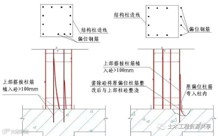
3 柱钢筋安装
4墙钢筋安装
5 梁钢筋安装
错误做法 正确做法
6 板钢筋安装
7工程项目常见的问题
8 验收表格

12、检验批的划分、容量及抽样总结!附76个常用检验批验收表!
猜你喜欢:
3、助力2018安全生产月,这100份安全资料合集值得入手(可下载)
源自丨网络

加入我们
投稿展示或者分享资料
一起交流一起成长
扫一扫下方二维码,灵感即刻进
官方微信或qq:483972950
官方qq群:343778875 或648915172



