提示点击↑上方"土木工程资源共享"关注加入
点我资料免费下
【重磅福利】
人防预留预埋涉及到战时和平时给排水、通风、电气。施工之前要要结合平时、战时图纸、结构图纸一块看,认真分析每一道外墙、临空墙、单元隔墙,仔细研究每一个战时功能房间(主要是密闭通道、滤毒室、战时机房、柴油发电站等),不要遗漏任何一个套管。下面就基于工程示例解读,以供大家参考实施。
战时
战时
施工内容包括:①人防门上预留套管;②防爆波电缆井预留线管;③人防门、门框接地;④暗敷线管密闭处理;⑤防爆按钮。
1、人防门上预留套管
注:出入口、连通口防护密闭门、密闭门门框墙上均应预埋4-6根备用管,管径50-80mm,管壁厚度不小于2.5mm,管材采用热镀锌钢管,并作防护密闭处理。



战时通道密闭门上预留6根DN50穿线管
2、防爆波电缆井预留线管
室外进线应设置防爆波电缆井,防爆波电缆井宜设置在紧靠外墙外侧。除留设计需要的穿墙管数量外,还应留4-6根备用管,以备扩展。

3、人防门、门框接地

4、暗敷线管密闭处理


5、防爆按钮(主要口部门旁必须设置)



施工内容包括:①密闭通道的气密测量管;②压差测量管;③穿墙通风管。
注意要点:数量;位置、标高;管径大小;长度;做法(套丝、焊口、除锈、刷防腐漆)。
1、气密测量管(07FK02-60)
出墙5cm,两端套丝、封堵。



2、压差测量管(07FK02-58)
出墙5cm,两端套丝、封堵。



3、穿墙通风管(07FK02-48)
应采用2-3mm后的钢板焊接成型。

注:套管可出墙10cm,也可与墙平齐做密闭肋。
第一种做法:与墙平齐做密闭肋


第二种做法:出墙10cm


施工内容包括:①防爆地漏;②管道穿密闭墙。
1、防爆地漏
注意要点:资料(合格证、检验报告);低于建筑成活面5-10mm,排水管为镀锌钢管,丝接。

2、管道穿密闭隔墙处理
第一种:管道穿防护单元密闭隔墙
防护区内加阀门

第二种:管道穿防护单元密闭隔墙
两端都加阀门

第三种:管道穿外墙
防护区内侧加阀门

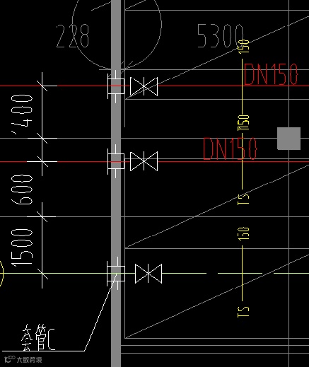
3、战时给排水密闭墙预留套管
平时
平时
主要是桥架穿单元隔墙、线管穿外墙或者临空墙的套管预留预埋。

压力排水、消防、喷淋主管穿单元隔墙和临空墙、外墙等套管预留预埋。
平时通风风管不得穿越人防临空墙、单元隔墙。当平时风管进入密闭隔墙时,应在墙体内按规定埋设预埋件,且必须有平战转换措施(拆除、封堵)。一般设计人防防护单元和防火单元是重叠的,所以平时风管一般不会穿越人防密闭墙。

预留套管要求GB50134-2004:

注意:套管与翼环验满焊,套管内外侧除锈,内测刷防锈漆两道,模板拆除后,外露的套管要刷防锈漆保护。



12、检验批的划分、容量及抽样总结!附76个常用检验批验收表!
15、资料员、施工员、技术员请注意!三分钟搞懂施工技术资料编制重难;
17、建筑工程现行常用施工质量验收规范汇总-每一位建筑工程从业者的必备工具!
猜你喜欢:
3、助力2018安全生产月,这100份安全资料合集值得入手(可下载)
源自 | 建筑工程鲁班联盟
加入我们
投稿展示或者分享资料
一起交流一起成长
扫一扫下方二维码,灵感即刻进
官方微信或qq:483972950
官方qq群:343778875 或648915172



