提示点击↑上方"土木工程资源共享"关注加入
点我资料免费下
【重磅福利】


以上来源 中国消防
以下来源 建筑安全生产
观点丨脚手架外立面安全平网搭设研究
投稿作者:杨利涛,吴 磊,金友昌
作者单位:浙江省建工集团有限责任公司
建筑施工脚手架外立面安全平网(又称“跳网”)预防高处坠落伤害发挥着举足轻重的作用。脚手架“落手清”不及时,每步踢脚板(踢脚杆)设置不到位,安全网底部绑扎有弧间隙,当物的不安全状态、人的不安全行为同时作用时,就极易发生坠落伤害事故。安全平网作为一种水平防护,不仅起到对坠落物的隔离,同时起到对人的保护。
一、脚手架外立面安全平网搭设做法
1.1、钢管斜撑或斜拉式安全防护平网
图一 钢管斜撑式平网
图二 钢管斜拉式平网
1)搭设安全性能分析
图三 受力图
图四 受力图
采用钢管斜撑式搭设,为使受力顺利传递,斜撑杆应固定于立杆上。以斜压杆为受力对象分析:当外力垂直作用于安全平网,斜撑杆受斜压力F压,斜撑杆与脚手架间夹角为β,则斜拉杆受到的斜压力水平方向可分解为脚手架受到的水平向内压力F1压=F压•sinβ,脚手架受到向内的挤压,造成脚手架不良受力,但相比前者风险略低;斜拉杆受到的斜压力竖向垂直方向可分解为脚手架受到的垂直向下的压力F2压= F压•cosβ,对于脚手架产生向下的压力,正常受力。从防坠角度分析:斜撑杆位于安全平网下方,安全平网上方无障碍物,坠落的着网面积较大(图四)。
1.2、钢丝绳斜拉式安全防护平网
脚手架外立面安全防护平网采用钢丝绳柔性拉结,钢丝绳固定于上层楼面的预埋钢筋钩,采用花篮螺栓紧固(不建议采用花篮螺栓),起到对安全平网的斜向拉结。由于钢丝绳的选型未设定具体标准,过粗,减少坠落的着网面积;过细,增加冲击荷载的断绳风险。钢丝绳本身柔性(弹性)较强,当坠物和人碰到时,钢丝绳本身的弹性会造成坠物弹的更远,超出安全平网的防护半径,增加了安全风险(图五)。
图五 钢管斜撑式平网
图六 型钢式悬挑平网
1.3、型钢式悬挑安全防护平网
采用型钢悬挑式安全防护平网搭设,型钢采取悬挑脚手架搭设方法铺设,外侧临边搭设围护栏杆,底部铺设安全网和硬质材料。安全防护网对物的坠落起到很好的硬质隔离防护,但对于人员坠落会造成“硬着陆”。搭设美观,但随楼层高度的增加,防护半径达不到要求,如跟随主体重新搭设则成本较高(图六)。
1.4、装饰阶段安全防护平网
施工进入装饰阶段,外立面脚手架已拆除,楼幢底部周边处于高处坠落危险区。一般常规做法从主体第二层设置安全平网,安全平网与主体间固定采用钢管顶撑楼层底板和顶板,但安全平网与楼幢外立面会形成必要的夹角,造成平网的水平投影面积减少。如采用钢丝绳拉结,可将平网与主体外立面夹角设为90度,但钢丝绳置于平网上方,与上述1.2内容一致。
图七 钢管斜撑式平网
图八 钢管斜撑式平网
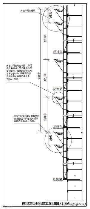
1.5、合肥市安全防护平网搭设要求参考
针对脚手架外立面安全平网搭设,合肥市建筑质量安全监督站下发了《关于进一步加强我市建筑施工脚手架安全专项治理工作的通知》,文件针对落地架和悬挑架两种脚手架设置形式,针对性的对平网搭设做了具体要求和详细阐述。但全面综合考虑欠缺,安全平网搭设过于繁多,增加了脚手架的自重,并提高了脚手架的抗风能力要求(图九)。
图九 安全平网搭设示意图
二、安全平网搭设存在的弊端
2.1、针对固定的施工场地,安全平网的搭设加大了附属物水平投影面积,减少了塔吊吊钩自由活动空间,增加塔吊挂网风险。
2.2、处于台风地区,如平网搭设过密,不仅增加脚手架的自重,也会阻碍风窝力的流通,增大脚手架的外界受力,造成脚手架的不稳,对脚手架的抗风载能力提出更高要求。
2.3、安全平网长度固定,根据《建筑施工高处作业安全技术规范》要求,防护半径随着楼层的起升达不到防护要求,需根据建筑施工高度重新多次布设。
2.4、平网不能有效的达到水平投影面积,与建筑物存在一定的夹角。采用钢丝绳拉结,可以充分发挥安全平网的投影面积,但钢丝绳拉结的弊处远大于利处。
三、规范外立面安全平网搭设的要点
建筑业是高处坠落的高发行业,为有效的避免高处坠落的伤害,保护作业人员的生命财产安全,首先要提高认识,管理者从上到下要充分了解平网的作用,做到知其然知其所以然;其次是要严把质量关,充分保证投入使用经检验合格的安全平网,做到本质安全;再次要优化施工方案,不同施工现场因地制宜的选取适宜的搭设方法,在脚手架方案中,要有通过计算书和平面布置图。建筑行业因区域性发展不协调等问题,各地的认知和重视程度不足,更待需主管部门及时制定针对性的规范标准。

12、检验批的划分、容量及抽样总结!附76个常用检验批验收表!
15、资料员、施工员、技术员请注意!三分钟搞懂施工技术资料编制重难;
17、建筑工程现行常用施工质量验收规范汇总-每一位建筑工程从业者的必备工具!
猜你喜欢:
3、助力2018安全生产月,这100份安全资料合集值得入手(可下载)

加入我们
投稿展示或者分享资料
一起交流一起成长
扫一扫下方二维码,灵感即刻进
官方微信或qq:483972950
官方qq群:343778875 或648915172




