提示点击↑上方"土木工程资源共享"关注加入
点我资料免费下
【重磅福利】
3月14日,重庆市住建委发布《关于进一步加强全市房屋建筑和市政基础设施工程安全文明施工管理的通知》。
自发文之日起,新开工项目施工围挡应从《建设工程施工现场围挡标准图集》中选取样式。其中,
1、旅游景点、商圈、重要道路两侧工程应选用高大围挡(3.6m或5m高);
2、其他区域采用普通围挡(2.5m高);
3、工期短于3个月的项目,高度可降至2米。
其他续建工程施工围挡应从《建设工程施工现场围挡标准图集》中选取样式,按规定设置高度,并于2022年7月31日前完成围挡的更新、更换。





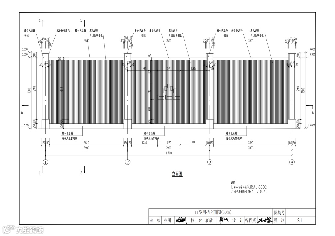
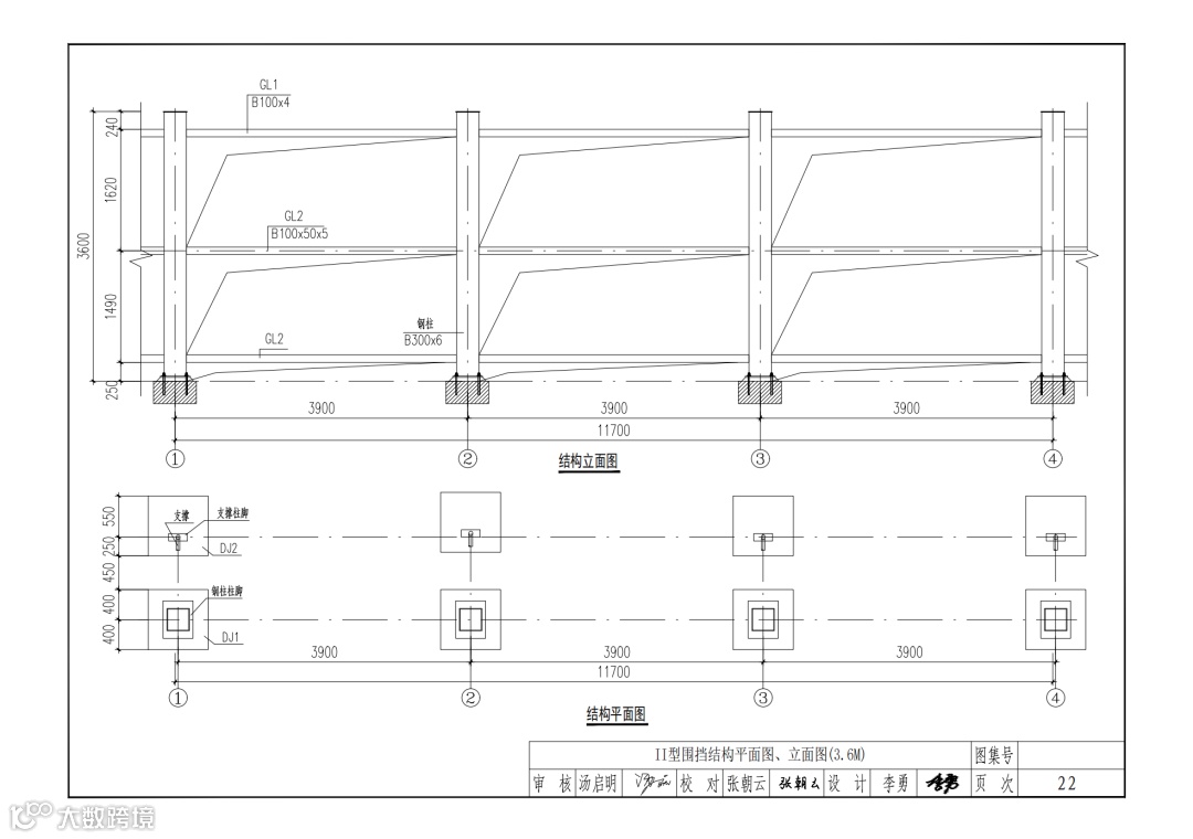
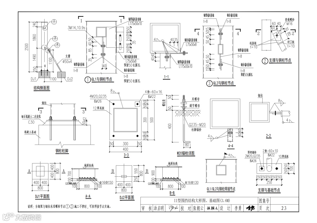
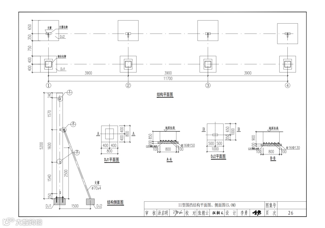
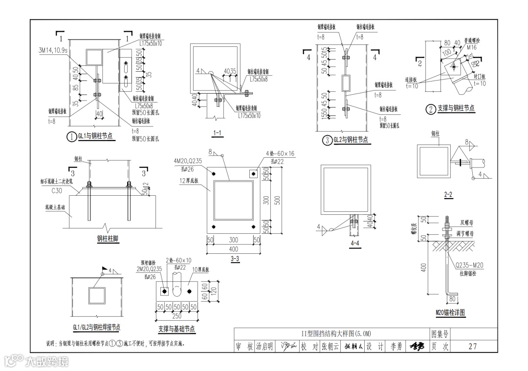
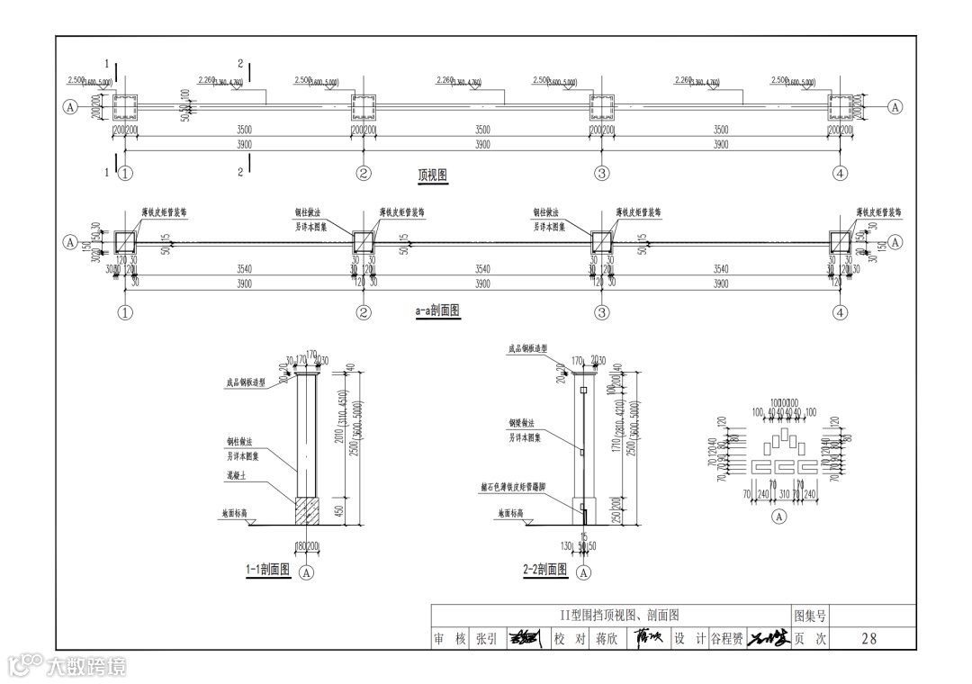
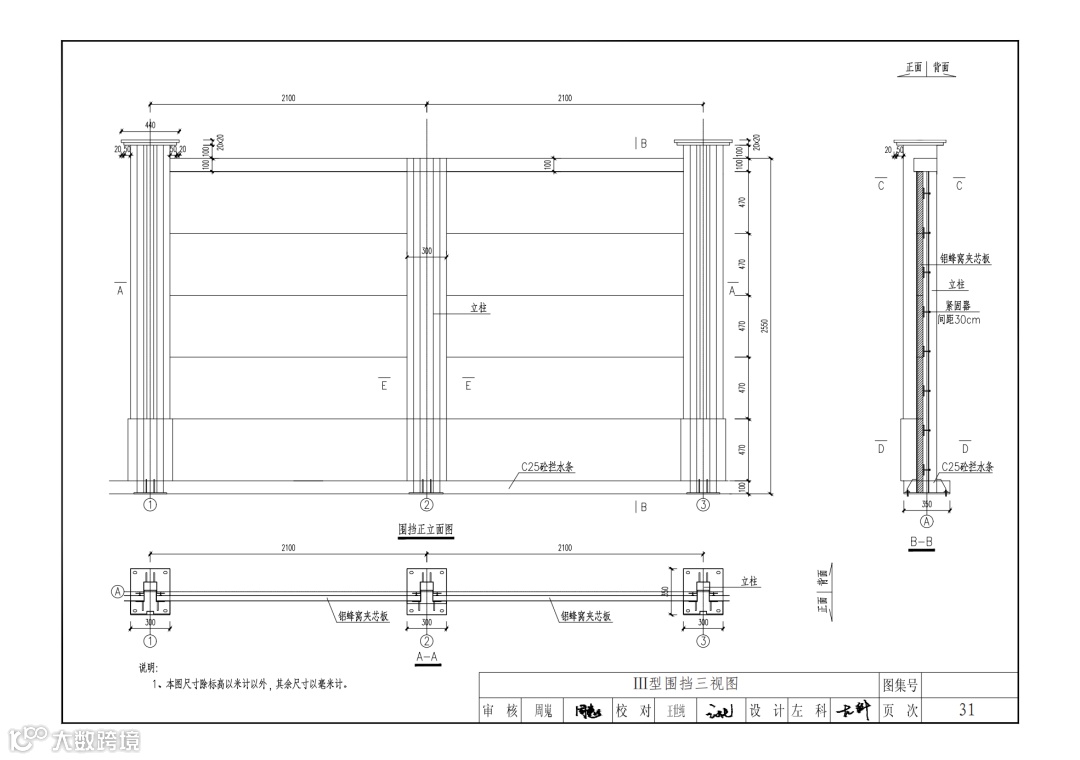
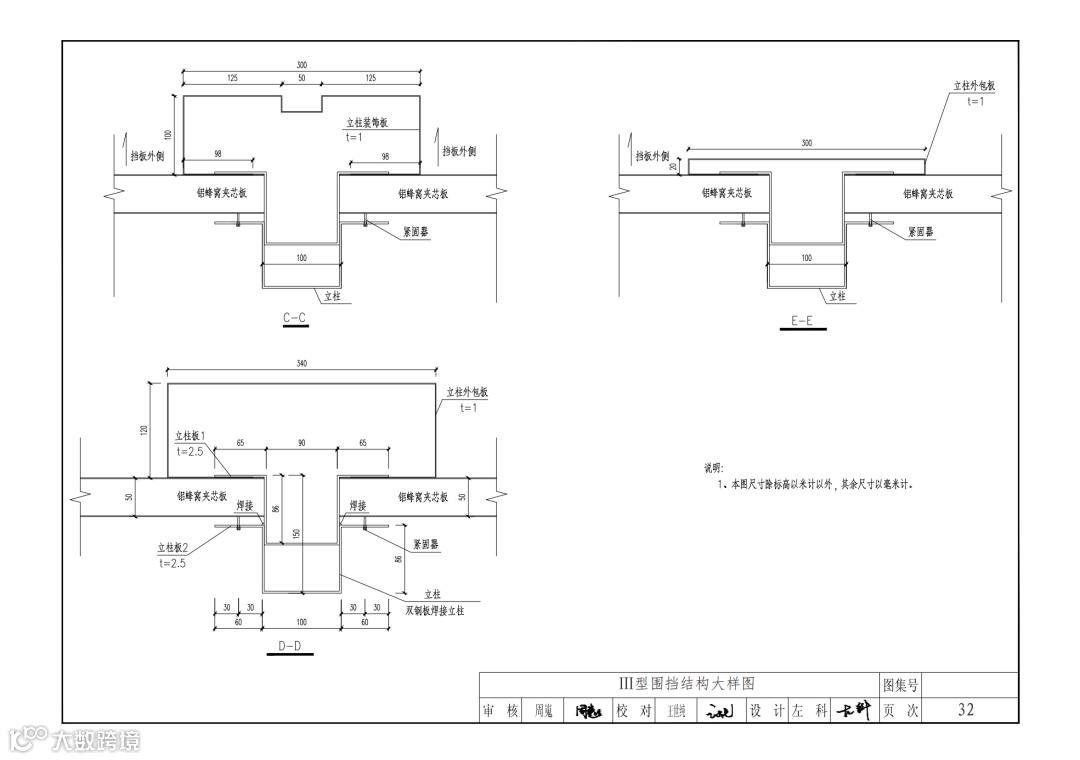
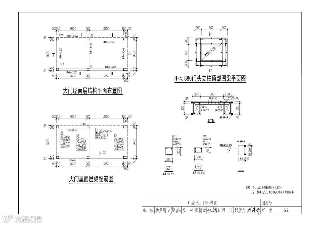
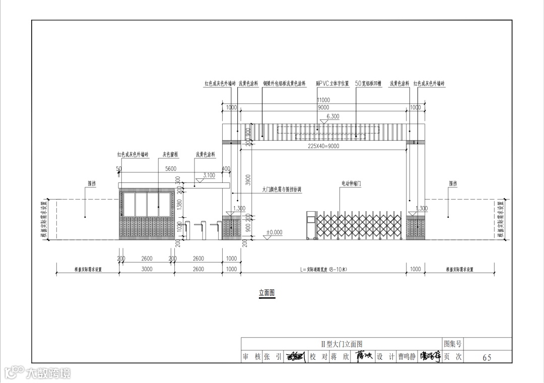
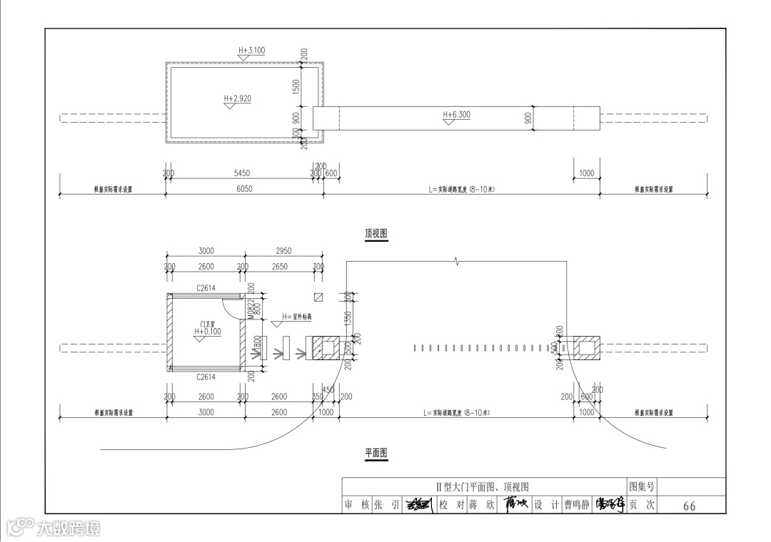
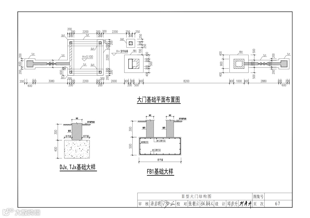
具体标准可见文章末尾附件:建设工程施工现场围挡标准图集
原文如下:

重庆市住房和城乡建设委员会
关于进一步加强全市房屋建筑和市政基础
设施工程安全文明施工管理的通知
渝建管〔2022〕143号
各区县(自治县)住房城乡建委,两江新区、经开区、高新区、万盛经开区、双桥经开区建设局,有关单位:
为深入贯彻落实市委市政府关于城市提升的部署安排,进一步推动我市文明施工管理水平持续提升,打造干净、清爽、绿色工地,营造整洁、优美的城市环境,现就加强全市房屋建筑和市政基础设施工程安全文明施工管理工作通知如下:
一、优化围挡方案,提升工地外观形象
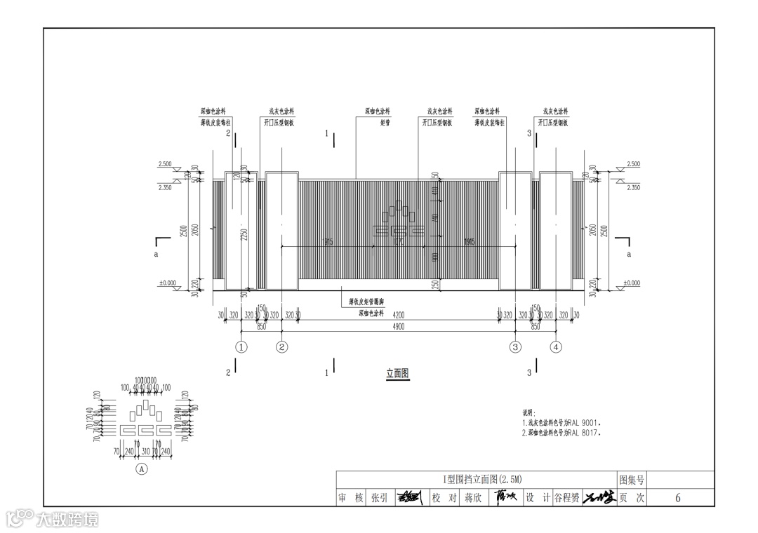
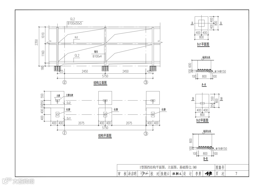
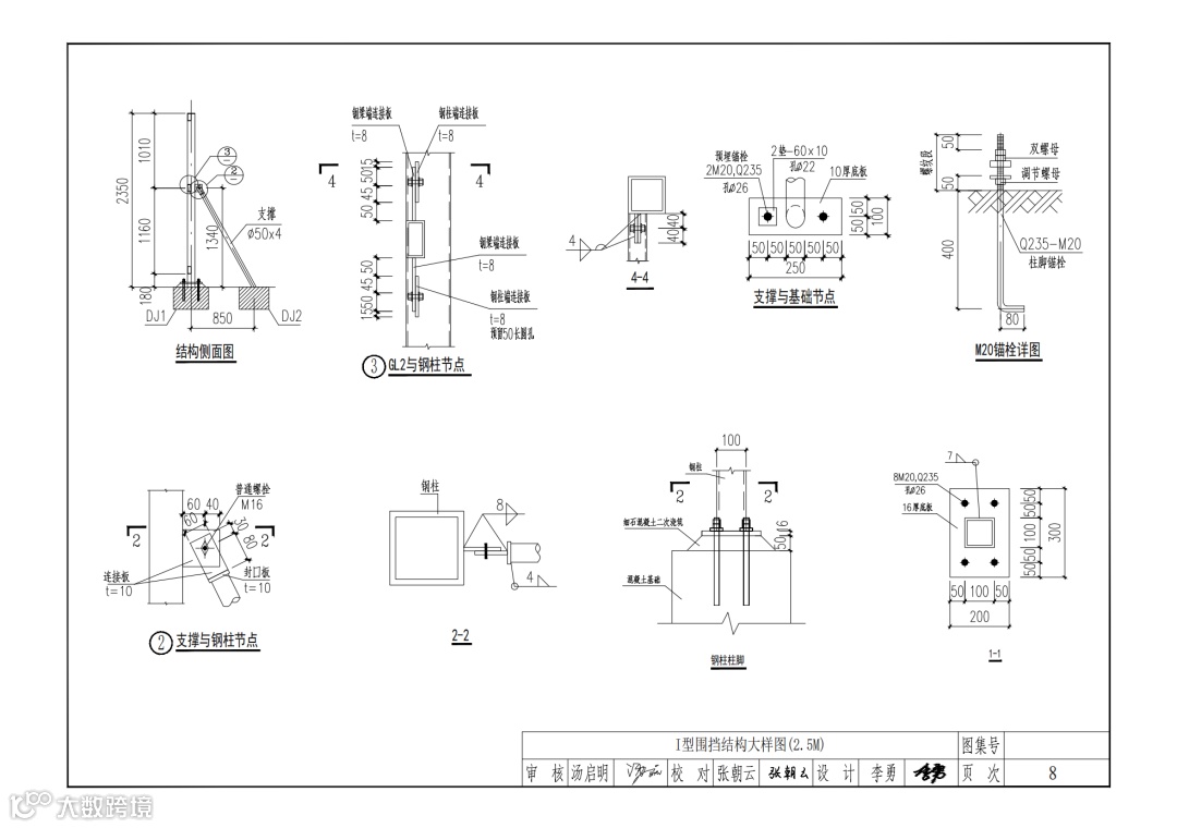
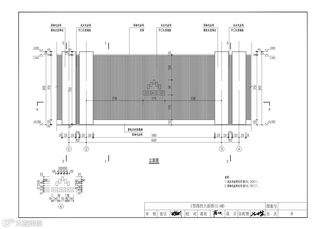
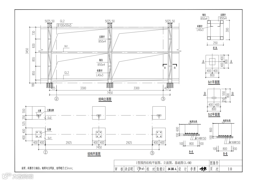
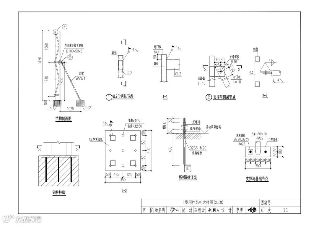
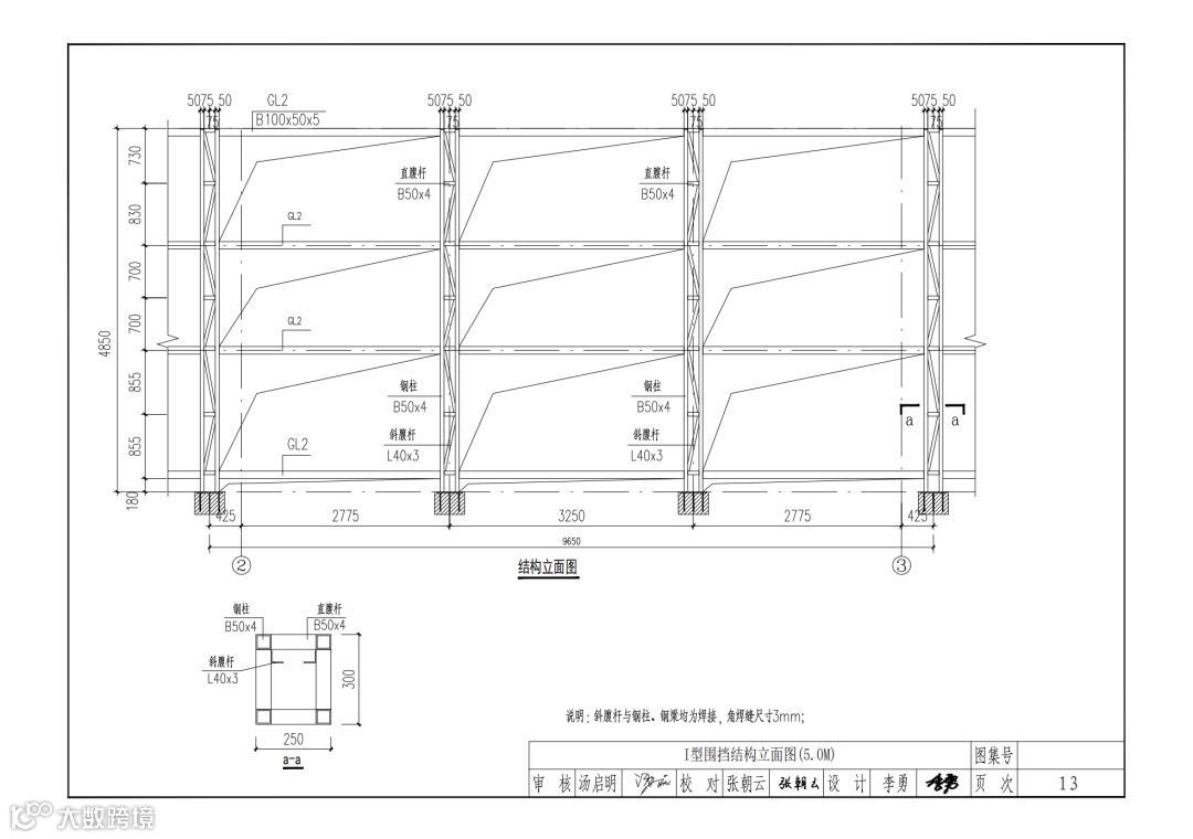
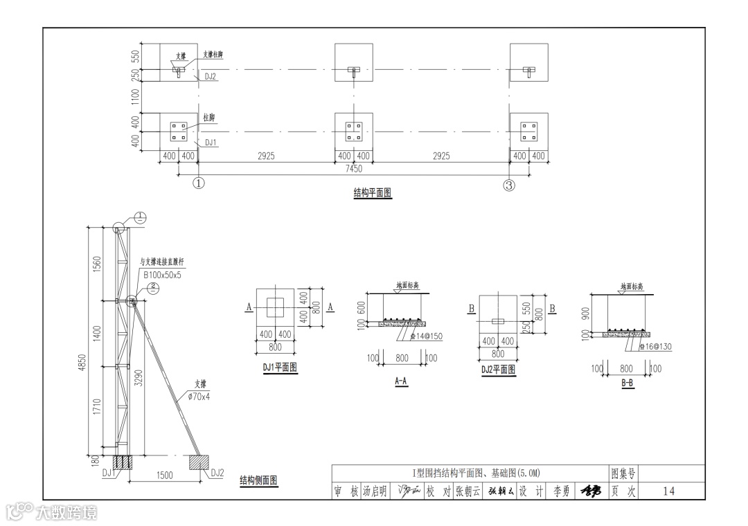
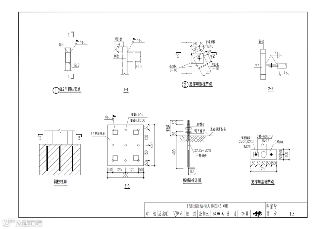
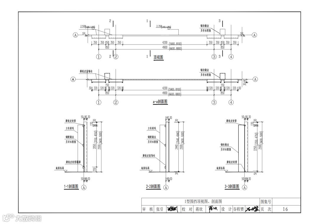
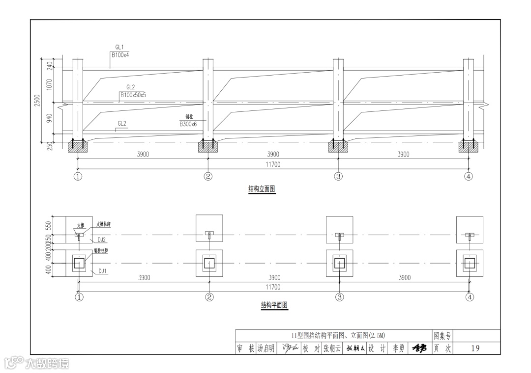
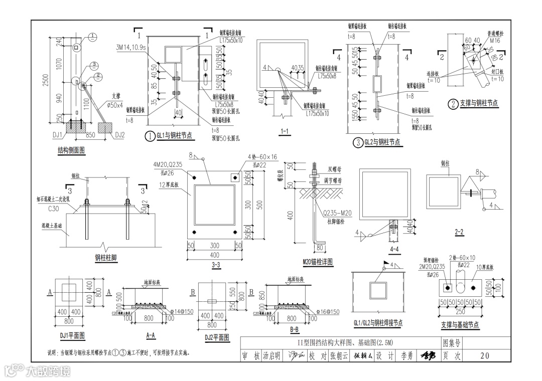
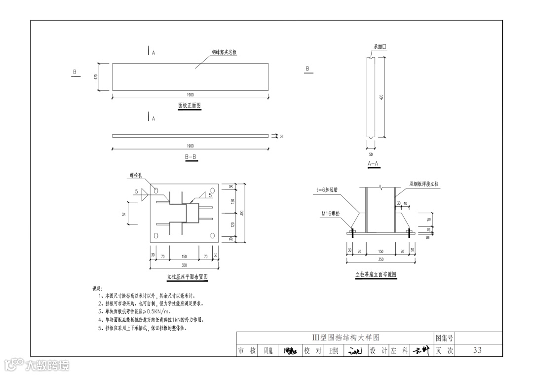
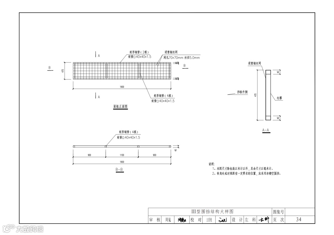
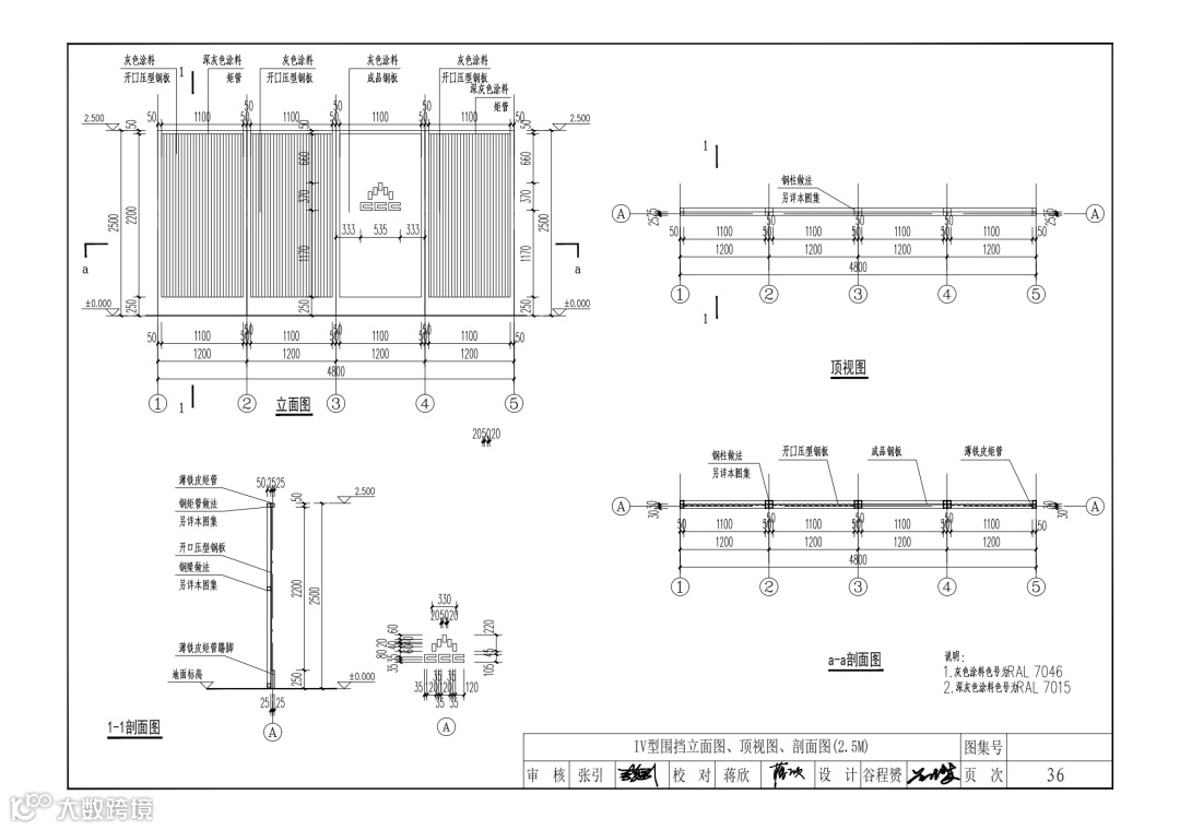
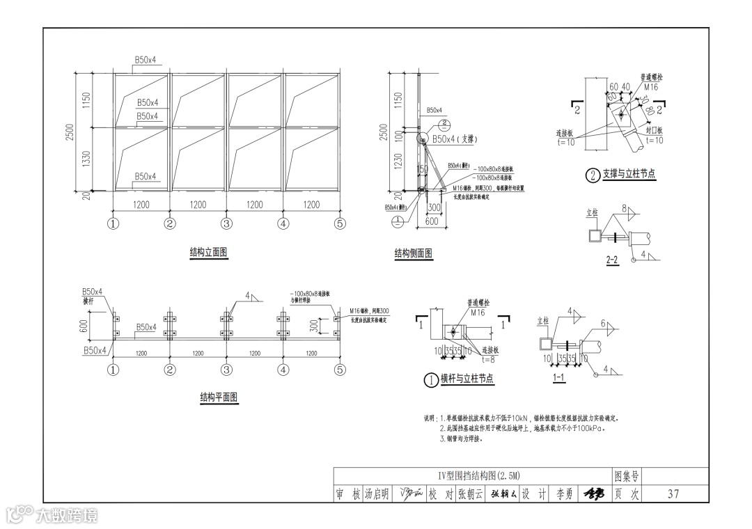
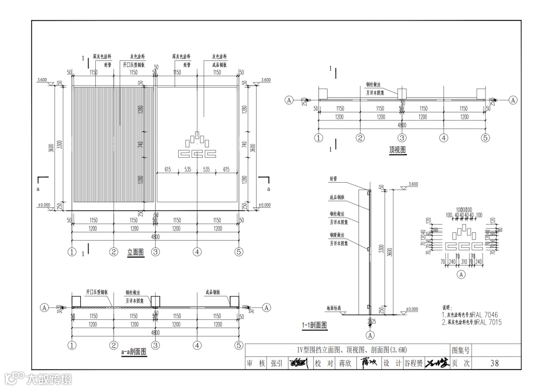
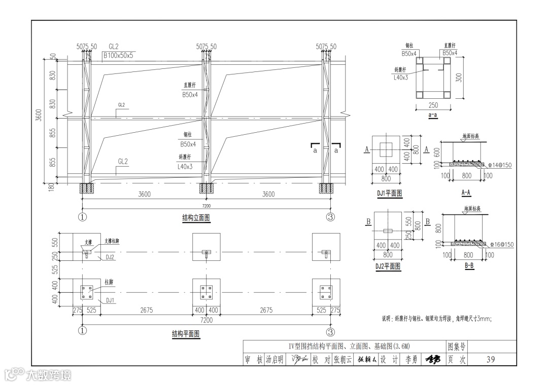
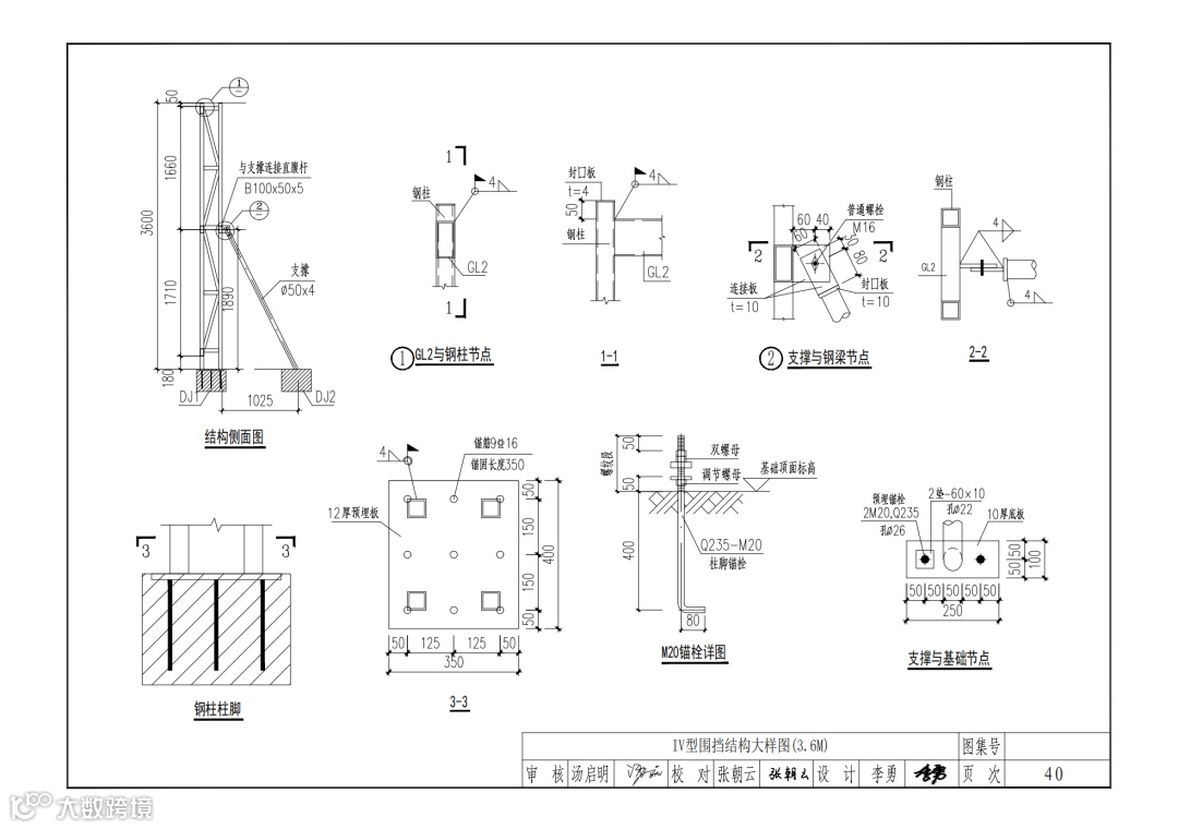
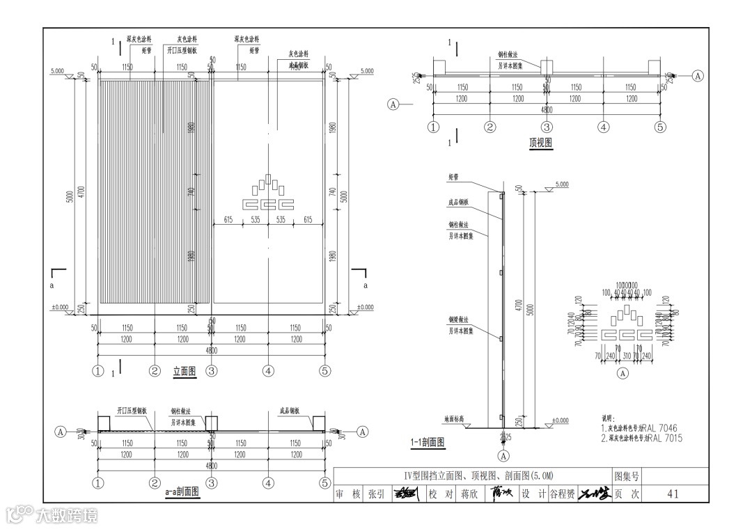
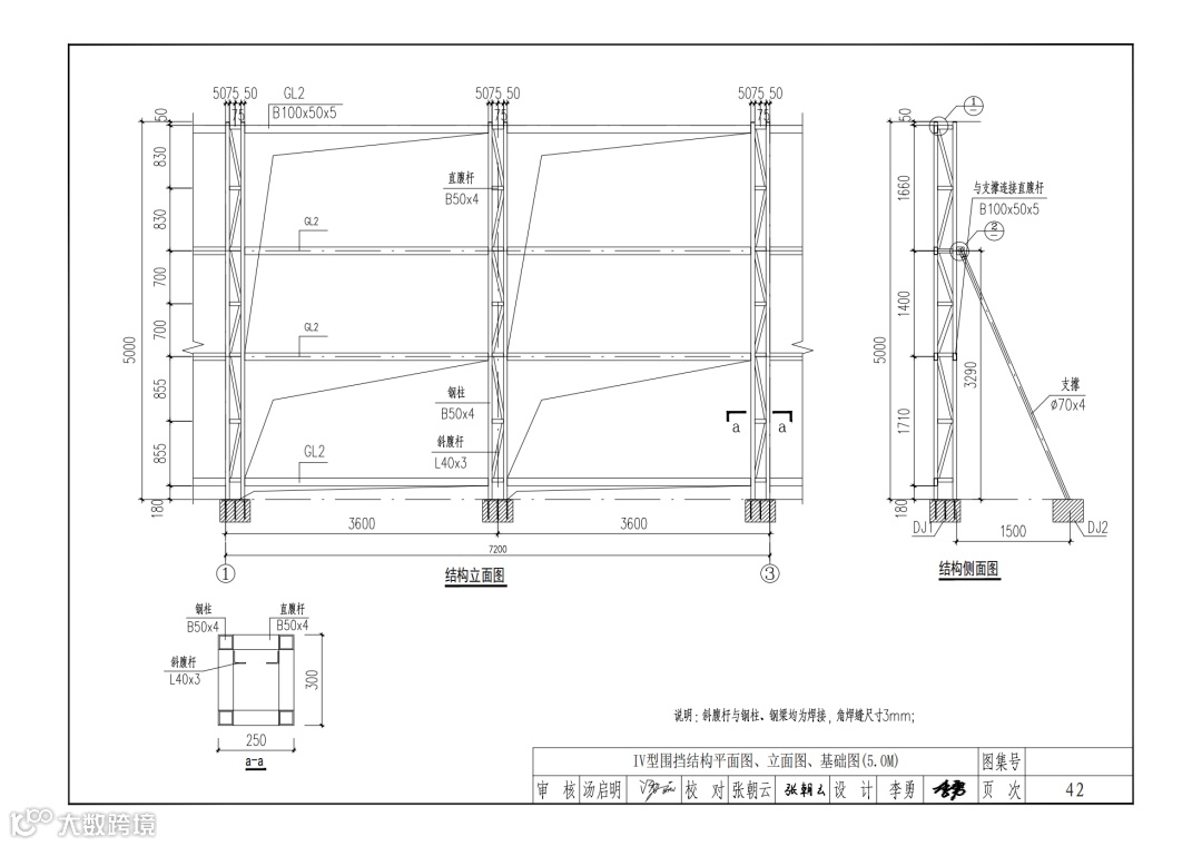
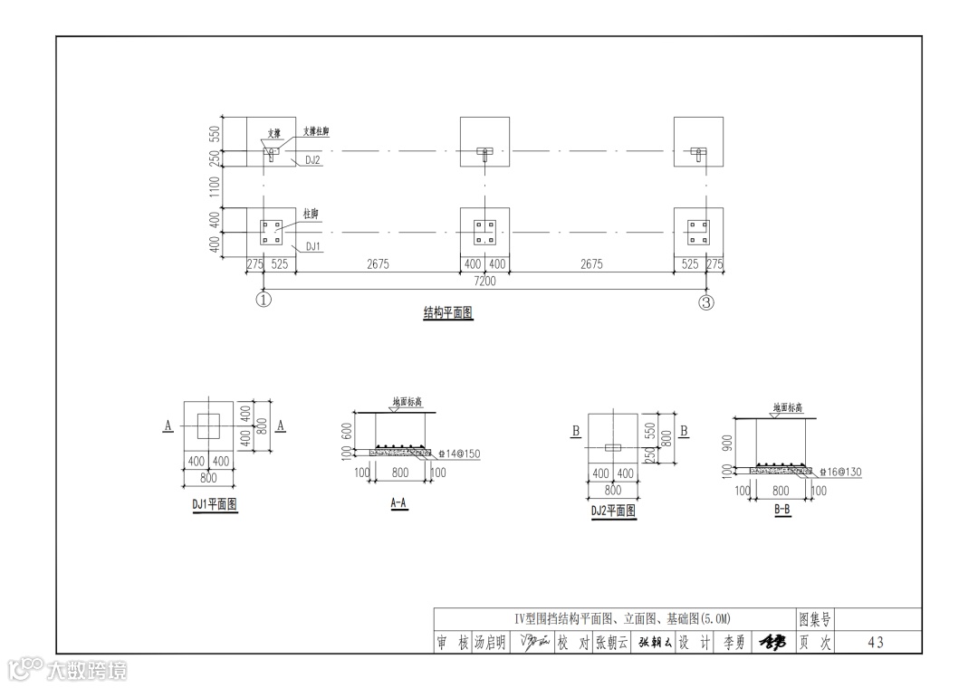
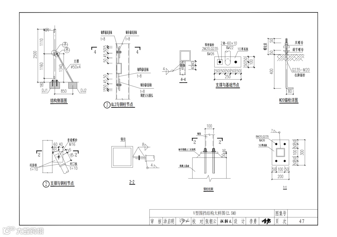
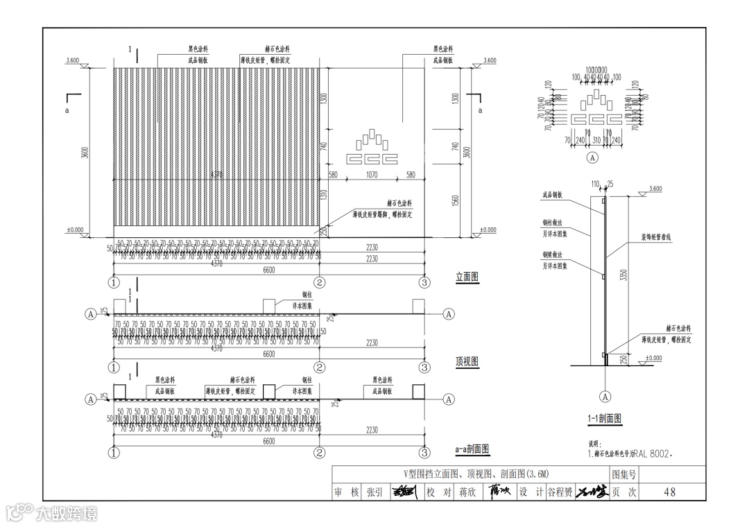
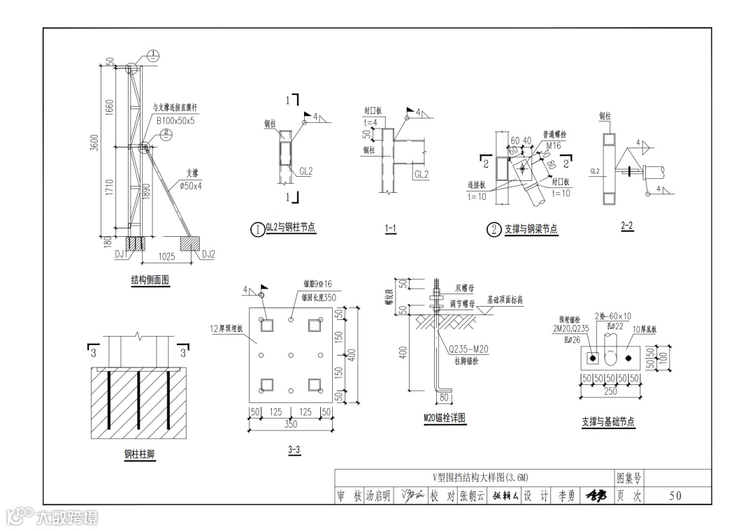
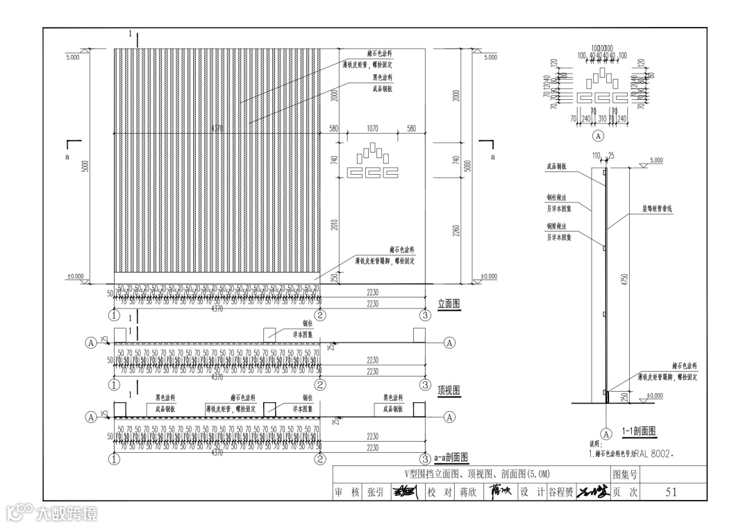
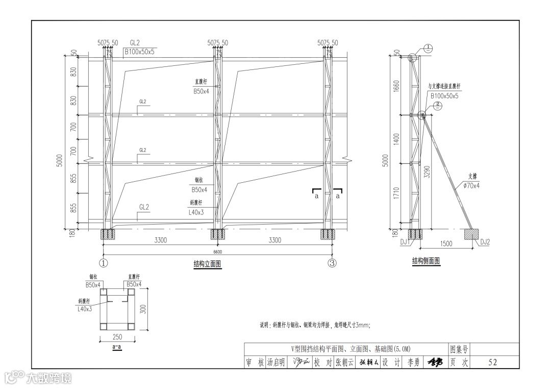
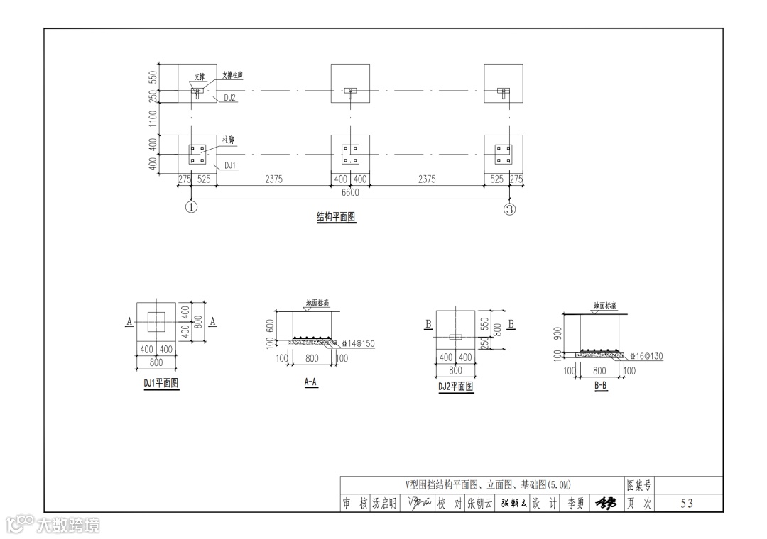
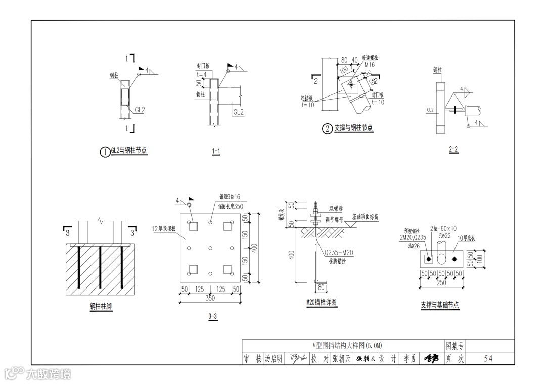
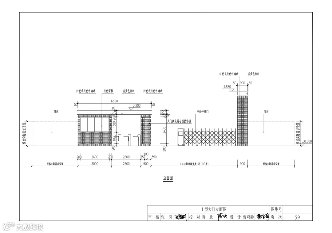
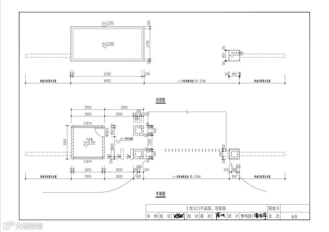
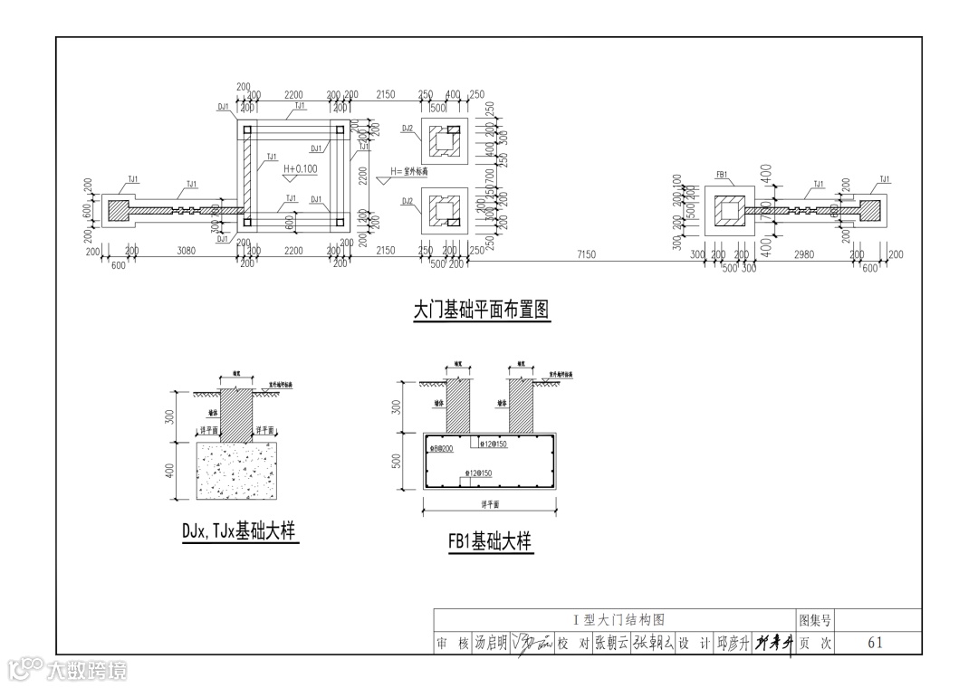
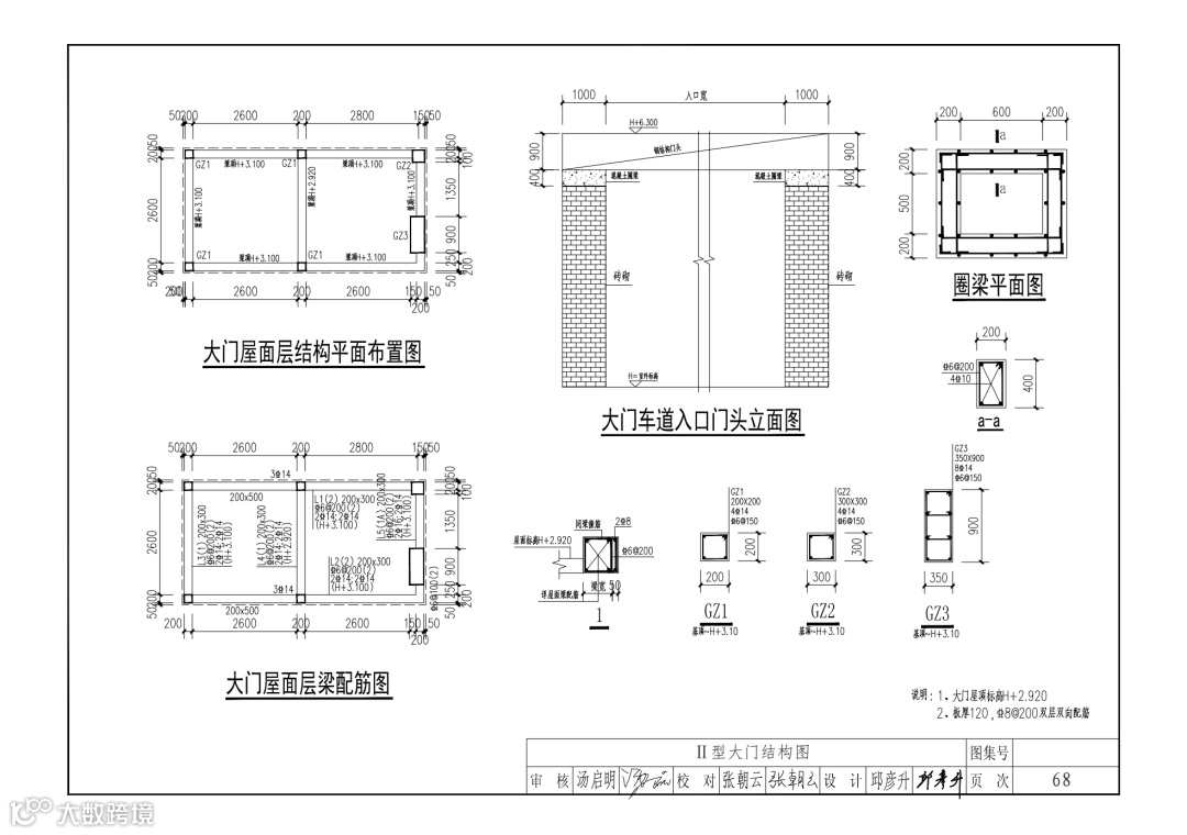
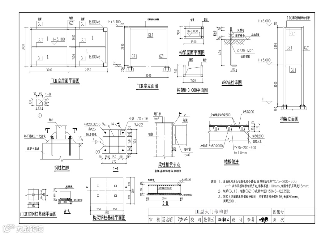
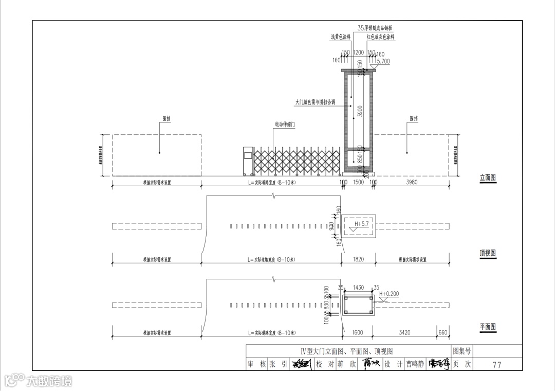
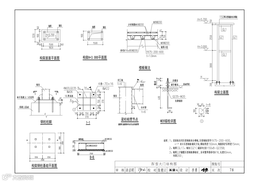
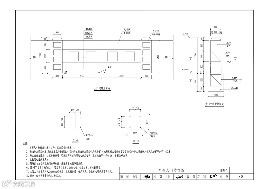
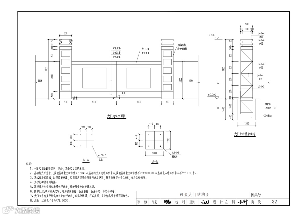
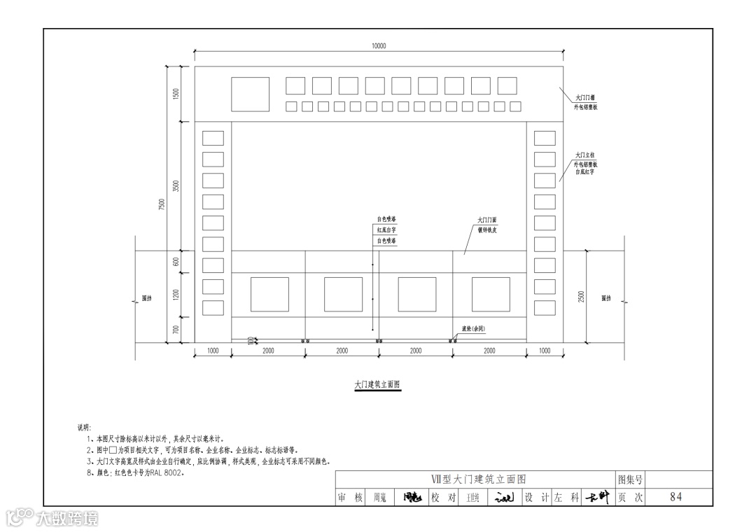
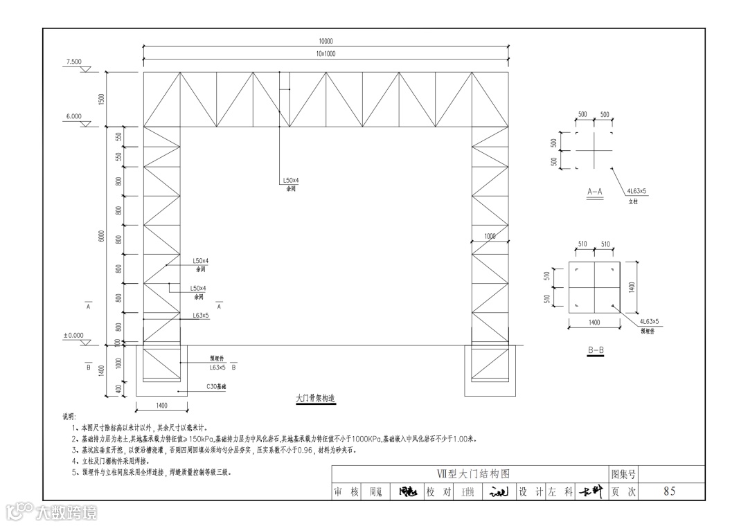
结合全市既有在建工程施工围挡使用情况,在《建设工程施工现场围挡及大门标准图集(2020版)》(DJBT50-133)基础上,确定了5种围挡样式,形成了《建设工程施工现场围挡标准图集》(附件)并按以下方式推进施工围挡管理工作。
(一)新开工工程。自发文之日起,新开工项目施工围挡应从《建设工程施工现场围挡标准图集》中选取样式。其中,旅游景点、商圈、重要道路两侧工程应选用高大围挡(3.6m或5m高);其他区域采用普通围挡(2.5m高);工期短于3个月的项目,高度可降至2米。
(二)续建工程。按照《建设工程施工现场围挡及大门标准图集(2020版)》(DJBT50-133)设置施工围挡的,且2022年12月31日前完工的工程可不更换围挡样式;其他续建工程施工围挡应从《建设工程施工现场围挡标准图集》中选取样式,按规定设置高度,并于2022年7月31日前完成围挡的更新、更换。
(三)停工烂尾工程项目。针对停工烂尾工程管理混乱、围挡维护保养断档等问题,各区(县)住建部门要加强对停工烂尾工程的日常监督管理工作,督促责任单位落实责任,确保工程施工围挡安全稳定、干净、整洁,维护良好的市容市貌。
(四)维护管理。施工总承包企业作为项目管理的第一责任单位,应保证施工围挡设置及维护资金投入,确保施工围挡安全稳定、封闭、连续,当围挡标准柱跨长度与地面标高所形成的高差大于200mm时,在立柱处做成台阶形,台阶水平面与地面应用混凝土封闭严实,要落实专人加强围挡的维护管理,确保围挡表面干净、整洁、美观。
二、落实精细化管理,提升工地安全文明施工整体水平
(一)抓好出入口管理。工地出入口应按照施工现场总平面图进行设置,不得随意在围挡上改造设置出入口;出入口应设置车辆冲洗设施、沉砂井、排水沟;要严格执行渣土运输车辆进出施工现场“六不准”;落实车辆劝导制度,密闭不严实、冒装、冲洗不到位、号牌不清等车辆严禁上路。
(二)落实扬尘控制措施。严格落实封闭施工、地坪硬化、车辆冲洗、砂浆搅拌、烟气控制、尘源防控、高空垃圾、运输管理、湿法作业、智能监控”等扬尘污染防治十项措施。特别是要落实易产生扬尘施工环节的湿法作业,裸露地面和临时堆放的土方等,及时用防尘网等进行覆盖。
(三)规范材料堆码和垃圾处置。施工现场应合理设置材料堆码区域和垃圾临时存放点。建筑材料按照品种、规格堆放,并设置明显标牌,材料物品应堆放整齐,作业区应做到工完场清。对产生的建筑垃圾应按照《重庆市房屋市政工程建筑垃圾减量化工作方案》(渝建质安〔2020〕31 号)和住房城乡建设部《施工现场建筑垃圾减量化指导手册(试行)》实行分类收集、分类存放、分类处置。
(四)规范建(构)筑物外立面管理。密目安全网应保持平整无污损,宣传标语、警示带、安全标识等拴系物应做到“不歪斜、不松散、不飘飞”,脚手架、临边防护栏、起重机械等设施应统一颜色进行涂装。城区旅游景点、商圈、重要道路两侧等重点区域推荐使用冲孔式钢板网片防护。
三、工作要求
(一)加强监督管理,强化责任落实。各区县住房城乡建设主管部门、市安全总站要结合年度监督检查计划和本地区实际,以施工围挡、扬尘控制等安全文明施工内容为重点开展专项整治行动,切实督促工程参建各方落实主体责任,构建“源头严防、过程严管、问题严查、齐抓共管”的文明施工管理长效机制,形成常态化高压态势,层层压实责任。市安全总站同时做好对各区县的督促指导。
(二)对标对表督促落实。市住房和城乡建委将把安全文明施工内容纳入后续“飞检”范围和年度考核,对落实安全文明施工措施不到位的区县予以通报和年度考核扣分。各区县住房城乡建设主管部门务必要高度重视,进一步加强组织领导,主要领导亲自抓,分管领导具体抓,打造干净、清爽、绿色的建筑工地,保障良好的市容市貌。
附件:建设工程施工现场围挡标准图集
重庆市住房和城乡建设委员会
2022年6月2日






























































































电子版下载:建设工程施工现场围挡标准图集.pdf

12、检验批的划分、容量及抽样总结!附76个常用检验批验收表!
15、资料员、施工员、技术员请注意!三分钟搞懂施工技术资料编制重难;
猜你喜欢:
3、助力2018安全生产月,这100份安全资料合集值得入手(可下载)
加入我们
投稿展示或者分享资料
一起交流一起成长
扫一扫下方二维码,灵感即刻进
官方微信或qq:483972950
官方qq群:343778875 或648915172

来源:重庆市住建委


