提示点击↑上方"土木工程资源共享"关注加入
点我资料免费下
【重磅福利】
尺差控制篇(现浇)
1.模板安装工程
1.1模板安装定位测量


1.2模板安装垂直度

1.3模板安装垂直度测量

1.4模板螺杆排数


1.5模板标高


2.混凝土结构工程
2.1基本原则

2.2截面尺寸偏差(砼结构)

2.3表面平整度(砼结构)








2.4垂直度(砼结构)










2.5顶板平整度


2.6楼板厚度


3.砌筑工程
3.1基本原则

3.2表面平整度(砌筑工程)







3.3.垂直度(砌筑工程)






3.4门、窗洞口尺寸


3.5房间方正度(砌筑工程)


3.6门、窗洞口标高


4.抹灰工程
4.1基本原则

4.2墙体表面平整度(抹灰工程)




4.3墙面垂直度(抹灰工程)

4.4阴阳角方正度

4.5房间开间和进深

4.6地面表面平整度

4.7房间方正度

4.8门、窗洞口尺寸测量


4.9阴阳角顺直测量

4.10房间净高

PC 结构
5.1 PC板构件尺寸偏差


5.2PC板安装精度( PC 结构)


防渗漏篇
6.1卫生间涂膜防水


6.2卫生间附加防水层



6.3卫生间地漏


防空鼓/开裂篇
7.1外墙防开裂节点(砌筑阶段)



7.2内墙防开裂节点(砌筑工程)


7.3砼墙面给水管暗埋(设备安装)



7.4砌体墙面给水管暗埋(设备安装)



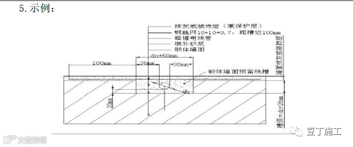
7.5砌体墙电线管暗埋(设备安装)



7.6裂缝 空鼓(抹灰工程)



12、检验批的划分、容量及抽样总结!附76个常用检验批验收表!
15、资料员、施工员、技术员请注意!三分钟搞懂施工技术资料编制重难;
猜你喜欢:
3、助力2018安全生产月,这100份安全资料合集值得入手(可下载)
加入我们
投稿展示或者分享资料
一起交流一起成长
扫一扫下方二维码,灵感即刻进
官方微信或qq:483972950
官方qq群:343778875 或648915172

源自 | 达欣股份



