
本文大概
2374
字
读完共需
5.9
分钟
站在时代机遇的浪潮上,杭州正朝着世界名城迈步。杭州的商业环境,近几年顺势也得到了快速的发展。
但是,霓虹闪烁的繁华都市下,杭州的消费场景却陷入了千篇一律。整个商业环境里,仅寥寥几个购物中心能体现出国际杭州的水平。如,这两年影响了整个杭州商业环境的嘉里中心、杭州莱福士广场,他们拥有的一个共同特点:都是出自国际顶级设计师的创作。
中国的,世界的!杭州在快速融入世界的背景下,科创中心的未来科技城,已经成为了海内外高层次人才所聚焦的区域,且已经成为媲美于硅谷的全球科创人才的集聚领地。而作为杭州城市展现给世界的科技金名片,如果没有一座可以打卡的同等量级的国际化商业体,未来科技城的生活色彩与魅力显然要暗淡很多。
而自规划初始,EFC就勇于承担并扮演了这一重要角色。因此,EFC欧美广场不惜重金邀请了全球顶端的设计团队Benoy,这个曾打造过无数地标建筑,位居全球前列的老牌建筑设计公司,致力打造杭州未来科技城的一站式新商业范本。

采访嘉宾:Benoy 商业设计事务所董事Craig Menzies
主持人:透明售房网商业地产频道 图南
Benoy商业设计事务所董事CraigMenzies,是EFC欧美广场这座海归圣地的设计师。透明售房网有幸独家专访,为网友揭秘了EFC欧美广场与众不同的设计理念与无限创意。
商场的作用,为顾客提供不同的体验
主持人:2018杭州(国际)未来生活节开幕式上,您演讲了主题《现代新商业 设计新现象》。对于商业和设计的融合,您觉得核心要素是什么?如今这些新生事物,又带来哪些改变?
Craig Menzies:贝诺与我们合作的发展商了解到:
商场不再仅提供零售,它已经成为社区的重要一部分,包括提供基本服务,娱乐,休闲和食品,以及健康与保健。零售类型不断变化,变得更有趣,并以体验来驱动零售消费。
商场在某些方面已经成为家庭和生活空间的延伸,也是一个能够与朋友和家人聚会的地方。
商场为他们的顾客提供不同的体验,这就是顾客再次回到商场的原因。
主持人:您的设计作品中,既有新加坡樟宜国际机场客运大楼等公共设施,也有商业类的百货公司、休闲娱乐组团,这两者间的设计理念,是否会有很大的冲突与差别?如何在不同的客户需求间,做到自由的切换?
Craig Menzies:贝诺在寻找最佳和最合适的设计及在提供解决方案方面拥有丰富的经验。
当我们设计新加坡樟宜国际机场客运大楼时,非航空收入是任何机场的重要部分,我们在设计中解决了这些挑战。
同样的手法也适用于商场,百货公司,以至娱乐综合体,它们的设计都必须考虑到顾客的思考模式,要轻松移动也要顾及商业可行性。
所有的空间都有不同的挑战,而贝诺就是为每个空间找到适合不同空间的解决方案。

Benoy设计的上海环贸iapm商场
EFC是杭州未来愿景的一部分
主持人:随着G20的召开,杭州这座城市开始被世界所熟识,我们好奇,您在设计EFC(欧美广场)之初,对杭州的了解与印象是怎么样的?对于杭州的商业环境又是怎么理解的?
Craig Menzies:杭州被美丽的湿地和园林所包围,保留并增加了更多的园林景观是这个发展区的重要的一部分。杭州是一个商业环境蓬勃发展的城市,这些发展都为杭州的成功作出了不可多得的贡献。

随着杭州被认定为中国的未来城市,贝诺很高兴并有幸参与EFC这个里程碑的项目设计。这个正在扩张和发展的项目是非常出色的基建,并且是杭未来愿景的一部分。
EFC商场与地铁直接相连

主持人:设计欧美广场,您希望打造一个怎么样的作品?融入了哪些国际化的元素?
Craig Menzies:贝诺是一个国际化的设计公司,我们为中国,欧洲和中东的项目带来国际经验。
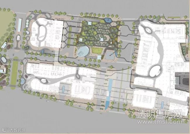
我们对EFC的简介是要在杭州的重要商业区建立一个目的地。贝诺利用其专业知识将零售裙楼的设计分散在三个地块84#、85#和21#上。地块84#和85#拥有四层商场,而地块21#则连接着其他发展及未来的地铁站。
▲EFC LIVE欧美广场效果图
这是一个包含很多不同部分的一个综合性发展。我们的目标是确保零售裙楼的设计成为项目的主要动脉,能够将在室外和室内的元素之间建立协助作用,并在该发展中提供一个无缝的跨区域设计语言。“
主持人:EFC欧美金融城是杭州大型的商务综合体,而欧美广场的商业总体量约9万方,商业所占比重并不突出,为了让欧美广场在消费娱乐的属性上发挥更明显的作用,您在设计上做了哪些突破?
Craig Menzies:EFC商场与地铁直接相连,是整体总规划发展的重要一部分。我们在设计裙楼时是以充满自然光的大型中庭来决定整体设计。
EFC商场中央的公园将三个地块连接在一起,裙楼建筑依照自然环境的线条和纹理来设计,包括弯曲的特色金属穿孔外墙,为室外提供了若稳若现的效果。

EFC满足海归渴望的生活方式

主持人:建工地产之前打造的EAC,曾是杭州最顶级的商业体;EFC的打造目标,同样是最顶尖的综合体。那么,在设计上EFC有哪些独一无二,或引领行业的设计理念与细节?
Craig Menzies:EFC商场坐落于一个大型综合发展项目的中心,该项目将两座200米高的甲级办公大楼,五星级酒店及两座服务式公寓和三座乙级办公楼组合在一起,该项目都是围绕着中央的公园而规划的。这个发展的亮点是围绕著中央公园的200米的商业走廊,并位于相连的裙楼上方。

▲EFC欧美金融城鸟瞰图
主持人:欧美广场所在的未来科技城板块,大家常以中国的”硅谷“来形容。而欧美广场也有望成为中国版的Westfield World Trade Center。您觉得,欧美广场与Westfield World Trade Center有哪些相似的基因?会否成为海归的打卡圣地?
Craig Menzies:这是绝对的!我们希望EFC能成为一个海归的目的地,并成为受欢迎的地标。
EFC有两个地块,一个是較大较优雅的商場,可以满足海归渴望的生活方式。 较小的地块拥有较多的娱乐提供,并且连接到地铁。

在上层的艺术连桥提供艺术品展览的地方,并将成为人们聚集及联系的地方。
贝诺将EFC评为五星级的发展项目

主持人:在自己设计的设计作品里,您给欧美广场打多少分?为什么?
Craig Menzies:贝诺将EFC评为五星级的发展項目。并会给它5颗星。该发展为五星级,设有甲级商场,甲级写字楼,五星级酒店和服务式公寓。

中国有很多很棒的商场,我们不能说哪个商场是最好的,因为每个商场都非常独特。但是,我不得不点赞贝诺设计的商场,例如上海的IAPM,成都IFS和重庆IFS。
— END —
往期回顾
微软、Starbuck's、Nordstorm……西雅图的feel,逛到这里全遇见
亚马逊、Google、阿里巴巴……这些撼动世界的企业总部背后,都有一个他!


【版权声明】本次发布内容的所有权归浙江建工房地产开发集团有限公司所有,任何形式的转载、合作,请联系我们 :0571-87902890。
点击“阅读原文”查看【EFC LIVE欧美广场】微楼书

