艺术语境

△大厅
△过道
△细节
△花色
△花色
△花色
△花色
朗生品牌创立伊始,产品设计已经延伸到花色设计的最源头,即素材设计。向全球素材设计公司采买,与商业品牌十多年的合作,沉淀与积累了适 配商业空间发展趋势的海量素材数据库。
△接待台
△治疗室
治疗室过道干净,墙面文字指示清晰明确,纯粹的白净给人视觉上的美感。地板选用朗生顶级鱼肚白花色饰面,延伸线条勾勒的非常清晰,营造温馨舒适的氛围。
△过道空间
△扶梯
△摄影
△摄影
△输液室
△办公室
△微整室


△洗手间

朗生作为装配式整装服务的开创者,需满足多元化的定制需求,尤其在医美康养、教育医疗等特定行业,该行业对空间区域的防水、防火、抑菌、零甲醛等性能指标拥有极高的要求。
对此,朗生经过长时间研发,推出兼具防水、防火、抑菌、零甲醛等特质的HTO碳镁板基材,能完美适配各类特定领域对于空间构建的特性要求。
设计图纸
▽
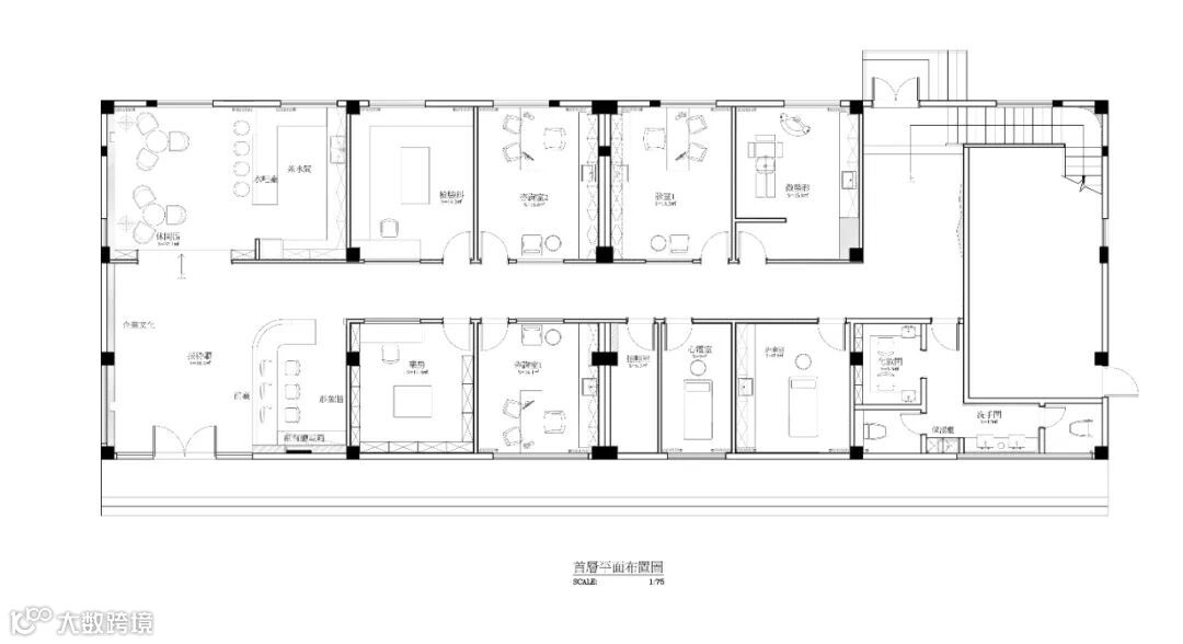
△首层
平面图
多年来,朗生深研商业空间的构建特性,基于商业空间对装饰板及相关产品的个性化需求,持续创新,积累了强大的地板、墙板、门及商用家具等产品的柔性定制与应用服务能力。
2019年朗生集团围绕商业空间整装产业已建立起[朗生整装材料定制/朗力整装部品集成/力作快建整装交付]三大业务版块,完成从饰面板材料定制、部品集成定制、装配式快装交付的整装全产业链布局。
朗生 助力美好商业空间

△
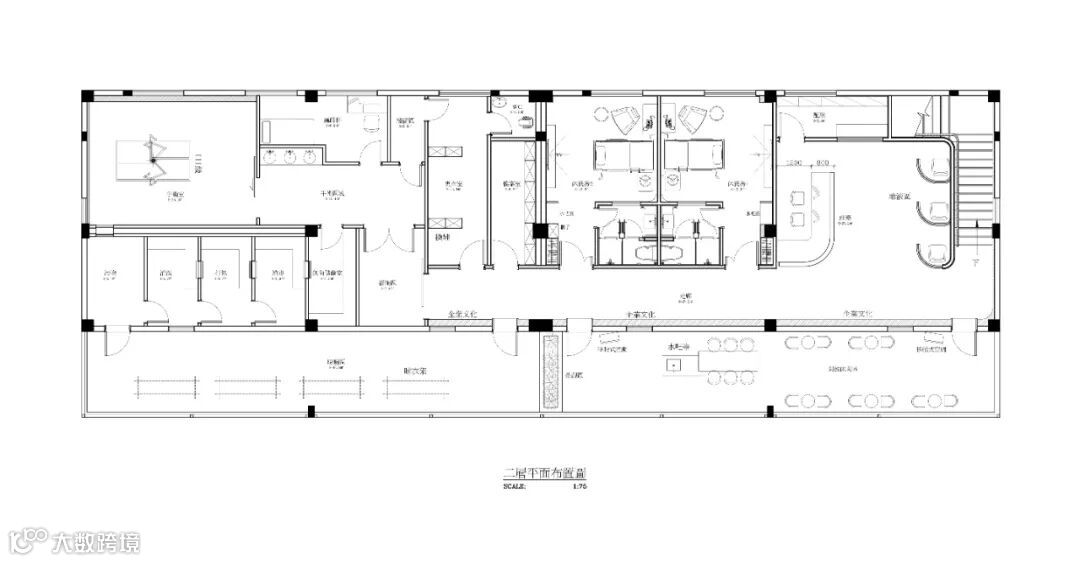
二层平面图



