勾勾手刘志广生活记录
Gougou Hand Liu Zhiguang's Life Record
绿色露台和悬臂游泳池将室内和室外空间整合在一个可以看到大海的别墅中。Terrazas verdes y una piscina en voladizo integran espacios interiores y exteriores en una villa con vista al mar.
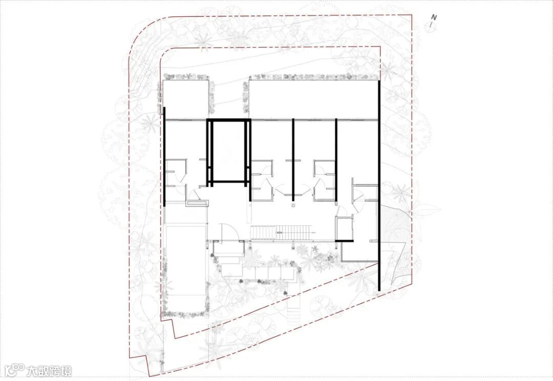
平面布置图
努里别墅位于俯瞰太平洋的山坡上,是一座由景观、光线和自然气流塑造的房子。我们将房屋设计为一种垂直体验,在提升日常生活的同时适应斜坡。坚实的基础将房屋固定在地面上,而更高的水平向外开放,以形成海景,淡化了内部和外部之间的界限。这是一个景观露台、悬臂游泳池和流畅的空间过渡以平静和谐的方式结合在一起的地方。Ubicada en una ladera con vista al Océano Pacífico, Villa Nuri es una casa moldeada por el paisaje, la luz y el flujo natural del aire. Diseñamos la vivienda como una experiencia vertical que se adapta a la pendiente mientras eleva la vida cotidiana. Una base sólida ancla la casa al terreno, mientras que un nivel superior se abre hacia el exterior para enmarcar las vistas al océano, diluyendo los límites entre el interior y el exterior. Este es un lugar donde las terrazas ajardinadas, una piscina en voladizo y transiciones espaciales fluidas se unen en una armonía serena.
概念-为了塑造最令人印象深刻的海景,我们将所有社交区域、露台和主卧室都放在第二层。这使建筑能够超越景观,完全向地平线开放。在这一更高的水平下,我们将二级卧室置于中间水平,由于地形的自然坡度,它们也可以欣赏到海景。在下面,服务区和车库被整合到结构的底部,将房屋锚定在地面上。我们没有与地形作斗争,而是用它来创造一种分层的构图,在这种构图中,建筑伴随着浮雕,感觉既高又与地面相连。Concepto - Para enmarcar las vistas más impactantes hacia el océano, ubicamos todas las áreas sociales, terrazas y el dormitorio principal en el segundo nivel. Esto permitió que la arquitectura se elevara sobre el paisaje y se abriera por completo hacia el horizonte. Debajo de este nivel superior, colocamos los dormitorios secundarios en el nivel intermedio, que también disfrutan de vistas al mar gracias a la pendiente natural del terreno. Más abajo, las áreas de servicio y el garaje están integrados en la base de la estructura, anclando la vivienda al terreno. En lugar de luchar contra la topografía, la utilizamos para crear una composición en capas donde la arquitectura acompaña el relieve y se siente tanto elevada como conectada al suelo.
-关于我们-

业务联系人(移动房主号)
业务联系人(移动房产品主号)
关注以下公众号矩阵可想了解我们......
-END-



