勾勾手刘志广生活记录
Gougou Hand Liu Zhiguang's Life Record
这间房子坐落在San Simón el Alto郁郁葱葱的森林中,距离墨西哥城仅有2.5小时,重新定义了家庭避难所的概念。在10000平方米的土地上,周围环绕着高达30米的树木,该项目作为传统小屋的重新解释而出现,旨在脱离城市日常生活,与自然环境建立深刻的联系。Situada em uma exuberante floresta de San Simón el Alto, a apenas 2,5 horas da Cidade do México, esta casa redefine o conceito de refúgio familiar em plena natureza. Em um terreno de 10.000 m2 rodeado por árvores que alcançam os 30 metros de altura, o projeto surge como uma reinterpretação da cabana tradicional, projetada para desconectar da rotina urbana e criar uma conexão profunda com o entorno natural.
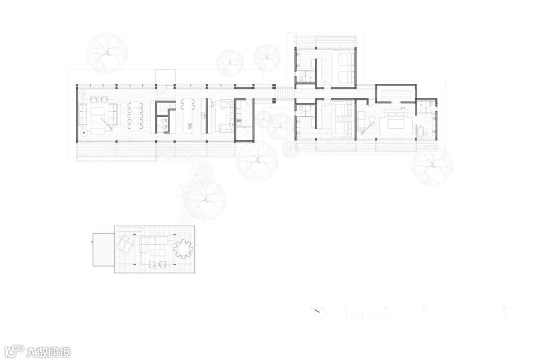
平面布置图
房子的设计始于一个基本前提:适应森林,而不是相反。所有现存的树木都得到了保护,另外12个物种被种植以振兴生态系统。离散和几乎看不见的街道和邻近的地块,房子保证了完全的隐私和沉浸在大自然的体验。O desenho da casa parte de uma premissa fundamental: adaptar-se à floresta — e não o oposto. Todas as árvores existentes foram preservadas e outras 12 espécies foram plantadas para revitalizar o ecossistema. Discreta e quase invisível a partir da rua e dos lotes vizinhos, a casa garante uma experiência de total privacidade e imersão na natureza.
主要结构由两个体积组成,将公共区域与私人区分开,由走廊和透明楼梯连接,可持续观赏景观。房子坐落在地形的中心,享有森林的360°景致,使景观成为空间的真正主角。A estrutura principal é formada por dois volumes que separam as áreas públicas das privadas, unidos por um corredor e por escadas transparentes que mantêm a vista contínua para a paisagem. Posicionada no centro do terreno, a casa desfruta de vistas de 360° para a floresta, fazendo da paisagem a verdadeira protagonista do espaço.
-关于我们-

业务联系人(移动房主号)
业务联系人(移动房产品主号)
关注以下公众号矩阵可想了解我们......
-END-



