勾勾手刘志广生活记录
Gougou Hand Liu Zhiguang's Life Record
华肯住宅位于瓦尔帕莱索大区拉利瓜市皮奇库伊街区,是一栋独立式住宅。项目要求设计一栋能在以度假屋为主的环境中作为永久居所使用的住宅。鉴于场地特征与环境条件,我们选择了庭院式住宅的建筑类型。Casa Huaquén corresponde a una vivienda unifamiliar ubicada en el sector de Pichicuy, comuna de La Ligua, Región de Valparaíso. El encargo consistió en diseñar una vivienda que pudiera funcionar como residencia permanente en un contexto predominado por segundas viviendas. Debido a las características del terreno y las condiciones del lugar, se optó por una tipología de casa patio.
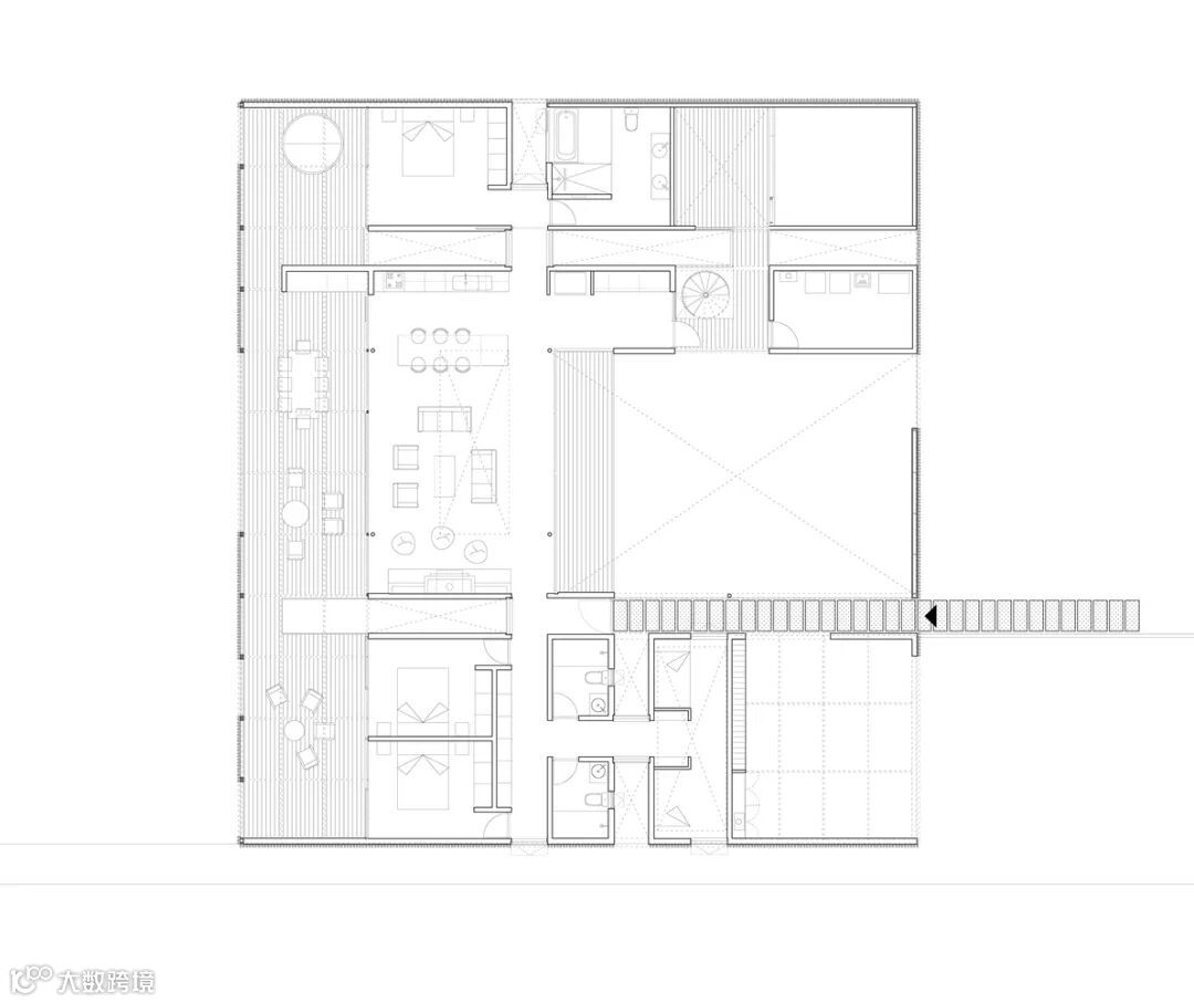
平面布置图
这种配置将房屋组织在一个中央庭院周围,以抵御该地区特有的风,提供一个受保护和舒适的空间。这个庭院的围栏还可以控制对邻居的看法,加强房屋的隐私。最公共节目所在的房屋的中央体积充当了内部庭院和远海景色之间的视觉通道。Esta configuración organiza la vivienda en torno a un patio central resguardado del viento característico de la zona, ofreciendo un espacio protegido y acogedor. Los cierros que delimitan este patio también permiten controlar las vistas hacia los vecinos, reforzando la privacidad de la vivienda. El volumen central de la vivienda, donde se ubican los programas más públicos, actúa como un atravieso visual entre el patio interior y las vistas lejanas hacia el mar.
这种方法可以提高对海岸景观的看法,同时最大限度地减少对该地区城市化程度最高的西北部的看法。此外,还仔细控制了东北和东南方向的景观,这些景观与邻近的莲花遗址相对应。Este enfoque permite potenciar las vistas hacia el paisaje de la costa, mientras se minimizan las vistas hacia el noroeste, el sector más urbanizado de la zona. Asimismo, se controlan cuidadosamente las vistas hacia el noreste y sureste, que corresponden a los sitios vecinos del loteo.
-关于我们-

业务联系人(移动房主号)
业务联系人(移动房产品主号)
关注以下公众号矩阵可想了解我们......
-END-



