我不用华丽的文字来表达项目,平白实在才是真理!!!我是KOL“勾勾手刘志广”,用“粤语”来写作!看不明白,请多看香港电视或多唱“粤语”歌。。。No fancy words to express the project, plain is the truth! !! I am Kol, “gogohands Liu Zhiguang”, to write in “Cantonese”. Do not understand, please watch more Hong Kong TV or sing more “Cantonese”songs. . .
勾勾手刘志广生活记录
Gougou Hand Liu Zhiguang's Life Record
2026年我要进行二个产业链产品的推展,01-由太空舱引流到太空箱、02-把山卡拉KTV苹果舱的产品全配套做起来,更要把佛山国际二手太空舱市场发展到全国包邮,这是2026年的进化目标!In 2026, I want to expand two industrial chain products, 01- from the space capsule to the space box; 02 to set up a full set of products for the Shankara KTV Apple capsule, and to develop the Foshan International Second-hand Space Capsule Market to the whole with free shipping, this is the evolution goal for 2026!
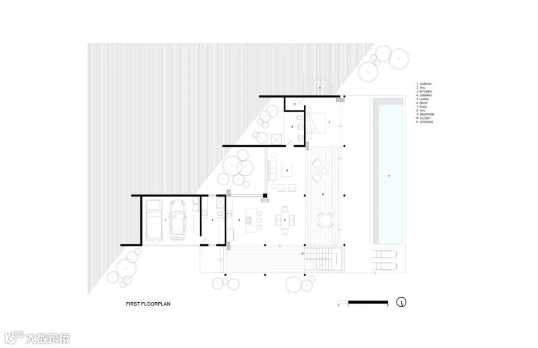
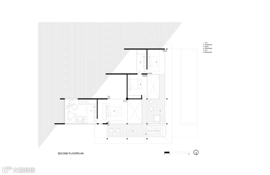
霍登纳家族购买了一处美丽的房产,拥有两个美丽的景色:面向海洋和丛林。我们决定将房子建在陡峭的地形上以稳定地基并保护房屋免受滑坡的影响。La familia Holdener compro una Hermosa propiedad con dos hermosas vistas: hacia el océano y hacia la jungla. Decidimos recostar la casa contra la topografía empinada del sitio para así estabilizar el terreno y proteger la vivienda de deslizamientos.
该项目因此从支撑房间和浴室的坚固而私密的后部结构,转变为指向海洋和丛林景观之间视觉崩溃的轻盈而短暂的框架El proyecto por ende transiciona desde una construcción solida e intima en la parte de atrás que sostiene los cuartos y los baños, hacia una estructura liviana y efímera que apunta hacia el colapso visual entre las vistas de océano y jungla.
结果是相互连接的露台系列,它们在所有维度上相互关联,从而不仅在各个层次之间形成了内部动态,而且还形成了居民与自然之间的一些意想不到的关系。正是在这些露台之间的空间,这些空间从来都不是真正意义上的里面或外面,建筑学促进了对居民周围自然环境的联系、欣赏和享受El resultado es una serie de terrazas entre-lazadas que se relacionan entre si en todas dimensiones creando así no solo una dinámica interna entre niveles sino que también relaciones, a veces inesperadas, entre los habitantes y el medio natural. Es en estos espacios intersticiales de terrazas, los cuales nunca son verdaderamente adentro o afuera, que la arquitectura viene a promover una relación, apreciación y hasta disfrute del medio natural que rodea a los habitantes.
-关于我们-

业务联系人(移动房主号)
业务联系人(移动房产品主号)

关注以下公众号矩阵可想了解我们......
勾勾手|中国,是以移动房产业链为主要内容的自媒体,为中国“乡村振兴”项目提供配套的产品信息服务,为扩大中国的内需投资创业提供产品信息。帮助投资者在景区项目、商业街项目、营地项目、餐饮项目等等投资提供最全面的产品信息服务。Gougoushou | China is a self media platform mainly focused on the mobile housing industry chain, providing supporting product information services for China's "rural revitalization" projects and product information for expanding domestic demand investment and entrepreneurship in China. Assist investors in providing the most comprehensive product information services for investment in scenic area projects, commercial street projects, campsite projects, catering projects, and more.
-END-