近日,2025年全国行业职业技能竞赛中国能建第二届职业技能竞赛(建筑信息模型技术员L/S)决赛在安徽合肥落下帷幕。本次竞赛由中国能建和中国就业培训技术指导中心联合主办,是经人力资源和社会保障部批准的国家级赛事。
赛事吸引了来自中国能建33家所属企业的74名优秀选手同台竞技。大赛聚焦中国能建主责主业,设置土建、机电和变电三大赛道,采用“理论+实操”相结合的考核模式,全面检验选手对BIM软件的运用能力、图纸理解能力和模型创建水平。
值得一提的是,本届大赛全面采用国产BIM软件作为唯一竞赛载体,构力科技BIMBase系列软件作为主要支撑软件。其中,土建与机电赛道使用PKPM-BIM软件,变电赛道则指定使用BIMBaseGrid电网工程三维设计软件——这不仅体现了中国能建推动核心技术自主可控的战略决心,也充分验证了以BIMBaseGrid为代表的国产工业软件在电力工程领域的专业成熟度。
为何选择BIMBaseGrid电网工程三维设计软件?
BIMBaseGrid由中国建研院构力科技研发,专为电网工程打造,基于国产BIMBase平台,从底层架构出发,深度适配变电业务需求。具备以下核心优势:
涵盖电气、总图、建筑/水暖、主体结构、构支架、电力基础等六大核心模块,打通从方案到施工图、算量、移交的全流程。
基于国产BIMBase平台,支持局域网多专业协同、公共库与工程库分离管理,实现高效共享与灵活定制。
3.1电缆敷设智能算法:应对变电站电缆布局挑战的全面解决方案
解决路径优化难题:电缆敷设智能算法,不仅考虑路径长度,还支持双路由规则,减少实际施工中的复杂情况和潜在风险。
解决分层敷设困难:根据电缆类型、电压等级或自定义要求自动分层敷设,确保不同特性的电缆有序排列,方便日后运维管理。
解决电缆拥堵问题:智能算法限制通道容积率,有效避免电缆过于集中造成的拥堵,保障电缆运行环境良好,降低火灾等风险。
设计成果自动导出:自动优化计算电缆长度,生成完整的电缆清册及汇总表,省时省心省力,减少手动计算带来的人为错误。
电缆自动敷设
3.2 总图设计智能化:破解变电站场地设计中的核心痛点
地形处理依赖人工,效率低,误差大?
场地三维设计:自动识别勘测数据,并生成三维初始地形模型,支持局部平场与护坡编辑,大幅提升场地建模效率与准确性。
土方计算繁琐,结果不可靠?
土方计算:基于原始与设计地形自动智能划分计算网格,一键输出精确的挖填方总量及明细表,支撑科学决策。
构筑物布置割裂,协同困难?
总平面布置:保留二维设计习惯,提供参数化布置工具,道路、电缆沟等线型构件可贴合地形表面自动适应坡度,并智能生成连接节点,实现一体化协同设计。
出图工作重复繁重?
一键出图:基于三维模型一键生成全套图纸(含土方平衡图、电缆沟断面、围墙立面、总图轴测图等),支持图模联动,保证图模一致。
左:场地设计; 右:土方计算
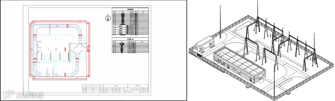
左:总平面及竖向布置图; 右:全专业轴测图
支持IFC、RVT、GIM、FBX等主流格式互导,轻松集成多专业模型,打造无缝协作环境。
携手服务国家重大战略
2025年10月15日,中国能源建设集团有限公司与中国建筑科学研究院有限公司正式签署战略合作框架协议!此次大赛正是这一战略落地的生动实践——通过“以赛促用、以用促研”,加速国产BIM软件在能源基建主战场的深度应用与迭代升级,共同筑牢新型电力系统数字化底座,迈向高质量发展的新阶段。
BIMBaseGrid抢先用
您可直接扫取下方二维码
获取BIMBaseGrid软件试用或者教学课程
BIMBaseGrid试用申请
BIMBaseGrid教学课程
供稿丨朱飞 审稿丨李雨泽
编辑丨刘宏琛
阅读推荐

