
1冷轧整体概貌
冷轧的目的:1)轧薄 2)改变平整度。
冷轧的材料:1)带材 2)板材

组成部分:开卷机、轧机、轧机传动、张力卷曲机、皮带助卷机、带卷升降运输机、线圈托盘系统、中间系统
其中最为主要的系统是:开卷机、轧机、张力卷曲机

2冷轧的组态(以某冷轧厂ABB系统为例说明)

控制系统:AC800PEC
主驱动系统:ACS6000+ACS800+主电机
IO系统:S800 IO
Panel800 手操器
Compact HMI 800操作员站
应用层和控制层均采用TCP/IP协议,传输介质光纤。执行层AC800M控制器与ACS800通过光纤采用Driverbus通讯,并支持多种总线协议。
一台AC866A支持32路传动控制单元,根据MCS系统图,配置PMC800的控制系统和传动系统。
3冷轧的控制
冷轧控制主要包括三部分内容:厚度控制、平整度控制、速度控制
3.1厚度控制
主要采用辊距控制、自动辊距控制、自动力矩控制。

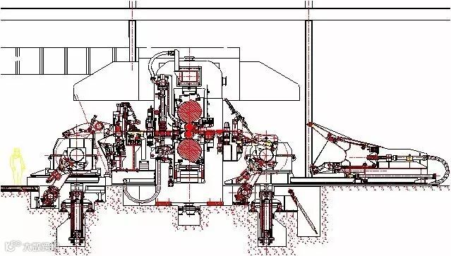
轧机是冷轧材料厚度控制的主要设备,目前常用的轧机按照压下辊的数量分为:
4辊轧机
6辊轧机
20辊轧机
通过位置检测系统检测下辊和上辊的距离,利用液压系统调整上下辊的距离。达到调整厚度的目的。
3.2平整度控制
平整度控制是冷轧的主要目的,为了达到预期的平整度。需要表面检测系统、连续可变凸度技术(CVC)、位移控制共同参与。

下图可见,上下辊通过负弯曲液压、正变曲液压、位移液压系统调整辊的表面形态。在这个环节表面检测和CVC系统是达到表面处理的关键。

3.3速度控制
冷轧材料的硬度大,为了维持材料良好的机械特性,需要确保冷轧过程减少拉伸力对材料的影响,又要保证一定的张力,确保卷曲过程中达到良好的特性。因此速度控制非常重要。

基本数学模型原理:
H1*V1=H2*V2,H1入口厚度,V1入口速度,H2出口厚度,V2出口速度
通过这个数学模型,由出口速度推到出冷轧过程中各辊的转速。

4缺陷案例

边缘缺陷

平坦性缺陷




