
如同新买的手机,我们第一时间做的不是用它打电话,而是安装平时需要的软件。工业机器人也是如此,但它的安装调试远比手机复杂得多。
小编结合相关技术手册,以ABB码垛机器人为例,给大家介绍下工业机器人的安装调试的13个步骤。
在安装机器人之前,首先要检查设备是否缺件,用眼睛观察机器人是否完好无损。然后安装控制柜,用叉车或吊车吊装机器人本体。最后连接机器人本体与控制柜,机器人与控制柜的连接主要是电动机动力电缆与转数计数器电缆、用户电缆的连接。

▲控制柜
第一次通电开机时,默认的语言是英语,需要更改为汉语,方便操作:
1.点击左上角”ABB”图标
2.点击“Control Panel”
3.点击“language”
4.选择“Chinese”,点击“OK”
5.选择“Yes“后等待机器人重启,语言设置就完成了

▲示教器主界面
定期对机器人进行备份,是保证机器人正常工作的良好习惯。备份文件可以放在机器人内部的存储器上,也可以备份到U盘上。
备份文件包含运行程序和系统配置参数等内容。当机器人系统出错,可以通过备份文件快速的恢复备份前的状态。平时在程序更改之前,一定要做好备份。需要注意的是,备份恢复数据是 具有唯一性的,不能将一台机器人的备份数据恢复到另一个机器人上。
ABB机器人每个关节轴都有一个机械原点的位置。遇到下列情况时,需要对机械原点的位置进行转数计数器的更新操作:
1.更新伺服电动机转数计数器电池后
2.当转数计数器发生故障,修复后
3.转数计数器与测量板之间断开过以后
4.断电后,机器人关节轴发生了移动
5.当系统警报提示“10036转数计数器未更新”
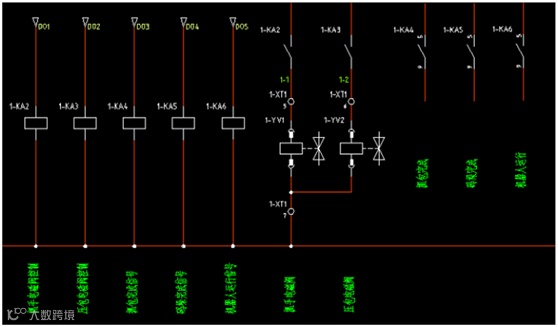
以某抓手接线电气原理图来说明。
机器人信号输入部分原理图,其中704位24V+,703位24V-,输入信号由夹爪开始位、夹爪结束位、压板结束位、抓包辊道准备好、托盘准备好,一共五个。
前三个为气缸磁性开关检测信号,后两个为配套PLC传送给机器人大包和托盘准备好的信号,为了实现电气隔离,需要将PLC给机器人的电平信号转化为机器人自身的电平,需要通过继电器来实现。

输出部分原理图如下,同样是五个输出,抓手电磁阀、压包电磁阀、抓包完成信号、码垛完成信号、机器人运行信号。

通常通过通讯板DSQC652为我们提供一个通讯接口,它的每一个接口对应一个输入或者输出。
图所示为 DSQC652通讯板,上下各有两排端子,包含16个数字输入和16个数字输出,每一个接口对应一个地址,例如X1.1对应数字输出0号地址(do0),X1.2 对用数字输出1号地址(do1),X3.1对应数字输入0号地址(di0),X3.2对应数字输入的1号地址(di1),依此类推下去。每个端子排的9接 703 号线(COM),10接704号线(+24V)。

首先我们需要在机器人控制系统中,为五个输入信号和五个输出信号都配置一个在机器人程序 中用到的唯一的名称, 例如夹爪开始位di0JiaZhuaStart,夹爪结束位di1JiaZhuaEnd,程序不能识别汉字,所以这些信号也必须都是字母数字等组合。然后将这些名称与我们的通讯板的物理地址一一对应上。
1.配置I/O单元
1)点击控制面板
2)点击配置
3)点击“主题”,确认选择I/O
4)选择Unit
5)选择“显示全部”
6)选择“添加”
7)设定数值
8)点击下滚箭头
9)根据条线设定DN的地址
10)点击“确定”,点击“是”
2.设定数字输入 di1
1)在配置里选择“Signal”
2)选择“显示全部”
3)选择“添加”
4)设定数值,点击“确定”,点击“是”
只需按照上面的步骤将di1改为di0JiaZhuaStart即可。
等所有的信号全部配置完成以后,就将对应的信号线接入通讯板上。
此外,机器人与PLC之间还有一种通讯方式PROFIBUS。
1.在触摸屏主页面点击“ABB”
2.点击“控制面板”
3.点击“配置”
4.点击“Bus”
5.点击“添加”,进入添加页面,修改参数
6.返回第三步的I/O页面后,点击“Unit Type”
7.找到“DP_INTERNAL_SLAVE_FA”,点击进入
8.填写完产品ID号,向下翻页找到“Input Size”和“Output Size”,将他们都改为64,点击确定。如果此时弹出窗口提示“是否立即重启”,点“否”,需等待配置完成后再重启
9.返回第三步的I/O页面后,点击“Unit”,新建“profibus1”单元,修改参数
10.返回第三步的I/O页面后,点击“Signal”,进入配置各个I/O信号的界面,参数设计基本和前面的di1类似,只需要将Assigned to Unit改为“profibus1”.
1.点击“ABB”图标进入系统菜单
2.点击“输入输出”,对I/O信号进行监控。0表示没信号,1表示有信号。检查配置的信号与实际信号是否对应正确
3.doGripperA和doGripperB分别代表机器人两个夹具气缸,点击其中的一个
4.再点击0或1即可更改夹具状态,强制进行夹具松开、闭合的操作,查看电磁阀接线是否错误。
1.点击“ABB”图标,选择“程序编辑器”,点击“模块”
2.在模块界面,选择“加载模块”,从存放程序模块的路径加载你所需要加载的程序模块,模块通常存放在PROGMOD文件夹下,可以用记事本打开。
1.机器人的坐标系统
设定工件坐标是进行示教的前提,所有的示教点都在必须在对应的工件坐标中建立。如果在wob j0上建立示教点,如果机器人在搬动以后就必须重教所以的点。如果是在对应的工件左边上示校的话就可以只修改一下工件坐标,二无需重教所有的点。
2.正确设定工件坐标的必要性
不准确的工件坐标,使机器人在工件对象上的X/Y方向移动变得困难。
3.设定坐标
1)在示教器创建一个wobj1项目
2)定义工件坐标
3)验证工件坐标准确度
1.点击“ABB”图标进入主系统界面,点击“程序数据”
2.点击“robtarget”
3.选择需要修改的工位, pPick1和pPkck2分别对应1工位和2工位的基础位置
4.点击工位后出现下拉菜单,选择编辑,在编辑选项中选择“修改位置”。修改完成后,机器人就会自动记录下新的位置。
1.微调纸箱的长宽高
若新进纸箱有些许变化,影响码垛效果,或纸箱装箱效果不是很好时,需要进行调整:
1)点击“ABB”图标进入主系统界面,点击“程序数据”
2)点击“num”,找到“nBoxH”、“nBoxW”、“nBoxH”这三个变量,它们分别对应纸箱的长宽高
3)点击要修改的变量,输入数值
4)修改完成后点“确定”、“确定输入”
2.修改已经码放的纸箱数量
在机器人出现了故障,整理了纸箱后可能需要此调整
1)点击“ABB”图标进入主系统界面,点击“程序数据”
2)点击“ncount”,进入数组,组件{1}和{2}分别对应了1工位和2工位已经码放的数量,点击对应数值即可修改
3.微调抓取位置
1)点击“ABB”图标进入主系统界面,点击“程序数据”
2)点击“robtarget”
3)选择需要修改的工位,“pPick1”、“pPick2”分别对应了1工位和2工位的基础位置
4)找到x、y、z部分进行修改
4.微调码垛摆放位置
在设置好每个基准点位置后,在码放过程中可能还需要进行一些微调。在手动状态下才可以调整。
1)点击“ABB”图标进入主系统界面,点击“程序编辑器”
2)点击上方的“模块”,找到存放码垛地址的程序模块,点击“显示模块”,找到需要更改的包数的程序位置
3)选中需要调整的部分,再点击下方的“编辑”,点击“ABC…”按钮进入更改界面
4)在键盘上直接输入,完成后点“确定”。更改后一定要注意是否有改动错误,在进行自动码垛之前一定要先动手低速调试运行一次,确保安全。
1.将控制器面板4号按钮至于手动状态,即三挡开关的中间一档
2.点击“ABB”>“程序编辑器”,进入程序编辑器
3.点击“PP移至Main”
4.将机器人速度减少至较低的速度
5.按住使能控制器
6.按下“启动键”开始
在调试过程中,一旦发现问题,松开控制器机器人就会立即停止。
调试完成无误后才能自动运行,且前期一定要设置为较低的速度。
1.将控制面板4开关拨到自动挡
2.一次点击确认、确定(若速度为100%,只会确定一次),一定要注意机器人速度的修改,特别调试过程中,建议先手动调试走完整个码垛循环再以稍慢的速度进行自动操作。
3.若有故障确认故障并修复
4.按下控制面板3按钮,若正常则白色指示灯两期,TP显示电机开启
5.按下启动按钮,启动机器人,这时机器人会继续沿着上次停止的程序继续走
6.若需要从头开始执行程序,可以电机“PP移至Main”,再次按下启动按钮
7.按暂停键可以停止机器人运行,此时电机还是开启的,按下启动键,机器人会继续运行
注意:在暂停下若电机“PP移至Main”则会清空已经堆码的个数以及码放位置计算等信息,再次运行时机器人将从主程序重新执行,需要重新输入已经码放的包数信息。
1.送电前一定要确保电源接线正确、牢靠,并且有效接地
2.示教器要断电插拔
3.断电后再重启,一定要等待完全关机后约1分钟再启动,防止数据丢失
4.对程序内容等进行修改后,一定要复查一遍
5.对码垛位置、参数等修改后,一定要先手动低速运行程序,再自动运行
改动前,要及时做好备份。
完成以上所有步骤后,可以通过现场检测、陪产等方式测试效果啦!如果测试结果出现偏差,还需查找原因,可以请有经验的“老司机”帮忙查看。毕竟,机器人调试这个工作,与调试人员的工作经验和技术能力还有很大关系,让我们一起努力,争取早日成为一名调试大师!
文章来源:优快工服
--- THE END ---
推荐阅读(点击标题试试)
长按以下二维码分别进入【软件库】和【资料库】自助下载。


声明:本微信转载文章出于非商业性的教育和科研目的,并不意味着支持其观点或证实其内容的真实性。版权归原作者所有,如转载稿涉及版权等问题,请立即联系我们,我们会予以更改或删除相关文章,保证您的权利!

