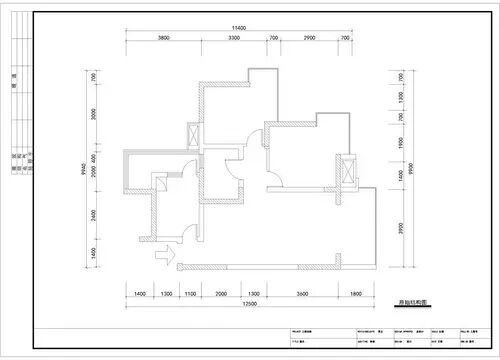
原始结构图
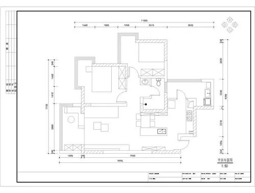
平面布置图
开放式厨房,纠结与争执后终于落地。
duang~duang~duang~人多了把餐桌拖出来和中岛
发呆的好地方
以后的菜谱就画在黑板上吧~
宜家的福托,小清新啊小清新
杂志架,某宝偶遇。
三缺一

镜子中的另一面
生活中的小休闲
继续小休闲
一直信奉的一句话。"Do what you love,lov
生活阳台——未来的小花园,期待ing
来个大场景
某宝的沙发,某宝的灯,某宝的画,IKEA的抱枕、茶几和地毯。
再看,再看就不照你了!
还看。。。

错误的公式,儿童勿看^_^
卡座区——未来滴亲子区。
黄色的那个神马鬼才是主角。。。。
灵巧的。。。。。。。大象
某宝滴拼胖球,鱼先森的最爱


宜家样板间全景呈现


我说今晚月光那么美,你说是的。
呦呦鹿鸣,食野之苹。我有嘉宾,鼓瑟吹笙。
相望
大场景又来了

隐匿的青花瓷
确定不是给某手环打广告?^_^
时隔一年,终于补拍了白天的样子。

阳光正好的午后,做自己想做的事情

喵酱一岁了O(∩_∩)O
自然醒来的清晨,早餐早已备好,美好一天的开始。






亲子区已为即将来到的小主人做好准备。




一路相随,一路相伴的小日子,不失为一种小确幸的解读。
不知道你有没有什么难忘的七夕礼物,反正他/她们的是这样👇


