深拉伸模具设计
之连切带拉复合模您真的了解吗?
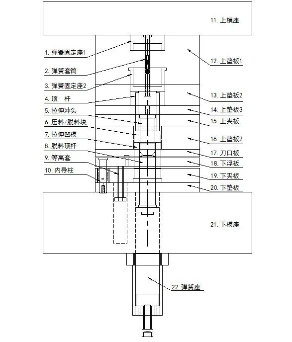
在制作深拉伸产品时,我们经常会采用连切带拉的复合模结构,尤其在单冲模、多工位模具中用的最多。下面就与大家一起分享一下这种结构的工作原理及在实际使用过程中的优劣势。
简述工作原理
通过以上模具的闭合状态,我们来分析一下模具的运动原理:
冲床从上死点0°向下运动,直到(17)刀口板接触浮板上材料的上表面,冲床上滑块继续向下运动;
浮板上材料的下表面接触(7)拉伸凹模,凹模的外径即冲头开始切料。冲床滑块继续向下运动,切断的材料在(6)压料/脱料块的压力下,开始拉伸;
冲床继续下行,直到180°下死点完成全部拉伸动作。在此拉伸的过程中,上模压料力通过(4)顶杆传导到(6)压料/脱料块上并压住材料,以防止拉伸过程中料片起皱
冲床继续运动,开始回程上行。(6)压料/脱料块向下运动将产品脱出拉伸冲头,同时下浮板向上运动将冲压材料脱出拉伸凹模
冲床继续上行,回到上死点0°,完成整个冲压过程。
简述此结构的优劣势
通过以上描述,我们了解到了模具的工作原理。下面我们来分析一下此种结构在实际使用过程中的优劣势。
优势
因此种结构将落料和拉伸综合在一步进行冲压,因此在单冲模工艺实现产品的状态下,这种结构节省了一个工站,从而在开发的过程中少了一套模具的制作;在生产的过程中少了一个工序的冲压。这样不仅节省了模具开发费用,也节约了产品制作的冲压费用;在机械手传递多工位模具中,这种结构可以省下二个工位,大大的提高了冲床的利用率(针对与需要多个工序才能完成的拉伸件更有优势)。劣势
因凹模外径部分为刃口切料区域、内孔部分为拉伸工作区域,所以生产过程中每次在维修外径或内径部分都会对另一部分造成影响;冲压过程中,凹模的外径刃口部分很容易磨损,从而导致切料产生毛边,在拉伸过程中形成铁销造成产品压伤、拉花。
图片来源:http://www.fujipunch.cn/
· · · 要不再看看 · · ·
更多有趣的
请戳一戳




