提案背景
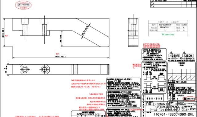
客户发来的两款模具零件,要求各4件,SKH51的材料热处理60度以上,按一般磨床工艺加工或PG加工,我们第一次报价按***美金一件,按研磨的工艺加工外形,加工量非常大,数量有4件,每次研磨量不一样会影响模具零件的使用,必须保证统一R,保证R的匀称。采购单价用研磨开粗和精加工的成本是***元/件。
此款16年10月做了2件,当时成本***元/件,给客户***美金,后来11月时,客户想下单10件让其报价,成本***元/件,给客户***美金,了解到客户是消耗品,且每个月都有至少20件的用量,每次下单数量是10件左右和50件左右的成本差距非常大,可以考虑让利给客户,为客户节省一定的成本。如果每个月都有一定量,成本对客户来讲非常重要。
提案内容
沉头及热处理做完后,改用慢走丝线割外形,4件可以同时线割,然后,且比研磨更能保证公差及模具零件要求不用PG,用慢走丝割完后再用平面研磨的方式保证外观,省去PG研磨的工艺,这样成本可以节省至****元/件。
改善效果
通过工艺的更改,降纸成本,也加快的交货周期。
汽车模具
安全可靠
精密冲压
精致生活
公众号ID:fujipunch

