BIM技术服务在设计、施工、运维过程中的应用涉及到方方面面,犹如生活中的柴米油盐。如果说,信息化代表一个社会,那么应用建筑中的BIM应用点聚在一起就是BIM家族。国内的BIM应用,处于BIM行业落地实施的成长期,BIM管线综合,作为BIM 家族中重要的一名成员,绝不落后于其他兄弟姐妹。BIM正向协同设计未成熟应用的今天,BIM管线综合成了优化设计方案走向施工现场的“宠儿”。
现以名泰南苑地下车库管线工程作为试点,该工程地下建筑主要功能为机动车及非机动车库及设备用房,地下车库分两层,消防泵房、消防水池等设备用房集中设于地下2层,结构复杂,管线综合排布的空间十分有限,BIM管线综合从优化设计、深化出图进入施工现场应用。
图生型——多专业图纸可视化
为抢抓时间、攻克难关,工程技术总院信息化中心BIM人员分工协作,分成风、水、电3个权限以工作集的形式进行协同建模。首先,建立优先权级别最高的无压排水管道模型;其次,建立空间占位较大的通风空调管道模型;最后,将剩余的各专业管线,根据规范及图纸要求大致排布到相应的标高层。
|
01 |
建立优先权级别最高的无压排水管道模型 |
|
02 |
建立空间占位较大的通风空调管道模型 |
|
03 |
将剩余的各专业管线,根据规范及图纸要求大致排布到相应的标高层 |
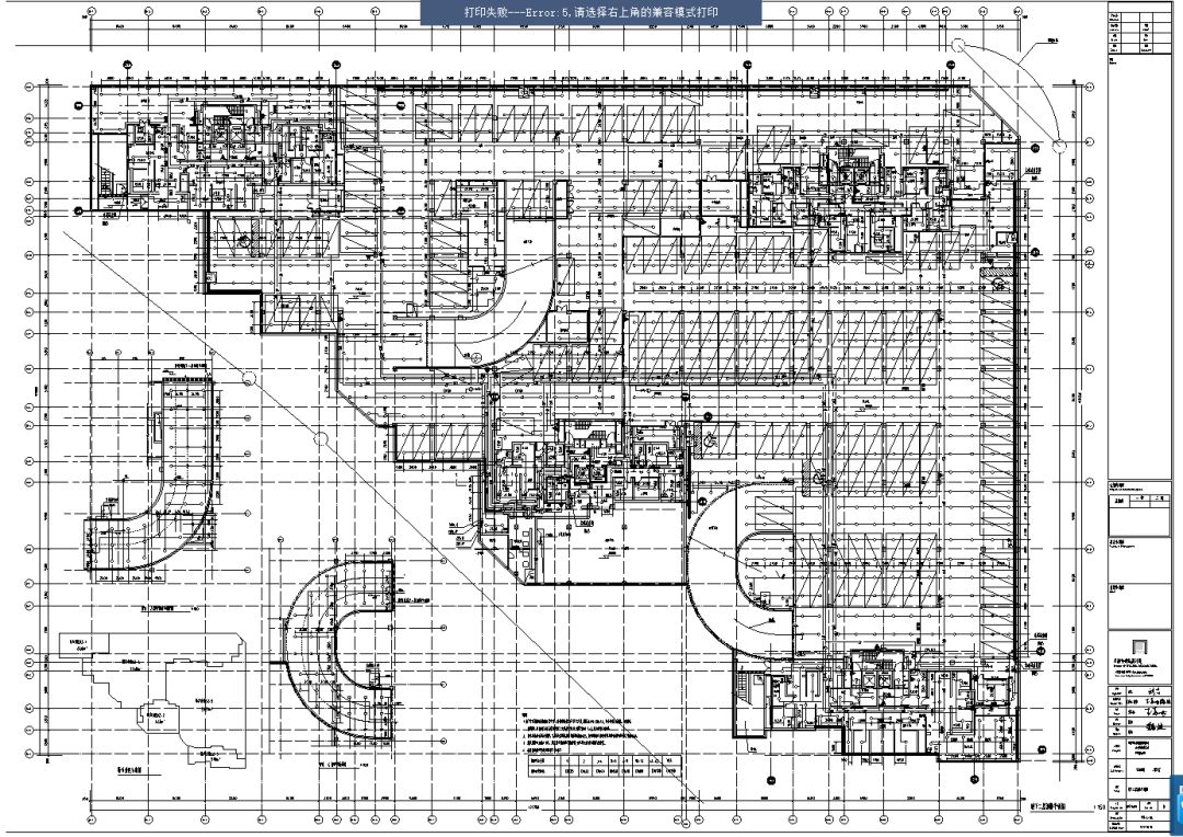
▲名泰南苑地下车库风、水、电设计图纸
这是将相对独立的各专业图纸进行整合的过程,也是由二维转三维的过程,在虚拟的环境中直观的展现出各管线的大致排布,通过模型可以进行全方位360°无死角观察,将一些设计缺陷提前暴露出来,起到了图纸会审的作用,只有运筹帷幄之中,才能决胜千里之外。
型至综——综合优化管线节点
在建立模型的基础上运行碰撞检测,依据软件系统出具的碰撞报告,再遵循小管让大管、有压管让无压管、无保温管让有保温管等避让原则,逐个解决碰撞点。在调整碰撞点时,既要考虑管线排布的美观大方,又要考虑管线施工时留有一定的操作和检修空间,将管线优化排布开。对于一些管束比较集中密集的区域,还要考虑各管线的位置调整关系,尽量避免交叉,少翻弯,按照净空要求尽量将管线向上方调整,使净空利用最大化,达到各管线间“零”碰撞的精度要求。
综返图——生成精细深化图纸
管线综合的BIM成果是用二维深化图来表达的,在revit里分别按照不同楼层、不同专业、不同系统建立平面图,平面图中体现出了管底标高、系统类型、规格尺寸等内容,管线信息高度集成表达一目了然。利用调整完成的模型出具标注有各管线间间距及各管线至墙面、地面、楼板、轴线间定位尺寸的二次结构预留洞口剖面图,方便施工人员在施工过程中尽快找出测量点,留设预埋套管和开设孔洞。对于管线交错复杂的区域位置附以轴侧透视图,使施工人员对整个管线排布有了清晰的认识。
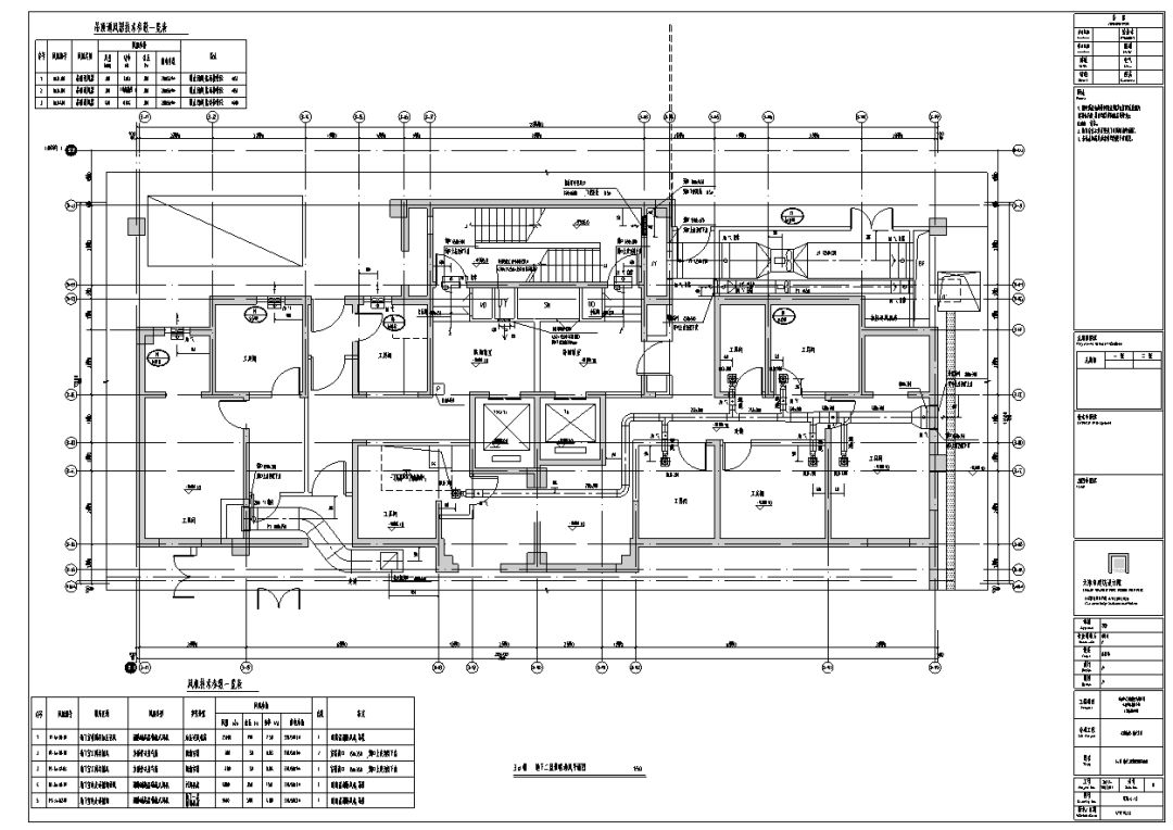
名泰南苑地下车库管线综合深化图
模出量——模型出具材料报表
根据BIM管线综合模型提取的材料用量计划,可为项目的物资采购、报送预算报表提供参考,模型生成的材料报表中的每一个条目与模型中的族构件都是一一对应,点击其中某个条目就能找到模型中的安装位置,使每一个管道、管件都有出处,保证了材料统计的准确性。生成报表只需添加相应的统计字段,便可一键生成,解决了人工统计材料效率低、错误率多等缺点。
材
料
报
表
利用BIM技术将各专业管线数据进行融合,直观的呈现机电安装效果,让人触手可及,及早发现可能出现的交叉碰撞,并做好有针对性的优化布局,减少管线的相互避让或翻弯,极大的降低了返工的几率及材料浪费,设备、管线及支架的安装也将更加合理有序、美观整齐,有力的推动工程项目提质增效和安全施工。
内容来源丨工程技术总院
编辑丨张小梦
责任编辑丨柳鹏
推荐阅读
匠心“筑”梦丨精益求精 质量至上 精心擦亮中冶天工品牌
2019-05-24
特别关注丨思想先行 行动紧随 助力安全管理体系化、标准化、常态化
2019-05-22
党建引领丨安全生产我为先,党员身边无隐患
2019-05-17
昨天,我们又一次超越自我!
2019-05-10

