金秋九月 硕果盈枝
由中冶天工城建公司承建的
天津海运职业学院水上教学训练中心项目
即将完美收官
这是天工人在二十大前夕为
天津海运职业学院
全体师生送上的一份特殊的开学礼物
天津海运职业学院宛如一粒耀眼的明珠镶嵌在美丽的天津海河教育园园区内,是中冶天工场馆类项目的又一力作。该项目是集团公司立足于海河教育园区大学城的首个项目,它的建成将为海运学院提升教学质量、助力职业教育事业蓬勃发展产生重要影响,为公司开拓后续市场赢得了先机。
该项目是天津市2021年第一批新开工重点建设项目之一。该项目建设规模为10961.29平方米,分为地上三层,地下一层,地上建筑面积8962.44平方米,地下建筑面积1998.85平方米。地上一层为跳水池、游泳池、更衣室、淋浴室、工具间以及变配电间;地上二层为机房、体能训练室等;地上三层为学生活动中心、设备舞台、化妆间等房间;地下一层为水上设施的配套设备、控制装置及管线等;同步建设室外管网等附属配套设施。
镜头下的“艺术照”
01
项目整体设计以象征的美学品格
来体现建筑美学
建筑外立面借鉴堆积的集装箱
礁石的纹理以及帆船的张力等
将建筑的感性形象和抽象概念相结合
并以集装箱式的外形体现海运形象
我们将用镜头探营
海运职业学院水上教学训练中心
感受建筑界里充满运动风的“艺术品”
如果说场馆的航拍大景图
让人感受到了震撼
那么外部特写镜头下的场馆
则有另一种别样美感
极具视觉冲击力
再往里走
便是报告厅馆和游泳馆的内部
报告厅观众席容量设计为817座
这里将作为各类晚会的演出场地
满足毕业典礼、文艺演出
展览的需求
游泳馆内参差错落的跳台
在镜头里给人一种极简风的建筑美感
充满张力,像是油画里的“艺术品”
在60米大跨度球形网架钢结构下
水深为1.8米的6泳道50米标准泳池
水深1.4米的8泳道训练池
以及包含有3米跳台
5米跳台水深为4.8米的跳水池整齐排列
为学生的训练提供了多功能的训练场地
体验中的“科技感”
02
在节能策略上
坚持可持续的设计原则
重视自然采光通风
可与环境实时联动,依靠自然采光
主馆和副馆比赛大厅采光分布均匀
满足室内活动需求
报告厅舞台安装有
16米长、6米高,面积为96平方米的
巨型LED大屏幕
播放效果及音响效果极具震撼力
泳池区设计为恒温恒湿
场馆内保持水温26-28℃
环境温度28-30℃
空气湿度维持在60%-65%
设备全部采用数字化电脑控制
/////////
设计中的“数字化”
03
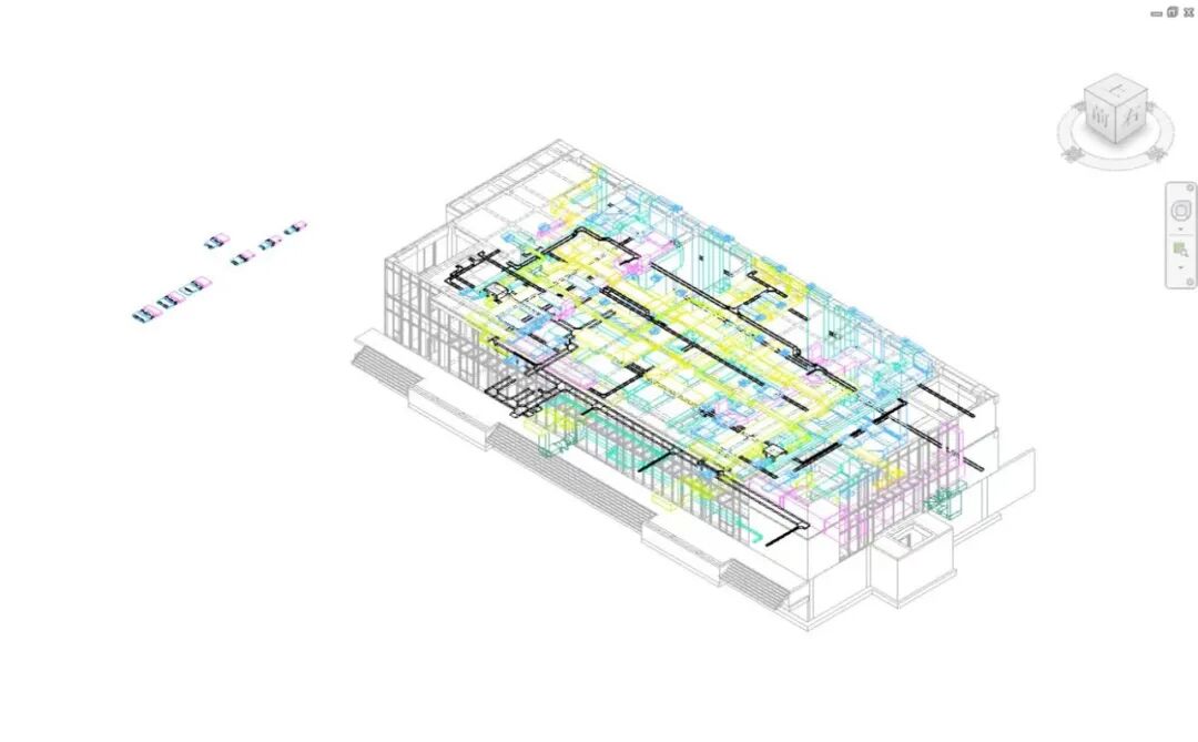
基于该项目为公建EPC项目性质
机电专业涉及全面
二次深化设计复杂
为杜绝频繁图纸变更
返工带来的质量风险和工期风险
项目部在与设计部门的多次沟通
建立了属于本项目BIM机电模型
利用BIM技术的可视化特性
降低了技术人员水、暖、电、智能化、通信
各种管线识别的复杂程度
▎▏▍▏▋▎▍▏▍
-
-
施工中的“精细化”
04
为实现项目中标即干
项目模拟团队前置项目工程整体策划
提前预判防范风险
实现投标策划和施工策划无缝对接
开局就是决战,起步就要冲刺
以项目进度为工作重点
制定并落实工作目标责任制
做到工作目标化,目标阶段化
阶段具体化,具体责任化
加强项目履约管控力度
抓好质量创优工作
让专业的人干专业的事
把新技术应用落到实处
实现创新能力和服务质量全面提升
处处体现管理,细微之处方显用心
精细管理 匠心铸造
验收中的“喜悦感”
05
开工伊始,项目团队贯彻
“安全生产、文明施工、以人为本”管理理念
树立“讲文明施工,建标准工地”管理目标
编制文明施工策划与专项方案
制定和落实工程管理措施
提高管理人员安全文明意识
严抓细管,进行动态监控
以高标准、高质量组织施工
将安全管理、文明施工
质量把控建设融为一体
项目建设顺利通过天津市“海河杯”奖
优质结构认定验收
并顺利通过天津市级文明工地验收
中冶天工助力
航海类高素质技术技能人才培养
推动“提质培优行动计划”的实现
促进十三五规划和
海洋强国建设的实施
为天津“一基地三区”建设
北方国际航运核心区建设
京津冀协同发展战略落实
发挥“推进器”作用
内容来源丨城建公司
文字撰写丨李大伟
责任编辑丨任丽丽
执行编辑丨张骏驰
欢迎转载 请注明来源!

