近日,中国建筑业协会公布第七届建设工程BIM大赛评选结果,由中冶天工申报的“沧州市大运河文化带提升改造项目BIM技术综合应用”荣获一等奖,此项荣誉开启集团公司BIM板块高质量发展的崭新篇章!
第七届建设工程BIM大赛由中国建筑业协会主办,旨在大力推进BIM技术应用,培养高水平BIM技能人才,在行业内具有广泛认可度,是国内最具影响力的BIM赛事之一。
此次申报的“沧州市大运河文化带提升改造项目BIM技术综合应用”以沧州市大运河文化带系列改造项目为依托,集合沧州大化工业遗存提升改造项目、中国大运河非物质文化遗产展示中心项目、南川楼片区改造提升项目,通过将BIM技术应用到工程建设各环节,提升建造效率,保障施工效果,实现智能建造。
作为世界文化遗产的大运河,是世界上开凿最早、规模最大、里程最长的人工河,其中大运河沧州段流经8个县(市、区),绵延215公里,沧州也成为大运河流经里程最长的地级市。集团公司承建的大运河非物质文化遗产展示中心、大化工业遗存改造提升、南川楼文化街区项目是加快打造大运河文化保护带、运河生态景观带、全域文化旅游带、助力乡村振兴产业带的战略项目,是推动构建“河为线、城为珠、线穿珠、珠带面”融合发展格局,让大运河再现生机的重要动力源泉。
逆向建模
沧州大化工业遗存提升改造项目工业森林区域喷砂除锈工程量计取
在沧州大化工业遗存提升改造项目,由于厂区内设备和管道较为密集复杂,依据现有技术资料,管道喷砂及除锈工程量计算复杂、用时较长。通过运用BIM技术,采用手持激光扫描仪和站式扫描仪结合进行三维激光扫描,获取项目区域的三维点云数据,再利用BIM软件进行成果计算,高空部分利用无人机倾斜摄影测量方法获取实景三维模型数据进行辅助测量计算,大大缩短了计算时间,节省了计算成本,为项目高效履约做好了技术保障。
沧州大化工业遗存提升改造项目
沧州大化BIM模型
左右滑动查看更多
建筑深化
中国大运河非物质文化遗产展示中心项目建筑外立面深化
在大运河非物质文化遗产展示中心项目施工时,面对设计深度不足、工期紧张情况,通过借助BIM技术深化工程细部节点,让建筑造型更加直观,施工人员可参照BIM模型直接进行施工,大大提高了建造效率。同时,通过将真实建筑材质导入BIM模型,模拟出建筑竣工整体效果,优化设计选材,高效指导施工物资采购,保障了项目建设工期。
中国大运河非物质文化遗产展示中心项目
中国大运河非物质文化遗产BIM模型剖面图
屋面节点深化
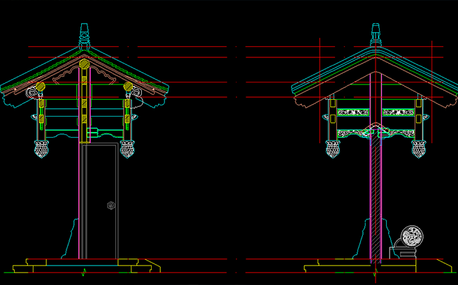
南川楼项目可视化表达复杂节点
在南川楼项目施工时,面对大量复杂的仿古造型屋面,细节造型用二维图纸很难直观表现,借助三维模型多视角、可虚拟拆装、可虚拟剖切等优势,可全方位、深度表现施工图纸,便于一线作业人员快速、精准识图,提高施工效率,赋能项目履约。
南川楼项目
南川楼BIM模型及施工图
❖
此次荣誉的取得,有力彰显了集团公司在科技进步和BIM技术应用的卓越创新能力。下一步,集团公司将继续在BIM领域深耕,不断学习、积极探索,依托BIM研究院打造一支具有强大市场竞争力的BIM团队,围绕集团市场营销端和项目履约端发力,持续推进BIM技术与现场管理相结合,为实现集团工程建设的工业化、标准化、精益化、智能化贡献力量!
内容来源丨技术质量管理部、工程技术总院
文字撰写丨张志鹏
责任编辑丨孔亚莉
执行编辑丨张骏驰
欢迎转载 请注明来源!

