搜索
首页
大数快讯
大数活动
服务超市
文章专题
出海平台
流量密码
出海蓝图
产业赛道
物流仓储
跨境支付
选品策略
实操手册
报告
跨企查
百科
导航
知识体系
工具箱
更多
找货源
跨境招聘
DeepSeek
首页
>
预购首付5万起!曼谷新CBD精品公寓JRY Condominium 别错过!
>
0
0
预购首付5万起!曼谷新CBD精品公寓JRY Condominium 别错过!
泰国星暹
2016-01-26
0
导读:泰国JRY发展集团在曼谷新CBD隆重推出精品地产项目JRY Condominium。位于曼谷辉煌区拉玛9路
泰国JRY发展集团在曼谷新CBD隆重推出精品地产项目JRY Condominium。
位于曼谷辉煌区拉玛9路17巷,巷口已有规划新的地铁站。
低密度智能型设计,低首付高回报,地铁站旁、交通便利,学区物业。
预购金仅1万人民币!最低首付仅5万人民币起!2017年中交房。
现在购买,总房价优惠5%,赠送全套家具和两台空调。
JRY Condominium
优雅灵动的生活•触手可及
泰国JRY发展集团以打造现代化都市生活新体验为宗旨,让您在坐拥城市繁华之中,尽享舒适宁静。
多户型选择,公寓内部设施齐全,游泳池、健身房及图书室免费为住户开放。
Shuttle Bus接驳到到商场和地铁站。
大堂
健身房
游泳池
图书室
周边配套
●交通便利
临近地铁Rama9站、机场快线Ramkhamhaeng站
巷口规划新地铁站
●购物商场
Central Rama9、Lotus、Big-C
Show DC(全世界最大韩国城)
The Street(24小时商场)
●学区物业
泰日协会学校 英国国际学校
法国国际学校 新加坡国际学校
●医疗环侍
比耶卫医院 曼谷医院 拉玛9医院
地铁橙色线官方网站上公示:第15站 Praditmanutham就在JRY公寓的巷口
付款模型
JRY Condominium的付款模型,最低首付款仅5万人民币起。
以下罗列的付款方式仅为目前预订可享受的付款优惠。价格为预估价,详细价格以销售中心当场出具为准。(以下仅为参考)
●预订金:50000泰铢或等额其它货币(该预订金将计入首付款部分)
●首付款:仅需总房款的10%(正常销售情况为最低15%)
●分期款:分为2期,每五个月付一次,共计10%(正常销售情况为15%)
●预计于2017年年中交房。交付前缴纳剩余80%。其中总房款的50%可以申请贷款。
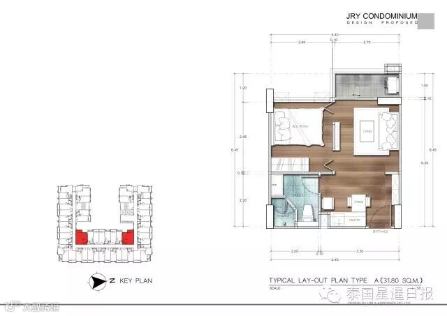
户型图
JRY Condominium户型分为一居室、两居室2种户型。皆为使用面积出售,无公摊。
▼一房
▼31.8平方米
▼34.5平方米
▼35.6平方米
▼两房
▼50.8平方米
▼60.4平方米
楼层图
▼1层
▼2层
▼3-8层
销售中心
地址:拉玛9路17巷
电话:02-7197775;
电话:
091-7187222;091-7187333
网址:www.jrycondo.com
微信二维码:
▼地图
有华闻 有泰度
欢迎转发朋友圈,原创文章其他公众号未获授权严禁转载,否则后果自负。
搜索微信号:ssdaily 或扫描下方二维码
【声明】内容源于网络
0
0
泰国星暹
有华闻,有泰度!70年星暹日报,打造泰国第一华文主流媒体。
内容
12377
粉丝
0
关注
在线咨询
泰国星暹
有华闻,有泰度!70年星暹日报,打造泰国第一华文主流媒体。
总阅读
3.0k
粉丝
0
内容
12.4k
在线咨询
关注