热点追踪
1,曼谷素坤逸蓬蓬Phrom Phong 甲级写字楼,直接连接 BTS Phrom Phong 站 与高端购物中心 EmQuartier,是 Sukhumvit 区最热门的商务办公地段之一,深受科技公司、时尚品牌和金融机构青睐。
• 总楼层:45 层(办公区主要集中在 20 层以上)
• 总建筑面积:约 100,000 平方米
• 典型楼层面积:约 2,000 平方米
出租详情:
• 可出租面积:约 100 – 2,000 平方米,支持整层租赁
• 租金价格:约 1,200 – 1,500 泰铢/平方米/月(视楼层及朝向)
• 装修交付条件:部分为 bare shell,也有部分带基础装修单位
配套设施:
• 空调系统:中央空调,办公时间开放(加时另计)
• 电梯系统:高速电梯分区运行,含服务电梯
• 停车位:提供充足配额,月卡制(租户可申请)
• 安全系统:24 小时监控、门禁系统、电梯刷卡
优势亮点:
• 地铁直通:与 BTS Phrom Phong 站无缝连接,员工及客户出行极其便利
• 商业配套丰富:办公楼下方为 EmQuartier 商场,高端餐厅、咖啡厅、银行、健身房、会议空间等应有尽有
• 高端企业汇聚地:多家外资企业、品牌总部、咨询公司和科技初创公司已入驻
• 景观开阔:高楼层可远眺曼谷市区与 Benjasiri Park
咨询写字楼详情请添加微信号: jjtime88888888
长按二维码,添加微信好友
2, Siam暹罗无线路写字楼
写字楼30 层以上
• 可出租面积:50 平方米 – 整层面积(超 2,000 平米)
• 租金价格:约 900 – 1,100 泰铢/平方米/月(视楼层、朝向和面积大小)
写字楼配套与设施:
• 空调系统:中央空调,办公时段开放(加时空调需额外收费)
• 电梯系统:高速电梯,分区运行(高、中、低区)
• 停车位:1,500+个车位,租户可配额或月卡申请
• 会议/商务设施:提供会议室、VIP接待区、高级会所等配套
• 安保系统:24小时监控与门禁系统
优势亮点:
• 高端企业聚集地:许多跨国公司、大使馆、金融、律师事务所总部设于此
• 商业设施齐全:All Seasons Place 内部配有超市(Villa Market)、美食广场、星巴克、健身房、邮局、银行等
• 交通便利:可通过天桥步行至 BTS Phloen Chit 站,或开车直通高速公路
• 高楼层视野极佳:可俯瞰鲁比尼公园、曼谷天际线
• 综合体优势:写字楼上方配套五星酒店 The Conrad Bangkok 酒店
3, 曼谷东部 Bangna 区的高端甲级写字楼,紧邻著名的国际会展中心 BITEC(Bangkok International Trade & Exhibition Centre),并与 BTS Bang Na 站通过天桥无缝连接,是一个融合办公、展览、交通与生活功能的现代化办公综合体。
写字楼基本信息:
• 地址:Sukhumvit Road, Bang Na, Bangkok
• 建筑年份:2017 年
• 楼层数:29 层
• 总办公面积:约 50,000 平方米
• 典型楼层面积:约 2,000 平方米
出租信息:
• 可出租面积:约 100 – 2,000 平方米,适合中小型企业至大型总部
• 租金价格:约 700 – 900 泰铢/平方米/月(相比市中心价格更亲民)
• 交付条件:Bare Shell 或部分带基础装修单位
设施配套:
• 空调系统:中央空调系统
• 电梯系统:高速电梯(分区)+ 货梯
• 停车位:配备超过 1,200 个停车位
• 会议设施:可租用 BITEC 展馆配套会议中心
• 安全系统:24 小时监控、门禁卡控制、前台登记
交通与地理优势:
• BTS 直连:天桥连接 BTS Bang Na 站,步行约 3 分钟
• 高速公路通达:靠近 Bangna-Trad 高速,连接机场与 EEC 东部经济走廊
• 机场便利:距离素万那普机场约 25 分钟车程
入驻企业类型:
• 国际物流公司总部
• 会议展览相关企业
• IT 与服务型企业
• 外资代表处与制造业配套企业
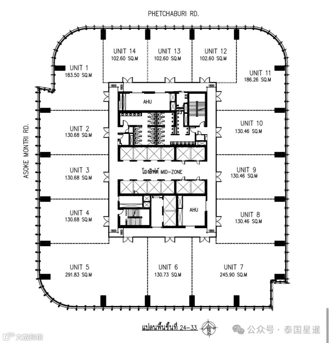
4, Rama9写字楼也是高端综合体项目,位于曼谷市中心 Asoke-Rama9 路交汇处,是集甲级写字楼、豪华住宅、公寓式酒店与商业中心于一体的地标建筑。
• 写字楼楼层:办公区域主要位于 4 – 32 层
• 总办公面积:约 60,000 平方米
• 典型楼层面积:约 2,000 平方米
• 建筑年份:2018 年
• 等级:甲级(Grade A)
出租信息:
• 可出租面积:约 100 – 2,000 平方米,支持灵活分割
• 交付条件:Bare Shell(部分带基础装修的单位可协商)
配套设施:
• 空调系统:中央空调(办公时间开放,可申请延时)
• 电梯系统:分区高速电梯 + 货梯
• 停车位:地下共约 1,000 个停车位,可申请月卡
• 安全系统:24 小时安保、门禁刷卡、电梯权限分级管理
• 其他设施:会议中心、健身房、餐厅、咖啡厅、便利店等一应俱全
交通位置优势:
• 地铁直达:步行即达 MRT Phetchaburi 站,连接 Airport Rail Link Makkasan(素万那普机场线)
• 高速路连接:靠近高速公路入口,适合通勤及商务往来
• 人流密集:周边办公人群、住宅及游客密集,商业氛围浓厚
适合企业类型:
• 律师事务所、会计事务所
• 跨国公司办事处、区域总部
• 科技、媒体、房地产公司
• 高端服务及咨询类企业
5, Vanissa Building 是位于曼谷市中心 Chidlom 区的一栋中高端写字楼,地处繁华的商业区,与 BTS Chidlom 站步行距离很近,交通便利,周边配套齐全,适合中小型企业设立办公室或外资代表处。
Vanissa Building 写字楼基本信息:
• 位置:Ploenchit Road(靠近 BTS Chidlom 站)
• 楼层数:20 层
• 建筑类型:商务写字楼
• 建筑面积:每层约 600-700 平方米
出租信息:
• 可出租面积:从约 50 – 700 平方米,适合灵活办公需求
• 租金价格:约 850 – 1,000 泰铢/平方米/月(相较周边写字楼价格适中)
• 最短租期:一般为 3 年
• 交付条件:Bare Shell 或部分带装修单元可协商
设施与服务:
• 空调系统:中央空调(办公时间开放,延时需额外申请)
• 电梯系统:3 部客梯 + 1 部货梯
• 停车位:大楼配有停车场,租户可申请月卡
• 保安系统:24 小时安保,门禁卡出入
• 其他配套:大楼内有咖啡店、便利店,周边有 Central Chidlom、Central Embassy 等商业中心
交通优势:
• 步行约 3-5 分钟即达 BTS Chidlom 站
• 邻近 Ploenchit、Wireless Road 领事馆与大使馆区域
• 便利通达 Siam、Asoke、Silom 等核心办公商圈
适合企业类型:
• 外资代表处
• 咨询公司、小型律师事务所
• 电商、初创企业
• 房地产或教育类机构
咨询写字楼详情请添加微信号: jjtime88888888
长按二维码,添加微信好友。
热点追踪
星暹带您了解更真实的泰国!
让您看遍泰国的各类新闻资讯、奇闻趣事,
信息来源

星暹传媒开启星暹快讯!关注公众号“星暹泰国”,我们将更快地为您带来更多的泰国新闻资讯!








