关键词:泰国第三大开发商AP,开发商最高端现房,50层楼无敌城市景观,曼谷市中心,距离Siam Paragon暹罗百丽宫商场650米,距离 BTS站150米, 距离水门市场900米,距离MBK Center 1公里,国际化生活配套,永久产权,精装修,拎包入住,3房大平层户型,低密公寓,一梯三户,年投资回报6%以上。
THE ADDRESS 暹罗位于 曼谷RATCHATHEWI路,项目 650米就是大名鼎鼎的Siam Paragon暹罗百丽宫商场。这是一个既现代,而又完美地展现历史的有价值的地区。其地理位置深受全球各界人士的推崇,周边环绕着各类国际地标性的社区和商务区。公寓毗邻PETCHABURI路,进出交通便利,距BTS轻轨RATCHATHEWI站仅150米,同时拥有众多购物,美食,休闲场所, 只需在公寓附近即可满足出门休闲,品尝美食,欣赏艺术品和购物等所有需求。暹罗商圈,水门商圈,RATCHATHEWI 路围绕着THE ADDRESS 暹罗。
住在 THE ADDRESS 暹罗,出行更加轻松有趣。无论去哪里,都可以方便地出行。那是由于公寓毗邻众多重要区域,例如 RATCHATHEWI-PHAYATHAI 商圈,MBK 中心-暹罗-中央世界商圈和水门商圈,周边地区均为国际化顶级商圈。
帕耶泰宫
位于RATCHATHEWI 附近的区域, 是一个被众多商业中心围绕的高档区域,给人以充满活力的感觉,包括MBK,SIAM PARAGON,SIAM DISCOVERY,SIAM CENTER,CENTRAL WORLD,GAYSORN VILLAGE,CENTRAL CHIDLOM,CENTRAL EMBASSY等。此外,周围还有多家获奖餐厅,提供各类美食,在这个地区还有许多艺术场所,所有的东西都是顶级的。
曼谷文化艺术中心(BACC)
不远处,就是PETCHABURI 路,随时融入那熙熙攘攘的热闹人群, 有百货商店,时装店,电子产品商厦,美味食品,都离 THE ADDRESS 暹罗公寓仅一步之遥。
PLATINUM FASHION MALL
PALADIUM
对于正在寻找位于市中心黄金地段超级豪华公寓的各国人士来说,THE ADDRESS暹罗能满足在曼谷所有的生活需求,拥有黄金地段的潜质,稳定的投资回报6%以上,享受无与伦比的高品质生活,体验泰国文化遗产的氛围,那么 THE ADDRESS 暹罗绝对是泰国买房的最佳选择 !
THE ADDRESS暹罗, 一直以来都是AP开发商最高端,最具投资潜力的奢华公寓,公寓所处地段无论是现在还是将来,都将是最有发展潜力的地区 ,这正是AP开发商开发这一豪华公寓的理由,居住在此地,享受最高品质的生活,满足所有生活居住的需求。
公寓不仅位于绝佳的黄金地段,THE ADDRESS还将通过符合城市生活方式的各种高科技设施带来无尽的生活便利,将生活带入一个崭新的高度。公寓的设计理念源自于泰国贵族的文化传承,使让曼谷的生活成为“尊贵的生活”。
THE ADDRESS暹罗宽敞高大,楼高达50层,拥有880个住宅单位。入口设计借鉴凡尔赛宫的正门,其外部设计元素也采用孔雀尾羽的花纹,这正是THE ADDRESS暹罗的象征。为住户提供了任何地方无可比拟的美丽奢华的完美选择!
THE ADDRESS暹罗的住宅区位于9楼至49楼,9楼的设计与众不同, 住户可以在此使用THE GYM健身房和THE SCENTED GARDEN芬芳花园等公共休闲设施。
在50楼,可以充分享受各种高层空中设施,包括SKY空中花园,SKY图书馆,SKY 殿堂,SKY 酒吧,SKY 健身房以及带有水疗和儿童游泳池的SKY 泳池。
进入公寓大门时,首先抵达大堂豪华休息室,包括大气的大门和PIMAN休息室(G层),四周墙壁均饰以大理石花纹。
如果想换个工作场所,亦或想在舒适豪华的环境中寻找一个休闲场所,THE ADDRESS的MAYURA长廊是最佳选择,休闲生活的最佳场所。
另一处独特的场所是THE ADDRESS位于50层的空中宫殿THE SKY CHAMBER,此处具有绝佳的都市景观。。
坐在此处往外看,会发现一片郁郁葱葱,满目碧绿的花园,那是另一个可以享受私人空间的休闲区,使您轻松每一刻。
在舒适的气氛中散散步 ,或坐着放松身心,享受凉风。从公寓的高层看着美丽的景色, 在 THE SCENTED花园(9楼)享受都市中的宁静。
宽阔的绿色区域,360度欣赏城市的壮丽景色。可以坐着欣赏音乐,品尝美酒,读一本读。这是一处绝对与众不同的好地方。
大型游泳池。配有水疗设备,全身心舒适,放松,自在。或者只是欣赏都市夜景,也是一个绝佳的位置。
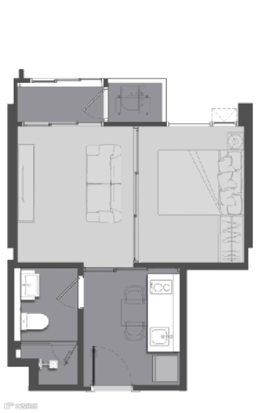
除了拥有完善的外部设施外,THE ADDRESS暹罗内部的每个单位也像外部一样完整而豪华。有5种类型的户型可供选择。
THE ADDRESS暹罗可称为“曼谷南京路”是为数不多的高规格公寓之一,对奢华生活方式的设计,是泰国最稳定投资回报的新项目。

热点追踪
星暹带您了解更真实的泰国!
让您看遍泰国的各类新闻资讯、奇闻趣事,
快来关注星暹传媒微信视频号哦!
信息来源

星暹传媒开启星暹快讯!关注公众号“星暹泰国”,我们将更快地为您带来更多的泰国新闻资讯!










