位于北京经济技术开发区路东区F3F1、F3M1地块的“锋创科技园”。东临凯工及市政用地F3U-1地块,西至经海路,南邻科创十四街北至科创十三街,紧邻经海路地铁280米,步行5分钟到达。


锋创科技园,总建筑面积逾160,000平米,容积率1.92,绿化率33%,是集企业独栋、写字楼、精装商务空间、配套商业、文化创意产业于一体的产业型综合体,以工作、生活及自然共融的理念,倾力缔造高品质的有机生态科技园区。
写字楼租售情况:
锋创时代——园区的纯写字楼物业,包含园区的4、5、6号楼。楼体承袭北美全新理念的现代商务办公空间,空间豁达敞亮,120-800平方米灵动空间,3.6-3.8米舒适层高,面宽进深比达到2:1,其中10米的进深尺度,便于高效布局,大大提升空间利用率,超高的使用率在亦庄也是绝无仅有。摒弃传统商务空间的压抑和单调,创新主义与智能化结合,全面升级企业实力。
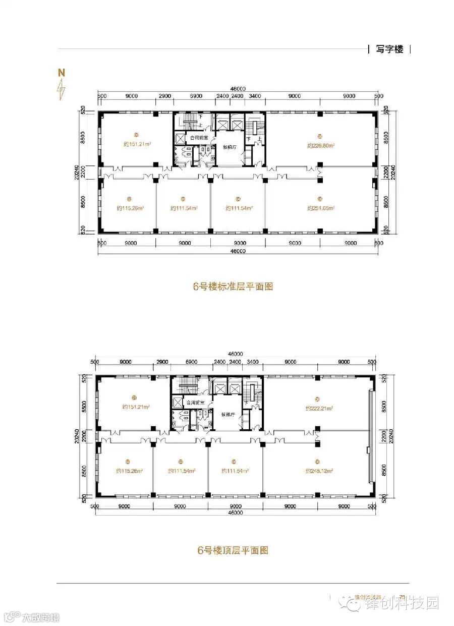
6号楼规划为写字楼,也是目前热售的,总建筑面积为11834.36平方米,地上12层,首层层高6米,二、三层层高5.4米,标准层层3.7米,园区配有食街,另外配有规划的地下餐厅。
6号楼写字楼一层样板间展示效果图
一、相关数据
物业费:5.6元/平米/月。
制冷:VRV空调系统。
采暖:市政集中供暖。
单层面积:一层面积:851.42平方米,二层面积:954.5平方米,标准层面积:967.4平方米,顶层面积:956.88平方米。
电梯:电梯三部,每层六户。
二、租售方案:分户出售及整层出售

三、全部为精装修,面积:120-800平之间,预计交房时间2014年11月。
四、产品优势分析
1、现房出售,即买即用。
2、园区成熟,紧邻地铁。
3、自持物业公司,统一管理规范,园区入住率较高。

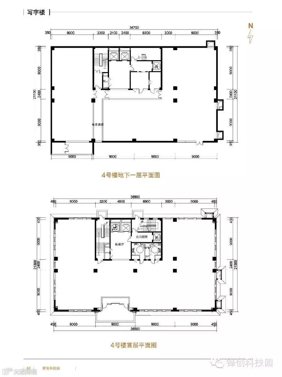
4号楼规划为“锋创科技园”总部(效果图如下):有三个楼层作为总部自用,一层、二层对外招商,一层规划为咖啡厅,二层规划为健身房,其余楼层对外租赁。



希望以上内容对您购置或选租办公楼有所帮助,如以上信息有不明之处,您可以拨打咨询或服务热线:010-56386888。


