近日,光明区住房和建设局召开会议,约谈全区11家房地产企业,传达国家、省、市房地产调控政策,并就房地产工作进行部署。
该局相关负责人在约谈时强调,光明区将严格执行国家、省、市层面的房地产相关调控政策,以稳地价、稳房价、稳预期为目标,坚持“房子是用来住的,不是用来炒的”定位,促进房地产市场平稳健康发展。
全区将大力整顿房地产市场秩序,防止捂盘惜售、哄抬市场价格等违规行为出现;并严肃查处虚假宣传、捏造或散布虚假房源、采取夸大和误导性手段虚假宣传项目带优质学位等扰乱市场的行为。

今年6月底,光明区推出2宗招拍挂居住用地,吸引了30多家房地产开发企业竞拍。正在建设世界一流科学城的光明区聚集了政策扶持、片区规划、轨道交通等多重优势,已经成为房地产市场新的聚焦点。
该负责人表示,为了稳定预期,全区将落实稳租金调控目标,遏制各类住房租金上涨过快势头,多渠道增加租赁住房。对当前市场存在的囤积房源、哄抬租金、违约涨租等行为将开展专项整治。
同时,将进一步加大保障房、人才房供给力度,未来三年预计供应各类政策性住房约42000余套,住房面积不少于297.86万平方米,其中人才住房不少于180.3万平方米,公共租赁住房不少于38.58万平方米,安居型商品房不少于10.83万平方米。

深圳未来最大的保障房
光明长圳车辆段项目已获批
未来又有一批保障房要上线啦~
跟着光明君一起来看看吧!
光明长圳车辆段项目为全国最大装配式建筑公共住房项目,因其体量大、靠近地铁,引发市民关注,本次保障性安居工程二期项目建设用地获批,无疑利好光明市民以及有申请保障房意向的市民。
项目位于光明区
光侨路与科裕路交汇处西南侧
北至光侨路(主路),南至长圳路(支路)
东至科裕路(规划中、次干道)
西至为东长路(主路)
周边配套设施齐全、交通便利
项目距光明城高铁站3 km,距光明区文化馆、体育馆6 km,距光明人民医院5 km,距实验学校4 km,距光明区管委会3 km,距在建6号线长圳站不到五百米距离。项目东侧为深圳市华星光电技术有限公司、西侧为长圳儿童公园、南侧为工业园区,片区规划利好本项目。
项目周边有南光高速、
龙大高速两条高速通往市中心
并且有内环高速连通


通过光明城站连通广深港高铁
快速连通深圳市中心
形成30分钟交通圈

项目位置图
在公共交通方面,项目周边有培英文武学校站、东长长分路口站、海纳中心、圳塘站等公交场站;
公交线路有392、635、b658、b926、m436、m336、m451等多条线路,公共交通覆盖率高;
公交运行时间大致为6:00-23:00,出行便利。

项目周边配套设施
项目周边市政配套项目较多
还有医院、商业、教育、公园
等公共基础设施
医院:光明区中心医院、光明区人民医院等;
商业:海纳中心,以及规划的玖龙台商业等;
教育:长圳小学、玉律小学、光明区实验小学等;
公园:长圳公园、大雁山公园、明湖城市公园等;
市政设施:光明区会展中心、光明艺术中心等
项目的建设符合城市建设和政府规划趋势
提升城市竞争力和区域对人才的吸引力
可缓解片区人才住房不足的困境
保障人才安居乐业
也符合政策导向和市场规律
在缓解城市住房供求矛盾、
保障高端人才安居乐业、
提升城市及区域竞争力等方面
都具有极其重要的意义
社会效益显著
项目以服务片区内各领域的人才为主要目的
是以居住功能为主、兼具商业配套和休闲功能的
有一定生态景观特色的科技人才住房项目
具有良好的社会效益
在设计方面
以现代简约风格为主,时尚大气
外墙采用干挂石材与高级涂料组合
园林艺术和人文元素的有机结合
形成项目独特的景观符号
本项目采用装配式施工、全生命周期的BIM管控,海绵城市和绿色建筑设计,标准层现浇部分采用铝模体系,外架采用爬架体系,所有房间全部采用精装修交房,未来将打造成为大型高端商住综合社区
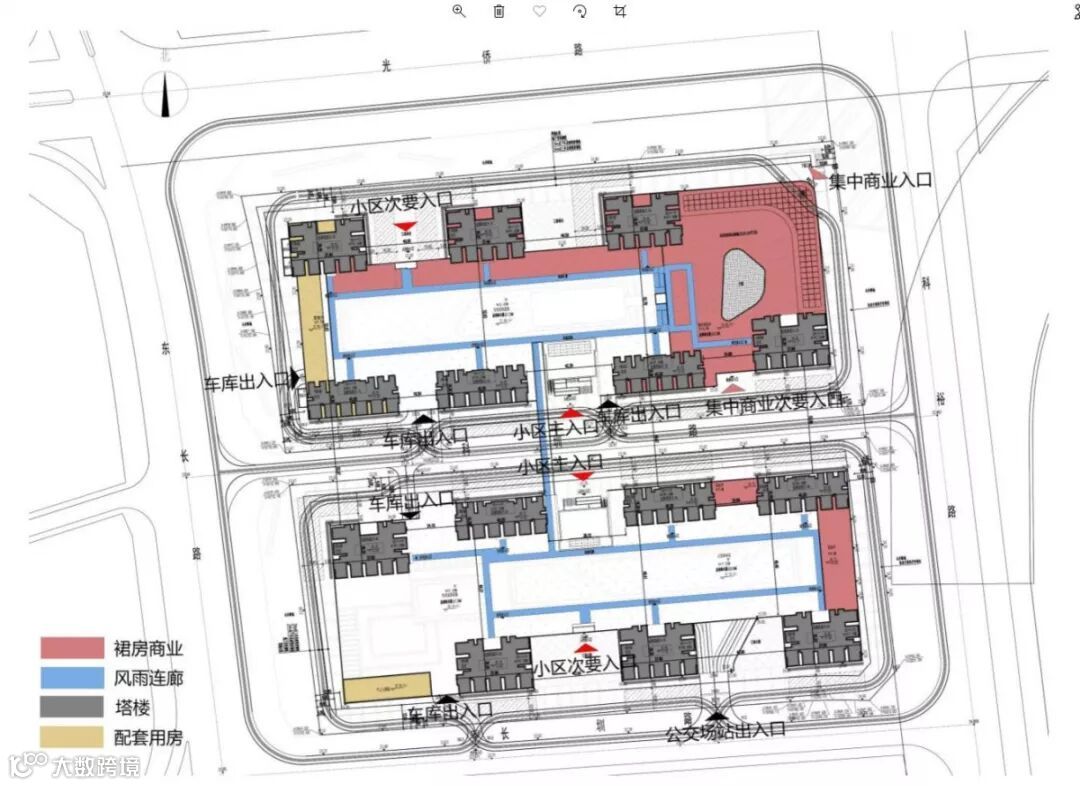
地块规划为三类居住用地
分为南、北两个地块
总用地面积73223.35m²
总建筑面积458163.97m²
计容面积331315m²
项目设计车位2600个
总户数7012户,户型以小户型为主
主要为35m²和65m²

公共配套设施11315m²,其中北地块拥有便民服务站400m²,文化活动室1000m²,社区健康服务中心1000m²,南地块有小型垃圾转运站150m²,环卫工人休息房25m²,再生资源回收站60m²,公交首末站6400m²,老年人日间照料中心1000m²。

总平面图
目前
项目围挡及大门开始完善施工
现场临时办公区开始施工
计划春节前开始桩基施工
完成基坑支护及土方开挖
小伙伴们
了解完光明区这个
未来全市最大保障房项目
有没有很自豪呀!
为光明区加油吧
和我们一起向美好的生活奋斗~

如果您觉得这篇推文能够帮到您个人,身边的家人、朋友或同事,动动手指转发起来!
如果您还有任何关于深圳安居房、公租房、人才房相关疑问、求助、故事或者图文,欢迎发布在【家在社区:安居公租版块】☞☞
http://bbs.szhome.com/500070.html,让更多的小伙伴一起来帮忙,出出主意。
安居路上,我们一路前行,比心!

轻轻点一点,祝你有房选~


