▲更多精品,关注“搜建筑”
当前143㎡户型已成为兵家必争之地
这一面积段精准契合了改善家庭对空间尺度与功能复合的终极需求,市场竞争已白热化,各大地产在产品力上的“内卷”推动了其飞速迭代。
143户型的端厅(边厅)设计,更是将这种竞争推向了新的高度:
从“有界”到“无界” 的格局突破
端厅凭借其独特的建筑边角位置,实现了270°采光通风与全景视野,彻底打破了传统中间户单面采光的局限,将空间的明亮度、通透感与景观价值提升了数个量级。
更大化效能突破
它将户型中最优质的资源(光、景)毫无保留地赋予家庭的核心公共区,不仅提升了居住的舒适性与健康度,更让客厅、餐厅、厨房融为一个高效、互动的家庭核心场域。
今天来看: 破局内卷——创新143㎡端厅产品
01
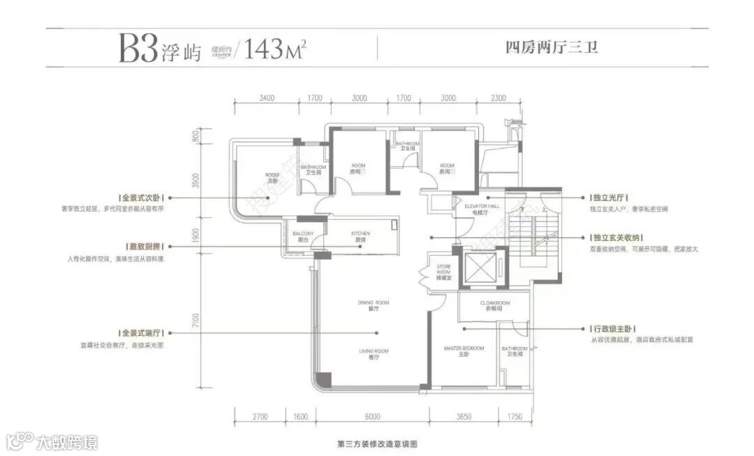
成都绿城·锦海棠
成都绿城·锦海棠143㎡户型,以“无柱端厅”革新传统格局,打造开阔明亮的“无界全景舱”。无柱化设计让空间更显通透,L型全景明窗带来约270°的视野,引光纳景,模糊了家与自然的边界。
▲绿城·锦棠府建面约143㎡户型图
约14.4米的南向面宽,使玄关、厅、餐、厨贯通一体,形成开阔明亮的“大公区”,归家即见宽厅广窗,仪式与舒适兼得。

▲样板间实景图
窗外园景静谧,部分楼栋更直面生态公园,四季风景成为日常背景。搜建筑
▲样板间实景图
户型还支持“主卧大家化”改造,可合并相邻书房拓展为衣帽间或书房。
▲样板间实景图
更贴心地为二胎家庭设计双子套房——孩子既有独立空间,也便于父母照顾。
▲样板间实景图
02
成都华润·中环天宸
成都华润·中环天宸建面约143㎡户型,创新打造近50㎡全景端厅,配合双向270°、超11㎡空中阳台采光花园,引景入室,营造通透豁达的空间感与流动的洄游动线,这一曾属于别墅级产品的尊贵体验,如今成为理想生活的日常。搜建筑
▲成都华润·中环天宸建面约143㎡户型示意图
▲实景图

▲示意图
03
成都华润·天宸上院
成都华润·天宸上院,建面约143㎡端厅户型,电梯独立前室衔接入户光厅,形成“内外双光厅”,营造庭院式归家仪式感,从容过渡公私领域。
近28米L型全景采光界面,三面采光赋能空间通透感。
约14.9米南向连续采光面,客厅与多功能X空间、露台灵活连通,形成270°超广角视野。
▲天宸上院建面约143㎡户型图
三卧朝南+双套房配置,主次卧均配套独立卫生间。主卧奢享星级卫浴系统(双台盆设计)、独立步入式衣帽间(建议自行装修),彰显居者身份。
独立储藏间、阔尺玄关收纳柜等多维收纳设计,嵌入日常动线,兼顾实用与美学,保持空间持续整洁。
▲高层效果图
04
重庆江帆郡
搜建筑
重庆江帆郡建面约143㎡户型,实得面积接近200㎡!真正做到了“三面观景”,全景舱+空中岛院设计,主卧与客厅均享有全景视野,采光面达到了更大化。私厅花园入户,归家仪式感十足。
▲重庆江帆郡建面约143㎡户型示意图

▲效果示意图
05
昆明邦泰·璟和
昆明邦泰·璟和建面约建面约143㎡A户型,4室2厅2卫:独立电梯入户、约56㎡的LDKB一体化超级社交厅、270°无转柱曲面屏设计,全景舱视野、约32米超大景观面,连次卧都做了270°全景采光……实现165㎡以上的大平层居住体验。搜建筑
06
成都高投·启鸣宸序
成都高投·启鸣宸序建面约143㎡端厅户型,创新实现“光厅+端厅”组合,配备双套房、三卫,三面采光,整体得房率约107%。
电梯厅引入自然采光,提升归家体验;入口设计兼顾隐私与仪式感,通过电梯门与入户门错位、增设景墙,有效遮挡视线,实现动静有序的过渡。搜建筑
玄关处设有大面积储藏区,满足收纳需求。
客厅与套房形成“双全景舱”格局。
双套房布局各具亮点:南向套房采光充足,另一间为270°转角全景视野,无柱设计视野开阔。
▲成都高投·启鸣宸序建面约143㎡端厅户型
▲实景图
07
西安云起时
西安云起时建面约143㎡户型,以「尊崇感」与「高得房率」为核心,打造集功能、视野与仪式感于一体的云端生活体验。
独立电梯入户+玄关,延伸出实用收纳空间,归家仪式与功能兼备。
罕见通透端厅+三面环幕视野,270°瞰景落地窗,引光入室,空间豁然开朗。
LDKG一体化公区——餐、客、厨、岛台与阳台自由联动,兼容家庭日常与优雅社交,动线流畅,视野无界。
约270°观景阳台衔接空中露台,可改造为轻吧或休闲空间,晓看云霞暮观星,生活意趣盎然。
三卧分置各方,互不干扰,尊重成员作息隐私;南向主卧套房配置,赋予主人细腻而尊贵的生活排场。
▲西安云起时建面约143㎡户型示意图
▲样板间实景图
▲效果示意图
08
昆明绿城&德润·柳岸晓风
昆明绿城&德润·柳岸晓风,建面约142㎡端厅户型,4室2厅2卫,可生长全家庭周期设计,约6.8米大阔厅,外连约8.5米跑道大阳台,超广角环幕视野LDKG布局。所有卧室全朝南,“小家化”套房主卧,品质生活高配。
▲昆明绿城&德润·柳岸晓风 建面约142㎡户型示意图
▲样板间实景图
▲实景图
09
西安交控绿城·桂语晴澜
西安交控绿城·桂语晴澜建面约143㎡户型,舒适三房两厅两卫布局,空间尺度豪华,采用奇偶错层阳台、局部约6米挑高设计,实现户户配置“空中露岛”,精雕细琢“空中花园”式墅居体验。
奇数层主卧外接露台,连通景观阳台;偶数层客厅享270°广角视野,北卧也配露台,采光与观景体验俱佳。
▲交控绿城桂语晴澜建面约143㎡户型图

▲交控绿城桂语晴澜效果图
结语
在高端住宅市场同质化竞争的今天,真正的破局之道,并非面积的简单叠加,而是基于深刻市场洞察的产品力革命,143㎡端厅户型,正是这一理念的集中体现。
10月 | 天津:“全首层架空”新模
11月 | 成都:新住宅·产品趋势
洋房/叠墅/院墅/小高层
▼点击下图,了解报名
1.本文为建筑设计技术分析,仅供欣赏学习。
2.本资料为要约邀请,不视为要约,所有政府、政策信息均来源于官方披露信息,具体以实物、政府主管部门批准文件及买卖双方签订的商品房买卖合同约定为准。如有变化恕不另行通知。
3.因编辑需要,文字和图片无必然联系,仅供读者参考;
推荐一个
专业的地产+建筑平台
每天都有新内容
扫描二维码关注

微信公众号“搜建筑”(ID:sjz9999)
合作、宣传、投稿
联系微信:soujianzhu006



