设计吸收并表达了对场地的记忆,以理性、简洁的体量,严谨的形式和精美的线条,呼应场地原有的工业背景,展现了纯粹、精湛的技艺之美。
项目概况
基地面积: 52741 ㎡
总建筑面积: 42425.3 ㎡
地下建筑面积:10391.8 ㎡
建筑高度:24 m(局部 >24 m)
容积率:0.8
项目背景
Background
光启园四期项目北临钦州北路、西临虹漕路、东临苍梧路,是上海漕河泾新兴技术开发区核心组成地块,邻近地铁换乘枢纽。设计范围在地块东北角,北临钦州北路,东临苍梧路。
▲ 本次设计范围
本设计范围在一个部分已经建成的科技园区,光启园,尤其紧邻设计范围是光启园最高的建成建筑,约80m高。
▲ 基地与与已有建筑
设计首先旨在便捷顺畅地解决和现有建筑的关系,解决好人流、车流、货运车流的分流与集散,处理好各流线的相互关系,实现人车分流,避免流线交叉。
▲ 园区内部
设计要更进一步达到的目标,是处理好新建筑和现有建筑的关系,令新建建筑能有机地融入现有建筑中,协调一致,又能有独特的形象提升区域的空间品质,进而以简洁、现代、精美和新颖的建筑形象,实现漕河泾科技开发核心区展现前沿科技先进理念的精神诉求。
▲ 园区内部
总图布置
Master Plan
建筑的造型、布局和朝向首先取决于本项目在钦州北路和苍梧路沿线的标志性定位。同时考虑到基地北面钦州北路对面的动迁户,新建筑在最北部分沿钦州北路部分保证在24 米以下。
▲ 体量关系
建筑采用矩形体量契合基地的形状,也延续了周围建筑的肌理。根据基地周围交通流线和基地现有建筑确定商业广场、入口广场及建筑布局。
▲ 园区内部
加入新建建筑的总平布置以三个正方底盘的体块为出发点。三个点式体块,与道路、已有建筑平行或垂直,在基地上建立与现有建筑的关系。北面两个体块结合成一个建筑,解决间距、采光问题。
▲ 园区内部
为了与周围街道和已有建筑形成更好的关联,最北面的建筑和园区原有建筑对齐,最南面的建筑刚好和光启园中的高层错开。
北面一号楼的入口广场通过钦州上现有园区的入口进入,北侧两个体块合并以改善采光,同时在入口处为城市让出一个广场。
▲ 体量生成
设计对该广场做了下沉式处理,和城市空间取得更好的互动。在建筑屋顶设置了露台花园,打造立体绿化,提供更丰富、宜人的空间。
▲园区鸟瞰
造型/立面
Form/Facade
本方案选择和周围环境比较和谐的简洁、规整的建筑语言,同时赋予建筑与众不同的可识别度。
规整的几何形满足了空间的利用效率和经济性,同时提供多样的空间类型:开放的入口空间,屋顶花园,下沉采光天井等。
▲ 建筑外观效果
设计按照办公空间围绕核心筒布置的逻辑,将规整体块进行切割、抬降等一系列操作,形成类似于“风车”的体量组合。由此,在自然而然区分了不同的空间,高效地满足不同使用功能的同时,增加空间丰富性。
▲ 建筑外观效果
这种处理同时消解了建筑体量,使其成为一些较小体量的有趣空间组合。配合风车形态的基本结构,在立面设计里引入方向性。被切分后的四个小体块长边面较封闭,短边面较开放,形成虚实对比,强化风车的概念,建立逻辑自洽的处理手法。
▲建筑群
立面上,幕墙玻璃和金属框架的交替形成一个个环绕整个体块的框架,时而被抬起,下面是玻璃幕墙围合的开放透明的入口空间。
▲ 建筑与小庭院
将这两个开放度、通透度不同的面分开的是1.95 米宽的玻璃幕墙形成的缝隙效果,玻璃后是有自然采光的走廊空间。
▲ 立面光影效果
立面细节设计使用强调方向性的竖向线条,构成较实的部分,并且采用三角形的形状突出玻璃部分,形成尖锐的细部轮廓,使两栋楼获得了肌理清晰、别具一格,识别性极高的形象。
▲ 立面细节的推敲
为了达到比较理想的效果,竖向线条的疏密、突出程度,垂直和水平的划分等,都进行了仔细的推敲。主体建筑外墙使用玻璃及金属板幕墙+岩棉保温,主体建筑外墙出屋面部分使用外墙涂料+岩棉保温。
▲ 立面细节
屋顶退台实现的露台花园的景观设计结合建筑本身几何形强的清晰语言,通过顶层降板实现较高的种植介质层,因而屋顶种植屋面的排布肌理和建筑结构排布肌理自然而然产生了联系。
▲ 建筑与室外小广场
技术图纸
Technical Drawings
▲总平面图
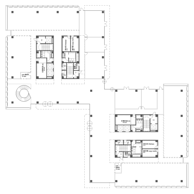
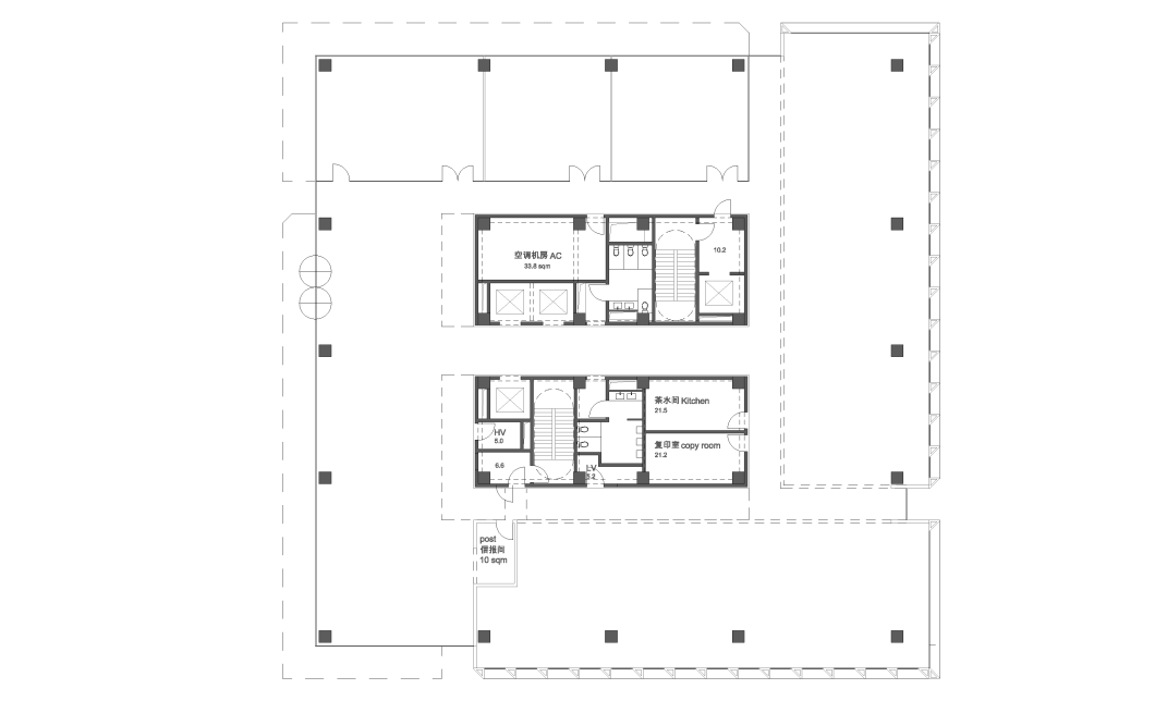
▲ 一层平面图 1
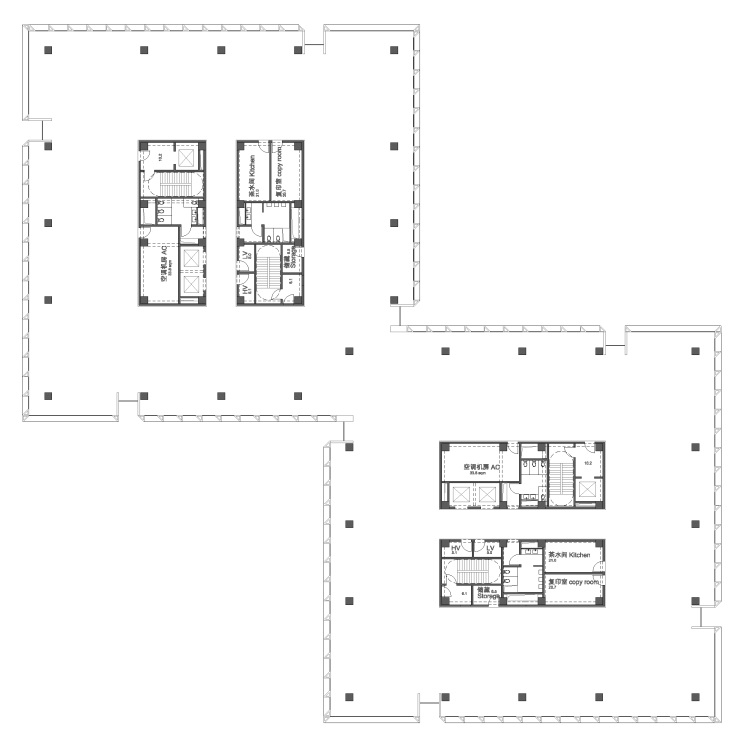
▲ 标准层平面图 1
▲ 一层平面图 2
▲ 标准层平面图 2
▲ 东立面图 1
▲ 南立面图 1
▲ 东立面图 2
▲ 南立面图 2
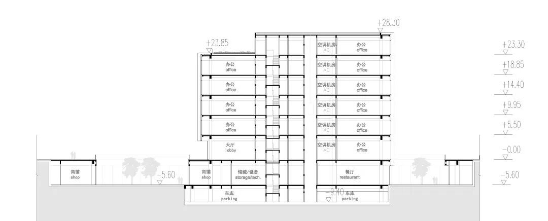
▲ 剖面图
▲ 剖面图
- END -
欢迎加入
办公建筑设计(交流群)BB

群满员后,可以联系
微信:bangong86
推荐一个
专业的地产+建筑平台
每天都有新内容
扫描二维码关注

微信公众号“搜建筑”(ID:sjz9999)
合作、宣传、投稿
请加小编微信:soujianzhu006

