▲ 更多精彩,点击上面“搜建筑” 关注即可

2007年,当我们开始与滑铁卢排名第一的建筑学院合作时,教员们正努力在现有的过时设施中适应前所未有的增长和创新的新项目。由于校园环路内缺乏可用的空间和可建造场地,这一问题更加严重。
When we began working with Waterloo’s top ranked engineering school in 2007, the faculty was struggling to accommodate unprecedented growth and innovative new programs within their existing inventory of outdated facilities. This problem was compounded by the lack of available swing space and buildable sites within the confines of the campus ring road.

采用总体规划的方法,我们与客户合作开发了一个新的建筑区域,将一个未充分利用的周边场地转变为一个充满活力的学术社区,它是一个引人注目的进入大学的新入口。
建筑5和7建筑在过去的十年中作为独立的阶段执行,为跨学科的建筑研究提供了两个高度灵活的空间,旁边是一个引人注目的中庭,为庆祝滑铁卢独特的文化提供了空间。E5和7以其大胆的几何形状和独特的熔块玻璃立面,确立了这个领先机构的建筑特色。
Taking a master plan approach, we worked with the client to develop a new engineering precinct, transforming an underutilized perimeter site into a vibrant academic community with a striking new entry portal to the university. Executed as separate phases over a decade, the Engineering 5 and 7 buildings provide two highly flexible containers for interdisciplinary engineering research and study that flank a dramatic central atrium that offers space for celebrating Waterloo’s unique culture. With their bold geometry and distinctive fritted glass facades, E5 and 7 establish the architectural identity for this leading institution.


E5和7的架构是创造和吸引人才的工具,学校的故事不断展开。该综合体是围绕着行人运动和连接游客、教师和学生的原则设计的。
这始于连接E5和7回主校区的引人注目的曲线桥,让人员能够在区域轻轨轨道上走动。通过透明、多层俯瞰和动态特征楼梯,激发了运动和好奇心,并不断展示教师和学生的工作。
The architecture of E5 and 7 works as an instrument for inspiration and recruitment, where the story of the school is constantly unfolding. The complex is designed around principles of pedestrian movement and connectivity for visitors, faculty, and students. This begins with the dramatic curvilinear bridge that connects E5 and 7 back to the main campus, enabling movement of projects and people over the regional LRT tracks. Through transparency, multi-storey overlooks and dynamic feature stairs, movement and curiosity are triggered, and the work of the faculty and students is constantly on display.

建筑5标志着滑铁卢建筑项目转型的开始。建筑是一个超灵活的“日光工厂”,教学空间和设计工作室俯瞰着Sedra设计中心的学生工作室。
在这个高海湾空间里,本科生组成跨学科团队,进行多年的项目研究。作为校园环路建筑的新面貌,E5的设计特别突出了学生设计中心,让学生发挥创意,并亲身体验滑铁卢建筑的新形象。
Engineering 5 marked the beginning of the transformation of Waterloo’s engineering program. The building is a hyper-flexible ‘daylight factory’ where instructional space and design studios overlook student work-bays of the Sedra Design Center. In this high bay space, undergraduate students work in interdisciplinary teams on multi-year projects. As the new face of Engineering to the campus ring road, the design of E5 gives special prominence to the Student Design Centre making student creativity and hands-on learning the new image of Engineering at Waterloo.


建筑7是连接学生和更广泛的商业社区的几个空间的家园。建筑理念诊所连接学生和教师早期经验和实践学习基于现实世界的问题。
RoboHub是一个最先进的1000米的测试设施,拥有先进的室内定位系统、可移动的环境特征,以及一支全球独一无二的类人机器人、空中、地面和磁悬浮机器人队伍。康拉德建筑创业中心提供建筑和商业的联合课程,作为一个跨学科的研究平台,围绕着创业计划展开。
Engineering 7 is home to several spaces that link students to the wider business community. The Engineering IDEAs Clinic connects students and faculty in early experiential and hands-on learning based on real-world problems. The RoboHub, a state-of-the-art 1000 m³ robotics test facility, features an advanced indoor positioning system, movable environmental features, and a globally unique fleet of humanoid, aerial, ground, and magnetically levitated robots. The Conrad Centre for Engineering Entrepreneurship offers joint programs in engineering and business, serving as a platform for interdisciplinary research that converges around entrepreneurial initiatives.


E7和E5的外立面清晰地表达了不同的空间类别。公共空间的特点是高度透明的低铁玻璃,突出学生的活动。实验室和办公室的模块化、适应性强的空间覆盖着烧结玻璃表皮,模仿建筑消声室的金字塔形体量。
多孔的立面作为虚拟的“面具”,在各种空间条件下创建统一的外观。立面对光线的作用反应灵敏,从白天雕塑般的不朽形象微妙地转变为黄昏时的非物质化的面纱。
The exterior facades of E7 and E5 clearly articulate diverse categories of space. Public spaces feature a highly transparent low iron glass that highlights student activity. Modular, adaptable spaces for labs and offices are clad in a fritted glass skin that emulates the pyramidal volumetrics of the building’s anechoic chamber. The fritted façade acts as virtual ‘mask’ that creates a uniform appearance across a variety of spatial conditions. Highly responsive to the play of light, the facade transforms subtly from an expression of sculpted monumentality by day to a dematerialized veil at dusk.


建筑5和7之间的中庭为活动和滑铁卢建筑文化的庆祝创造了一个主要的空间。中庭作为连接新校园区域的公共领域,提供四个主要方向的朝向。
作为校园中最大的封闭空间之一,中庭为本科生的终极项目提供了戏剧性的背景,作为大学功能的标志性空间,并作为滑铁卢的全球网络可以汇聚、启动和庆祝的中心。





1层平面图

2层平面图

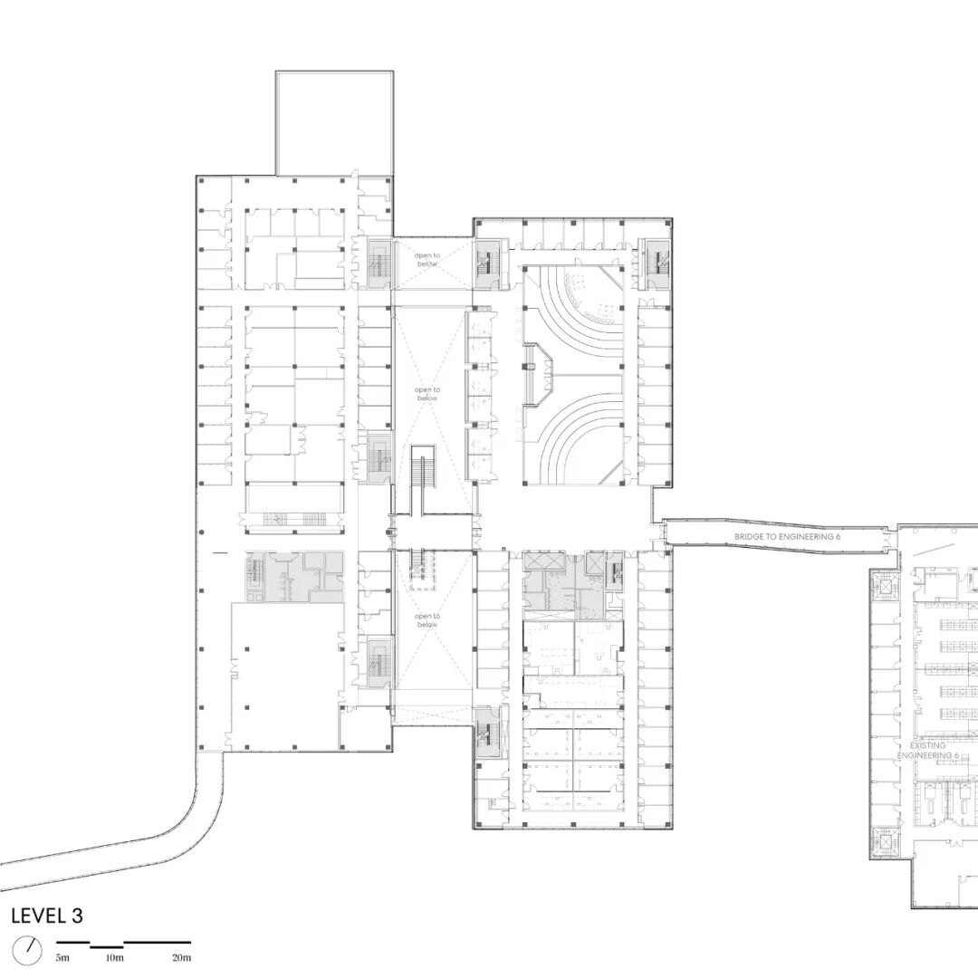
3层平面图

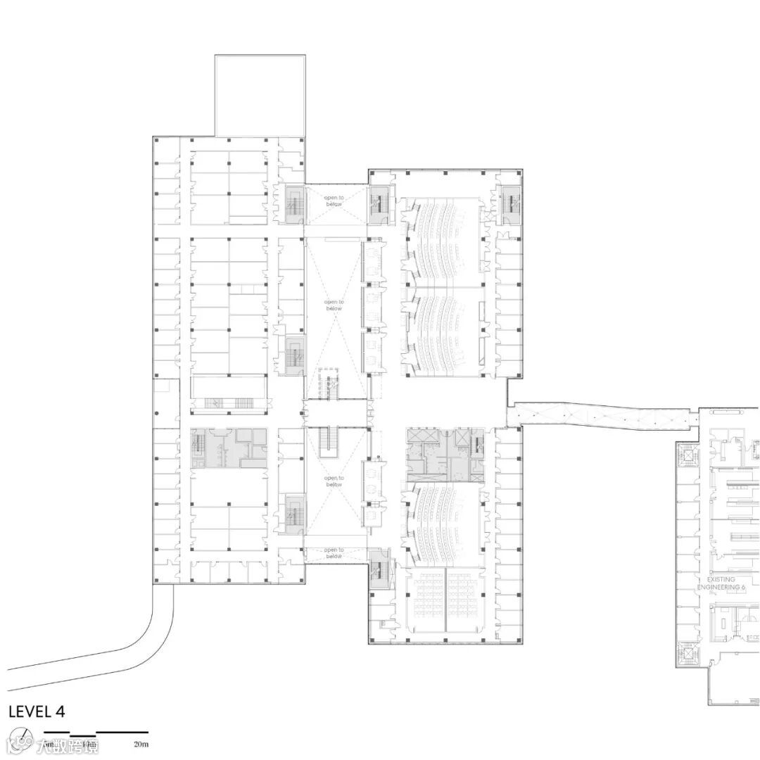
4层平面图

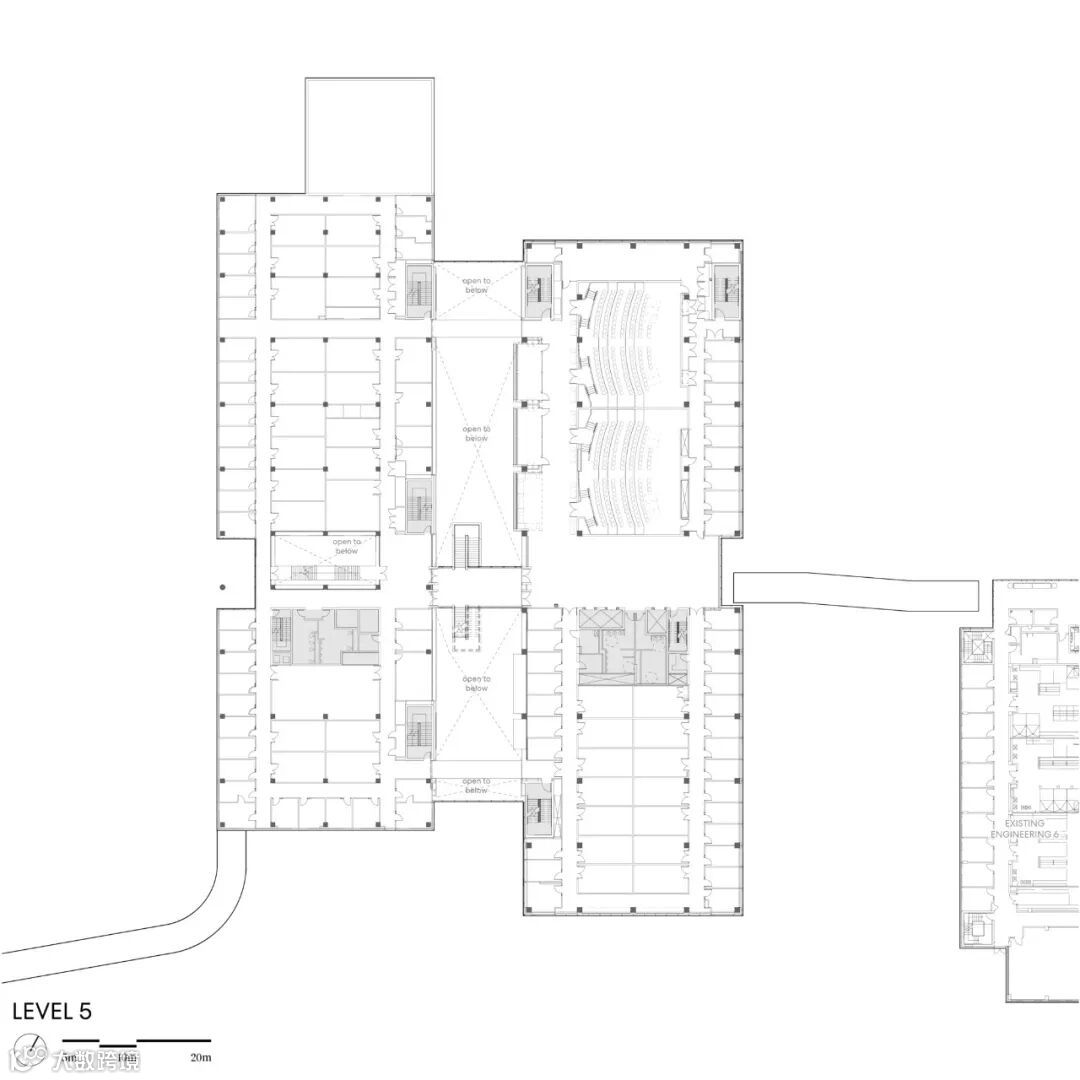
5层平面图

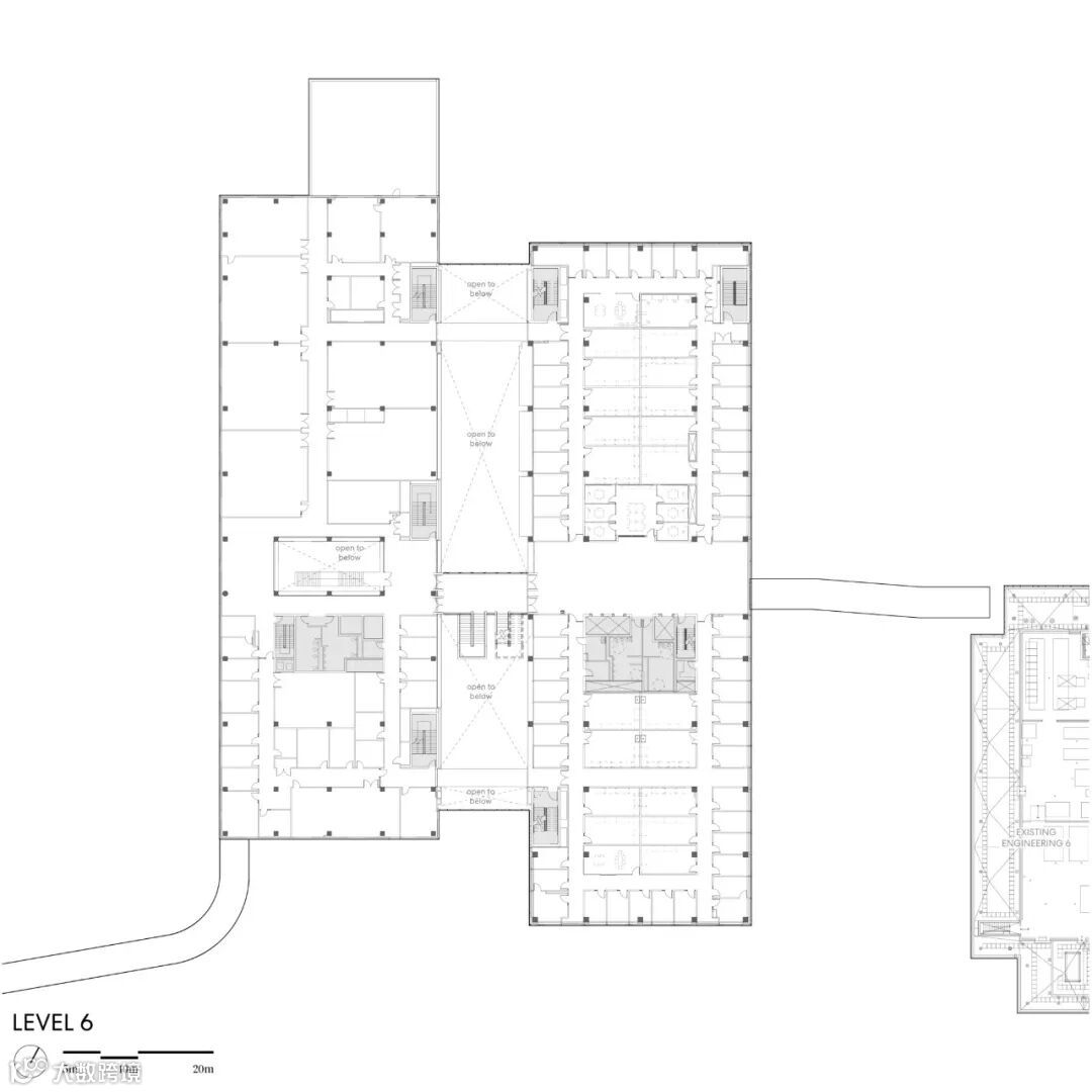
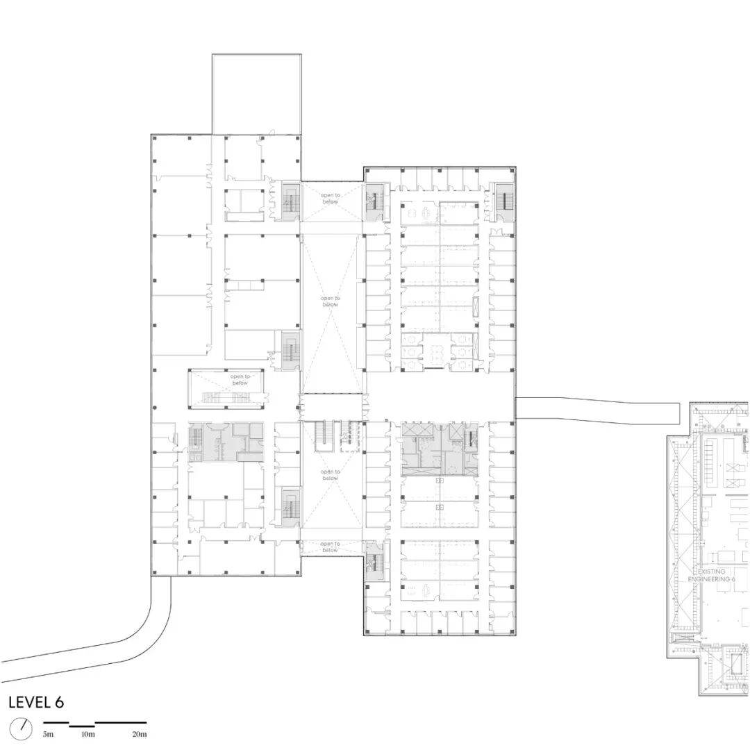
6层平面图

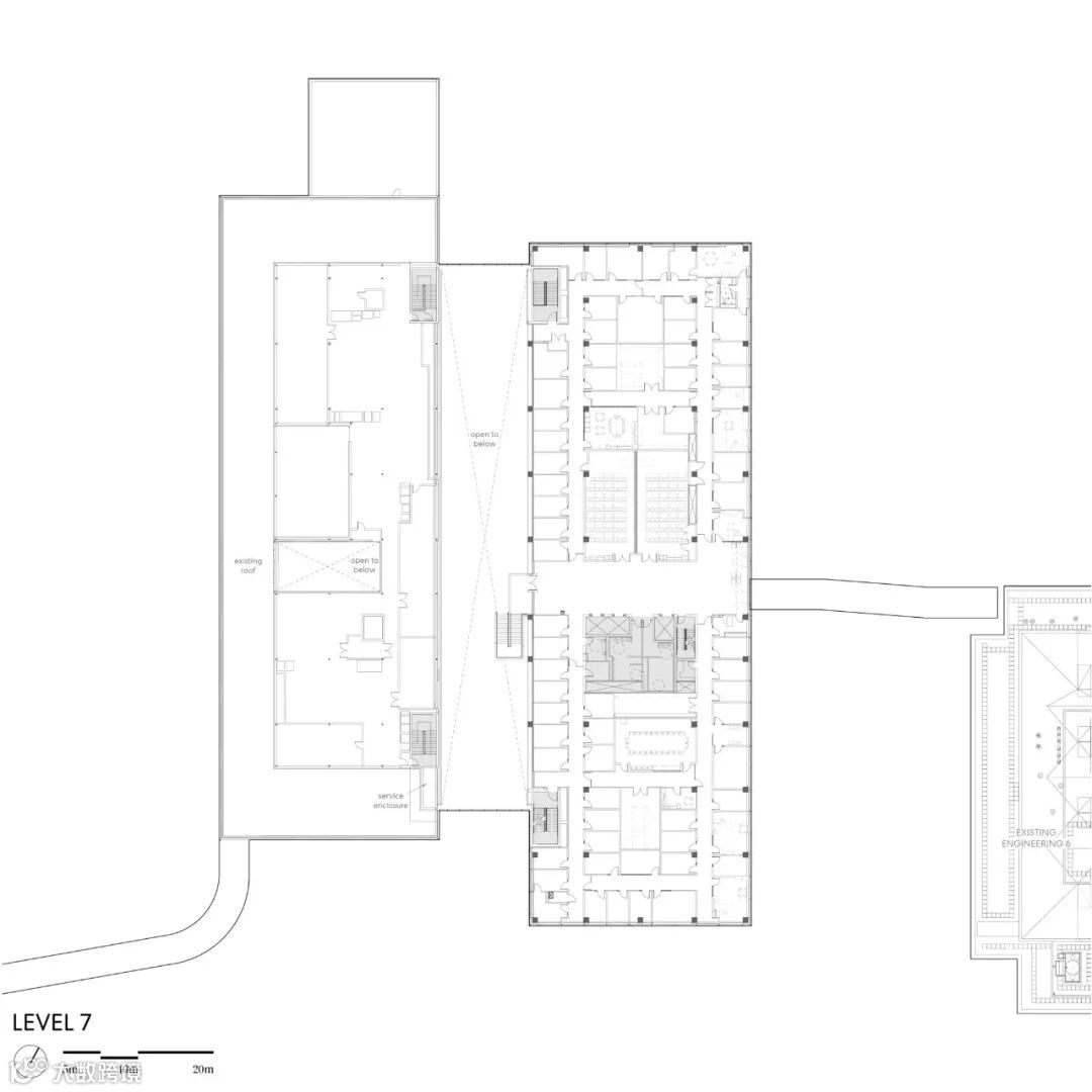
7层平面图

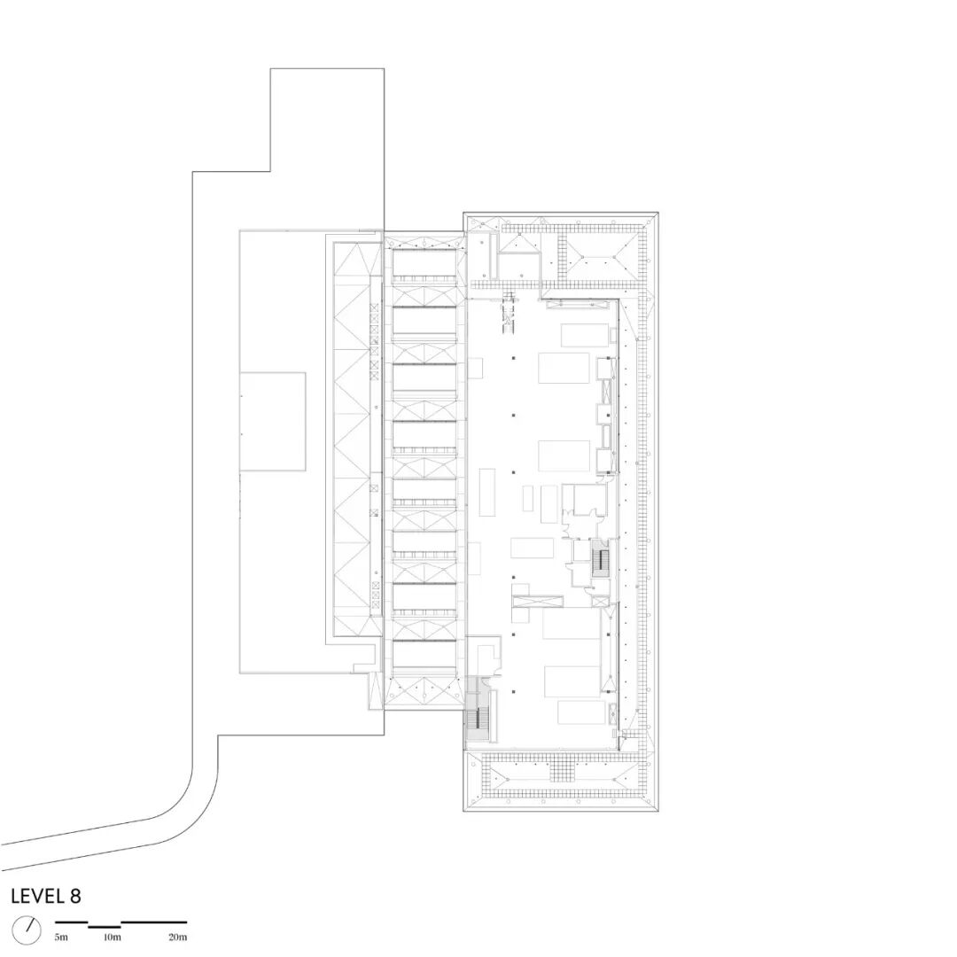
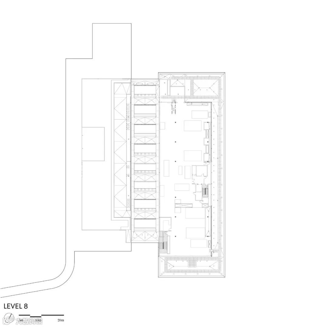
8层平面图

剖面图

立面图



建筑师:Perkins&Will
地点:加拿大
面积:425000平方英尺
年份:2018
推荐一个
专业的地产+建筑平台
每天都有新内容
扫描二维码关注

微信公众号“搜建筑”(ID:sjz9999)
合作、宣传、投稿
请加小编微信:soujianzhu006

