▲ 更多精彩,点击上面“搜建筑” 关注即可

panko - niederschonhausen是柏林的一个社区,其特点是开放的城市结构,大型的绿色私人花园,街道上种植着高大的树木。
随着时间的推移,原本计划的封闭密集的城市街区并没有在整个区域实现,但仍然可以在其边缘找到。
相反,该地区被城市别墅、半独立式住宅和独户住宅的非正式发展所主导,这可以被描述为“城市郊区”。
在德意志民主共和国时期,许多国家的大使馆在那里建立起来,这导致了住宅和公共功能之间的微妙平衡。以前的大使馆都是采用现代风格设计的,都坐落在宽敞的地块上,周围有公园般的花园。德国统一后,潘科的大使馆大楼就不再需要了,因此一直空着。
Pankow-Niederschönhausen is a neighbourhood in Berlin characterised by an open urban structure, large and green private gardens, and streets planted with big powerful trees. The originally intended closed and dense urban blocks haven‘t been achieved in the entire area over time, but are still to be found on its edges. Instead, the neighbourhood is dominated by an informal development of urban villas, semi-detached, and single-family houses which could be described as “urban suburb”. Embassies of many countries were erected there during the GDR era, which resulted in a delicate balance between residential and public functions. The former embassies, designed in a late modern style, stand all on spacious plots of land with park-like gardens. The embassy buildings in Pankow were no longer needed after the German reunification and as a result, remained empty.


柏林巴德学院(Bard College Berlin)是一所德美人文和社会科学大学,起源于Annandale(纽约州),自2003年起,其柏林分校就在这一城市规划背景下运营。
在德国统一后,学院并没有为此目的建立一个单独的校园,而是获得了一些空使馆建筑和吸收了现有的住宅建筑的背景。由于可用的建筑相对较小,这种一体化的方法在城市地区乍一看似乎有些不切实际。


然而,建筑之间的距离很小的情况允许一个良好的重组。与大使馆过去的情况类似,学生的活动也逐渐融入了社区。学院融入了开放的城市结构和柏林潘科的人口,创造了这样一个新的校园模式。
新的Henry Koerner Hall建筑遵循了这种缓慢融合的逻辑,并与它的大小和周围松散的发展相联系。为了不被认为是一个完整的整体,建筑有一个渐变的体量。它的现代主义建筑试图与前民主德国大使馆的建筑联系起来。
住宅建筑与沿街立面相结合,刻意打破了该地区的世俗和非正式环境,也强调了学院的开放特征。
Nevertheless, the situation with small distances between the buildings allows a good reorganisation. Similar to how it used to be with the embassies, the activities of the students are gradually being incorporated within the neighbourhood. The College blends in the open urban structure as well as in the population of Berlin Pankow and creates as such a new campus model. The new Henry Koerner Hall building follows this logic of slow blending and connects with its size to the surrounding loose development. The building has for this purpose a graduated volumetric in order not to be perceived as a whole in its full length. Its modernist architecture tries deliberately to connect with the architecture of the former GDR embassies. The architecture of housing is combined with a facade along the street that deliberately breaks through the somewhat mundane and informal context of the area, as well as underlines the open character of the College.

巴德学院的食堂位于大厅的南面,原来是大使馆大楼。这两座建筑是一个整体。这两个属性之间有着紧密的联系,在它们中间创造了一个吸引人的小公园,居民可以在公园里野餐、学习小组和其他户外活动。
The canteen of the Bard College is situated in a former embassy building, south of the Hall. Both buildings form an ensemble. These two properties are strongly connected to each other, creating in their midst an attractive small park, which can be used by the residents for picnics, learning groups and any other outside activities.

学生公寓。对于公寓来说,问题始终是:如何赋予每一套公寓独特的个性。两层楼高的空空间非常适合,因为它们给居民一种生活在独户住宅中的感觉。
住宅单位的合理面积问题总是与学生的住房有关。住在一起的学生群体应该有多大,才能对厨房和浴室等共享空间产生一种社区意识和责任感?
Student apartments as maisonettes. The question is always with flats: how to give each apartment an individual and distinctive character. Maisonettes with two-storeys high void spaces are extremely suitable for that, as they give the residents a feeling of living in a single-family house. The question of which size is sensible for a residential unit rises always with students' housing. How big should be the group of students living together in order to create a sense of community and responsibility towards the shared spaces such as the kitchen and bathrooms?


在Henry Koerner Hall案例中,一个重要的话题是建筑的长期灵活性和可转换性。巴德学院认为,重要的是,这些公寓可以供家庭使用,或最终出售。
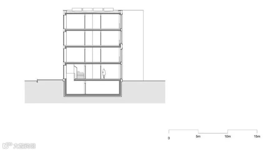
Henry Koerner Hall的住宅单元的大小是由它们被设计成可以容纳6名学生的小公寓来决定的。在长长的主酒吧,所有的公寓都有一个宽敞的两层楼高的空间。每两套公寓都是一层一层的。
低层建筑可以通过建筑背面的小路从外面直接进入,而上层建筑可以通过位于后面的走廊到达。这种组合创造了一种类型变异:你从外面直接进入较低的公寓,进入客厅,通过室内楼梯到达一楼的卧室。在上层公寓,你从顶层进入,通过内部楼梯到达楼下的客厅。
An important topic in the case of Henry Koerner Hall is the flexibility and transformability of the building in the long term. Bard College finds it important that the flats can be used by families or been sold as such eventually. The size of the residential units of the Henry Koerner Hall has been determined by the fact that they’re conceived as maisonettes meant for up to six students each. In the long main bar, all apartments have a spacious two-storeys high void space. Every two apartments are stacked on top of each other. The lower ones are directly accessible from outside through a path on the back of the property, whereas the upper ones can be reached by a gallery also situated at the back. This combination creates a typological variation: you enter the lower flats directly from outside stepping in the living room and reach the bedrooms on the first floor via inside stairs. In the upper maisonettes, you get in on the top floor and reach the living room downstairs through the internal staircase.


在这两种情况下,可以从楼梯看到两层的空间,楼梯在视觉上连接到客厅,创造了一个强大的视觉线条的空间特征。
所有的客厅都有一个开放式厨房。在后面的小体量中,你会发现每一层都有一套公寓,两层都有一套大公寓,没有两层高的空间。
大窗户在视觉上极大地扩展了室内空间,并给它们一个广阔的空间,积极地反映了小学生房间。在它的顶部,矗立在建筑的正面和背面的壮丽的树木被大窗户框住,成为内部的一部分。
In both cases, the two-storeys high void spaces can be seen from the staircase which is visually connected to the living room, creating a strong spatial identity with powerful sightlines. All living rooms have an open kitchen. In the smaller volumes, set back at the rear, you will find one apartment on each lower floor and a large maisonette flat on the two upper floors without two-storeys high void space. The large windows expand the interiors greatly visually and give them an expansive space that reflects positively on the small student rooms. On top of that, the glorious trees which stand both on the front and the backside of the building, are framed by the large windows and become part of the interior.







区位图

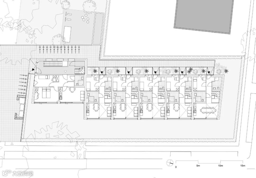
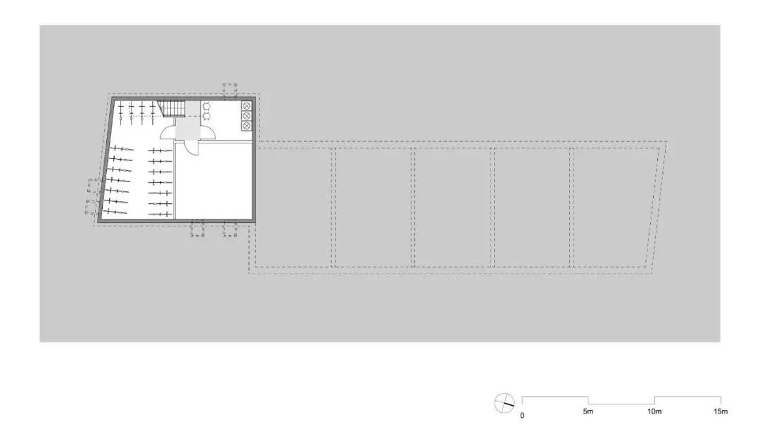
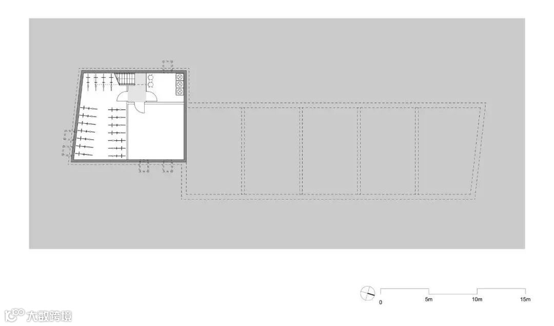
平面图






立面图




剖面图




建筑师:Kempe Thill工作室
地点:德国,柏林
面积:1803 m²
年份:2020
推荐一个
专业的地产+建筑平台
每天都有新内容
扫描二维码关注

微信公众号“搜建筑”(ID:sjz9999)
合作、宣传、投稿
请加小编微信:soujianzhu006


