MID新作 | 美好·合肥云谷路壹号
在人们的印象中,混凝土是一种灰冷、僵硬、粗糙的材料,然而从混凝土中脱胎而来的清水混凝土完全是一种极具想象力的装饰材料,它是混凝土材料中最高级的表达形式,它显示的是一种最本质的美感,体现的是“素面朝天”的品位。
—— 安藤忠雄
01

PROJECT OVERVIEW
项目概述
中国 安徽 合肥
Anhui-Hefei, China
合肥地处中国华东地区、安徽中部、江淮之间、环抱巢湖。是长三角城市群副中心,综合性国家科学中心,“一带一路”和长江经济带战略双节点城市,合肥都市圈中心城市,皖江城市带核心城市 ,G60科创走廊中心城市。
▼项目坐标

02
EXPERIENCE DEMONSTRATION
体验示范区
设计师想创造令人们感动的空间,
不论是幢房屋、一座体验中心或者任何物件都好。
像是坐在草地上任由思绪游走一般,感受真正的快乐。
美好置业云谷路壹号体验中心矗立于合肥肥西。建筑面积约为400平方米,建筑将传统中式四合院围合形式以现代实用主义手法进行设计,景观则融入了园林移步换景的设计思路,蜿蜒曲折,别具一番趣味。
▼景观建筑视觉效果


▼景观建筑场景



03
THE SITE LOG
现场日志

04
DESIGN CONCEPT
设计观
工业极简风
真实是令人感动的,令人感动的空间不在于体量大小的问题,而是里面是否有人性的力量,有冒险的力量。在本次体验中心的设计中,装饰及功能的关系一直是设计师在思考的。好的设计究竟应该长什么样子,是金碧辉煌,还是造型奇特吸引眼球....... 其实真实的设计才是最感人的设计,有感情的设计才是最能打动人心的设计。
▼设计意向

05
LOBBY
前厅
运用“光”与“影”,使室内具有灵魂。使光线进入室内产生折射,带来柔和、舒适的光线以及无限的光影情趣。建筑上高窗的处理,在不同时段展示了不同的的光照变化,并结合金属、玻璃等材料再次产生奇妙效应,以传达对自然的尊重和膜拜。

光线是重要的控制情绪因子,前厅空间透过高窗及玻璃幕墙将室外光线柔和的引入室内,有光线照来时,人们心境是最为放松的。为破除混凝土的刚硬冰冷感,前厅空间大面积采用阿玛尼灰清水混凝土,给人以柔软、温暖的感官体验。软装搭配的挂画意将大自然融入整个钢筋混凝土世界中,孕育出不一样的色彩,像一位母亲看着自己的孩子茁壮成长一般,细腻而温润的生根发芽。
06
VIDEO
影音
穿过前厅、经过蜿蜒曲折的外部景观过廊,而后可进入密闭的极简影音空间。墙面规则的布置着圆孔,整体的细节上减少了混凝土的单调、冰冷感,极大地改变了混凝土的外观,清水混凝土显示出丝绸般的柔美质感,完全打破了人们印象中混凝土的粗野形象,使人们重新认识到了混凝土的无穷魅力。


07
DISCUSSION
洽谈
清水混凝土的室内延用,可以使建筑更简明、纯粹。选材时无论是色差的变化,还是表面的肌理或是光泽度的百分比处理都做了很多新的探索与尝试。如同清风吹过般的艺术吊灯,随着曲线蜿蜒出自然的纹理。搭配着清水混凝土的墙面,营造出自然感性的空间氛围。





设计通过细节呈现出精致、简约的生活美学。不论是条纹的陶瓷花瓶或是流线性极强的艺术挂画,都与线条感十足的软装吊灯相呼应,每个物件相融于一体而却又各自独立成景。

08
SAND
沙盘
现代简洁的线条,夜幕下,呈现出静谧的意境。沙盘、洽谈空间大面积的落地窗设计,自然而开放的建筑格调,演绎时尚范十足的前卫精神。

09
WATER BAR
水吧
阳光穿过落地窗,光影洒落在室内,有种安静的禅思,搭配错落有致的庭院设计,现代而富有自然气息。



▼营销休息

▼卫生间

本次设计由MID提供软硬装一体化设计服务
10
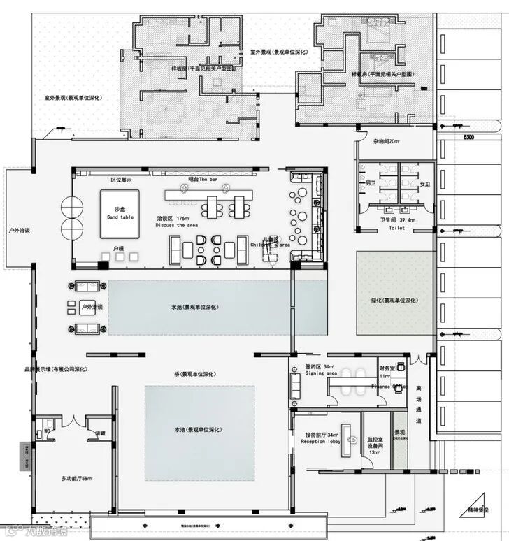
SAND AREA
空间规划
▼体验中心

▼前厅视觉效果

▼沙盘、水吧、接待休闲视觉效果


MID是涵冰旗下的设计品牌,定义地产产品研发设计与实践的专业设计机构。团队具多年的人居生活方式与环境的探索研究与设计实践。
MID涵盖住宅、酒店、办公、商业、城市更新领域的研发与室内设计,致力于为人居环境提供最专业的产品研发与设计服务。
品牌地产 | 精品楼盘考察活动 | 郑州
本次楼盘考察活动的时间为
11月26日- 27日两天


微信公众号“搜建筑”(ID:sjz9999)
合作、宣传、投稿
请加小编微信:soujianzhu006

