▲ 更多精彩,点击上面“搜建筑” 关注即可

Paul Meurice残疾人之家的设计面临这样一个问题,即如何在保持亲密关系和对外开放之间取得平衡。我们小心地通过可以广泛使用的空间和各种建筑造型作出响应。
The Paul Meurice home for disabled adults poses the question of the balance between mastering intimacy and opening to the outside world. We respond carefully through spaces that can be widely appropriated and a variety of architectural situations.

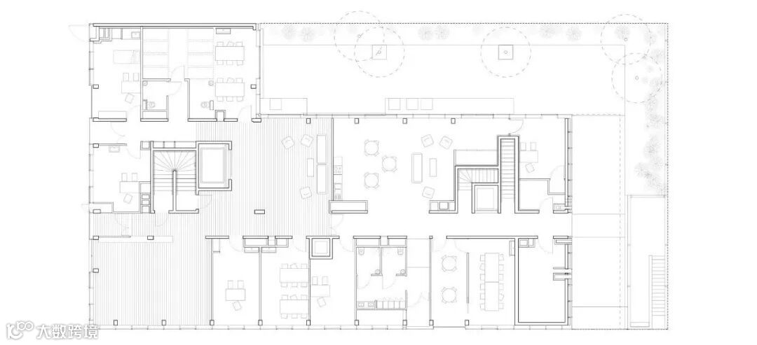
我们想象了一个朝南的阶梯式建筑,让光线进入内院,其体量延伸、后退,并在交错的窗户网格中产生滑动变化。外立面向城市慷慨地开放,通过公寓的大户型窗户和公共区域的大城市窗户。
空间的慷慨依赖于公共区域的可读性和连续性。由其阶梯式的体量引起的建筑的连续层次被设计成 "露天房间":被外墙包围的露台,使居民可以享受户外空间而没有坠落的危险。最后一层通向一个巨大的、全景式的集体露台。
We have imagined a south-facing, stepped building that allows light into the inner courtyard and whose volumes stretch out, recede, and produce sliding variations in the grid of staggered windows. The facades open generously out towards the city, through large domestic windows for the apartments, and large urban windows for the common areas. The generosity of the spaces relies upon the legibility and continuity of the common areas. The successive tiers of the building, induced by its stepped volume, were designed as “open-air rooms”: terraces surrounded by facades so that residents can enjoy outdoor spaces without the risk of falling. The final level opens onto a vast, panoramic collective terrace.

建筑围绕两个流通核心组织,主要核心位于北部,次要核心位于南部。这种功能安排既响应安全约束,也响应使用灵活性的需要。
大型入口大厅和日间接待中心位于一楼,可通往花园,而一楼设有餐厅、供居民活动的房间和专门用于管理的空间。
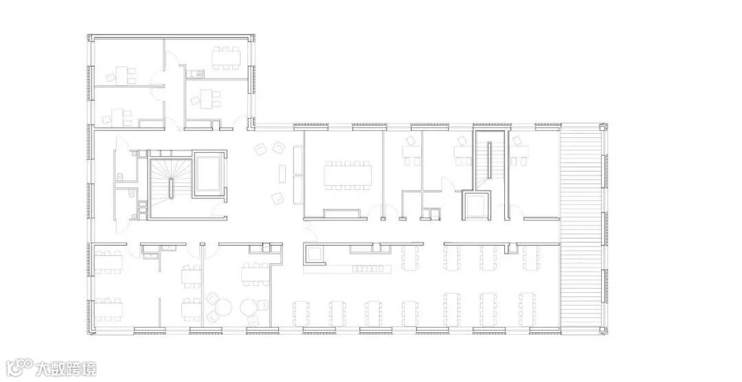
The building is organized around two circulation cores, the primary core is situated in the north and a secondary, in the south. This functional arrangement responds as much to a need for flexibility of use as to security constraints. A large entrance hall and the day reception centre are located on the ground floor, with access to the garden, while the first floor hosts a restaurant, rooms for activities offered to residents, and spaces dedicated to administration.


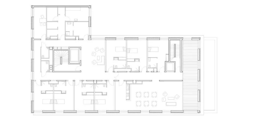
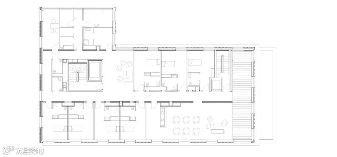
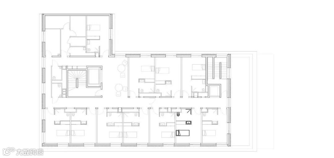
住宿单元分为两层,分别位于第二层和第三层,第四层和第五层。没有公寓是单向北的,服务设施是背靠背安装在东北的毗邻建筑。
该结构在立面和交通核心之间承重,便于修改内部划分。一个大型电梯,就像一个移动的房间,通过通向每层的客厅连接整个项目。
The accommodation units form groups of two levels situated on the second and third floors and on the fourth and fifth floors. No apartment is mono-oriented north and the services are installed back-to-back with the adjoining building to the North-East. The structure is load-bearing between the facade and the circulation cores, which facilitates the modification of interior divisions. A large elevator, like a moving room, connects the entire program by opening onto a living room on each floor.

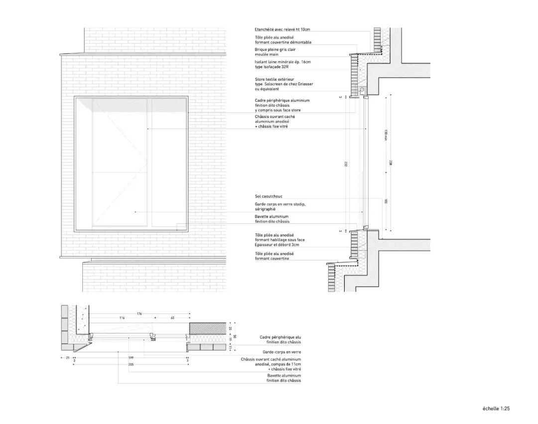
材料的选择有助于营造该中心的家庭氛围。建筑围护结构由外部隔热的混凝土墙体和实心砖组成,特别高效和坚固。
铝制窗户具有耐腐蚀的特性,阳极氧化的颜色与灰色的砖块相协调。集成在窗框中的玻璃护栏允许在整个窗户高度上安装外部纺织百叶窗。内部的透明窗帘使窗户的设计更加完美。



区位图

平面图

1层平面图

3层平面图

4层平面图

5层平面图

立面图

细部图

轴测图


建筑师:兰伯特-莱纳克(Lambert Lénak)
地点:法国
面积:2990 m²
年份:2020
新时期·产品方向
品牌地产 | 精品楼盘考察活动
12月·重庆站
推荐一个
专业的地产+建筑平台
每天都有新内容
扫描二维码关注

微信公众号“搜建筑”(ID:sjz9999)
合作、宣传、投稿
请加小编微信:soujianzhu006


