

EMILIANO ZAPATA是一个六层的住宅项目,有25个单元,位于Eje 7“a”Sur EMILIANO ZAPATA General,位于墨西哥城的中心街区。


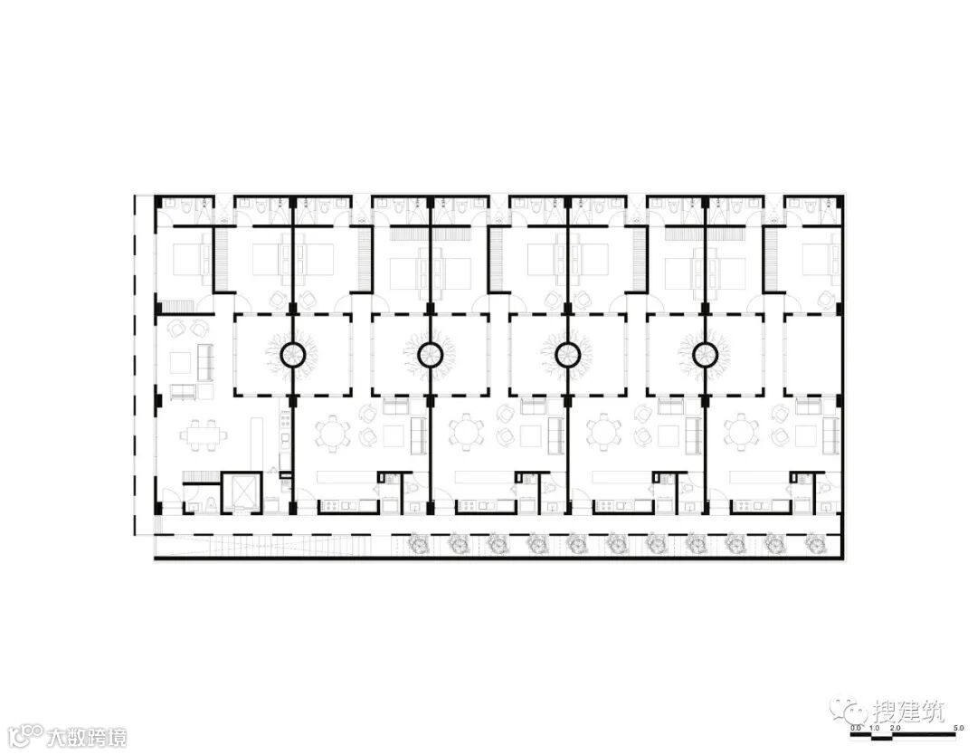
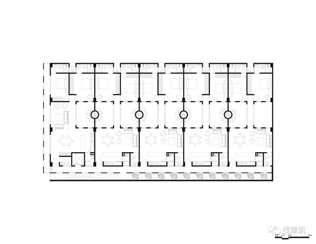
该项目设计了25套面积在82到91平方米之间的公寓,内部由5个中央天井划分。在每个公寓中,每个庭院都将公共区域和私人区域分开。这些区域由由砖格限定的梁连接,有助于为每个单元提供隐私和通风。
The project proposes 25 apartments between 82 and 91sqm, which are divided internally through 5 central patios. Each patio separates the common area from the private area in each apartment. These areas are connected by bridges confined by a brick lattice that helps to give privacy and ventilation to each unit.


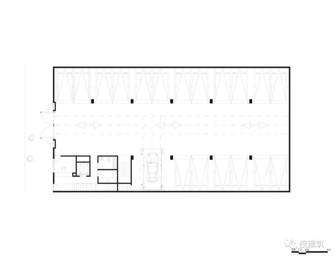
该建筑的功能是作为一个单一的塔,有一个单一的电梯核心和一个紧急楼梯飞在整个东立面。每一层容纳五个公寓,通过一个开放的走廊进入。
建筑的一楼有一个大厅,位于+/- 0.00m的水平,直接连接到垂直循环核心。所有的居住空间都有通风和自然采光。屋顶为四、五层公寓配备10个私人屋顶花园。
The building functions as a single tower, having a single elevator core and an emergency staircase that flies along the entire eastern facade. Each level accommodates five apartments, which are accessed through an open corridor. The building has a lobby on the ground floor located at level +/- 0.00m, which is directly connected to the vertical circulation core. All living spaces have ventilation and natural lighting. The roof is equipped with 10 private roofgardens for the apartments of the fourth and fifth level.


为了满足城市20%的自由空间要求,在建筑的中心设置了五个天井。在每个露台上,都种了一棵枫香树,有助于保护隐私,并为每套公寓提供更好的视野。
另一方面,在东侧,建筑与周围的房屋分离,创造了一个长长的庭院。
To comply the 20% of free area that the city requires, five patios are accommodated at the center of the building. In each patio, a liquidambar tree was planted helping give privacy and better views to each apartment. On the other hand, on the east side, the building is separated from the surrounding houses, creating a long access courtyard.


整个建筑采用了砖块、火山石和木材等自然耐用的材料。拟议中的植被是当地特有的,几乎不需要维护。
The whole building was designed with natural and durable materials such as brick, volcanic stone and wood. The proposed vegetation is endemic and requires little maintenance.


我们实现了一个所有单元都具有良好的隐私性、照明和隔音,甚至紧邻墨西哥城一条非常繁忙的大道的项目。
With this project we achieve that all the units have good privacy, lighting and acoustic insulation, even being next to a very busy avenue in Mexico City.













平面图



剖面图


建筑师:HGR Arquitectos
地点:墨西哥
面积:3504 m²
年份:2017
推荐一个
专业的地产+建筑平台
每天都有新内容
扫描二维码关注

微信公众号“搜建筑”(ID:sjz9999)
合作、宣传、投稿
请加小编微信:soujianzhu006


