▲ 更多精彩,点击上面“搜建筑” 关注即可
随着人居需求的升级换代,人们对住房的需求已经从“居者有其屋”过渡到了“居者优其屋”的阶段。住宅户型也随之不断革新升级,来满足居者多元化需求和最新人居理念。
大户型空间宽敞、明亮,可以配置更多功能区,还具备更多布局设计。
为了提升入户空间的私密感,一些产品会通过独梯或者类一梯一户的入户设计来增加业主居家的私密性,避免邻里间进出的干扰。

建面约140㎡三居
而且,管井设计于电梯厅外,检修人员不必进入业主门前区域活动,私密性更强。
电梯对面,有约2.2米宽的墙面可做玄关柜,旁边可以再放婴儿车、购物车、行李箱等,脏污彻底被隔绝在室外。
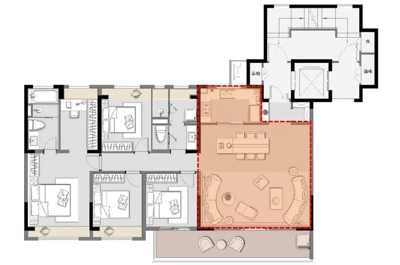
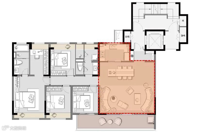
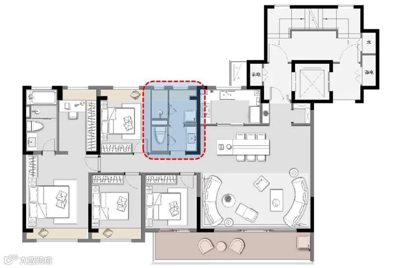
沈阳金地峯汇户型采用电梯厅+入户玄关设计,居住品位感十足。
沈阳金地峯汇190㎡,图源:克而瑞产品测评
户型中,玄关的设计重要度还相对比较高的。玄关要实现的功能除了优化入户动线、保护隐私以外,增加收纳空间也是很重要的一点。

泰禾·东府大院样板间实景图
双玄关入户的设计非常贴近生活:主人购物归来,可拎着东西拐进家政间,穿过厨房,放下家政用品、米面粮油后,回到餐厅;客人来访,可直接进入客厅。
开敞的室内,又形成多条洄游动线,将各个功能空间串联在一起,多个出口可以帮业主找到最短路径,更让家变得有趣,提高家人的互动性。
如保利云禧这款户型分配了很大的面积给到玄关使用,打造出双玄关。

进门后,迎面是一堵墙,左拐进入客厅、南向次卧,那是礼仪玄关;右拐进入独立家政间,再进入厨房、绕回餐厅,那是家政玄关。
保利云禧建筑面积约143㎡样板间实景图
如此,就构成了一条入户的十字洄游动线。访客可走左侧直接进入客厅,主人购物回家则右拐进入家政间、厨房,放下买回的东西,再转回餐厅。
财信河西府建筑面积约125㎡三居户型入户就形成一条十字洄游动线:

融创华中在135+创新户型厨房的旁边设计了一个次净储藏间,以增加生活的便利。比如,而当前疫情下,外出购买的生活物资,取回的快递、外出的防护服可以放在次净储藏间做消毒处理,避免对生活区产生影响。
平时归家双流线(左)、疫情期间消毒(右),图源:融创华中
随着生活压力不断加大,作息不同,家人之间的交流越来越少,人们渴望家人之间的互动、情感交流,因而巨厅、社交厨房、X空间等多场景的空间诞生。
巨厅概念最早提出的是旭辉等标杆房企,今年旭辉的最新产品CIFI-7中,更升级了这个设计,让家的有限空间能够最大程度的释放无限精彩。
如旭辉敔山公元洋房165㎡户型亮点十足,巨厅设计,四房两厅两卫,实际面积等同于市面上高层190㎡左右的实际面积,居住舒适度可想而知。

旭辉敔山公元洋房165㎡户型
客厅面宽约6.6米,配上面宽约9.2米的三开间阳台,带来270°的空间视野,地方足够大,还可以自由布置。
示意图
无锡江阴旭辉·公元约185㎡户型打破了常规的限制,充分利用过道的面积把客厅的延展面做到夸张的程度,在约50㎡的巨厅空间里,形成了一个能够满足不同家庭成员的需求,又能够同时容纳好友欢聚的一体化空间,这是旭辉CIFI-6的设计理念的一次应用。

建面约185㎡户型装修示意图
项目实景图,软装为非交付标准
美的置业提出了社交厨房、巨厅设计、空中花园等概念,为业主创造了不同的交流居住空间。

这个180平户型,让餐厅、厨房、客厅组成了一个完整的大空间,面积达到了30多平。
此外,把超大三边环绕的景观阳台环绕巨厅,营造更多生活场景的想象空间。
旭辉在巨厅旁边,书房、厨房、阳台、玄关等都打通之外,又新增了一个“X空间”。它可以是任何主题,自己喜好的事物、没有实现的梦想,都可以放在这个空间。

融创在西南研发的建面约144㎡的户型中,设计师贴心地为儿童设计了居住和玩耍的独立空间,同时该区域在视角上有超强的通透性,可以更放心的随时观察孩子。

144平米户型图,图源:融创西南

功能空间效果图,图源:融创西南
成都的万科玖西堂就考虑到了父母与孩子的互动空间,在客厅处设立了亲子互动区。

成都的万科玖西堂
阳台是家的延伸,是离阳光最近的地方,是人与自然风景对话的平台。
市场上不少户型都做了超大超长阳台设计,将客厅和卧室的阳台打通,面积更大了,采光和景观视野会更出彩,而且也可以形成更宽阔的活动空间。

无锡江阴旭辉·公元约185㎡户型
南向面宽约13.1m的大景观阳台 实景
重庆首创·天阅嘉陵142㎡洋房户型,做了约14.8m的观景跑道阳台,活脱脱一个空中花园,不仅宽度大,进深也很不错。

建筑面积约142㎡洋房户型平面 示意图

洋房样板间 实景图
多套房设计,能弱化因家庭成员较多、生活习惯不同而造成的影响。因此,这个设计很有必要。
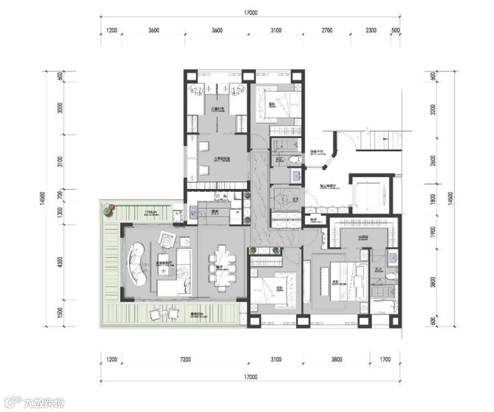
郑州瀚海·观象约240㎡户型,四室三套房+保姆房设计,全生命周期户型。双玄关空间,四开间朝南,南向约16.2米超大面宽采光,多阳台设计,双儿童套房。

郑州瀚海·观象约240㎡户型
邢台皓顺和约254㎡户型做了三套房设计,同时,为了照顾家里的子女,主卧与子女房留有连通的条件;独立的老人卧。

建面约254㎡户型平面示意图
上海卢湾滨江【廿八尊】建面约210㎡,三房两厅三卫,全明户型,南北双阳台设计,三开间朝南,全套房设计。

万科125㎡的3+1房在公卫设计了推拉门,晚上关上后次卧也是套房。

即便做不到套房,卧室也要尽量朝南,并且离卫生间比较近,不受噪音干扰。

杭州九章赋138㎡户型图

莆田联发·君领天玺142㎡
“无套房,不主卧”的理念逐渐成为大家的主流选择,主卧式套房设计可以给予主人更强的居住舒适感和安全感,怎样的主卧套房设计才能作为现代人的身心栖息地?
旭辉最新产品CIFI-7中,主卧是“全功能”的,除了以前的三分离卫生间,步入式换衣间以及小书房。
这次主卧功能进一步升级,在这个模块,特别设置了兼具超大功能收纳和自然光下化妆功能的“女神空间”。
此外,主卧还拥有270°视角。连接着进深超过2米、2层高的露台空间。

主卧露台与客厅阳台完全打通,最终形成了长超过9米、进深超过2米、2层高的空中花园。在这里喝杯咖啡、饮点红酒、看两本书、画一幅画,很有情调。

成都中铁建西派国樾230㎡户型,主卧超过30㎡,朝南的主卫双台盆、淋浴房、浴缸、马桶俱全,还配有双衣帽间,书房外可设门,关上门,就成了一个超级主卧套。

成都中铁建西派国樾230㎡
深圳龙华金茂府248㎡户型将书房放进了主卧,不仅增强卧室功能性的同时也大大提升居住空间整体舒适度和私密性。

深圳龙华金茂府248㎡
品尊国际260㎡户型无懈可击的主卧套房,面积将近60㎡,即使是KING SIZE大床+婴儿床和书桌都是绰绰有余!

万科联合五感纳德推出了全新的主卧小家:
将常见主卧横向加宽,横向增加多功能区,不仅光照更充足,而且还成就了一个百变空间,实现主卧小家化。


来源:五感纳德
适老适幼设计越来越普遍,甚至可以说是住宅设计的标配。
点击阅读:“适老化”住宅产品—— 细节设计
万科联合五感纳德,将传统儿童房横向加宽,创造出了百变儿童横房。
金科博翠系产品中,在入户玄关设计上,增加了儿童专用鞋柜,根据儿童鞋子尺寸定制专属鞋柜,方便孩子穿着与摆放。
龙湖天宸原著系列在浴室柜下方添加了一个内置式的辅助脚踏,专门给孩子洗漱的时候可以踩着,也可以用于收纳。

融创华北玄关采用带有阻尼功能的吊装轨道玻璃移门,适幼门栓,防止儿童夹手的同时实现对户型的合理分割,为家有儿童的家庭加一道安全防线。
保利的一款全生命周期的户型中,同样关注适幼化细节:
1.室内软硬装阳角与洗手台面阳角弧角处理,起到一定缓冲作用,保障儿童活动安全。
2.主卧室预留700mm婴儿床位置,方便女主人夜里照看。
3.预留充足的活动空间等待孩子的诞生,以及一定周期的成长所需空间。
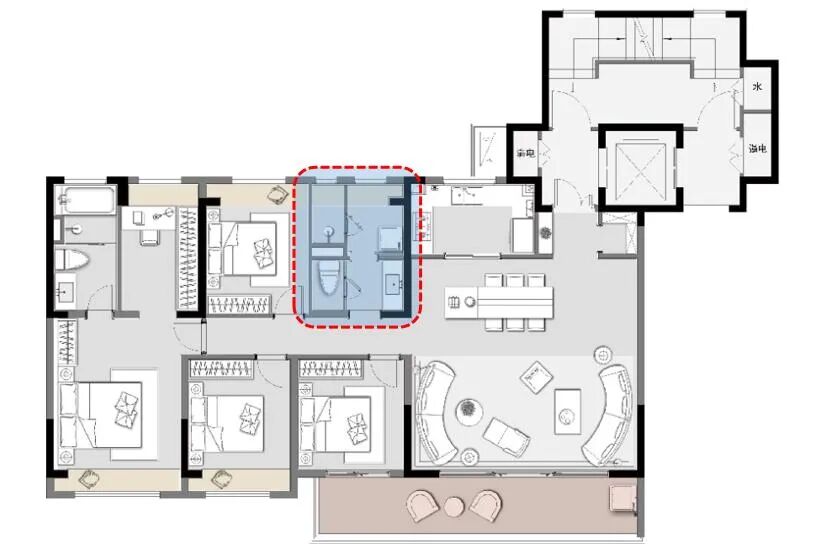
随着户型设计越来越合理化,家用面积也越来越大,结构也日趋合理,为了符合大众的需求,卫生间的设计也越来越重要。
干湿分离的卫生间,功能分区清晰,保持干湿分离,洗漱、如厕、沐浴功能独立互不干扰,实用性强。
棠玥湾洋房164㎡户型的公卫:北面是可放洗衣机、烘干机的家政区和淋浴区,南面是台盆和马桶。南北区之间增加了一道移门,这样上厕所和洗澡就不会互相干扰,提高了公卫的使用率。

杭州棠玥湾164㎡洋房户型图
旭辉敔山公元洋房165㎡户型更是做了四分离系统,将浴室、厕所、洗漱和洗衣区域进行分隔,对每个功能区都能合理分配,提高生活效率,甚至还可以腾出空间进行收纳,如此一来洗澡时的换洗衣物都有了存放之地。

做家务心太累主要是因为家务区太分散,设置一个核心家务间,将洗衣、晾晒、折叠、洗拖把、存放吸尘器等等这些动作都集中在同一个地方,家务自然就会变轻松。

集合了洗衣机、洗衣池、拖把池的家务集中区
如,中国铁建太原花语堂的独立生活阳台,就是一个独立的家政空间——洗衣、晾衣、熨衣“一体化”的工作区域,适合快节奏城市生活需求。
中国铁建太原花语堂119㎡户型
长春旭辉理想城106㎡户型最大的亮点是家政间的设计,日常生活的洗衣机、拖把、扫帚、杂物等等都可以放在这个空间,使家里看起来更整洁干净。

融创华北产品研发团队的创界F5户型,通过半分离式家政空间的设计,满足家人入户清洗、消毒的需求,同时洗衣机、烘干机等清洁用品得以在家政区合理归置,做到洁污分区、干湿分离。

图源:融创华北
世茂在玄关处设置了中转空间,与家政区结合,设有洗手池、消毒台、洗衣机、外衣紫外线消毒等,并与北阳台相连。客户在玄关柜换下干净的鞋子,脱下外套到柜子里进行紫外线消毒,把带回来的物品放到消毒台消毒后,再把手清洗干净。除此,还增加足够的空间放置没来得及处理的外部物品。

图源:世茂房地产
万科郑仁恒园和形成“玄关→家政间→厨房→餐厅→玄关”的洄游动线,从玄关到家政间清洗消毒后,直接进到厨房,无需绕行,让生活更便捷高效。

仁恒园和洄游户型
收纳是道难题。
这些年,家里的物品不仅量大了,而且形态各异,加大了收纳难度。为此,一些项目专门设计了独立的储物空间。
比如,万科就设计了“玄关800库”,打造一个步入式储物空间,满足一家人的收纳需求。下面是芜湖某项目的玄关处,集合了“收纳+艺术”双玄关设置,可以容纳90双鞋、托运箱、婴儿车等。
▲来源:芜湖万科、伟星房产
宁波万科118㎡四房,独立的储藏室,平时用不到的雨伞、帐篷、球具,都可以放在里面,也可以收纳个性化的爱好。

融创华北区域建面约140平的户型在入户门处设置了独立的储藏间,旅行箱、过季鞋品等不常用或占用空间较多的物品可以在此存放,容积达6000升,满足了全家日常收纳需求。

▲来源:融创华北区域
另设有泛玄关、独立家政间等,加上厨房、餐厅、卧室等各功能区都有收纳空间,这一户型的总收纳量达到约40073升,相当于1179个20寸拉杆箱、1.3个集装箱、62个大型SUV后备箱容量的大小。
为了实现高舒适性和低能耗的住宅,科技住宅已成为了很多购房者的标准之一。
比如大家熟悉的金茂超强产品力的科技住宅。
点击查看,【揭秘】金茂12大系统—— “震撼”的科技住宅!!
金茂12大科技系统
对于金茂的十二大科技系统,你可以不用懂这些都是什么,但金茂的科技元素提升的就是生活舒适度。
旭辉CIFI-6产品体系打造的超前智能化生活平台:人脸识别;老人、小孩的跌倒报警系统;智能油烟机,打开灶具,油烟机会自动打开;智能晾衣架,洗衣完成,晾衣架会自动降下;橱柜自动触摸升降……为每一位业主提供细致便捷的生活。
开关灯这样的小事情,再也不用麻烦,灯随人动。如下图所示:

▲旭辉感应灯
美的置业根据业主生活痛点及生活轨迹,基本实现了全场景智能化打造。
比如回家之前,你可以先把家里的空调、新风系统、灯光等远程打开,系统会帮你调节到最舒适的环境。
晚上睡觉时,系统会帮你自动调节到最适宜的温度。
当你出去旅行,忘记关窗户,突然下雨或下雪了,你可以通过云邻社区APP远程开关窗。甚至系统可以智能检测到雨雪天气,自动关闭窗户。

如果是有孩家庭,孩子放学独自回到家,智能门锁开启时会联动智能摄像头抓拍三张照片发送到你手机,你能及时了解到孩子是否安全回到家。
当你担心食材有农药残留或感染了细菌病毒,你可以用美的置业自主研发的智能健康水槽清洗。该水槽采用新一代水触媒技术,创新微气泡技术和阻垢技术,能直接清除果蔬农药残余,还能直接杀灭细菌病毒,让业主吃得更健康更放心。

很多客户不在父母身边,当父母年纪大后,会经常担心父母身体健康,尤其担心老人会发生意外。
美的置业洞察到这一痛点,在卧室和卫生间设置了“毫米波探测器”。这个设备可以感知到空间是否有人,并联动设备开关。如果老人进入卫生间长时间不出来,或者晕倒跌倒,探测器都会及时发出警报。
此外,毫米波还能通过室内的毫米波睡眠监测仪•测量睡眠呼吸频率和心率,同时在手机APP上输出睡眠质量报告,并对心率和呼吸异常进行预警。客户可以实时掌握父母的身体健康状态。

可以说,美的置业智能化应用基本涵盖了业主的生活轨迹,解决了业主80%的生活痛点,全面提升业主居住体验。
万物互联的时代已经到来,这些科技感十足的生活场景已经来到你我身边。
精装交房已是大势所趋,越来越挑剔的业主也倒逼着开发商成长,各大地产直面挑战,用心雕琢,注重细节和品质,交出了客户想要的产品,获得了市场的青睐。
如万科的装修房:

万科中天北宸

东莞·万科皇马郦宫
下面是万科110项人性化细节,每一个细节都暗含“玄机”,让你一次全面了解:人性化设计究竟已经进化到了什么程度。
绿城以多年精装修营造实践之积淀,制定的较为完善的精装工艺工法——《绿城100个精装修细节》,处处从人性的角度深入思考,探求生活的本质。
杭州绿城桃源小镇
同时,开发商更加舍得在精装修上花成本,来满足买房人对精装修越来越高的期待值。
比如,郑州瀚海·观象全为高标准精装交付,可谓是真心的豪,不管是厨卫还是家装,采用的全部都是高端的品牌。

德国当代水龙头和花洒、德国唯宝马桶浴缸、梵蒂斯德式铸铝装甲门、德国美诺烤箱,德国博世厨房家电等等。

郑州瀚海·观象样板实景
西安中国铁建西派时代精装房在设计效果的把控上,也投入了非常多的心血。从地板砖、壁纸、门套、踢脚线等等,每一个细节都要求做到更好。

西派时代客厅岩壁实景
精装体系,品牌考究,厨房设备、橱柜、卫浴系统等,部分采用国际一线品牌。
人们对美好生活的向往是没有止境的,居住体验越来越高品质化,这也会是未来的趋势。
人们需要好产品,市场也需要超强的产品力。
然,好产品不是不计成本地投入,最终做成一堆奢侈品和名贵建材的堆砌,好产品也不是十年磨一剑地闭门造车,因为居住需求是动态变化的。好产品要敬畏市场、敬畏需求,好产品更是来自于对客户和市场的精准把握。
关于户型你有什么想说的,欢迎大家来评论留言,我们一起讨论学习!
欢迎加入
户型创新设计(交流群)AA

本资料声明:
1.本文为建筑设计技术分析,仅供欣赏学习。
2.本资料为要约邀请,不视为要约,所有政府、政策信息均来源于官方披露信息,具体以实物、政府主管部门批准文件及买卖双方签订的商品房买卖合同约定为准。如有变化恕不另行通知。
3.因编辑需要,文字和图片无必然联系,仅供读者参考;
推荐一个
专业的地产+建筑平台
每天都有新内容
扫描二维码关注

微信公众号“搜建筑”(ID:sjz9999)
合作、宣传、投稿
请加小编微信:soujianzhu006






